Siam Villa Bay Hotel/ASWA
暹罗维拉贝酒店 / ASWA
文化传承与现代演绎:暹罗维拉贝酒店最令人印象深刻的是其对外墙的巧妙设计。建筑师成功地将传统的泰式建筑元素与现代风格融为一体,这体现了对当地文化遗产的尊重与创新。 “Pun Lom”雕刻元素的运用是对泰国传统建筑细节的致敬,而闪耀的不锈钢链条则巧妙地呼应了泰国家庭中蚊帐这一日常元素,这种对比与融合在视觉上极具冲击力,也引发了人们对传统与现代的思考。这种设计手法不仅赋予了建筑独特的个性,也使其与暹罗广场的文化背景完美契合,真正实现了建筑与环境的对话。
活力氛围与空间层次:酒店内部的设计同样精彩,大胆运用鲜艳、充满活力的色彩,灵感来源于泰国的丰富文化。公共区域的设计尤其值得称赞,大胆的色彩运用和充满活力的图案营造出一种热情好客的氛围,鼓励宾客之间的互动与探索。主大堂的设计同样令人印象深刻,橙色鹅卵石形接待台与葱郁的绿色背景形成鲜明对比,瞬间点燃了宾客的入住体验。此外,双层挑高的天花板设计增强了空间的开阔感,也暗示了二楼公共区域的活动,营造出丰富的空间层次感,使整个酒店富有活力,又不失秩序。
对比与平衡的和谐统一:除了外在的视觉冲击,酒店在不同区域营造出的氛围对比也值得称道。大堂后方的泳池酒吧提供了一个宁静的绿洲,与酒店其他充满活力的区域形成鲜明对比,这种对比的运用,为宾客提供了多样化的体验,满足了他们对放松与探索的需求。在客房的设计中,这种对比也得到了延续,从公共区域的鲜艳色彩逐渐过渡到客房的柔和色调,为宾客创造了舒适的休憩空间。此外,卫生间外墙上色彩斑斓的瓷砖,又为原本宁静的空间增添了一丝趣味与俏皮,充分体现了建筑师对细节的把握和对宾客体验的关注,体现出设计中对平衡与和谐的深刻理解。

© Soopakorn Srisakul

© Soopakorn Srisakul
Recently, a newly designed hotel grandly opened in the vibrant central area of Siam Square in Bangkok. Siam Square is a lively neighborhood known for its rich cultural heritage and vibrant atmosphere. This innovative hotel features a striking exterior wall that cleverly blends traditional Thai architectural elements with modern style. The design prominently incorporates "Pun Lom" (a delicate sculptural element commonly found in classic Thai residences), symbolizing the local cultural heritage. In addition, the exterior walls are adorned with sparkling stainless steel chains. This modern element represents the mosquito nets used to cover beds at night in Thai family history, building a bridge of dialogue between ancient and modern times.
近日,一家全新设计酒店于曼谷暹罗广场这一充满活力的中心地带盛大开业。暹罗广场是一个以丰富文化底蕴和蓬勃氛围而闻名的热闹街区。这家创新型酒店拥有一面引人注目的外墙,巧妙地将传统泰式建筑元素与现代风格融为一体。设计中显著融入了“Pun-Lom”(一种常见于经典泰式住宅的精致雕刻元素),象征着当地的文化遗产。此外,外墙还饰有闪闪发光的不锈钢链条。这一现代元素代表着泰国家庭历史上夜间用来罩住床铺的蚊帐,在古今之间搭建起对话的桥梁。

© Soopakorn Srisakul

© Soopakorn Srisakul
Entering the hotel, guests will be surrounded by a vibrant and uplifting space. Here, we pay tribute to the essence of Thailand through carefully selected bright color tones inspired by the rich cultural colors of Thailand. This kind of praise for Thai aesthetics is particularly prominent in public spaces, where cheerful colors and gorgeous patterns create an inspiring and hospitable atmosphere, encouraging social interaction and exploration.
步入酒店内部,宾客们会被一个活力四射、令人精神振奋的空间所包围。这里通过精心挑选的、受泰国丰富文化色彩启发的鲜艳色调,向泰国的精髓致敬。这种对泰国美学的颂扬在公共空间尤为突出,欢快的色彩与华丽的图案共同营造出一种振奋人心、热情好客的氛围,鼓励人们社交互动与探索。

© Soopakorn Srisakul

© Soopakorn Srisakul
The main lobby of the hotel features a visually stunning orange pebble shaped reception desk with a lush green background, creating a warm and vibrant atmosphere for every arriving guest. The towering double layered ceiling widens the sense of space, allowing visitors to glimpse the activity scene of the yellow and black public area on the second floor. This multifunctional space is designed specifically for work, dining, and leisure, further enhancing the hotel's community atmosphere.
酒店主大堂设有一个视觉效果惊艳的橙色鹅卵石形接待台,背景是郁郁葱葱的绿色,为每一位到来的宾客营造出温馨而充满活力的氛围。高耸的双层天花板拓宽了空间感,让访客得以一窥二楼黄黑相间的公共区域的活动景象。这个多功能空间专为工作、用餐和休闲而设计,进一步增强了酒店的社区氛围。

© Soopakorn Srisakul
Behind the lobby, a tranquil pool bar awaits guests, providing a peaceful oasis for them to relax in lush greenery and soothing water features. This tranquil environment is an ideal place to relax, forming a sharp and pleasant contrast with other vibrant areas within the hotel.
大堂后方,一个宁静的泳池酒吧静候宾客,提供一片宁静的绿洲,让宾客在葱郁的绿植和舒缓的水景中放松身心。这一静谧的环境是放松的理想之地,与酒店内其他充满活力的区域形成了鲜明而又令人愉悦的对比。

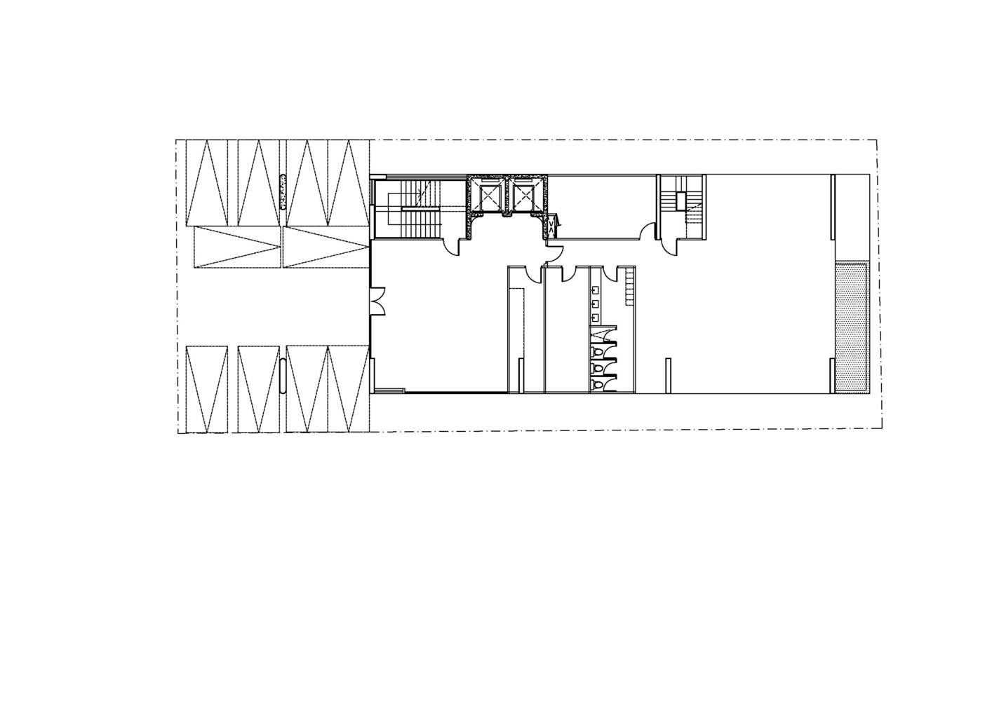
一层平面图

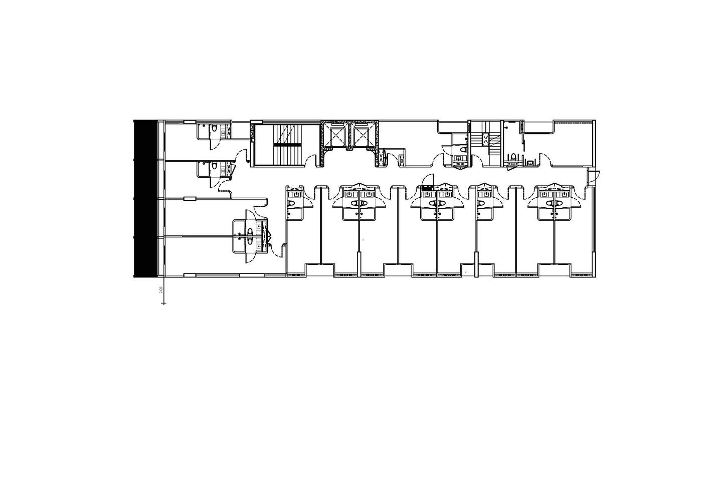
四层平面图

剖面图
Each floor of the hotel continues this distinct theme, and the elevator lobby is uniquely designed with floor numbers marked in different colors. As guests approach the guest room, the bright colors gradually transition into softer and more soothing tones, creating a peaceful and comfortable atmosphere. These peaceful resting places aim to promote deep sleep, but even within these tranquil spaces, there are also elements of fun. For example, the exterior wall of the bathroom is decorated with a row of colorful tiles, adding a touch of fun and playfulness to the originally peaceful atmosphere.
酒店的每一层都延续了这一鲜明主题,电梯厅设计独具匠心,以不同颜色标示楼层号。当宾客走近客房时,鲜艳的色彩逐渐过渡为更加柔和舒缓的色调,营造出一种宁静与安逸的氛围。这些宁静的休憩之所旨在促进深度睡眠,但即便在这些静谧的空间里,也不乏趣味元素。例如,卫生间的外墙装饰着一排色彩斑斓的瓷砖,为原本宁静的氛围增添了一抹趣味与俏皮。

© Soopakorn Srisakul
这种活力四射与宁静祥和的和谐融合,概括了宾客在整个入住期间所能期待的独特体验,承诺带来同样程度的兴奋与放松。

© Soopakorn Srisakul