Set N Rise Restaurant/Studio Kota Architecture in Bali
巴厘岛 Set N Rise 餐厅 / Studio Kota Architecture
场地适应与空间叙事:Set N Rise 项目最显著的亮点在于其对场地条件的卓越适应和巧妙利用。建筑师充分尊重了基地5米的高差,并未试图抹平地形,而是让建筑顺应坡度,以多层平台的形式逐级下降。这种设计手法不仅避免了生硬的视觉冲击,更创造了一种引人入胜的空间叙事。餐厅内部空间与场地特征紧密结合,用餐区域的错落布局呼应了周围梯田的层次感,使建筑仿佛从土地中生长出来。这种与自然的对话,体现了设计者对环境的深刻理解和对本土文化的尊重,赋予了空间独特的魅力。
功能布局与景观融合:项目的功能规划与景观融合堪称典范。餐厅与精品店的巧妙结合,在有限的空间内实现了功能的多样性。餐厅内部的四个平台各具特色,从烧烤区到阶梯式露天剧场,满足了不同用餐需求,也丰富了空间体验。尤其是将花园与稻田景观引入设计,让用餐体验与周围环境无缝衔接。三角形的建筑布局朝向也经过精心设计,充分利用自然采光,最大程度地展现梯田景观,创造了内外通透、视线开阔的用餐环境。这种设计理念体现了对空间使用效率的考量和对自然景观的尊重。
材料选择与细节处理:Set N Rise 项目的精髓体现在对材料选择和细节处理的极致追求。建筑师坚持本土性、可持续性的原则,选用了着色水泥、粗糙混凝土、本地木材等材料,这些材料的质感差异营造了丰富的触感体验,与周围的景观肌理相互呼应。外立面的木质百叶不仅具有被动遮阳和防雨功能,更赋予了建筑独特的视觉韵律,呼应了梯田的等高线。这些精心设计的细节,提升了建筑的整体品质,使其在视觉、触觉上都与周围环境融为一体,也展现了建筑师对设计理念的深刻理解和对品质的极致追求。

© Indra Wiras

© Indra Wiras
From the architect. Set N Rise is a semi outdoor Asian barbecue restaurant designed to showcase and pay tribute to the unique terraced landscape of Bali. The restaurant is located in Pererenan - a quiet and understated community just minutes away from the bustling Canggu area - inspired by the traditional terrace farming system of Bali, known as "terasering".
来自建筑师。Set N Rise 是一家半露天式亚洲烧烤餐厅,其设计旨在展现并致敬巴厘岛独特的梯田景观。该餐厅坐落于佩雷雷南(Pererenan) —— 一个静谧低调的社区,距离热闹的仓古(Canggu)地区仅数分钟路程 —— 项目灵感源自巴厘岛传统的梯田耕作系统“梯田灌溉法”(terasering)。

© Indra Wiras

轴测分析图

© Indra Wiras
The building is located on a narrow and sloping site, with a height difference of 5 meters between the front and back of the site. The building is carefully crafted and follows the natural contours of the land. The building does not adopt a single abrupt shape, but gradually descends with the terrain, creating a spatial sequence that echoes the layered characteristics of the surrounding rice fields.
建筑坐落于一处狭长且呈坡状的场地,场地前后存在 5 米的高差,建筑精心雕琢,依循土地的自然轮廓而建。该建筑并未采用单一突兀的造型,而是随地形逐渐下降,营造出一种空间序列,与周边稻田的分层特征相呼应。

© Indra Wiras

剖面图

© Indra Wiras

© Indra Wiras
The triangular layout of the building faces east and south, fully utilizing natural lighting and maximizing the display of terraced landscape. This orientation design ensures that almost every area inside the building maintains a strong visual connection with the outside, enhancing the seamless integration between indoor space and nature.
建筑的三角形平面布局朝东和朝南展开,充分利用自然采光,并最大程度地展现梯田景观。这种朝向设计确保了建筑内几乎每个区域都能与室外保持强烈的视觉联系,强化了室内空间与自然之间的无缝融合。

© Indra Wiras

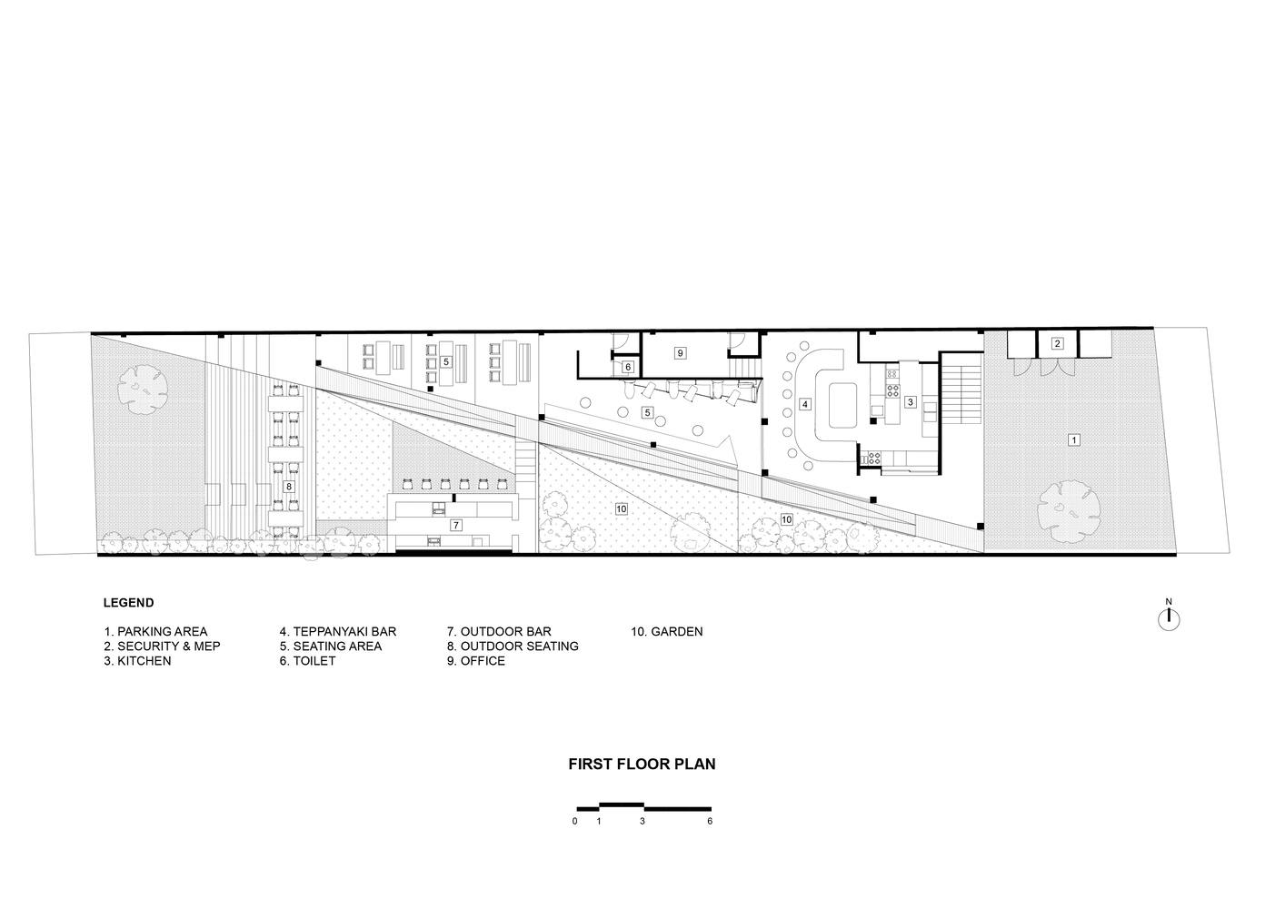
一层平面图

二层平面图

© Indra Wiras
Functional planning and spatial layout - The project features a restaurant on the first floor and a fashion boutique on the upper floor, achieving a balance between catering and retail functions within a limited footprint. Inside the restaurant, the dining areas are distributed on four staggered platforms, each built in accordance with the natural terrain of the site. The central ramp serves as the main transportation route, allowing guests to smoothly shuttle through the space while ensuring barrier free access to all floors.
功能规划与空间布局 —— 该项目在一层设置餐厅,上层开设时尚精品店,在有限的占地面积内实现了餐饮与零售功能的平衡。餐厅内部,用餐区域分布在四个错落有致的平台上,每个平台均顺应场地自然地形而建。中央坡道作为主要交通动线,让宾客能够流畅地穿梭于空间之中,同时确保各楼层无障碍通行。

© Indra Wiras

© Indra Wiras
每个平台均营造出独特的空间体验:
平台 1(街道层):设有烧烤区和主厨房。吧台由原位浇筑的树脂包裹木材制成,置于带有纹理的混凝土基座之上 ——
营造出触感丰富且质朴的材料组合。
平台 2:提供多种座位选择,包括悬空式混凝土长椅和一体化沙发,服务核心区后方设有卫生间。
平台 3:设有可容纳四人的标准餐桌,毗邻户外酒吧和 DJ 台——专为社交聚会或晚间活动打造。
平台 4(最低层):作为通往花园和户外活动区域的过渡空间。其尽头是一个阶梯式露天剧场,让顾客得以近距离感受稻田风光。

© Indra Wiras
The garden conforms to the triangular geometric shape of the building, extending the rhythm of the indoor space into the landscape. It is both a lush tropical landscape and a functional activity venue with tiered seating. Starting from this lowest point, guests can have a face-to-face view with the rice fields, allowing the dining experience to be more deeply integrated into the ecological environment of the venue.
花园顺应建筑的三角形几何形态,将室内空间的节奏延伸至景观之中。它既是一片郁郁葱葱的热带景致,又可作为带有阶梯式座席的功能性活动场地。从这一最低点出发,宾客可与稻田平视相对,让用餐体验更深度地融入场地生态之中。

© Indra Wiras
The material selection throughout the entire project cycle adheres to the pursuit of locality, sustainability, and sensory experience. Colored cement is laid on the ground of each platform, while rough textured concrete and locally sourced wood create a tactile dialogue between thickness and warmth. This combination of rough and delicate surfaces complements the texture of the surrounding landscape.
项目全周期的材料选择均秉持对本土性、可持续性及感官体验的追求。着色水泥铺就各平台地面,粗糙质感的混凝土与本地取材的木材则在厚重与温润之间形成触觉对话。这种粗犷与精致表面的相互映衬,与周边景观的肌理相呼应。

© Indra Wiras
The exterior of the building is wrapped in horizontal wooden louvers, inspired by the contour lines of rice paddies when viewed from above. These louvers combine passive shading and rainproof functions, while allowing sunlight and gentle winds to penetrate, enhancing the environmental performance of the building in the tropical climate of Bali. Wooden blinds soften the triangular building volume, giving it a unified texture and texture; They provide protection while maintaining visual transparency, keeping the building in close contact with the outside world.
建筑外立面包裹着水平木质百叶,其设计灵感源自俯瞰时稻田的等高线轮廓。这些百叶兼具被动遮阳与防雨功能,同时允许日光与微风穿透,提升了建筑在巴厘岛热带气候下的环境性能。木质百叶柔化了三角形的建筑体量,赋予其统一的纹理质感;它们在提供防护的同时,保持了视觉通透性,使建筑与外界保持紧密联系。

© Indra Wiras

© Indra Wiras
The Set n Rise project not only echoes the characteristics of the site in terms of form and materials, but also resonates with it on a spiritual level. It conforms to the natural slope of the site, opens up to the surrounding landscape, and integrates traditional spatial logic into modern functional layout. This creates a rich and immersive dining experience, rooted in the venue and with a broad view. This project has contributed to the growing architectural practice movement in Bali, which is committed to creating modern spaces rooted in the local environment. At the intersection of climate, culture, and community, a comprehensive and tailored design is used to achieve harmonious coexistence among the three.
Set n Rise 项目不仅在形式与材料上呼应场地特质,更在精神层面与之共鸣。它顺应场地的自然坡度,向周边景观敞开怀抱,并将传统空间逻辑融入现代功能布局之中。由此营造出层次丰富、沉浸感十足的用餐体验,既扎根于场地又视野开阔。该项目为巴厘岛日益兴起的建筑实践运动贡献了力量,该运动致力于打造根植于本土的现代空间,在气候、文化与社区的交汇处,以周全且因地制宜的设计实现三者和谐共生。

© Indra Wiras