Renovation of old warehouse in Gunma Prefecture/Negishi Kenchiku Studio
群马县老仓库翻新/ Negishi Kenchiku Studio
对历史的尊重与传承:该项目最显著的亮点在于对历史的尊重和传承。设计团队没有选择推倒重建,而是选择保留并翻新这座老旧仓库,这种做法本身就体现了对建筑历史价值的认可。他们认识到这座仓库是当地历史的见证,蕴含着丰富的文化记忆。通过细致的规划和设计,保留了仓库的屋顶、门窗以及混凝土墙等具有时代感的元素,这些细节不仅赋予了建筑独特的个性,也为新功能注入了历史的深度。项目的核心在于将过去的时间印记传递给未来,这种对记忆的尊重值得肯定。
新旧融合的巧妙处理:项目的精髓在于新旧元素的巧妙融合。设计团队并未简单地复制过去,而是将现代功能需求与原有建筑特色相结合。通过对外墙的翻新、内部空间的重新规划,仓库被赋予了新的生命力,成为了现代化的办公场所。同时,设计者保留了旧仓库的骨架,并在此基础上进行改造,这种新旧对比、虚实结合的设计手法,既保留了建筑的历史感,又满足了现代办公的需求,展现了设计者的专业素养和对建筑的深刻理解。这种融合也预示着建筑在不同时代背景下的持续发展。
可持续设计的理念:项目体现了可持续设计的理念。通过对原有建筑的改造,避免了拆除和重建带来的资源浪费。设计者充分利用了现有材料和结构,减少了对环境的影响。银色外墙的设计也颇具匠心,它能够随着时间变化,与周围环境融为一体,体现了设计对自然和环境的尊重。此外,设计团队希望通过此次翻新,让建筑的记忆得以延续,并为未来的发展留下空间。这种对建筑生命周期和可持续性的思考,使得该项目更具价值,也为其他类似项目的提供了宝贵的经验。

© Shinsuke Hayakawa

© Shinsuke Hayakawa
The project is to renovate an old warehouse located in a small town at the foot of Chicheng Mountain, surrounded by farmland. The customer purchased this warehouse, which was originally left on site as an attachment to a second-hand residential building. The customer plans to use it as an office for their own business.
该项目是对位于赤城山脚下一个小镇上的一座老仓库进行翻新,该仓库四周环绕着农田。客户购得了这座仓库,它原本是作为一幢二手住宅的附属物遗留在现场,客户计划将其用作自己业务的办公室。

© Shinsuke Hayakawa

© Shinsuke Hayakawa

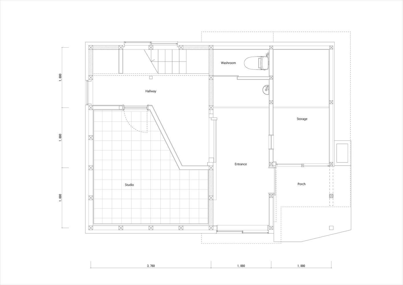
平面图

剖面图

© Shinsuke Hayakawa

© Shinsuke Hayakawa
The existing building has undergone multiple expansions and renovations, and although its surface is covered with galvanized iron sheet, the shape of the warehouse is maintained through a large roof suspended above the building. Nowadays, the functions of the warehouse have been completed, and with changes in the environment, the memory of the warehouse is gradually fading. This warehouse, although abandoned, has not been demolished and has remained standing, becoming a valuable source of historical knowledge in the region. The design team positions the renovation of the warehouse as a task aimed at passing down the passage of time from the past to the future.
现有的建筑经历了多次扩建和改造,尽管其表面覆盖着镀锌铁皮,但仓库的形状得以通过悬浮于建筑之上的大型屋顶得以保持。如今,仓库的功能已经完成,随着环境的变化,仓库的记忆也在日渐消退。这座仓库虽被遗弃却未被拆除,一直屹立不倒,成为了该地区历史知识的宝贵来源。设计团队将仓库的翻新定位为一项工作,旨在将此地从过去到未来的时间流逝传承下去。

© Shinsuke Hayakawa
The roof of the warehouse is a symbol of the building and remains unchanged, while the exterior walls have been renovated. In the previous expansion, storage rooms and bathrooms were added, and the interior of the warehouse was given the function of an office. The doors and concrete block walls with a sense of the times have been preserved, and openings have been opened to introduce natural light.
仓库的屋顶是建筑的象征,保持不变,而外墙则进行了翻新。在之前的扩建部分增加了储物间和卫生间,仓库内部被赋予了办公室的功能。保留了带有时代感的门和混凝土砌块墙,并开设了开口以引入自然光。

© Shinsuke Hayakawa

© Shinsuke Hayakawa

© Shinsuke Hayakawa
By preserving the history of the building, the design team is able to establish connections with the past and pass on memories to the future. Over time, the plants and trees in the garden constantly change. The silver exterior wall can blend in with the colors of the sky and the ground at any time, as if reflecting the existence of this place through time and space.
通过保留建筑的历史,设计团队能够与过去建立联系,并将记忆传递给未来。随着时间的推移,花园中的植物和树木不断变化。银色的外墙在任何时候都能与天空和地面的颜色融为一体,仿佛穿越时空般映衬出这个地方的存在。

© Shinsuke Hayakawa
The design team believes that if the imagination of the future can be expanded through renovation, the renovation work that connects the past and present will continue with the change of owners, and the memory of the warehouse will also be passed down to the next generation.
设计团队相信,如果能够通过翻新来拓展对未来的想象力,那么连接过去与现在的翻新工作将会随着业主的更迭而持续进行,仓库的记忆也将被传承给下一代。

© Shinsuke Hayakawa

© Shinsuke Hayakawa