Parkline Place Commercial Tower/Foster+Partners
Parkline Place 商业塔楼 / Foster + Partners
设计亮点:一体化综合设计:Parkline Place项目的核心亮点在于其卓越的“一体化”设计理念。Foster + Partners并未将商业塔楼与下方的Gadigal车站割裂开来,而是将其视为一个有机整体进行设计。这种设计方法使得车站与塔楼在空间上相互依存,功能上相互补充,从而创造了高效便捷的交通枢纽和充满活力的商业中心。这种设计打破了传统建筑设计中各部分相对独立的界限,将建筑、交通、商业等多个要素融为一体,形成一个协同共生的城市综合体。整个设计方案既考虑了车站的人流组织,又兼顾了商业空间的舒适性,体现了设计师对于城市空间整体性与功能性的深刻理解。
技术与可持续性:多重维度下的绿色建筑:该项目在技术与可持续性方面也展现出卓越的水平。项目采用了创新的结构设计,将车站结构作为塔楼的基础,简化了施工流程并提高了经济性。在可持续性方面,建筑师通过对立面、遮阳设施和材料的精心选择,实现了对自然光的有效利用和对热量的控制。例如,主立面朝南,减少了玻璃面积,并安装了垂直遮阳设施;东、西立面则减少了玻璃面积,并采用了抬高窗台。此外,该项目获得了WELL铂金级认证和Green Star 6星设计与建造认证,进一步证明了其在可持续发展方面的卓越成就。这些设计策略不仅降低了能源消耗,还为使用者创造了健康舒适的室内环境。
精髓:对城市文脉的尊重与创新:Parkline Place项目的精髓在于其对城市文脉的尊重与创新。项目巧妙地将塔楼与城市肌理融合,裙楼高度与相邻历史保护建筑保持一致,并通过砂岩和青铜等材料的应用,将项目与周围的建筑环境和谐统一。这种设计手法体现了对历史的尊重和对城市文化的传承。与此同时,项目又大胆创新,利用弧形转角玻璃、垂直设计感的独立入口大堂等元素,为城市增添了现代气息。这种在传统与现代、历史与未来之间取得平衡的设计理念,使得Parkline Place不仅是一座商业塔楼,更成为了城市景观中一道独特的风景线,为城市发展注入了新的活力。

Courtesy of Foster + Partners

Courtesy of Foster + Partners
The Parkline Place development project by Oxford Properties Group, Mitsubishi Estate Asia, and Investa - a 39 story commercial tower located above the new Gadigal station in Sydney - has been completed. Foster+Partners, as a member of the design team, developed a comprehensive design plan for the station and its surrounding buildings, considering it as a whole. The firm worked closely with COX Architecture, Aurecon (structural engineering), and CPB Contractors to drive and implement the project.
牛津地产集团(Oxford Properties Group,简称“牛津”)、三菱地所亚洲公司(Mitsubishi Estate Asia,简称“MEA”)和 Investa 的 Parkline Place 开发项目——一座位于悉尼全新 Gadigal 站之上的 39 层商业塔楼 —— 已竣工。Foster + Partners 作为设计团队的一员,为车站及其上方建筑开发制定了综合设计方案,将其视为一个整体。该事务所与 COX Architecture 建筑设计公司、Aurecon(结构工程)和 CPB Contractors 紧密合作,共同推动并实现了该项目。

Courtesy of Foster + Partners

Courtesy of Foster + Partners
Gerard Evenden, Head of Foster+Partners Studio, said: 'Parkline Place is one of the most conveniently connected office towers in Sydney, with a brand new station directly beneath it. The infrastructure around the tower base is well-developed and pedestrian traffic is convenient.'. This vibrant new landmark is located between the central business district and the city center - the heart of the city, providing highly flexible office space while also featuring a range of social spaces, shops, cafes, and restaurants
Foster + Partners 工作室负责人杰拉德·伊文登(Gerard Evenden)表示:“Parkline Place 是悉尼交通连接最为便利的办公塔楼之一,其正下方即为全新车站,塔楼基座周围基础设施完善,行人交通便利。该充满活力的新地标位于中央商务区与市中区之间——城市的心脏地带,提供高度灵活的办公空间,同时配备一系列社交空间、商铺、咖啡馆和餐厅。”

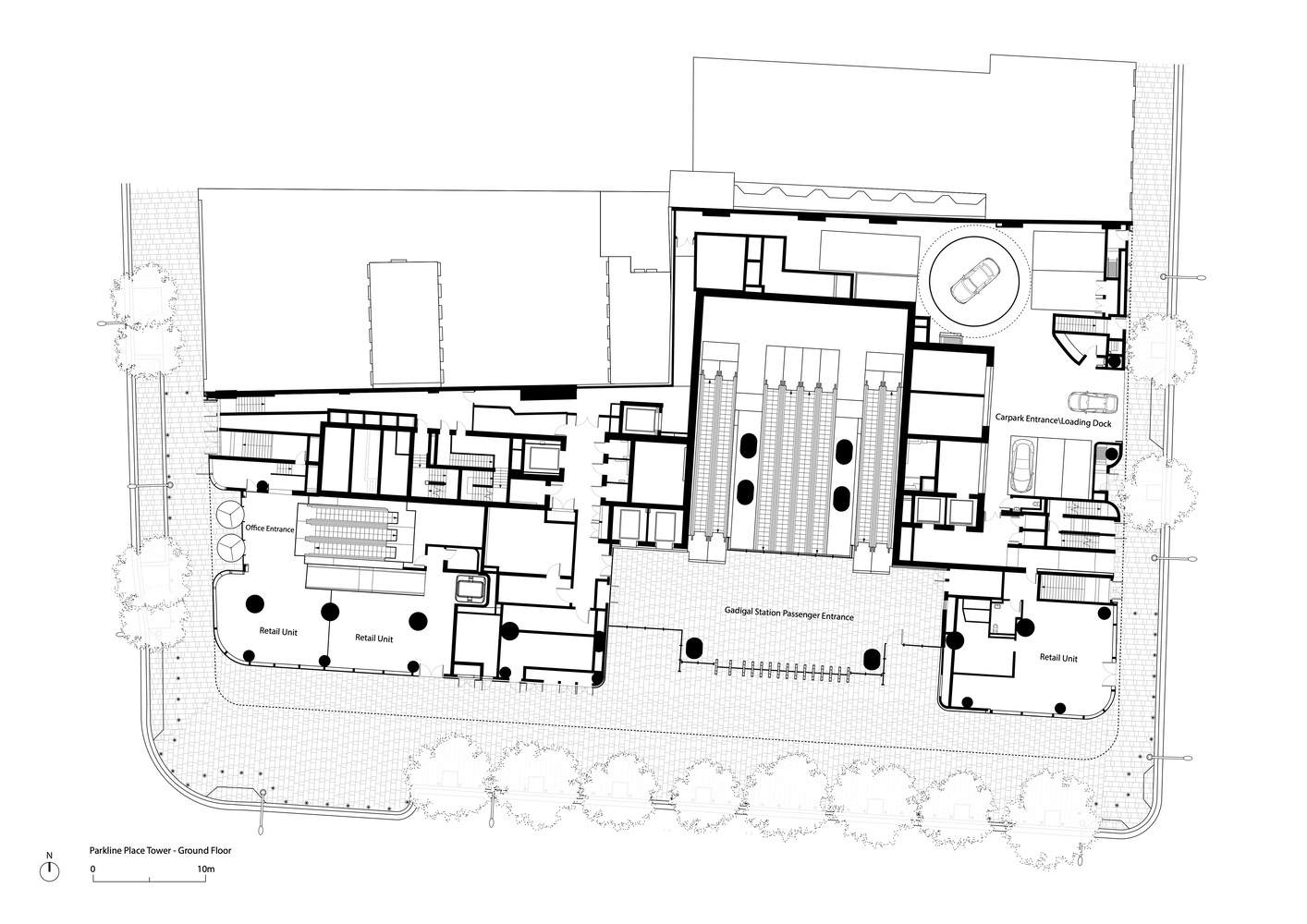
一层平面图
Foster+Partners partner Muir Livingstone added, "It's great to see Parkline Place open for business. This is our new office location in Sydney, and we look forward to working in this vibrant place
Foster + Partners 合伙人缪尔·利文斯顿(Muir Livingstone)补充道:“很高兴看到 Parkline Place 迎来开业。这是我们在悉尼办公室的新址,我们期待在这个充满活力的地点办公。”

Courtesy of Foster + Partners
Mark Tait, head of development at Investa, said: 'We are proud of Parkline Place.'. It is another example of Investa's successful development of complex and highly anticipated buildings above stations. Parkline Place is our second major high-end office development project in collaboration with Foster+Partners in Sydney. The quality of the main tenants who have settled in Parkline Place demonstrates the strong demand in the market for well-designed, sustainable buildings that are easily connected to transportation and provide high-end facilities
Investa 开发部负责人马克·泰特(Mark Tait)说:“我们对 Parkline Place 深感自豪。它是 Investa 成功打造复杂、备受瞩目的车站上方建筑开发的又一例证。Parkline Place 是我们与 Foster + Partners 在悉尼合作的第二座主要高端办公开发项目。入驻 Parkline Place 的主要租户质量,证明了市场对设计精良、可持续性高且与交通连接便利、提供高端设施的建筑的强烈需求。”

剖面图
The entrance box of the station serves as the foundation for the development of the upper building. The new tower is presented in three unique vertical forms, using curved corner glass. The groove in the middle of the tower facade runs through the entire height, with the Park Street entrance of the station as the center, establishing a direct connection between these two interrelated parts of the plan.
车站入口箱体作为上方建筑开发的基础。新塔楼以三个独特的垂直形态呈现,采用弧形转角玻璃。塔楼立面中间的凹槽贯穿全高,以车站 Park Street 入口为中心,为方案这两个相互关联的部分建立了直接联系。

Courtesy of Foster + Partners
The Park Street entrance of Gadigal Station is decorated with a glass veil, adding vitality to the street and allowing natural light to flood into the station hall around the clock. At the same time, Parkline Place's independent entrance lobby on Pitt Street has a strong sense of vertical design, with a three story space leading to the commercial lobby.
Gadigal 站的 Park Street 入口采用玻璃面纱装饰,为街道增添活力,并使自然光线全天候涌入车站大厅。与此同时,Parkline Place 位于 Pitt Street 的独立入口大堂具有强烈的垂直设计感,拥有三层高的空间,通向商业大堂。

Courtesy of Foster + Partners
The volume of the tower has been carefully crafted to highlight its architectural function. The spacious and flexible floors are equipped with two elevator groups arranged in a central core tube, ensuring unobstructed views and offering a panoramic view of the surrounding parks and Sydney Harbour. The design of office space allows for staircase connectivity, social centers, rest areas, client meeting rooms, and communication spaces, enriching the work environment.
塔楼体量经过精心打造,以凸显建筑功能。宽敞的灵活楼层采用中央核心筒布置两部电梯组,确保视野不受遮挡,可饱览周边公园和悉尼港的景致。办公空间的设计允许楼梯互通、社交中心、休息区、客户会议室和交流空间,丰富工作环境。

Courtesy of Foster + Partners
The main facade of the tower faces south with little sunlight, so only a small number of vertical shading facilities are installed to cope with low angle sunlight in the early morning and evening. The glass areas on the east and west facades have been significantly reduced, and elevated window sills are used to minimize heat absorption.
塔楼主立面朝南,日照很少,因此仅安装少量垂直遮阳设施,以应对清晨和傍晚低角度的阳光。东立面和西立面的玻璃区域大幅减少,采用抬高窗台以最大限度减少热量吸收。

Courtesy of Foster + Partners
Extended sunshade facilities further reduce direct sunlight, helping to block the scorching sun while maximizing the view of the park and beyond. The building has obtained WELL Platinum certification and Green Star 6-star Design and Build (v1.3) certification.
外伸遮阳设施进一步减少阳光直射,有助于遮挡烈日,同时最大限度欣赏公园及更远方的风景。该建筑获得 WELL 铂金级认证和 Green Star 6 星设计与建造(v1.3)认证。

Courtesy of Foster + Partners
The podium around the development base follows the height of two adjacent historic protected buildings on Pitt Street and Castlereagh Street. In addition, the use of sandstone and bronze materials links the project with other protected buildings in the surrounding area.
开发基座周围的裙楼遵循 Pitt Street 和 Castlereagh Street 上相邻两处历史保护建筑的高度。此外,砂岩和青铜材质的使用将该项目与周边其他保护建筑联系起来。

Courtesy of Foster + Partners

剖面图
The station structure effectively serves as the foundation for development, simplifying the construction process and making construction more convenient and economical. The investment return from the development of buildings above the station also subsidizes the project cost, creating an economically sustainable model for the public transportation infrastructure project. The design team is able to adjust the structure and optimize building services, prioritize passenger flow, and set separate entrances for the station and commercial development above.
车站结构有效充当开发的基础,简化了施工流程,使建设更加便捷、经济。车站上方建筑开发的投资回报也补贴了项目成本,为该公共交通基础设施项目创建了经济可持续的模式。设计团队能够调整结构并优化建筑服务,优先考虑乘客流通,并为车站和上方商业开发分别设置独立入口。

Courtesy of Foster + Partners