Scoop Office Building/Corstorphine&Wright
Scoop 办公大楼 / Corstorphine & Wright
创新立面与环境对话:该项目最引人注目的亮点在于其独特的凹形立面设计。这一设计并非仅仅为了美观,而是对周边环境的回应。通过白色釉面砖锥形镂空立面,建筑师巧妙地处理了与毗邻教堂的关系,既尊重了历史文脉,又赋予了建筑独特的现代感。这种设计策略使得“The Scoop”不仅仅是一栋办公楼,更像是一个与周边环境对话的载体。这种对话体现在立面与教堂的互动,以及对周边社区的呼应。半圆形空洞的设计,创造了视觉上的连接,将两个原本分离的景观融为一体,体现了建筑师对城市环境的深刻理解和创新思考。
可持续发展与功能融合:除了外观上的创新,“The Scoop”在可持续发展方面也表现出色,获得了BREEAM“优秀”评级。项目对原有建筑的再利用,减少了资源浪费,体现了环保理念。同时,扩建部分增加了办公空间,并设计了屋顶花园,提升了建筑的功能性和实用性。屋顶花园不仅为员工提供了舒适的休闲空间,还可以俯瞰伦敦的标志性景观,提升了建筑的附加值。这种设计理念将可持续发展与功能性完美结合,为建筑注入了活力,使其成为一个宜居、宜用的办公场所,充分体现了现代建筑设计的发展趋势,也满足了业主对高质量办公空间的需求。
尊重历史与社区关怀:“The Scoop”项目在设计中充分尊重了当地的文化和历史背景。首层与相邻教堂的立面保持一致,是对历史建筑的致敬,体现了建筑师对文脉的尊重。项目在设计过程中也考虑到了当地社区、居民和企业,这使得建筑不仅满足了业主的需求,也融入了社区的肌理。项目与具有前瞻性的业主合作,实现了建筑的独特性,并为当地增添了新的活力。这种设计理念超越了建筑本身,将建筑融入了城市发展的大环境中,体现了建筑师对社会责任的担当,以及对城市更新的积极贡献,赋予了建筑更深层次的意义。

Courtesy of Corstorphine & Wright / Daniel Shearing
Courtesy of Corstorphine & Wright / Daniel Shearing

Courtesy of Corstorphine & Wright / Daniel Shearing
Courtesy of Corstorphine & Wright / Daniel Shearing
Corstorphine, a leading architectural design company in the UK; Wright announced that the unique concave office building "The Scoop" located in Southwark, London has been completed. This innovative design repurposes an existing building and incorporates a white glazed brick cone-shaped hollow facade, responding to the site environment and adjacent church in an interesting and innovative way. This building is located in the vibrant Union Street conservation area, showcasing a modern architectural style while also respecting the surrounding heritage, particularly the adjacent Grade II protected building, the Church of Most Precious Blood, whose circular windows are now prominently outlined. The nearby Union Theatre, Jerwood Space, and Flat Iron Square add rich cultural heritage to this building.
英国领先的建筑设计公司 Corstorphine & Wright 宣布,位于伦敦南华克区的独特凹形办公楼“The Scoop”已竣工。该创新设计重新利用了一栋现有建筑,并融入了白色釉面砖锥形镂空立面,以一种有趣且新颖的方式回应了场地环境和邻近的教堂。这座建筑坐落于充满活力的 Union Street 保护区,在彰显现代建筑风格的同时,也尊重了周边遗产,尤其是毗邻的二级保护建筑“至圣血教堂(Church of Most Precious Blood)”,其圆形窗户如今被醒目地勾勒出来。附近的 Union Theatre、Jerwood Space 和 Flat Iron Square 更为这座建筑增添了丰富的文化底蕴。

Courtesy of Corstorphine & Wright / Daniel Shearing
Courtesy of Corstorphine & Wright / Daniel Shearing

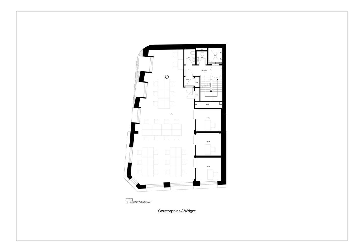
Plan

Courtesy of Corstorphine & Wright / Daniel Shearing
Courtesy of Corstorphine & Wright / Daniel Shearing
This design preserves the important south facing parts of the existing facade and corner corridors, and seamlessly integrates them with the newly expanded section. This meticulous design concept ensures that the building can successfully integrate into the surrounding environment, adding more creativity and artistic atmosphere to the area. By working closely with Thomson Hills Balfour Limited (THB), a forward thinking and community conscious building owner, Corstorphine & Wright has created a truly unique building that has attracted the attention of many passersby since its recent unveiling. The key features of 'The Scoop' include: reusing and redesigning the existing four story office building to create high-quality Cat A-level office space, and receiving a BREEAM 'Excellent' rating; Expand the building laterally and upwards to increase existing office space and create a rooftop garden overlooking some of London's most iconic landmarks, offering panoramic views; Create a striking semi-circular void on the south facade, forming a "visual bridge" that connects two separated landscapes; The first floor is consistent with the facade of the adjacent Roman Catholic church (a Grade II protected building built by Frederick Walters in 1892).
该设计保留了现有立面的重要南向部分和转角回廊,并使其与新扩建部分完美融合。这种细致入微的设计理念确保了建筑能够成功融入周边环境,为该地区增添了更多的创意和艺术气息。通过与具有前瞻性和社区意识的建筑业主——ThomsonHillsBalfour Limited(THB)紧密合作,Corstorphine & Wright 打造出了一座真正独一无二的建筑,该建筑在最近揭幕后吸引了众多路人的目光。“The Scoop”的关键特色包括:对现有的四层办公楼进行再利用和重新规划,打造出优质的 Cat A 级办公空间,并获得 BREEAM“优秀”评级;对建筑进行侧向和向上扩建,以增加现有办公空间,并创建一个屋顶花园,可俯瞰伦敦一些最具标志性的地标建筑,尽享全景视野;在南立面上打造出引人注目的半圆形空洞,形成一座“视觉桥梁”,连接了两个被分隔的景观;首层与相邻的罗马天主教教堂(一座由Frederick Walters于1892年建造的二级保护建筑)的立面保持一致。

Courtesy of Corstorphine & Wright / Daniel Shearing
Courtesy of Corstorphine & Wright / Daniel Shearing

Section

Courtesy of Corstorphine & Wright / Daniel Shearing
Courtesy of Corstorphine & Wright / Daniel Shearing
Corstorphine & David Crosthwait, director of Wright, said, "The entire team is proud and excited to share this project. The concave facade design allows the building to be expanded in front of the church, and through this symbiotic relationship, it not only protects and enhances the church's prominence and visibility, but also creates a unique office headquarters. For us, it is crucial to respect the cultural and historical background of the region, as well as the neighboring church buildings, to ensure their visibility and solemnity. The final presented building is a carefully planned balanced work that makes the surrounding buildings more dazzling, while also showcasing its own charm, adding brilliance to the vibrant architectural cultural diversity of the region
Corstorphine & Wright 的董事戴维·克罗斯特怀特(David Crosthwait)表示:“整个团队都自豪而激动地分享这个项目。凹形立面的设计使得建筑能够在教堂前方进行扩建,通过这种共生关系,既保护和提升了教堂的显著性和可见度,又打造了一个独一无二的办公总部。对我们来说,尊重该地区的文化和历史背景,以及尊重邻近的教堂建筑,确保其可见度和庄严性,这一点至关重要。最终呈现的建筑是精心策划的平衡之作,它让周边建筑更加光彩夺目,同时也展现出自身的魅力,为该地区充满活力的建筑文化多样性增添了光彩。”

Courtesy of Corstorphine & Wright / Daniel Shearing
Courtesy of Corstorphine & Wright / Daniel Shearing
Without the foresight and support of our client, none of this would have been possible. The client accepted the project and persevered through the challenges. Being able to reach this point is a remarkable achievement, and we believe that the final result proves the important role that bold design can play in enhancing the city's image. "The client and building owner were very satisfied with the final result. Amanda and Peter Sears Balfour, as well as Steve and Sarah Thompson from THB, said: 'Creating unique office spaces in a creative and sustainable way is crucial for us and our responsible and forward thinking tenant MMGY Global.'. We hope that the teams working in these spaces can enjoy their environment and feel proud because in developing this project, we took into account the local community, residents, and businesses
“如果没有我们客户的远见卓识和支持,这一切都不可能实现。客户接纳了这个项目,并在面临挑战时始终坚持不懈。能够走到这一步是一项了不起的成就,我们认为最终成果证明了大胆设计在提升城市形象方面所能发挥的重要作用。”客户和建筑业主对最终成果感到非常满意。THB 的阿曼达和彼得·希尔斯·巴尔弗以及史蒂夫和莎拉·汤姆森表示:“以富有创意和可持续的方式打造独特的办公空间,对我们以及我们认真负责、具有前瞻性的租户 MMGY Global 来说都至关重要。我们希望让在这些空间工作的团队能够享受他们的环境,并感到自豪,因为在开发这个项目时,我们考虑到了当地社区、居民和企业。”

Courtesy of Corstorphine & Wright / Daniel Shearing
Courtesy of Corstorphine & Wright / Daniel Shearing