Pirelli Building 35/Park Associate+Sn ø hetta
倍耐力 35 号办公楼 / Park Associati + Snøhetta
项目亮点:可持续与活力的融合:倍耐力35号办公楼项目最引人注目的亮点在于其对可持续发展的深度践行。设计师并未选择推倒重建,而是保留了原有建筑结构,通过适应性再利用,显著降低了建筑的碳排放。同时,项目将原本封闭的建筑改造成开放的城市空间,引入了公共庭院和绿色景观,提升了建筑的活力与开放性。这一设计策略不仅体现了对环境的尊重,也积极回应了城市更新的需求,为米兰市民创造了更具吸引力的公共空间,实现了建筑与城市、环境与人的和谐统一。
精髓:历史传承与创新融合:倍耐力35号项目的精髓在于其对米兰城市文脉的深刻理解与回应。项目通过保留建筑结构,并结合混凝土饰面、陶土色纹理的金属覆层等材料,巧妙地将历史记忆与现代创新融合。这种设计手法使建筑既尊重了历史的沉淀,又融入了现代的元素,实现了新旧建筑之间的对话。项目改造后的立面,与周边社区的住宅尺度相呼应,同时又与新门区的高层建筑协调统一,体现了建筑师对城市肌理的敏感和对城市整体风貌的尊重。
独特之处:公共空间的革新与社区的连接:倍耐力35号项目的独特之处在于其对公共空间的重新定义。设计师将建筑内部空间向公众开放,打造了连接米兰中央车站和当代花园BAM的路径,并通过大型落地窗增强了建筑内部与外部环境的对话。这种设计打破了传统办公建筑的封闭性,使建筑成为一个充满活力的城市场所,促进了租户与公众之间的互动。同时,项目还通过屋顶平台等设计,丰富了城市空间的功能,为米兰城市生活注入了新的活力,真正实现了建筑对城市的贡献,提升了社区的凝聚力。

© Barbara Rossi

© Barbara Rossi
From the architect. Park Architects and Sn ø hetta Architects have teamed up to transform Pirelli 35, a 1960s office building located in the heart of Milan's Porta Nuova district, into a vibrant, accessible, and environmentally sustainable urban landmark. This project, commissioned by COIMA, redefines the relationship between architecture, landscape, and public space, creating a new core focus for urban renewal. As a testament to its strategic significance and architectural value, Pirelli 35 has been selected as the Italian headquarters for Adidas and Cond é Nast. The Pirelli 35 International Design Competition facilitated an unexpected yet visionary collaboration. Park and Sn ø hetta initially proposed two distinct yet complementary solutions, and subsequently COIMA invited the two firms to integrate their respective expertise into a unified project. This collaboration - Sn ø hetta's first project in Italy - fully demonstrates how building quality and sustainability can coexist in mutually beneficial cooperation.
来自建筑师。Park 建筑事务所与 Snøhetta 建筑事务所携手合作,将位于米兰新门(Porta Nuova)区核心地段的 20 世纪 60 年代办公大楼 —— 倍耐力 35 号(Pirelli 35),改造成一座充满活力、易于通行且环境可持续的城市地标。该项目由 COIMA 公司委托,重新定义了建筑、景观与公共空间之间的关系,为城市更新打造了一个新的核心焦点。作为其战略意义和建筑价值的明证,倍耐力 35 号已被选为阿迪达斯(Adidas)和康泰纳仕(Condé Nast)的意大利总部所在地。倍耐力 35 号国际设计竞赛促成了一场意想不到却极具远见的合作。Park 和 Snøhetta 最初提出了两个截然不同却又相辅相成的方案,随后 COIMA 邀请两家事务所将各自专长融合为一个统一的项目。这一合作 —— Snøhetta 在意大利的首个项目,充分展现了建筑品质与可持续性如何在相互增益的合作中共存。

© Barbara Rossi

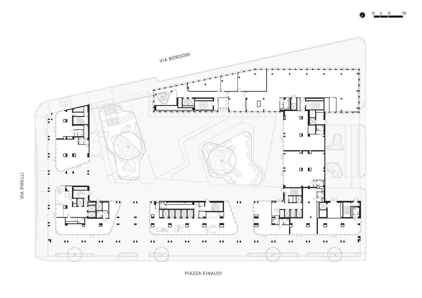
一层平面图

© Barbara Rossi
The project did not choose to demolish and rebuild, but instead utilized the potential for adaptive reuse, preserving the existing building structure to significantly reduce hidden carbon emissions. The architectural renovation not only enhances the aesthetic and structural quality of the building, but also strengthens its connection with Milan's history and modern style. One of the most notable features of this project is the transformation of an originally closed and airtight building into an open and freely accessible urban space, re stitching different areas of the city. The building was originally a compact, self-contained volume, but has now been reshaped by demolishing its central wing and introducing a suspended volume above the new public courtyard. This renovation breaks the stiffness of the original building, greatly enhances transparency, and seamlessly integrates the site with the surrounding environment.
该项目并未选择拆除重建,而是采用了适应性再利用的潜力,保留现有建筑结构,以大幅减少隐含碳排放。建筑改造在提升建筑美学与结构品质的同时,还强化了其与米兰历史和现代风貌的联结。该项目最显著的特点之一,是将一座原本封闭、不透气的建筑,转变为一个开放、可自由通行的城市空间,重新缝合了城市的不同区域。该建筑原本是一个紧凑、自成一体的体量,如今通过拆除其中央翼楼,并引入一个悬浮于新公共庭院上方的体量,实现了重塑。这一改造打破了原有建筑的僵硬感,极大提升了通透性,使场地与周边环境无缝融合。

© Barbara Rossi
The result of the renovation is a vibrant green space interwoven with the urban texture, a place that attracts people to gather, promotes interaction between tenants and the public, and redefines the relationship between architecture and the city. The new courtyard is paved with undulating stone carpets that guide pedestrians through, establishing a direct and smooth connection between Milan Central Station and the contemporary garden BAM in the New Gate area. The large french window outline the exquisite outline of this space, enhance the transparency, and strengthen the dialogue between the interior of the building and the urban environment. When entrusted with the redesign of the Pirelli 35 building located in the center of Milan, we were delighted to have the opportunity to create a building that would give back to the citizens of Milan. This is completely in line with Sn ø hetta's philosophy since its inception - we deeply understand that breaking down the division of urban space, opening the interior of the building to a wider public, creating a sense of belonging for the public to these buildings, and enhancing accessibility to public spaces are crucial. I believe that the building we are building is the epitome of regenerative architecture that European cities and even Milan should have, "said Kjetil Tr æ dal Thorsen, founding partner of Sn ø hetta Architects.
改造后的成果是一片与城市肌理交织的生机盎然的绿色空间,一个吸引人们相聚的场所,促进了租户与公众之间的互动,重新定义了建筑与城市的关系。新庭院铺设着如波浪般起伏的石质地毯,引导行人穿行其间,在米兰中央车站与新门区的当代花园 BAM 之间建立起直接而流畅的连接。大型落地窗为这一空间勾勒出精致的轮廓,增强了通透感,并强化了建筑内部与城市环境的对话。“当受托重新设计位于米兰市中心的倍耐力 35 号大楼时,我们非常欣喜能有机会打造一座回馈米兰市民的建筑。这完全契合 Snøhetta 自创立之初便秉持的理念 —— 我们深知,打破城市空间的割裂,让建筑内部向更广泛的公众开放,创造公众对这些建筑的归属感,并提升公共空间的可达性,是至关重要的。我认为,我们打造的这座建筑,正是欧洲城市乃至米兰再生建筑应有的典范,” Snøhetta 建筑事务所创始合伙人 Kjetil Trædal Thorsen 如此说道。

© Barbara Rossi

剖面图

© Barbara Rossi
The fa ç ade of Via Bordoni, including the bridge section, features a metal cladding with a clay textured coating that echoes the residential scale of the surrounding community. At the same time, the original building structure that has been re layered adopts a concrete effect finish, which is coordinated with the modern high-rise buildings in the new gate area, achieving a balance between history and innovation. Michele Rossi, founding partner of Park Architecture, explained, "This renovation is an opportunity to showcase how architecture can connect the past and the future, memory and innovation. We are transforming within the existing building outline to create a brand new urban space - a place that truly belongs to the city
博尔多尼街(Via Bordoni)的立面,包括桥梁部分,采用了带有陶土色纹理涂料的金属覆层,与周边社区的住宅尺度相呼应。与此同时,重新覆层的原有建筑结构采用混凝土效果饰面,与新门区的现代高层建筑相协调,在历史与创新之间取得了平衡。Park 建筑事务所创始合伙人Michele Rossi 解释道:“这一改造是一次契机,展现了建筑如何能够连接过去与未来、记忆与创新。”“我们在现有建筑轮廓内进行改造,打造出一个全新的城市空间 —— 一个真正属于这座城市的场所。”

© Barbara Rossi
Pirelli Building 35 incorporates cutting-edge sustainable development strategies, setting a benchmark for future urban development. The project prioritizes low-carbon construction by reusing existing building structures and fully utilizing recycled materials. A large photovoltaic ceiling supplies power to a water water heat pump system, optimizing heat energy production, while an intelligent building system monitors and improves energy efficiency. By retreating the facade behind the existing structural grid, the design also reduces solar thermal gain, improving environmental performance while ensuring transparency and natural lighting. Pirelli Building 35 is not just a workplace, but also a vibrant, inclusive, and people-oriented space that enriches Milan's urban experience. This project integrates office space, public areas, and a vibrant rooftop platform, giving rise to round the clock vitality in one of Milan's most dynamic areas. Pirelli Building 35 witnessed Milan's transformation, where historical memory and contemporary innovation complement each other, jointly reshaping the city's architecture and future.
倍耐力 35 号大楼融入了前沿的可持续发展策略,为未来城市发展树立了标杆。该项目以低碳建设为优先,通过重复利用现有建筑结构,并全面采用回收材料。一座大型光伏顶棚为水-水热泵系统供电,优化了热能生产,同时智能建筑系统对能源效率进行监测与提升。通过将立面退至现有结构网格后方,设计还减少了太阳热增益,在确保通透性和自然采光的同时,提升了环境性能。倍耐力 35 号大楼不仅仅是一个工作场所,更是一个充满活力、包容开放、以人为本的空间,丰富了米兰的城市体验。该项目集办公空间、公共区域和生机勃勃的屋顶平台于一体,在米兰最具发展活力的区域之一催生了全天候的活力。倍耐力 35 号大楼见证了米兰的蜕变,在这里,历史记忆与当代创新交相辉映,共同重塑着这座城市的建筑与城市未来。

© Barbara Rossi