MJK Kindergarten/HIBINOSEKEI+Youji no Shiro+Kids Design Labo
MJK 幼儿园 / HIBINOSEKKEI + Youji no Shiro + Kids Design Labo
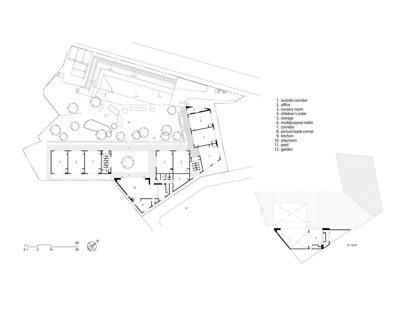
设计理念与环境融合: 这所幼儿园的设计最令人赞叹之处在于其与自然环境的无缝融合。设计师充分利用了场地原有的自然地形,特别是庭院3米的高度差,将其打造为孩子们天然的游乐场。这种设计不仅节约了成本,更重要的是,它让孩子们能够亲身体验大自然的魅力。L形的保育室布局以及面向花园的设置,让室内空间与外部景观紧密相连,孩子们在日常生活中都能感受到季节的变化和天气的变幻。保留现有的树木,并设置中庭,进一步强化了孩子们与环境的联系,培养了他们对自然的尊重和保护意识。这种设计理念体现了对儿童身心健康发展的深刻理解,也为其他幼儿园设计提供了宝贵的借鉴。
建筑空间与儿童互动: 幼儿园的建筑空间设计以儿童为中心,注重培养他们的自主性和独立思考能力。外廊的设计借鉴了日本传统建筑“縁側”的理念,将日常动线延伸到室外,鼓励孩子们在自然环境中自由活动和探索。这种设计并非仅仅是为了美观,更是为了让孩子们在潜移默化中培养感性认知,激发他们的好奇心和求知欲。就餐区的设置也颇具巧思,通过可完全打开的窗户,让孩子们在用餐时也能欣赏到季节和树木的变化,从而加深他们对自然的感悟。这种设计理念摒弃了传统幼儿设施过度关注安全性和舒适性的倾向,转而注重培养孩子的独立性,为他们提供了一个充满活力和探索乐趣的成长环境。
材料选择与可持续性: 虽然文中没有详细描述材料的选择,但从设计理念来看,可以推断出该项目在材料选择上注重可持续性和环保性。设计师保留了现有的树木,这本身就是一种对环境的尊重。结合对自然光线的利用、通风的设计,以及对自然材料的考虑,可以预见这座幼儿园在节能环保方面也一定有所考量。 此外,外廊的设计也可能使用了耐候性好、易于维护的材料,以适应户外环境的需求。 这种对环境负责任的设计态度,不仅为孩子们树立了榜样,也为幼儿园的可持续发展奠定了基础。这种设计理念顺应了时代发展的趋势,将建筑设计与环境保护紧密结合,具有重要的实践意义。

Courtesy of KIDS DESIGN LABO

Courtesy of KIDS DESIGN LABO
Renovation of an aging kindergarten in Moji ku, Kitakyushu City that can accommodate 240 children. The ocean on the north side of the project is vast, and the mountains on the south side are magnificent. Despite being located in a residential area, the surrounding environment is rich in natural resources. Especially influenced by the nearby 'Green Valley', the kindergarten's garden has a height difference of over 3 meters. By utilizing existing natural terrain like this, the garden can serve as both a playground for children and a purely natural play facility. The abundant trees and vegetation allow children to learn to coexist. While cherishing such an environment, we also introduce external nature into the interior, creating a natural transition between the inner and outer boundaries of the garden.
北九州市門司区的一所可容纳240名儿童的老化幼儿园的翻新。项目北侧海洋辽阔南侧山脉壮丽,尽管位于居民区,但周边环境自然资源丰富。特别是受附近"绿谷"影响,幼儿园的庭园有超过3米的高度差,活用像这样现成的自然地形,庭园既可以作为儿童的游戏场所也是纯天然的游戏设施,充沛的树木植被,让孩子们学习共生。在珍视这样环境的同时,将外部自然引入室内,创造了内外边界自然过渡的园舍。

Courtesy of KIDS DESIGN LABO

Elevations

Courtesy of KIDS DESIGN LABO
All daycare rooms are located on the first floor and feature an L-shaped layout facing the garden, allowing children to spend time interacting with nature. The outer corridor connecting the garden and the nursery is modeled after the traditional Japanese architecture on the green side, bringing the daily flow outdoors, allowing children to always feel the changes in nature and weather in their daily lives. Feel the raindrops dripping from the roof when it rains, and feel the seasonal changes when the wind blows. Through such daily experiences, cultivate children's emotional, independent thinking, and action abilities.
所有的保育室都设置在一楼,并采用L形布局面向庭园,孩子们在与自然的互动中度过时光。连接庭园和保育室的外廊以日本传统建筑的縁側为模型,将日常动线带到室外,使孩子们在生活中能够始终感受到自然和天气的变化。下雨时感受从屋顶滴落的雨水,风吹时感受季节的变化。通过这样的日常经历,培养孩子的感性,独立思考和行动的能力。

Courtesy of KIDS DESIGN LABO

Plan

Courtesy of KIDS DESIGN LABO
A courtyard has been set up in the building, preserving the trees that have been guarding the kindergarten since its opening. There is a dining area across from the atrium, where children can experience the changes in seasons and trees while dining through windows that can be fully opened. By preserving existing trees, it cultivates children's understanding and respect for the environment, as well as their awareness of valuing nature for a sustainable future.
在建筑中设置了中庭,留存了自开园以来一直守护着幼儿园的树木。中庭对面设有就餐区,通过设置可全开的窗户,孩子们可以在用餐同时感受季节和树木的变化。通过留存现有树木,培养了孩子们对环境的理解和尊重,也培养了为了可持续的未来而珍视自然的意识。

Courtesy of KIDS DESIGN LABO

Sections

Courtesy of KIDS DESIGN LABO
In recent years, early childhood facilities have tended to prioritize safety and comfort, but this kindergarten emphasizes children's independence and provides an environment where they can freely move around, allowing them to feel a connection with nature. In this way, the kindergarten cultivates children's sensitivity and promotes independent early childhood education.
近年来,幼儿设施趋向于优先安全性和舒适性,但这所幼儿园注重儿童的自立性,提供了一个可以自由活动的环境,让孩子们能感受到与自然的联系。通过这种方式,园舍培养了儿童的感性还促进了自主幼儿教育。

Courtesy of KIDS DESIGN LABO