New High School and STEAM Design Center/Flansburg Architects
新中学与 STEAM 设计中心 / Flansburgh Architects
总体布局与功能规划:该项目展现了出色的整体规划与功能组织。两座建筑巧妙地布置在一个宽敞的运动场和绿地两侧,充分利用了场地优势,创造了开放、互联的校园氛围。STEAM 设计中心和中学的功能分区明确,针对不同年龄段学生的学习特点和需求,提供了多样化的学习和活动空间,包括科学实验室、艺术工作室、黑匣子剧场、舞蹈室、图书馆和体育馆等。这种多样化的功能配置,既满足了学生的多样化需求,也促进了跨学科的交流与合作,体现了对未来教育模式的前瞻性思考。
建筑设计与空间体验:建筑师在设计中巧妙地融合了当地文化元素,同时注重建筑与自然的互动。建筑的曲线设计和明亮的色彩,与周边的网格结构形成和谐对比,灵感源自越南梯田的种植箱,将建筑与景观巧妙结合,打破了建筑的单调感。内部空间设计同样出色,天窗大厅、竹材元素的运用,以及向外延伸的花园阳台,都营造了开阔、舒适、充满活力的空间氛围。这种设计手法,不仅提升了建筑的美观性,也为学生创造了丰富而富有启发性的空间体验,促进了学生的创造力和探索精神。
可持续性与环境融合:项目在可持续性方面展现了积极的姿态。建筑与周围环境的无缝连接,体现在建筑与河流的互动、对自然光的利用以及本地植物的种植。蜿蜒的阳台为学生提供了观赏水景的绝佳视野,使建筑与水体景观融为一体。竹材等本土材料的使用,体现了对当地美学的尊重和对可持续发展的承诺。项目选址也颇具匠心,利用了场地优势,并与周边环境建立起良好的联系,形成了一个生态、开放、具有活力的校园环境,体现了建筑设计对环境的尊重和对未来可持续发展的思考。

© Matthew Millman

© Jonathan Mitchell
Saigon South International School is an independent school that provides college preparatory education for K-12 students from over 40 countries, adhering to the spirit of inquiry. This project includes two new buildings: one for a middle school and the other for a STEAM design center.
西贡南方国际学校(Saigon South International School)是一所为来自 40 多个国家的 K-12 学生提供大学预科教育的独立学校,秉承着探究精神。本项目包括两座新建筑:一座为中学,另一座为 STEAM 设计中心。

© Matthew Millman

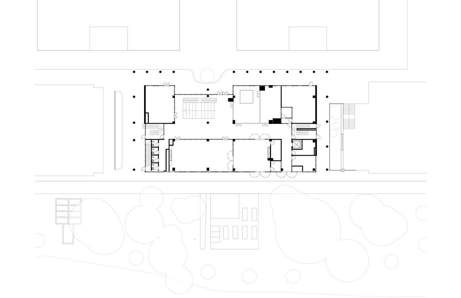
Site Plan

© Matthew Millman
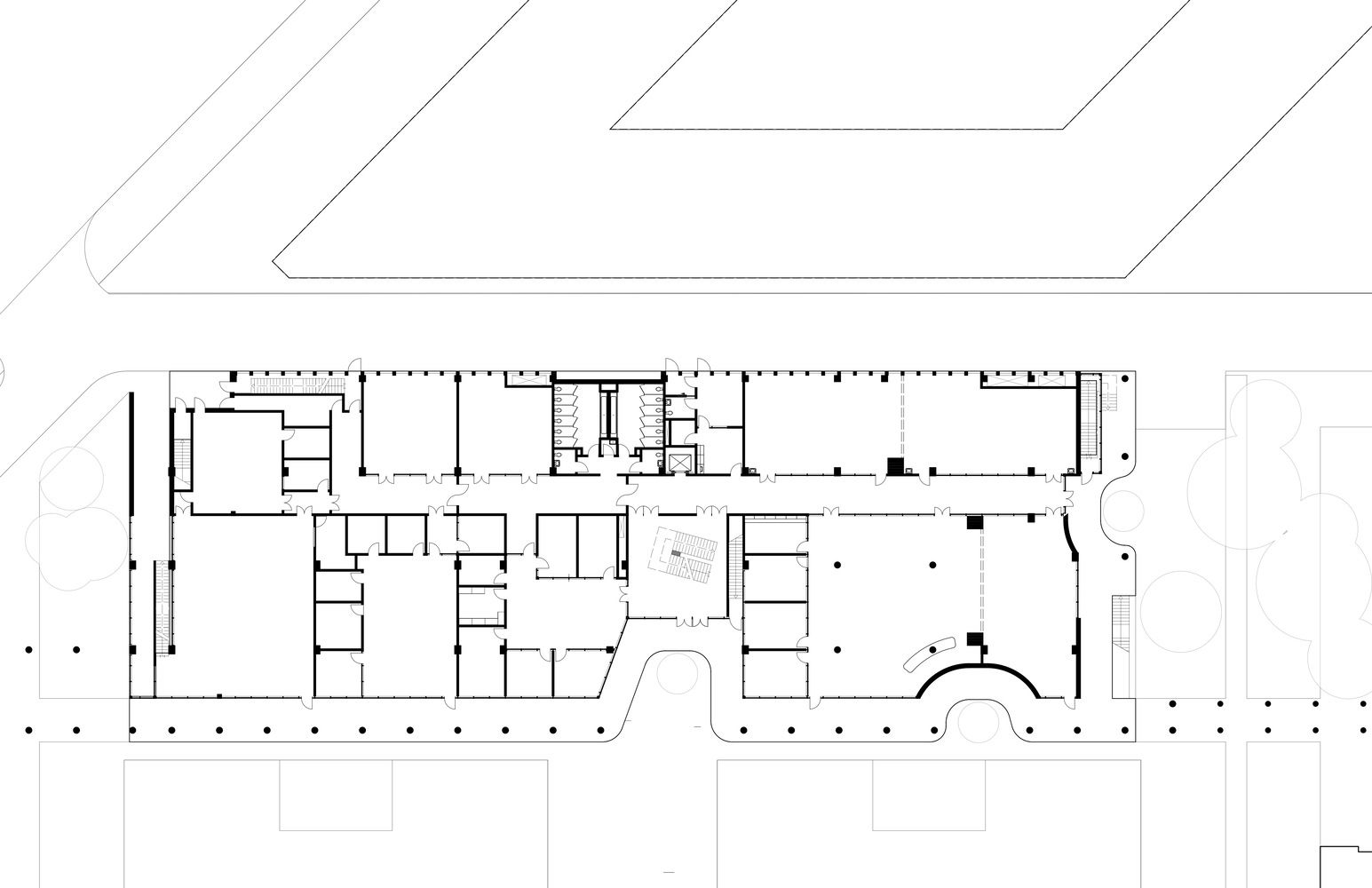
STEAM Design has five science laboratories, two art classrooms, independent art studios, a 3D art and printmaking studio, and an indoor/outdoor art gallery. The STEAM Design Center provides high school students with the opportunity to explore creativity, ignite passion, and develop future skills in an open, flexible, and interdisciplinary learning environment. Middle school is designed for students in grades 6 to 8, emphasizing their emotional, creative, and physical growth. The skylight hall encourages cooperation and a sense of belonging. Bright open spaces encourage hands-on learning and promote students' experimental spirit. The space includes a 220 square meter black box theater, dance studio, classroom, science laboratory, lounge, and maker space. The library serves as a research and exploration center for the community, while the sports arena provides abundant opportunities for physical activity, team sports, and community activities.
STEAM 设计设有五个科学实验室、两个艺术教室、独立的艺术工作室、一个 3D 艺术与版画制作室以及一个室内/室外艺术画廊。STEAM 设计中心为高中生提供了在一个开放、灵活、跨学科的学习环境中,探索创造力、点燃激情并发展未来所需技能的机会。中学为 6 至 8 年级学生设计,注重学生的情感、创造力和身体成长。天窗大厅鼓励合作与归属感。明亮的开放空间鼓励动手学习,促进学生的实验精神。空间包括一个 220 平方米的黑匣子剧场、舞蹈室、教室、科学实验室、休息室和创客空间。图书馆作为社区的研究与探索中心,体育馆则提供了丰富的身体活动、团队运动和社区活动的机会。

© Matthew Millman

© Matthew Millman

STEAM - Ground Floor Plan

© Matthew Millman
These two buildings are cleverly located on both sides of a spacious sports field and green space. Their architectural styles complement each other, using bright colors and undulating curves that harmoniously interact with the grid structure. Inspired by the terraced fields of Sa Pa in Vietnam, the planting boxes highlight the curves of the architecture and are paired with local plants, adding visual interest while breaking the monotony of the building. In the wind and rain, plants with lush greenery appear more vivid. The bamboo elements inside the hall carry a commitment to local aesthetics and sustainability, while capturing natural light. The various floors of the building are like branches extending to the outside garden balcony, ultimately connecting with the surrounding river, forming a seamless connection between the educational space and nature.
这两座建筑巧妙地位于一个宽敞的运动场和绿地两侧。它们的建筑风格相得益彰,使用了明亮的色彩和起伏的曲线,与网格结构和谐互动。灵感来自越南 Sa Pa 的梯田,种植箱突出了建筑的曲线,搭配本土植物,既增添了视觉趣味,又打破了建筑的单调。风雨中,绿意盎然的植物更显生动。大厅内部的竹材元素承载着对当地美学和可持续性的承诺,并捕捉自然光。建筑的各个楼层如同枝干延伸至外部的花园阳台,最终与周围的河流连接,形成了教育空间与大自然之间的无缝联系。

© Matthew Millman

Middle School - Ground Floor Plan

© Matthew Millman

© Matthew Millman
The project is located in an island city defined by existing rivers. Two buildings are located in one of five walkable, mixed use island communities. The school is located between these small blocks, a 10 minute walk away, and is a visually appealing path. The project is located next to Dia Canal, highlighting the local characteristics and higher visibility of the area, while also being part of a large campus serving the entire city. The new facility utilizes a prominent location, with winding balconies complementing the river, providing a beautiful view of the water surface. Two buildings fill the underutilized space between existing campus buildings and maximize a new central green space.
该项目位于由现有河流定义的岛屿城市中。两座建筑坐落在五个可步行到达的、混合功能的岛屿社区之一。学校位于这些小街区之间,步行 10 分钟可到达,是一条具有视觉吸引力的路径。项目位于 Dia Canal 旁,突出了该地区的地方特色和更高的可见度,同时也是服务整个城市的大型校园的一部分。新设施利用了显著的位置,蜿蜒的阳台与河流相得益彰,提供了水面美景。两座建筑填补了现有校园建筑之间的未充分利用空间,最大化了一个新的中央绿地。

© Jonathan Mitchell