Mirae Technology High School Canteen Expansion Project/Bare Ground Architects
Mirae 科技高中食堂扩建项目 / Bare Ground Architects
空间策略与环境融合:该项目最引人注目的亮点在于其对空间策略的巧妙运用,以及对环境的积极响应。设计团队放弃了将厨房置于首位的传统做法,转而将餐厅朝向操场,这不仅为学生和教职员工创造了更宜人的用餐环境,也充分利用了周围的景观资源。通过楼梯、露台和庭院等元素的巧妙组合,设计成功地化解了建筑与操场之间的2米高度差,创造出多层次的空间体验。而宽敞的屋檐设计,则巧妙地连接了室内外空间,使人们在温暖舒适的氛围中,既能享用美食,又能欣赏到自然风光,体现了设计者对场所精神的深刻理解。
光线与空间的诗意对话:项目对光线的运用堪称点睛之笔,它不仅提升了餐厅的视觉效果,更营造出一种诗意的空间氛围。高侧窗的巧妙设计,打破了低层高带来的压抑感,增强了空间的立体感和通透性。柔和的光线从侧窗倾泻而下,形成一条引人入胜的光线带,将室内空间与外部环境巧妙地连接起来。这种光线与空间之间的互动,不仅提升了用餐的舒适度,也赋予了空间一种独特的场所精神。设计师对光线、比例和细节的精确把握,使得整个项目在功能性和美学上达到了高度统一,体现了精湛的设计功底。
建筑形态的完整与和谐:从建筑设计的角度来看,该项目对现有建筑的整合与创新也体现了设计团队的匠心。扩建部分与原有建筑在形态和比例上达到了和谐统一。高侧窗的设计与建筑基座和屋檐的狭长形状相互呼应,增强了建筑的整体性。这种设计手法不仅提升了建筑的外观美感,也反映了设计师对建筑语言的深刻理解。通过对材料、细节和比例的精心推敲,设计团队成功地打造了一个既实用又美观的校园食堂,为师生提供了一个舒适、愉悦、富有活力的用餐场所,也为同类项目提供了宝贵的借鉴意义。

© Kim Yongsu

© Kim Yongsu
The school originally planned to expand the underground cafeteria facilities with poor surrounding environment. Ideally, both the kitchen and dining room should be expanded, but due to limitations in building occupancy, we have to utilize some of the existing buildings. The school plans to set up the cafeteria in an existing building with a lower floor height (3.3 meters) and expand the kitchen. At first glance, this arrangement seems reasonable, as the kitchen requires a higher floor height to accommodate numerous mechanical equipment. However, the design team believes that it is more important to create an open space where students and faculty can naturally connect with the external space and enjoy the beautiful scenery of Mt. Bulamsan.
学校原本计划扩建地下且周边环境欠佳的食堂设施。理想情况下,厨房和餐厅都应得到扩建,但由于建筑占地率的限制,我们不得不利用部分现有建筑。学校计划将餐厅设置在层高较低(3.3 米)的现有建筑内,并扩建厨房。这一安排乍一听似乎合理,因为厨房需要较高的层高来容纳众多机械设备。然而,设计团队认为更为重要的是,要打造一个开放的空间,让学生和教职员工能够自然地与外部空间相连,并欣赏到布尔姆山(Mt. Bulamsan)的美景。

© Kim Yongsu

© Kim Yongsu

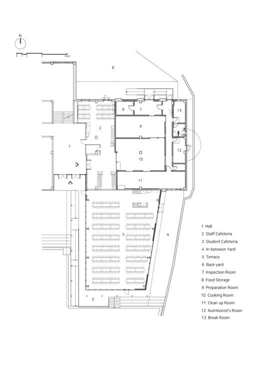
一层平面图

© Kim Yongsu

剖面图

© Kim Yongsu
The design team suggests setting up the cafeteria facing the playground instead of the kitchen. Considering the approximately 2-meter height difference between the building and the playground, the design team arranged stairs, terraces, and courtyards around the restaurant. In addition, we also built a spacious eave to cover the outdoor resting area facing south and the surrounding passage area of the building. Here, it is warm and comfortable, and through transparent windows, the indoor space and outdoor environment are naturally connected.
设计团队建议将食堂设置在朝向操场的方向,而不是厨房所在的位置。鉴于建筑与操场之间大约有 2 米的高度落差,设计团队在餐厅周边布置了楼梯、露台以及庭院。此外,我们还搭建了一处宽敞的屋檐,用以遮蔽朝南的户外休息区以及建筑周边的通行区域。这里温馨舒适,通过透明的窗户,室内空间与室外环境得以自然地连通。

© Kim Yongsu

© Kim Yongsu

剖面图

© Kim Yongsu
In addition, the design team also carefully designed the spatial volume of the restaurant. Due to the need to expand the restaurant by attaching it to the existing building, its low floor height makes it easy to create a stuffy and enclosed space. Therefore, the design team planned a high side window to align with the axis leading to the playground, in order to change the height of the restaurant. This design presents a three-dimensional sense of interior space, and sufficient lighting and ventilation also enhance the sense of space. When you walk into the restaurant from the hallway, the first thing that catches your eye is the soft light pouring down. A long strip of light extends towards the playground, visually connecting the restaurant with the external space. The high side windows with deep louvers complement the proportion of the building facade, echoing the narrow shape of the building base and eaves, further enhancing the integrity of the building form.
此外,设计团队还对餐厅的空间体量进行了精心设计。由于餐厅必须依附于现有建筑进行扩建,其层高较低,很容易形成一个闷热封闭的空间。因此,设计团队规划了一扇高侧窗,使其与通向操场的轴线相契合,以此来改变餐厅的层高。这一设计使室内空间呈现出三维立体感,充足的光线和通风也增强了空间感。当你从走廊走进餐厅时,首先映入眼帘的是柔和的光线倾泻而下。一条长长的光线带延伸向操场,在视觉上将餐厅与外部空间连接起来。带有深百叶的高侧窗与建筑立面的比例相得益彰,与建筑基座和屋檐的狭长形状相呼应,进一步提升了建筑形态的完整性。

© Kim Yongsu