XAMK Kymenlaakso University of Applied Sciences/Architects NRT+AOR Architects
XAMK Kymenlaakso 应用科学大学 / Architects NRT + AOR Architects
项目亮点:城市文脉与建筑语言的统一:这座XAMK Kymenlaakso 应用科学大学项目最显著的亮点在于其对城市文脉的深刻理解与回应。设计者巧妙地将建筑融入科特卡Kantasatama港区的历史环境中,通过借鉴仓库和工业建筑的美学元素,塑造了与周边环境和谐统一的建筑语言。特别值得称道的是屋顶的设计,它不仅是建筑的视觉焦点,更在功能上实现了遮阳、采光和太阳能板集成等多重目标。这种设计手法在建筑外观上创造出独特个性,同时赋予建筑深刻的文化内涵,充分体现了设计者对场地特性的尊重和对城市肌理的细致考量。
项目精髓:内外空间的和谐统一与功能至上的设计理念:该项目的精髓在于内外空间的和谐统一。建筑师通过陡峭的屋顶与阶梯式建筑体量的对比,营造出引人入胜的视觉效果。内部空间的设计则充分考虑了使用者的需求,图书馆中庭、开放式楼梯、定制家具等细节都旨在创造温馨舒适的学习环境。更重要的是,该项目秉持着功能至上的设计理念,在建筑结构、空间布局和技术系统上均充分考虑了灵活性和循环经济原则,满足了多学科应用科学大学的需求。这种设计理念使得建筑不仅外观美观,而且具有极高的实用性和可持续性。
项目亮点:对可持续发展的深度思考和前瞻性布局:这座建筑项目在可持续发展方面展现出卓越的前瞻性。设计团队在项目初期就预见到了建筑在未来可能面临的功能变化,因此在层高和系统规划上留出了充足的技术空间,为建筑的长期使用和升级提供了保障。混凝土框架设计150年的使用寿命也体现了对建筑耐久性的高度重视。此外,通过将检修口融入外立面的设计,也为未来建筑系统的维护和升级提供了便利。这些设计细节都体现了建筑师对可持续发展理念的深刻理解,以及对建筑全生命周期管理的前瞻性布局,使得该建筑更具时代价值。

© Kalle Kouhia

© Marc Goodwin, Archmospheres
Project Overview
Southeast Finland University of Applied Sciences (Xank) is seeking a new campus closer to the city center of Kotka for its Kotka campus.. This move aims to provide students with a more convenient location for transportation, while creating a striking building that becomes a highlight of the entire city. The new building is located in the Kantasatama port area of Kotka, and the Maritime Centre Vellamo has long been the only public building in the area. At the same time, the Event Centre Satama, designed by ALA Architects and completed in 2023, adjacent to the new facilities in Xank, has also been completed for hosting large-scale events and providing catering services. The architecture of Xank strives to collaborate with the Satama Activity Center in design, allowing the two buildings to utilize each other's functions and share multiple spaces.
项目概况
东南芬兰应用科学大学(Xamk)为其科特卡校区寻求一处更靠近科特卡市中心的新校址。此举旨在为学生提供一个交通更为便利的地点,同时打造一座在建筑上引人注目的建筑,使其成为整个城市的亮点。新建筑选址于科特卡的坎塔萨塔马(Kantasatama)港区,长期以来,海事中心维拉莫(Maritime Centre Vellamo)一直是该区域唯一的公共建筑。与此同时,与 Xamk 新设施相邻的萨塔马活动中心(Event Centre Satama,由 ALA 建筑师事务所设计,于 2023 年建成)也已落成,用于举办大型活动并提供餐饮服务。Xamk 的建筑在设计上力求与萨塔马活动中心协同合作,使两座建筑能够相互利用彼此的功能,并共享多个空间。

© Kalle Kouhia

© Kalle Kouhia

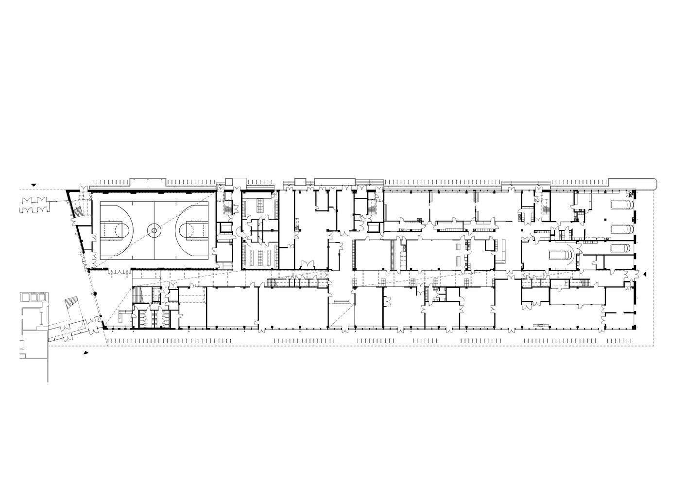
一层平面图

© Marc Goodwin, Archmospheres
Urban Landscape
Until recently, the Kantasatama port area in Kotka has been primarily focused on maritime and port operations.. The volume and architectural design of newly constructed educational buildings fully consider this historical background. The Maritime Centre Vellamo is the first large-scale sculptural building in the region, and the newly built Xank Building and Event Centre Satama continue this tradition by adopting bold and simple architectural styles that draw aesthetic elements from warehouse and industrial port buildings. In these buildings, the roof has become a key design element. Each building has a unique roof design, but together they form a harmonious and unified architectural language. The Xamk building features a massive, foldable double pitched roof that provides shade for the stepped interior space. The roof height increases towards the Satama activity center, while creating the best sloping surface for the integration of solar panels. A four meter wide overhang extends from the south facing eaves to provide shade for the indoor space and prevent overheating. The exterior of the building is made of metal and glass materials. The aluminum cladding presents a wavy pattern, reminiscent of a port warehouse, creating a dynamic light and shadow reflection effect, adding vitality to the originally simple exterior facade.
城市景观
直至不久前,科特卡的坎塔萨塔马(Kantasatama)港区一直以海事和港口运营为主。新建教育建筑的体量与建筑设计均充分考虑了这一历史背景。海事中心维拉莫(Maritime Centre Vellamo)是该区域首座大型雕塑式建筑,而新建的 Xamk 大楼与萨塔马活动中心(Event Centre Satama)延续了这一传统,它们采用大胆、朴素的建筑风格,汲取了仓库和工业港口建筑的美学元素。在这些建筑中,屋顶成为了关键的设计元素。每座建筑都拥有独特的屋顶设计,但它们共同构成了一种和谐统一的建筑语言。Xamk 大楼拥有一个巨大的、折叠式的双坡屋顶,为内部的阶梯式空间提供了遮蔽,屋顶高度向萨塔马活动中心方向递增,同时为太阳能板的集成创造了最佳的倾斜面。朝南的屋檐延伸出一个四米宽的悬挑部分,为室内空间提供遮阳,防止过热。建筑外立面采用了金属和玻璃材质。铝制包层呈现出波浪形的图案,让人联想到港口仓库,营造出富有动感的光影反射效果,为原本简约的外立面增添了活力。

© Marc Goodwin, Archmospheres
Architectural Design
The architectural concept of this building is based on the interaction between the steeply sloping protective roof and the stepped building volume below it.. The exterior facade of the building features alternating rows of strip windows and large areas of aluminum panels with subtle wavy contours. The shape of the roof is emphasized through its connection with the horizontal elements of the facade (connected by tall glass walls). Entering the interior of the building, the stepped space that progresses layer by layer contrasts sharply with the bold exterior design. Although the library lobby is grand in scale, it creates a warm and private atmosphere through custom designed embedded furniture, open staircases connecting different floors, and exposed steel structures visible from the exterior facade. The wave pattern of the aluminum cladding on the exterior of the building is echoed internally in the form of sound-absorbing PET felt wall panels. Entering the classroom from the spacious atrium, the overall color scheme has transitioned from white to warm oak veneer. In the teaching space, building systems and technical facilities are deliberately exposed.
建筑设计
该建筑的建筑理念基于陡峭倾斜的保护性屋顶与其下方阶梯式建筑体量之间的相互作用。建筑外立面采用了交替排列的条形窗户和带有微妙波浪轮廓的大面积铝制面板。屋顶的形状通过其与外立面水平元素(由高大的玻璃墙连接)的衔接而得到强调。步入建筑内部,层层递进的阶梯式空间与大胆的外部造型形成了鲜明对比。图书馆大厅虽然规模宏大,但通过定制设计的嵌入式家具、连接不同楼层的开放式楼梯以及从外立面可见的暴露式钢结构,营造出了一种温馨而私密的氛围。建筑外部铝制包层的波浪图案在内部以吸音 PET 毛毡墙板的形式得到了呼应。从开阔的中庭步入教室,整体色彩方案也从白色过渡到了温暖的橡木饰面。在教学空间中,建筑系统和技术设施被刻意暴露在外。

© Kalle Kouhia

剖面图

© Kalle Kouhia
Functional Design
The design of this building aims to meet the needs of a multidisciplinary university of applied sciences, promoting shared use and interaction within Xank, with the Event Centre Satama, and with the broader community.. Flexibility and circular economy principles are fully considered in the design of building structures, spatial layouts, and technical systems. Despite changes in the number of floors due to the stepped design, the architectural layout remains reasonable. The rectangular classroom design facilitates flexible reconfiguration in the short, medium, and long term. The concrete frame design of the building has a service life of up to 150 years, and considering this time span, the functionality of the building is likely to change in the future. This was foreseen during the design process, thus providing ample technical space for floor height and system planning. The integration of the inspection port into the exterior design provides convenience for the upgrade of future building systems.
功能设计
该建筑的设计旨在满足一所多学科应用科学大学的需求,促进 Xamk 内部、与萨塔马活动中心(Event Centre Satama)以及更广泛社区之间的共享使用和互动。在建筑结构、空间布局以及技术系统的设计中,均充分考虑了灵活性和循环经济原则。尽管由于阶梯式设计,楼层数量有所变化,但建筑平面布局依然保持合理。矩形的教室设计便于在短期、中期和长期内进行灵活的重新配置。该建筑的混凝土框架设计使用寿命长达 150 年,考虑到这一时间跨度,建筑的功能在未来很可能会发生变化。设计时已预见到了这一点,因此提供了充裕的层高和系统规划的技术空间。将检修口融入外立面的设计,为未来建筑系统的升级提供了便利。

© Kalle Kouhia

剖面图

© Kalle Kouhia
The building has a maximum of six floors. The ground floor is equipped with a sports hall and laboratory classrooms that require heavy maintenance. There is an open library atrium on the second floor, connected to the teaching and work areas on the upper floor through a stepped space. In order to promote collaboration between different research fields, the building also incorporates multiple informal gathering spaces presented in the form of open indoor staircase platforms. The top level also features a series of rooftop gardens that can be used for teaching, public events, and celebrations.
该建筑最多有六层。地面层设有体育馆和需要重型维护的实验室教室。二楼设有一个开放的图书馆中庭,通过阶梯式空间与上层的教学和工作区域相连。为了促进不同研究领域之间的协同合作,建筑内还融入了多个以开放式室内阶梯平台形式呈现的非正式聚会空间。最上层还设有一系列屋顶花园,这些花园可用于教学、公共活动以及庆祝活动。

© Mika Huisman