Zurich Architecture Vocational School/Gunz&K ü nzle Architekt * innen
苏黎世建筑职业学校 / Gunz & Künzle Architekt*innen
空间与功能的最大化利用:苏黎世建筑职业学校项目展现了在有限场地内最大化空间利用的精湛技巧。建筑师巧妙地将教室高效布局,同时并未牺牲公共空间的质量。特别是首层(piano nobile)的设计,它不仅承担了结构功能,更创造了一个灵活开放的“景观”,为学校提供了举办展览、活动和建筑工坊的理想场所。这种设计理念体现了对城市环境的尊重,同时满足了学校教育和社区共享的需求。项目通过对建筑体量的精心控制,塑造了内部空间的丰富性和多样性,为使用者带来了舒适体验。
结构与空间的巧妙结合:该项目在结构设计上展现出卓越的创新。主楼层(piano nobile)的悬挑设计,将建筑的结构与空间功能完美结合,创造了独特的视觉效果。底层体育馆的延伸设计,使得建筑在垂直方向上更具张力,也提升了整体的实用性。项目的混凝土结构为建筑提供了坚固的框架,同时也为未来空间的灵活改造提供了可能性。这种结构与空间的互动,使得建筑不仅仅是一个静态的实体,更是一个动态的、可演变的场所,完美契合了职业学校的需求。
可持续性与灵活性的统一:苏黎世建筑职业学校项目不仅关注建筑本身的美学和功能性,更注重其可持续发展和长期使用价值。建筑材料的选择、多功能家具的配置以及可移动的隔断,都体现了建筑师对灵活性和适应性的追求。建筑组件的设计,允许使用者根据自身需求对空间进行改造和演变,这种设计理念体现了对未来使用的预见性和对使用者体验的尊重。项目最终呈现的,是一种既有建筑美学,又具有可持续性,并能适应未来变化的建筑模式。

© Federico Farinatti

© Federico Farinatti
This newly built vocational school for the construction industry is located in the central area of Zurich, Switzerland. Gunz & K ü nzle Architects designed the building with the aim of maximizing the number of classrooms while creating valuable public spaces for the surrounding community.
这所新建的建筑行业职业学校坐落于瑞士苏黎世市中心区域。Gunz & Künzle 建筑事务所对该建筑进行了设计,旨在最大化教室数量,同时为周边社区打造宝贵的公共空间。

© Federico Farinatti

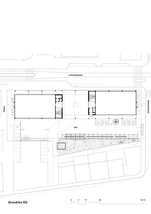
一层平面图

© Federico Farinatti
This slender building follows the direction of the street, creating a spacious courtyard that is connected to the public functional area on the first floor of the school. This main floor (piano nobile, which can be understood as a floor that combines structural and spatial functions, similar to a truss frame structure) is suspended above the sports hall that extends from the basement to the first floor. Although the upper floors of the classroom are efficiently arranged in a grid like pattern, the main floor creates an open spatial landscape that the school can flexibly utilize according to its needs.
这座修长的建筑顺应街道走向,打造出一个宽敞的庭院,该庭院与学校一楼的公共功能区域相连通。这一主楼层(piano nobile,此处可理解为兼具结构与空间功能的楼层,类似桁架框架结构)悬挑于从地下室延伸至一楼的体育馆之上。尽管教室的上层楼层以网格状高效布局,但主楼层却形成了一片开阔的空间景观,学校可根据需求灵活利用。

© Federico Farinatti

剖面图

© Federico Farinatti
Durable materials, multifunctional furniture, and curtain style partitions make this space suitable for hosting exhibitions, events, and even practical architectural workshops. The concrete structure of this project provides a stable framework that can be filled and refined according to demand.
坚固耐用的材料、多功能家具以及窗帘式隔断使得该空间能够承办展览、举办活动,甚至开展实用的建筑工坊课程。这一项目的混凝土结构提供了一个稳固的框架,可根据需求进行填充和细化完善。

© Federico Farinatti

剖面图

© Federico Farinatti

© Federico Farinatti
This set of building components not only provides a sustainable development strategy, but also constructs a rich, diverse, and unique architectural vocabulary that allows for flexible application and transformation. The result is a type of architecture that is not limited to predetermined images, but rather takes the construction process and the user's process of transforming the space according to their own needs as its core theme.
这套建筑组件既提供了一种可持续发展策略,又构建了一套丰富多元且独具特色、同时允许灵活运用与改造的建筑语汇。其成果是一种不拘泥于预设形象的建筑,而是将建造过程和使用者根据自身需求对空间的改造过程本身作为其核心主题。

© Federico Farinatti