Hourglass Building/Dam&Partners Architect
沙漏大楼 / Dam & Partners Architecten
结构与空间概念的创新:沙漏大楼最令人印象深刻的是其独特的形态和空间策略。设计团队巧妙地将建筑命名为“沙漏”,并以此为灵感,创造了顶部和底部宽阔、中间收窄的独特造型。这种设计不仅仅是视觉上的创新,更是一种对空间利用的优化。宽敞的中庭位于建筑的两端,促进了垂直方向上的连接,而收窄的中间部分则有助于控制建筑的体量,并为办公和居住空间提供了更合理的布局。这种设计手法也使得建筑在城市景观中脱颖而出,成为一个引人注目的标志性建筑。
材料与建造工艺的精湛:该项目在材料选择和建造工艺上展现了卓越的品质。建筑外立面采用了倾斜的天然石材与玻璃的结合,这种设计语言赋予了建筑永恒的质感和国际化的现代美学。浅色石材的运用,不仅提升了建筑的宏伟感,也最大程度地利用了自然光。同时,预制混凝土面板采用定制切割的白色砂岩包裹,确保了外立面的无缝组装,接缝宽度被控制在极小的范围内,展现了高超的建造工艺和对细节的极致追求。这种精细的建造标准也提升了建筑的整体品质。
功能与城市环境的和谐:沙漏大楼的设计充分考虑了其与周围城市环境的融合。建筑的功能布局经过精心规划,集办公、居住、零售和公共空间于一体,极大地丰富了区域的活力。L形的建筑体量面向公共广场,巧妙地引导人流,活跃的大堂和商业空间面向街道,而服务入口则被隐蔽设置。这种设计策略不仅优化了建筑内部的功能组织,更促进了城市空间的互动。同时,项目获得高层建筑和城市人居理事会的卓越奖,也证明了其对城市设计和可持续发展的贡献。

© Sebastian van Damme

© Sebastian van Damme
The Hourglass Building is a striking addition to the Zuidas district of Amsterdam, serving as a natural connection between the existing Zuidas area and the emerging knowledge zone, which is supported by Vrije Universiteit (VU), its medical center (AUmc), and Amsterdam South Station. This multi-purpose high-rise building seamlessly blends with its urban environment, integrating offices, long-term apartments, retail spaces, as well as public restaurants and cafes. The Hourglass Building is located across from the new courthouse and houses one of the largest law firms in the country. Its multifunctional projects and elegant design inject vitality into the area.
沙漏大楼是阿姆斯特丹祖达斯区(Zuidas district)引人注目的新添建筑,它作为现有祖达斯区域与新兴知识区之间的自然连接,而知识区则以自由大学(Vrije Universiteit,简称 VU)、其医学中心(AUmc)和阿姆斯特丹南站为依托。这座综合用途的高层建筑与其城市环境完美融合,集办公、长租公寓、零售空间以及公共餐厅和咖啡馆于一体。沙漏大楼位于新法院对面,内驻该国最大的律师事务所之一,其多功能项目和优雅设计为该区域注入了活力。

© Sebastian van Damme

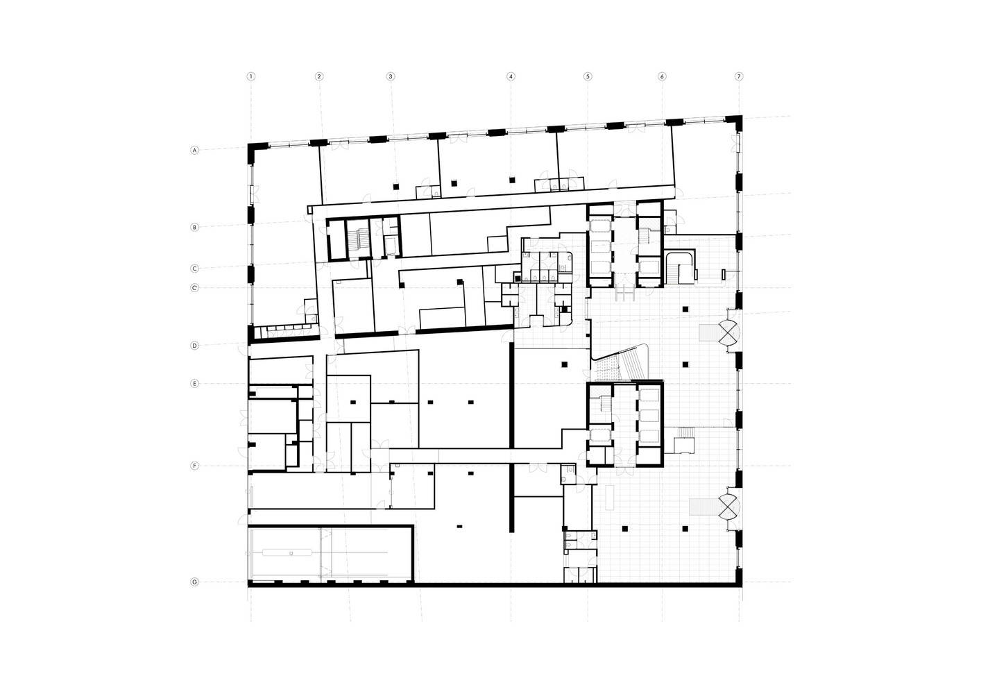
1st Floor Plan

© Sebastian van Damme
Architectural Design and Inspiration
The name and unique hourglass shape of this building are derived from its purposeful design.. Inspired by the geometric sculptures of Romanian artist Constantin Br â ncu ș i, this building combines form and function. The outline of the hourglass building reflects an innovative spatial concept: spacious atriums are located on the top and bottom floors, connected by a narrowed middle section to effectively utilize space and promote connectivity between the smaller atrium and the open plan extending from the exterior wall to the exterior wall.
建筑设计与灵感
该建筑的名字和独特的沙漏形状源自其目的性设计。受罗马尼亚艺术家康斯坦丁·布朗库西(Constantin Brâncuși)几何雕塑的启发,该建筑兼具形式与功能。沙漏大楼的轮廓反映了一种创新的空间概念:顶部和底部楼层设有宽敞的中庭,通过收窄的中间部分相连,从而有效利用空间,并促进较小中庭与从外墙延伸至外墙的开放式平面之间的连通性。

© Sebastian van Damme
Architectural Appearance
The architectural appearance is exquisite and artistic.. The inclined natural stone surface intersects with the glass cut, creating an eternal and international aesthetic. The light colored stone cladding and warm materials emphasize the grandeur of the building, while the vertical positioning of the windows optimizes the reflection effect. Prefabricated concrete panels are wrapped in custom cut white sandstone to ensure seamless assembly. The seam width has been reduced to a maximum of 12 millimeters, enhancing the exquisite and seamless appearance of the building.
建筑外观
建筑外观精致且富有艺术性。倾斜的自然石面与玻璃切口相交,营造出一种永恒且国际化的美学。浅色的石材覆层和温暖的材质强调了建筑的宏伟,而窗户的垂直定位则优化了反射效果。预制混凝土面板采用定制切割的白色砂岩包裹,确保无缝组装。接缝宽度减少至最大 12 毫米,提升了建筑精致、无缝的外观。

剖面图

© Sebastian van Damme
Integration of Function and City
The hourglass building, with its L-shaped footprint facing a public square, embodies thoughtful urban design.. The active lobby and commercial space face north and east, attracting pedestrians, while the service entrance is cleverly located on the west side. By integrating public, residential, and commercial functions, this design enriches the dynamic features of the Zudas district and promotes the growth of the knowledge area.
功能与城市融合
沙漏大楼以其 L 形的足迹面向一个公共广场,体现了深思熟虑的城市设计。活跃的大堂和商业空间朝北和朝东,吸引行人,而服务入口则巧妙地设置在西侧。通过整合公共、住宅和商业功能,该设计丰富了祖达斯区的动态特征,并促进了知识区的增长。

© Sebastian van Damme
Recognition and Innovation
The innovative design principles of the hourglass building have been awarded the Excellence Award by the Council on Tall Buildings and Urban Habitat.. Its geometric art, high-quality prefabrication technology, and careful attention to details have set a new benchmark for multifunctional high-rise buildings in urban environments. With its iconic design and multifunctional features, the hourglass has become a symbol of timeless architecture and urban refinement, perfectly aligned with the vision of Amsterdam's Zudas district.
认可与创新
沙漏大楼的创新设计原则获得了高层建筑和城市人居理事会(Council on Tall Buildings and Urban Habitat)颁发的卓越奖。其几何艺术、高质量的预制技术和对细节的精心关注为城市环境中的多功能高层建筑树立了新的标杆。凭借其标志性的设计和多功能特性,沙漏成为永恒建筑和城市精致性的象征,与阿姆斯特丹祖达斯区的愿景完美契合。