乐图雅小屋/麦克唐纳建筑+设计
Chalet Le Thuya / MacDonald Architecture + Design
项目概览与环境融合:乐图雅小屋项目最显著的亮点在于其与周围自然环境的无缝融合。建筑师Joshua MacDonald巧妙地利用了场地特有的元素,如岩壁、森林和河流,使小屋仿佛从环境中生长出来。设计理念的核心在于“与自然和谐”和“卓越设计”,这体现在建筑的每一个细节中。项目选址于拉诺迪尔地区的乐普罗洪河畔,风景如画,为设计提供了得天独厚的条件。这种融合不仅体现在外观上,也体现在对自然光的利用和对周围景观的视野保留,营造出一种沉浸式的自然体验。这体现了建筑师对环境的尊重和对可持续设计的追求。
设计理念与空间布局:项目的精髓在于其简洁而优雅的设计语言。建筑师摒弃了过度的装饰,强调空间的功能性和与自然的联系。开放式厨房和浴室等核心空间的设计都充分考虑了采光和景观视野,增强了室内与室外的互动。麦克唐纳的设计理念受到他在麦吉尔大学和滑铁卢大学教育背景的影响,专注于可持续建筑和创造温馨空间。所用材料的选择也体现了环保理念,与周围环境相协调。小屋的空间布局旨在为住客提供一个放松身心的场所,无论是炉火旁的小憩,还是在自然背景下阅读,都体现了对生活品质的追求。
细节处理与用户体验:乐图雅小屋项目在细节处理上体现了卓越的设计水平。从照片中可以看出,建筑师精心挑选了材料,强调其耐用性和自然美感。大窗户的设计不仅仅是为了采光,更是为了创造与周围景观的持续连接,让住客时刻感受到大自然的存在。小屋的设计旨在满足四位客人的需求,提供舒适的卧室、现代化的浴室和露台,营造出亲密而温馨的氛围。这种设计理念并非仅仅关注建筑本身,而是着眼于用户的体验,致力于打造一个能让人放慢脚步、反思和恢复活力的场所。这种以人为本的设计理念是项目成功的关键所在。

© Joshua MacDonald

© Joshua MacDonald
建筑师提供的文字描述。乐图雅小木屋:圣梅里埃-德拉能源中心的宁静圣地-乐图雅小屋坐落在风景如画的拉诺迪尔地区,坐落在乐普罗洪河畔。这个独特的建筑项目由建筑设计师Joshua MacDonald设计,体现了自然度假的精髓,同时与独特的自然环境无缝融合。凭借其雄伟的岩壁、成熟的混交林和舒缓的河流瀑布,这个非凡的位置为设计和舒适度都超出预期的创作提供了背景。
Text description provided by the architects. Le Thuya Chalet: A Sanctuary of Serenity in the Heart of Sainte-Émélie-de-l'Énergie - In the picturesque region of Lanaudière, nestled along the banks of the Le Prohon River, lies Chalet Le Thuya. This unique architectural project, designed by architectural designer Joshua MacDonald, embodies the essence of a nature retreat while seamlessly blending into its exceptional natural surroundings. With its imposing rock face, mature mixed forest, and the soothing cascade of the river, this remarkable location served as the backdrop for a creation that surpasses expectations in both design and comfort.

© Joshua MacDonald

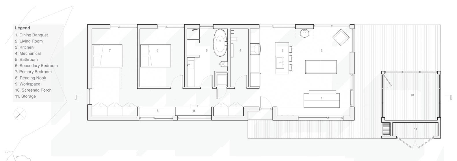
Plan

© Joshua MacDonald

© Joshua MacDonald
从自然和建筑的融合中诞生的项目-Le Thuya小屋的故事始于一块罕见的土地的发现,在那里,森林的宁静和隐私与Sainte-Émélie-de-l'Énergie自然景观的原始美景融为一体。受到这一迷人环境的启发,业主们试图创造一个不仅仅是住宿的空间,而是为那些寻求与自然重新联系的人提供真正身临其境的体验。小屋的设计围绕两个主要原则:与自然环境的和谐和卓越的设计。每一个细节都经过精心设计,提供精致的简约、毫不妥协的热情好客和舒适,令人沉思和恢复活力。其结果是一个温暖、温馨的空间,非常适合在任何季节放松身心。
A Project Born from the Fusion of Nature and Architecture - The story of Chalet Le Thuya begins with the discovery of a rare plot of land, where the tranquility and privacy of the forest blend with the raw beauty of Sainte-Émélie-de-l'Énergie's natural landscape. Inspired by this enchanting setting, the owners sought to create a space that would not just be a mere accommodation, but a truly immersive experience for those seeking to reconnect with nature. The design of the chalet was centered around two main principles: harmony with the natural environment and excellence in design. Every detail was carefully crafted to offer refined simplicity, uncompromising hospitality, and comfort that invites contemplation and rejuvenation. The result is a warm, welcoming space, perfect for relaxation in any season.

© Joshua MacDonald
设计:简洁与优雅,与景观和谐相处——乔舒亚·麦克唐纳在麦吉尔大学和滑铁卢大学的教育塑造了他的设计理念,在Chalet Le Thuya得到了充分的体现。这位建筑设计师专注于可持续建筑和营造温馨的空间,巧妙地融入了加强室内外联系的设计元素。大窗户让房间充满自然光,同时可以欣赏到森林和河流的壮丽景色,与小屋迷人的环境建立了持续的联系。所使用的材料因其耐用性和自然美感而被选中,与环保方法相一致,反映了对保护当地环境的承诺。设计的简洁性在整个空间中都很明显,从开放式厨房——家的真正核心——到浴室,浴室可以欣赏到森林的宁静景色。
Design: Simplicity and Elegance in Harmony with the Landscape - Joshua MacDonald's design philosophy, shaped by his education at McGill University and the University of Waterloo, is fully realized in Chalet Le Thuya. Specializing in sustainable construction and the creation of welcoming spaces, the architectural designer skillfully incorporated design elements that strengthen the connection between the indoors and outdoors. Large windows flood the rooms with natural light while offering breathtaking views of the forest and river, creating a constant connection with the enchanting surroundings of the chalet. The materials used, selected for their durability and natural aesthetic, align with an eco-friendly approach, reflecting a commitment to preserving the local environment. The simplicity of the design is evident throughout the space, from the open kitchen—the true heart of the home—to the bathroom, which offers calming views of the forest.

© Joshua MacDonald

Section

© Joshua MacDonald
大自然爱好者的亲密天堂-乐图雅小屋的设计是在两间舒适的卧室里欢迎四位客人,配有现代化的浴室和两个露台,其中一个露台有盖,可以在任何季节享受户外活动。无论是在炉火旁的宁静时刻,还是在大自然的背景下进行的宁静阅读,还是完全沉浸在拉诺迪尔的野性美景中,这座小屋都提供了一种远离日常生活喧嚣的独特体验。这个亲密的度假胜地不仅仅是一个停留的地方,更是一个在大自然的简单中放慢脚步、反思和恢复活力的邀请。
An Intimate Haven for Nature Lovers - Chalet Le Thuya is designed to welcome four guests in two comfortable bedrooms, with a modern bathroom and two terraces, one of which is covered, allowing enjoyment of the outdoors in any season. Whether it's a quiet moment by the fire, a peaceful read with nature as the backdrop, or full immersion in the wild beauty of Lanaudière, this chalet offers a unique experience far from the hustle and bustle of daily life. This intimate retreat is more than just a place to stay—it's an invitation to slow down, reflect, and rejuvenate in the simplicity of nature.

© Joshua MacDonald