莱克雷餐饮公司
Lekkeray Eatery / pfeffermint AG
设计理念与空间营造:该项目最引人注目的亮点在于其设计理念与空间营造的巧妙结合。建筑师巧妙地将停车场明亮、简约的风格延续至小酒馆内部,通过大面积的混凝土表面与白色钢结构元素的运用,营造出一种既工业化又充满现代感的空间氛围。同时,设计师并未止步于此,而是精心挑选了来自地中海沿岸的多种材料,例如葡萄牙的软木、意大利的陶土瓷砖以及土耳其的水磨石,赋予了空间温暖、舒适的质感,仿佛将地中海的阳光与微风带入了室内。这种对比鲜明的材料运用,使整个空间既具备了工业感,又充满了人文关怀,体现了设计师对细节的极致追求。
材料选择与地域特色:项目的精髓在于对材料的精准把握和对地域特色的巧妙诠释。设计师在材料选择上颇具匠心,通过葡萄牙的软木、意大利的陶土瓷砖和土耳其的水磨石等材料,营造出浓郁的地中海风情。这些材料不仅赋予了空间独特的视觉效果,更传递出温暖、自然的生活气息,与小酒馆所提供的“天然产品”相呼应。此外,设计师还通过绿蓝色的色调,营造出轻盈、清新的氛围,仿佛地中海的微风拂过,使整个空间更具活力和吸引力。这种对材料的精心选择和对地域特色的深度挖掘,使项目在众多同类建筑中脱颖而出,形成独特的视觉语言。
多功能性与用户体验: 项目在功能性方面展现出极高的灵活性,体现了设计师对用户体验的深刻理解。白天,小酒馆提供新鲜的午餐,并设有便捷的商店区;夜晚,它又摇身一变,成为一个多功能活动空间。这种灵活的空间布局,不仅满足了不同时间段的使用需求,也为用户提供了丰富的活动选择。外部空间的设计也颇具亮点,深绿色的家具、木条凳和彩色遮阳伞,营造出一个轻松惬意的户外休闲区。这些细节设计都体现了设计师对用户体验的重视,使得Lekkeray Eatery不仅仅是一个餐饮场所,更是一个充满活力和互动性的社交空间,满足了现代人对高品质生活方式的需求。

© Nadine Kägi

© Nadine Kägi
建筑师提供的文字描述。Lekkeray Eatery于2022年夏天在楚格北部移动中心一楼开业,这是一个拥有600多个停车位的未来停车场,紧邻楚格技术集群。Pfeffermint赢得了家族企业在湛的第一家小酒馆的竞争,此后在室内设计、品牌和品牌强化方面为Lekkeray提供了支持。
Text description provided by the architects. The Lekkeray Eatery opened in the summer 2022 on the ground floor of the Mobility Hub Zug North, a car park of the future with over 600 parking spaces and directly adjacent to the Tech Cluster Zug. Pfeffermint won the competition for the family-owned company's first bistro in Cham and has since supported Lekkeray in the areas of interior design, branding and brand reinforcement.

© Nadine Kägi

© Nadine Kägi

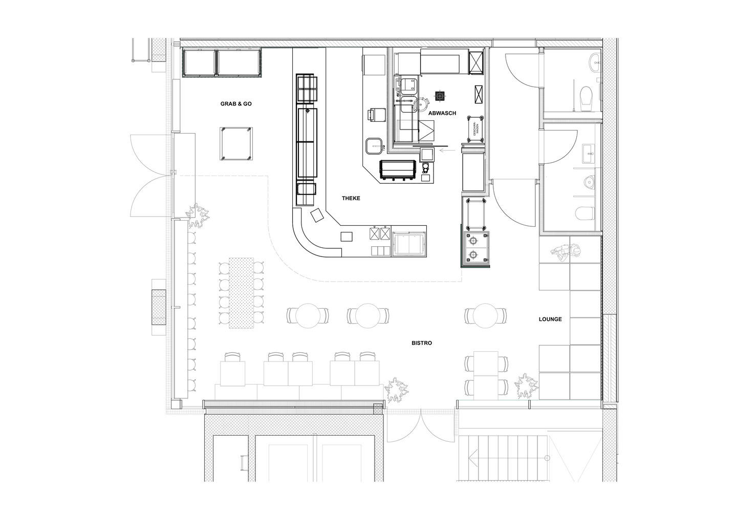
Plan

© Nadine Kägi
停车场明亮而简约的建筑风格在小酒馆中延续,有着宽大的混凝土表面和白色的钢结构元素,使工业风格与所选的其他材料产生了令人兴奋的相互作用。材料的选择让我们踏上了地中海沿岸的旅程:葡萄牙的软木带来了南方的温暖,意大利的陶土瓷砖构成了宽敞的柜台,土耳其的水磨石构成了诱人的团体桌的基础,所有这些都被绿蓝色框架起来,就像地中海的微风一样轻盈清新。类似于Lekkeray Eatery多样化产品系列中的成分:具有多种口味的天然产品。
The bright and minimalist architecture of the car park continues in the bistro with generous concrete surfaces and white steel construction elements, resulting in an exciting interplay of industrial accents with the other materials chosen. The choice of materials takes us on a journey along the Mediterranean coast: the warmth of the south is brought in with cork from Portugal, terracotta tiles from Italy frame the generous counter, terrazzo from Turkey forms the basis for an inviting group table, and all of this is framed in a green-blue that is as light and fresh as a Mediterranean breeze. Analogous to the ingredients found in the Lekkeray Eatery's diverse product range: Natural products with lots of flavors.

© Nadine Kägi

© Nadine Kägi
宽敞的午餐柜台提供新鲜的碗、夹层盘和奶酪三明治。小商店区是一个有健康食品可以带走的停靠站。在外面,pfeffermint用深绿色的家具、热浸镀锌的木条凳和五颜六色的遮阳伞创造了一个小绿洲。座位周围是郁郁葱葱的陶土花盆。晚上,Lekkeray Eatery变成了一个100平方米的多功能空间,可用于举办讲座、开胃酒和塔沃拉塔等活动。只需几个简单的步骤,休息室就可以变成一个舞台或一个带酒吧桌的开胃酒区,或者这些桌子可以很快地推到一起形成一张长桌。
Fresh bowls, mezze platters and cheese sandwiches are available at the generous lunch counter. The small shop area comes up trumps as a pit stop with healthy treats to take away. Outside, pfeffermint has created a small oasis with dark green furniture, hot-dip galvanized wooden slatted stools and colorful parasols. The seating is framed by lush planting in terracotta pots. In the evening, the Lekkeray Eatery transforms into a multifunctional space of 100 square meters that can be used for events such as lectures, aperitifs and tavolatas. The lounge can be transformed into a stage or into an aperitif area with bar tables in a few easy steps, or the tables can be pushed together to form a long table in no time at all.

© Nadine Kägi