布莱顿平房/生物环境解决方案
Blyton Bungalow / Biome Environmental Solutions
可持续设计理念的典范:该项目最引人注目的亮点在于其对可持续性的深刻理解和实践。建筑师选择共享住宅模式,显著减少了对生态敏感地区的建筑干预。这种策略不仅节约了资源,还最大限度地降低了对自然环境的破坏。项目的选材也体现了对可持续性的承诺,红土墙体、太阳能电池板和生物质燃料的使用,都是对当地资源和可再生能源的巧妙运用。此外,对当地工人技能的考虑,也体现了对社区的尊重和支持,这种整体的设计理念是项目成功的关键。
空间布局与功能设计的巧妙结合:“布莱顿平房”的空间布局融合了传统与现代的智慧。庭院住宅的设计营造了私密而舒适的居住体验,同时促进了室内外的交流。共享住宅的概念,将每个卧室独立进入的设计与公共生活空间的接近性完美结合,既满足了居住者的个性需求,又促进了集体生活的互动。此外,项目采用了类似当地宅基地的布局,从一个小房子开始,随着需求增长逐步扩建,这种有机的发展模式更具灵活性,也与自然环境相协调,体现了建筑师对当地文化和生活方式的尊重。
材料与技术的创新与本土化:项目的精髓在于其对本土材料和技术的创新性运用。红土墙体的使用,不仅体现了对当地资源的利用,也赋予了建筑独特的地域特色。钢丝网水泥屋顶的采用,展现了对现代技术的灵活运用,同时也考虑到生产的便捷性。内部装饰的简洁和实用性,与周围的自然环境相得益彰,避免了过度装饰带来的资源浪费。项目在细节上对可持续性的关注,包括对生物质燃料的使用和景观设计,都体现了建筑师对环境的深刻理解和对可持续设计的全面实践,值得称赞。

© Ravi Umraniya

© Ravi Umraniya
建筑师提供的文字描述。该地点位于卡纳塔克邦Coorg区Naladi村的一个大型咖啡庄园内。该建筑是更大的荒野集体开发项目的一部分。当现在的业主接管这个庄园时,部分庄园已经被大自然接管了。平房的遗址是在这片荒野中一个旧员工宿舍的废墟上发现的。
Text description provided by the architects. The site is located in a large coffee estate in Naladi village, Coorg district in Karnataka. The building is a part of a larger wilderness collective development project. When the present owners took over this estate, parts of the estate had been taken over by nature. The site of the bungalow was discovered within this wilderness at the ruins of an old staff quarters.

© Ravi Umraniya
布莱顿平房是一个6卧室的共享住宅,供集体成员分时使用。共享住宅的想法是减少生态敏感地区的建筑量。每个成员建造自己的房子都会导致该地的地形、水文和生态发生变化,对于一年只使用几天的房子来说,这似乎是不合理的。
The Blyton bungalow is a 6-bedroom shared home that is used by members of the collective on a time-share basis. The idea of a shared home was to reduce the amount of construction on a site that is ecologically sensitive. Each member building their own home would have led to changes in the topography, hydrology, and ecology of the place, which did not seem justified for a home that is used for a few days a year.

© Ravi Umraniya
简报还包括共享生活空间和一个用于加热食物和准备快餐的食品储藏室。开发商的愿望是以当地宅基地的方式开发布局,从建造一个小房子开始,随着家庭及其需求的增长,周围会增加其他建筑,最终形成一组建筑。这种安排使我们可以独立进入每个卧室,同时保持与公共生活空间的接近。
The brief also included shared living spaces and a pantry for warming food and preparing short eats. The aspiration from the developers was to develop the layout in the manner of the local homesteads, which starts with the construction of a small home, and other buildings being added around as the family and its needs grow, eventually forming a cluster of buildings. This arrangement afforded that we could allow independent access to each of the bedrooms while maintaining proximity to the common living spaces.

© Ravi Umraniya

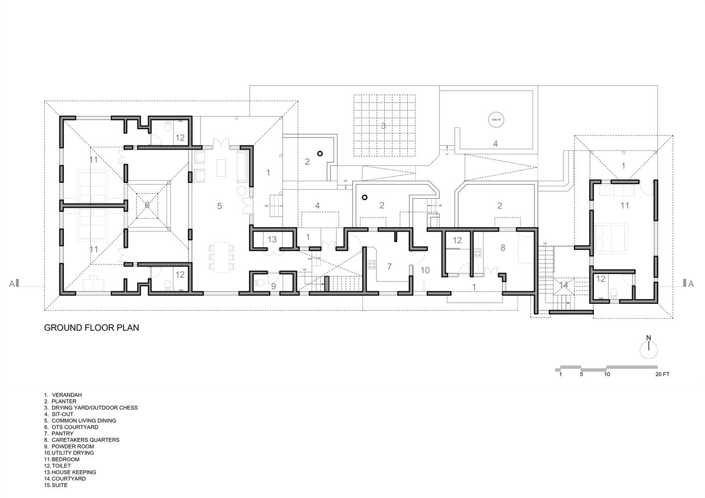
Ground Floor Plan

© Ravi Umraniya
主楼是一座庭院住宅,有两间卧室,客厅和餐厅围绕庭院布置。一个有天窗的无窗楼梯将主楼与服务区隔开,服务区包括餐具室、商店和看护室。此块具有独立的外部访问权限。楼梯通向两个房间,一个是客厅和餐厅顶部的套房,另一个是位于厨房员工室上方的带夹层空间的卧室。最后两间卧室被布置成两层楼的户外厕所,与主楼由一个外部庭院隔开。
The main house is a courtyard home with two bedrooms and the living and dining spaces arranged around the courtyard. A skylit, windowless staircase block separates the main house from the service block which contains the pantry, store, and caretaker's quarters. This block has independent external access. The staircase leads to two rooms, one a suite on top of the living-dining and the other to a bedroom with a mezzanine space, which is located above the kitchen-staff room. The last two bedrooms are arranged as an outhouse with two floors, separated from the main block by an external courtyard.

© Ravi Umraniya
材料和技术的选择是由生态问题和实用主义驱动的。这始于考虑当地工人和技能,导致选择红土作为墙体材料。屋顶是通过Master Plannery的服务完成的,这是一家专门从事钢丝网水泥工作的机构,其生产设施距离现场只有几个小时的路程。
The choice of materials and techniques was one driven by ecological concerns and pragmatism. This began by considering local workers and skills, leading to the choice of laterite as a walling material. The roof was done using the services of Master Plannery, an agency that specializes in ferrocement work and has a production setup a couple of hours away from the site.

© Ravi Umraniya
内部装饰简单而简朴,这个地方的家具刚好足够在2-3天的住宿期间提供基本的舒适。该建筑的部分电力需求来自太阳能电池板,热水是使用Gujrat锅炉产生的,该锅炉使用大量可用的生物质作为燃料。前面的景观旨在为这个空间渴望提供的瑜伽、天文学和其他工作坊提供一个烧烤坑和一个平台。
The interior decor is simple and spartan and the place is furnished just enough to allow for basic comforts during a 2-3 day stay. The building generates part of its power needs from solar panels, and hot water is generated using a Gujrat Boiler, that uses abundantly available biomass as fuel. The landscape to the front has been designed to provide a barbecue pit and a deck for yoga, astronomy, and other workshops that this space aspires to provide.

© Ravi Umraniya