迪拜德拉诺酒店/Elastic Architects
Delano Dubai Hotel / Elastic Architects
整体概念与品牌精髓的传承与创新:该项目在迪拜重塑了Delano酒店的传奇风格,核心在于将Delano的永恒设计语言与迪拜的活力完美融合。设计团队精准捕捉了Delano品牌的精髓,并将其融入到全新的设计中,而非简单的复制。这种传承体现在对原迈阿密玫瑰酒吧的致敬,以及对标志性“Delano White”的重新诠释。同时,项目大胆拥抱现代性,通过对空间功能和材质的创新运用,赋予了品牌新的生命力,使其在迪拜这个充满活力的城市中焕发出新的光彩。
独特的空间体验与标志性设计:项目最令人印象深刻的亮点在于对空间体验的精心打造。从“戴着面纱”的抵达体验开始,设计就为客人营造了一种神秘感和期待感。庭院、酒吧、餐厅和泳池等各个空间都充满了惊喜和探索的元素。特别是玫瑰酒吧,其内部设计犹如一个身临其境的珠宝盒,镜面、花瓣造型、流畅的曲线,都营造出一种充满活力和互动感的氛围。葡萄酒隧道的设计更是别出心裁,巧妙地连接了不同空间,丰富了酒店的功能性,也增加了趣味性,展现了设计师对细节的极致追求。
对细节的精雕细琢与可持续性:项目在材料选择、色彩搭配和家具布置上都体现了对细节的极致追求。天然材料、丰富的纹理、以及充足的自然光,共同营造出一种舒适、优雅的氛围。在泳池区域,定制的豪华户外家具与中性色调的搭配,更是突显了项目的品质感和独特品味。此外,设计团队还注重可持续性,将周围树木的自然美景融入到Tutto Passa餐厅的设计中。这些细节上的精心打磨,以及对环境的尊重,使得整个项目不仅仅是一个酒店,更是一个充满艺术性和生活气息的场所,赋予了酒店更长久的生命力。

Courtesy of Ennismore

Courtesy of Ennismore
建筑师提供的文字描述。ELASTIC与Ennismore的内部设计团队合作,领导标志性的Delano Dubai的室内设计,重新构想Delano的传奇风格,拥抱现代性,同时忠于品牌的核心精神。我们打算将德拉诺设计语言的永恒与迪拜的活力融合在一起,将同样的标志性氛围封装在新的德拉诺迪拜中,并再次将其精髓变为现实。戴着面纱抵达迪拜德拉诺酒店是一个标志性的设计特征,立即为客人体验定下了基调。ELASTIC设计了一种标志性的抵达体验,灵感来自迈阿密异想天开的树篱,并用光滑的绿色面板重新定义了它,唤起了一种神秘和阴谋感。在入口处,客人会受到一个迷人的庭院的欢迎,那里迷人的休息区无缝地模糊了室内外的界限。整体设计巧妙地融入了惊喜和发现的元素,创造了一个让客人在每个转折点都能遇到意外的空间。
Text description provided by the architects. Leading the interior design of the iconic Delano Dubai in collaboration with Ennismore's in-house design team, ELASTIC reimagined Delano's legendary style embracing modernity while staying true to the brand's core ethos. We intended to merge the timelessness of Delano's design language with the dynamic energy of Dubai encapsulating that same iconic vibe in the new Delano Dubai and bringing its essence to life once again. The veiled arrival at Delano Dubai serves as a signature design feature, immediately setting the tone for the guest experience. ELASTIC designed an iconic arrival experience inspired by Miami's whimsical hedge and redefined it with sleek green panels that evoke a sense of mystery and intrigue. At the entrance, guests are welcomed by an inviting courtyard where a captivating lounge area seamlessly blurs the lines between indoors and outdoors. The overall design has mindfully infused elements of surprise and discovery, creating a space where guests encounter the unexpected at every turn.

Courtesy of Ennismore

Courtesy of Ennismore

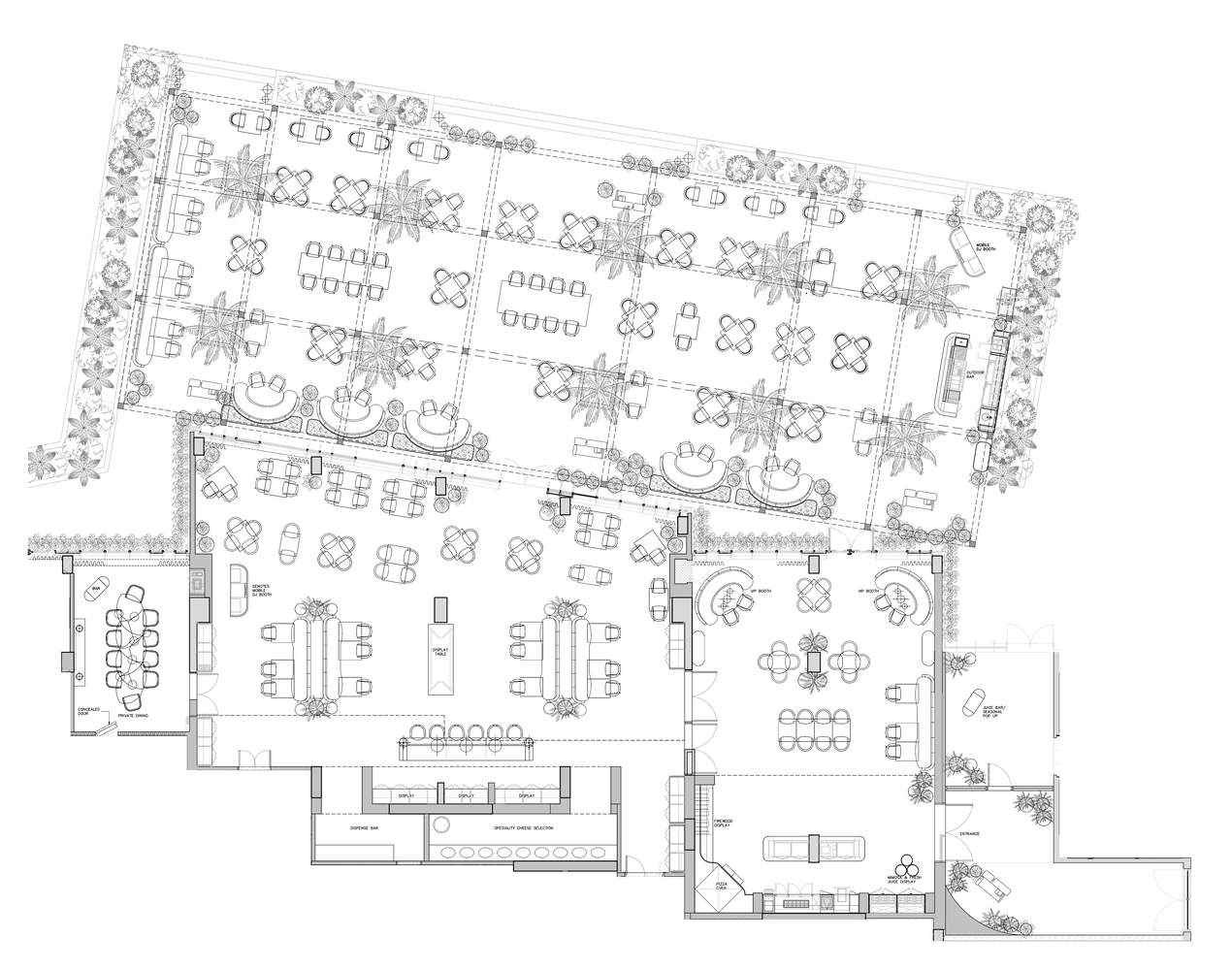
Plan

Courtesy of Ennismore
ELASTIC重新设计了玫瑰酒吧,向迈阿密海滩的原始地标致敬。受到原始玫瑰酒吧的启发,室内设计团队将整个场地设想为一个身临其境的珠宝盒体验。花瓣形状的镜子轮廓精致,巧妙地强化了玫瑰主题,同时营造出一种充满活力、俏皮的氛围,既激发了好奇心,又激发了互动。酒吧流畅的轮廓和以花卉为灵感的休息室长椅进一步增强了亲密的座位安排。无限的舞池瓷砖和迪斯科主题家具的加入是对酒吧原创者伊恩·施拉格的致敬,增添了一丝怀旧的魅力。玫瑰色大理石、暖木色调、簇绒天鹅绒长椅和一个私密的角落,设计和调色板的灵感来自最初的Delano Miami rose Bar,保留了标志性的身份,但将其提升为一个现代、独特和充满活力的目的地。旅程甚至从外部开始,郁郁葱葱的玫瑰种植吸引了人们的感官,为难忘的抵达体验奠定了基础。
ELASTIC re-envisioned the Rose Bar, paying tribute to the original Miami Beach landmark. Inspired by the original Rose Bar, the interior design team conceived the entire venue as an immersive, jewel-box experience. The mirrors, delicately outlined in petal shapes, subtly reinforce the rose motif while creating a dynamic, playful ambiance that invites both curiosity and interaction. The bar's flowing contours and the floral-inspired lounge banquettes further enhance the intimate seating arrangements. The inclusion of infinite dance floor tiles and disco-motif furniture is a nod to the original creator of the Bar, Ian Schrager, which adds a touch of nostalgic glamour. With rose-hued marble, warm wood tones, tufted velvet banquettes, and an intimate nook the design and palette were inspired by the original Delano Miami Rose Bar, preserving the iconic identity, but elevating it into a modern, exclusive, and vibrant destination. The journey even begins at the exterior, where lush rose plantings engage the senses and set the stage for a memorable arrival experience.

Courtesy of Ennismore

Plan - Rose Bar

Courtesy of Ennismore

Courtesy of Ennismore
在内部,曾经是过渡走廊的地方被重新设计为酒吧沉浸式氛围的意外延续。套房和客房的内部经过翻修,以反映以优雅的纯白色为主的色调,庆祝标志性的“Delano White”的标志性清爽。这种纯净被丰富的质地、天然材料和充足的自然光优雅地软化了。艺术和折衷的家具在白色的背景下出现,注入了充满活力的色调,将氛围从繁华转变为辉煌的宁静。
Inside, what was once a transitional corridor has been reconceived as an unexpected continuation of the bar's immersive ambiance. The interiors of the suites and guestrooms were revamped to reflect a palette dominated by elegant pure whites celebrating the iconic crispness of the signature "Delano White". This purity is gracefully softened by rich textures, natural materials, and an abundance of natural light. Artistic and eclectic furnishings emerge against the backdrop of white, infusing vibrant hues that transform the ambiance from bustling to brilliantly serene.

Courtesy of Ennismore
ELASTIC为Tutto Passa Restaurant所做的设计捕捉到了阿马尔菲海岸的迷人精神,其宽敞的露天用餐露台位于游泳池旁,精心围绕周围树木的自然美景建造。灵感来自阿马尔菲日落的柔和黄色天花板面料,轻轻地垂在头顶上,软化了空间,增加了温暖。传统元素,如内置烤箱,为正宗的用餐体验做出了贡献,而连接图托帕萨和玫瑰酒吧的令人惊叹的葡萄酒隧道则连接了白天和黑夜。葡萄酒隧道是玫瑰酒吧的“秘密”地下酒吧风格的次要入口,也可以作为专属的私人餐厅。作为一个多功能的全天用餐空间,它毫不费力地从白天的休闲优雅过渡到精致的夜晚氛围,无缝地通往一个将室内与室外融为一体的花园露台。
ELASTIC's design for Tutto Passa Restaurant captures the enchanting spirit of the Amalfi Coast with its expansive alfresco dining terrace, set by the pool and mindfully built around the natural beauty of the surrounding trees. A signature ceiling fabric feature, in a soft yellow hue inspired by Amalfi sunsets, gently drapes overhead, softening the space and adding warmth throughout. Traditional elements, such as a built-in oven, contribute to the authentic dining experience while a stunning wine tunnel connecting Tutto Passa and the Rose Bar, bridges day and night. The wine tunnel acts as a "secret" speakeasy-style secondary entrance to the Rose Bar or serves as an exclusive private dining room. Designed as a versatile all-day dining space, it effortlessly transitions from daytime casual elegance to a sophisticated evening ambiance, opening seamlessly onto a garden terrace that merges the indoors with the outdoors.
在Delano游泳池,ELASTIC将一个未充分利用的露台完全改造成了一个充满活力和独特的目的地,赋予了它个性和目的。定制设计的豪华户外家具由天然材料和纹理制成,与清新、清爽的中性色调相辅相成,并融入了永恒的品牌灵感图案。为了提升客人体验,我们精心策划了各种座位安排,以满足各种需求,从休闲躺椅到在轻松而精致的环境中的高级用餐。每个座位小插图都战略性地围绕着中央游泳池,从各个角度为客人提供令人惊叹的景色和动态的有利位置。认识到该品牌对排他性的承诺,我们引入了一系列座位选择,包括专为VIP客户设计的私人小屋。有趣的设计元素和精心创建的区域进一步活跃了空间,确保了一种既吸引人又令人难忘的迷人氛围。
At the Delano pool, ELASTIC completely transformed an underutilized terrace into a vibrant and distinctive destination, imbuing it with character and purpose. Custom-designed, luxurious outdoor furniture crafted from natural materials and textures complements a palette of fresh, crisp neutrals enriched with timeless brand-inspired patterns. To enhance the guest experience, we mindfully curated diverse seating arrangements that cater to various needs, from casual lounging to elevated dining in a relaxed yet sophisticated setting. Each seating vignette is strategically anchored around the central pool, offering guests stunning views and dynamic vantage points from every angle. Recognizing the brand's commitment to exclusivity, we incorporated a range of seating options, including private cabanas designed to cater to VIP clientele. Playful design elements and thoughtfully created zones further enliven the space, ensuring an engaging atmosphere that feels both inviting and memorable.