Sōko餐厅/CAM Arquitectos
Sōko Restaurant / CAAM Arquitectos
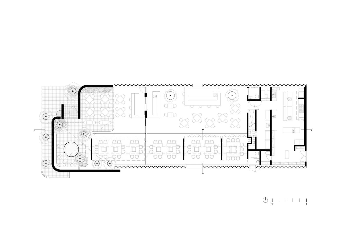
项目解读:Sōko餐厅的核心魅力在于它对工业仓库的巧妙改造与再利用。建筑师精准地捕捉了“sōko”——“仓库”的含义,并将其转化为设计理念,保留了原有的砖墙、混凝土和金属等材料,在尊重原有建筑结构的同时,赋予了空间新的生命。悬挂式花盆的设计是空间组织的核心,不仅分隔了用餐区域,营造了私密感,还通过植被引入了自然元素,实现了室内外空间的视觉连接,创造了流畅的过渡。这种对原有建筑的尊重与创新设计的结合,是该项目的最大亮点,也体现了可持续设计的理念。
空间营造:在空间营造方面,Sōko餐厅展现出细腻而富有诗意的设计手法。外部花园的运用是其一大特色,砖墙隔绝了外界的喧嚣,营造出一种宁静的氛围,水面反射树影的设计,更是为进入餐厅的人们带来了一场视觉盛宴,调动了感官体验。这种入口空间的精心设计,不仅提升了用餐体验的品质,也为整个餐厅奠定了基调。内部,悬挂式花盆的设置,也巧妙地将空间进行了划分,在功能性和美观性之间找到了完美的平衡,营造出了一种既开放又私密的用餐环境。
材料与细节:项目的材料选择和细节处理堪称典范。建筑师在保留原有工业元素的基础上,巧妙地融入了木材等暖色调的材料,与混凝土、金属等冷色调形成了鲜明的对比,营造出一种既现代又温馨的氛围。柔和的灯光和精心挑选的装饰细节,进一步强化了这种自然、质朴的质感。这种对材料的精准把握,以及对光线、色彩的巧妙运用,体现了建筑师对设计细节的极致追求。最终呈现出的效果,是工业美学与极简主义的完美融合,既保留了日本传统文化的精髓,又展现了现代设计的创新精神。

© Zaickz Moz

© Zaickz Moz
建筑师提供的文字描述。Sōko位于克雷塔罗,是一家融合了传统东方美食和现代设计的日本铁板烧餐厅。该建筑项目无缝地适应了该地点的本质,一个带桶形拱顶的工业仓库,以砖、混凝土和金属等材料为亮点。它的名字来源于日语单词“sōko”,意思是“仓库”,反映了对这种环境的优雅而微妙的重新诠释,提供了一种独特而难忘的用餐体验。
Text description provided by the architects. Located in Querétaro, Sōko is a Japanese-teppanyaki restaurant that blends traditional Eastern cuisine with contemporary design. The architectural project seamlessly adapts to the essence of the location, an industrial warehouse with a barrel-vaulted roof, highlighted by materials such as brick, concrete, and metal. Its name derives from the Japanese word "sōko," meaning "warehouse," and reflects an elegant and subtle reinterpretation of this environment, offering a distinctive and memorable dining experience.

© Zaickz Moz

© Zaickz Moz
客人可以通过一个外部花园进入餐厅,花园内设有大堂和用餐区。这个空间被砖墙包围,将噪音与街道和停车场隔离开来。进入后,树影在水中轻轻反射,营造出一种视觉动态,刺激感官,增强整个空间的平静和沉思感,从而丰富了氛围。
Access to the restaurant begins through an exterior garden, which houses both the lobby and a dining area for guests. This space is surrounded by brick walls that isolate the noise from the street and parking lot. Upon entering, the atmosphere is enriched by the play of tree shadows, softly reflected in the water, creating a visual dynamic that stimulates the senses and reinforces the sense of calm and contemplation throughout the space.

© Zaickz Moz

© Zaickz Moz

Planta - Terreno
该设计的核心特征是一个悬挂式花盆,由横跨仓库的梯形混凝土支架支撑。这种结构不仅组织了空间,还改变了环境,在内部和外部之间建立了联系。除了提取铁板烧烟雾和优化照明等实用功能外,花盆还通过融入植被成为装饰元素,为周围环境带来新鲜感和活力。在支架的支撑下,该结构将空间划分为更多的私人区域,营造出一种亲密的氛围,增强了用餐体验。通过这种方式,它促进了内部和外部之间的平稳过渡,改善了项目的功能和视觉分布。
The central feature of the design is a suspended planter, held by trapezoidal concrete brackets that span the warehouse. This structure not only organizes the space but also transforms the environment, establishing a connection between the interior and exterior. In addition to its practical function, such as the extraction of teppanyaki smoke and the optimization of lighting, the planter becomes a decorative element by incorporating vegetation, which brings freshness and vitality to the surroundings. Supported by the brackets, the structure divides the space into more private areas, creating an intimate atmosphere that enhances the dining experience. In this way, it facilitates a smooth transition between the interior and exterior, improving both the functional and visual distribution of the project.

© Zaickz Moz
在材料方面,仓库的现有元素得到了保留,家具和建筑元素中的木材得到了补充。柔和的灯光和装饰细节强化了自然饰面。工业美学和极简主义之间的平衡创造了一个保留了日本传统精髓的现代环境。
Regarding materials, the existing elements of the warehouse were preserved, complemented by wood in furniture and architectural elements. Soft lighting and decorative details reinforce the natural finishes. The balance between industrial aesthetics and minimalism creates a modern environment that retains the essence of Japanese tradition.

© Zaickz Moz

© Zaickz Moz
Sōko是一个功能和美学和谐融合的空间,提供了一种独特的用餐体验,既庆祝传统,又庆祝创新。
Sōko is a space where functionality and aesthetics harmoniously merge, offering a unique dining experience that celebrates both tradition and innovation.

© Zaickz Moz