早期宇研咖啡馆/太空+工艺
Early Yuyen Cafe / space+craft
设计理念的深度与广度:Early Yuyen咖啡馆的设计理念令人印象深刻,它不仅仅停留在视觉美学的层面,更深入地探讨了循环经济在建筑设计中的应用。项目从“减少、再利用、翻新和回收”这四个核心原则出发,构建了一个完整的设计框架。这种设计方法不仅减少了对新材料的依赖,降低了环境负荷,还通过对现有材料的再利用,赋予了空间独特的个性和故事。项目一开始就设立了明确的可持续发展目标,并在整个设计过程中始终贯彻这些目标,这种对可持续性的承诺是项目最显著的亮点,也为其他建筑项目提供了宝贵的借鉴。
材料创新与空间体验的融合:该项目在材料运用上展现了极大的创新精神。设计师巧妙地将回收材料融入到空间设计的各个方面,例如利用回收的玻璃瓶和碎玻璃碎片制作水磨石台面,使用回收的牛奶盒制成Reboard覆层和模块化天花板,以及使用Ecobricks作为外墙装饰。这些举措不仅减少了建筑垃圾,还赋予了空间独特的视觉效果和触感。同时,设计师充分考虑了空间体验,利用高大的树木遮荫,创造半室外的开放空间,使得咖啡馆与周围环境完美融合。这种对材料创新和空间体验的兼顾,使得Early Yuyen咖啡馆不仅仅是一个饮品场所,更是一个传递环保理念、激发社区互动的场所。
合作与实践的典范:Early Yuyen咖啡馆的设计充分展现了合作的重要性。项目汇集了建筑师、室内设计师、回收家具设计工作室等各方力量,共同探索可持续设计的实践。这种合作模式使得项目能够整合不同领域的专业知识和资源,从而实现更加全面的可持续设计。项目在实践中积极探索循环策略,并不断突破设计边界,这种勇于尝试和实践的精神是项目最宝贵的财富。通过对现有建筑构件、家具和材料的再利用和翻新,项目不仅减少了资源消耗,也为社区带来了新的活力。Early Yuyen咖啡馆是可持续设计领域的一个有益探索,它为建筑设计提供了新的思路和方向。

© Panoramic studio

© Panoramic studio
建筑师提供的文字描述。在Sammakorn作为一家社区咖啡馆推出两年后,Early BKK在安静的Soi Yuyen的My Paws Backyard Dog Park开设了第二家分店,远离繁华的Pradimanutham街和曼谷郊区。Early Yuyen致力于以环保意识运营的价值观,旨在为家庭和宠物爱好者提供一个新的公共空间。该项目以一个问题开始:“循环战略在新咖啡馆中可以实施到什么程度?”
Text description provided by the architects. Two years after its launch as a community cafe in Sammakorn, Early BKK expands with a second branch at My Paws Backyard Dog Park in the quiet Soi Yuyen, away from the bustling Pradimanutham street, and outskirt area of Bangkok. Committed to its values of operating with environmental awareness, Early Yuyen aims to provide a new communal space for families and pet lovers. The project began with the question: "How far can circular strategies be implemented in a new cafe?"

© Panoramic studio
设计框架-在第一个地点的成功和经验教训的基础上,Early BKK继续与位于曼谷的室内建筑设计工作室space+craft合作,并为Early Yuyen采用了更全面的设计方法。在早期阶段举行了一次研讨会,以建立一个以循环经济为重点的设计框架。在Ellen MacArthur基金会的“蝴蝶图”的指导下,设计过程采用了4Rs:减少、再利用、翻新和回收,重点是可拆卸设计,以确保材料的长期可重复使用性。
Design Framework – Building on the successes and lessons from the first location, Early BKK continues its collaboration with space+craft, an interior architectural design studio based in Bangkok, and adopts a more holistic design approach for Early Yuyen. A workshop was held in the early stage to establish a design framework focused on the circular economy. Guided by the Ellen MacArthur Foundation's "Butterfly Diagram," the design process embraced the 4Rs: Reduce, Reuse, Refurbish, and Recycle, with an emphasis on Design for Disassembly to ensure the materials' long-term reusability.

© Panoramic studio

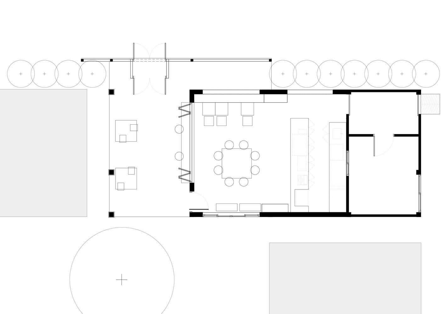
Floor Plan

© Panoramic studio
减少——“减少”原则旨在保护现有材料,以尽量减少原材料生产。从最初的实地考察开始,重点是保留可用的建筑构件。为了对破旧的地方进行重大翻修,双方就美学和保护之间的优先级进行了谈判。该场地以前是一个员工餐厅,是一座半装修的单层建筑,配有餐厅家具。决定在保留结构部件的同时回收家具,以便在新咖啡馆中重复使用。表面被解构和分类,铝型材被出售用于回收,部分地砖被保存以备将来在设计中使用。
Reduce – The "Reduce" principle aims to preserve existing materials to minimize raw material production. From the initial site visit, the focus was on retaining usable building components. With the goal to give a major facelift to the worn-out location, the priority between aesthetics and preservation was negotiated. Formerly a staff canteen, the site is a semi-furnished single-storey building which comes equipped with restaurant furniture. A decision was made to maintain the structural components while salvaging furniture for reuse in the new cafe. Surfaces were deconstructed and sorted, with aluminum profiles sold for recycling and part of the floor tiles saved for future use in the design.

© Panoramic studio
重用-咖啡馆位于Paw's狗公园的入口处,其设计延伸到狗公园的大门,将回收的门窗框以互锁的方式排列,并赋予了第二次生命,作为欢迎客人来到早玉岩的门槛。从泰语直接翻译过来的“Yuyen”或“Living Comfortably”反映在咖啡馆内部空间的设计中。通风的室内空间得益于高大树木的遮荫,在温度允许的情况下提供了一种半室外的体验。作为再利用策略的一部分,面向外部的可操作窗户和固定窗户是从回收的仓库中回收的,并作为设计元素纳入其中。大型可操作窗户被设计为咖啡馆立面的一个关键特征,它不仅为内部空间提供自然通风,而且作为一个框架,突出并吸引人们对咖啡馆内部的关注。
Reused – Located at the entrance of the Paw's dog park, the cafe's design extends to the dog park's gate, incorporating reclaimed windows and door frames arranged in an interlocking pattern and giving a second life as a literal threshold to welcome the guests to Early Yuyen. "Yuyen" or "Living Comfortably" when directly translated from the Thai language is reflected in the design of the cafe's interior space. The airy interior space benefits from shade cast by tall trees, offering a semi-outdoor experience when temperatures permit. As part of the reuse strategy, the operable window and the fixed window facing the exterior were salvaged from a reclaimed warehouse and incorporated as design elements. The large operable window is designed as a key feature of the cafe's facade, not only does it provide natural ventilation to the interior space, but it serves as a frame that highlights and draws attention to the cafe's interior.

© Panoramic studio

© Panoramic studio
回收/可拆卸设计-咖啡吧是咖啡馆的中心舞台,其装饰元素来自重新利用的玻璃瓶和碎玻璃碎片,这些碎片被整合到水磨石台面中,延续了Early提高减少废物意识的承诺。对原始Early咖啡馆的另一种引用是通过使用Reboard覆层来反映的,这是一种仅由高压压缩的回收牛奶盒制成的隔板材料。它们被用作独立的隔墙和模块化的华夫格天花板。这些是用紧固件安装的,便于拆卸。Ecobrick是Early Yuyen的另一款完全回收的产品。Ecobricks由完全回收的碎塑料制成,位于咖啡馆的外墙上,以庆祝回收材料的使用。
Recycle / Design for Disassembly –The coffee bar takes center stage in the cafe and features decorative elements from repurposed glass bottles and broken glass shards incorporated into terrazzo countertops, continuing Early's commitment to raise awareness in waste reduction. Another reference to the original Early''s cafe is reflected through the use of Reboard cladding, a partition material made solely of recycled milk cartons compacted with high pressure. They were utilized as stand-alone partition walls and as modular waffle ceilings. These were installed with fasteners for easy disassembly. Ecobrick is another fully recycled product featured at Early Yuyen. Made from fully recycled shredded plastic, the Ecobricks are featured on the cafe's exterior wall, celebrating the use of recycled materials.

© Panoramic studio
为了纪念被移除的现有元素,该过程中的几个元素被重新添加为设计元素。从附近建筑物回收的屋顶瓦片被纳入柜台酒吧,而过时的地砖则被重新用作水磨石。地板的白色和棕色纹理与墙面上Reboard的碎牛奶盒的颗粒状纹理和模块化华夫饼结构的天花板相得益彰。大地色调的色调给咖啡馆带来了温暖和家的感觉,与木制窗框和家具产生了共鸣。
To honor the existing elements that were removed, several elements from the process were selvage and reintroduced as design elements. Reclaimed roof tiles from nearby buildings were incorporated into the counter bar, while outdated floor tiles were repurposed as terrazzo. The floor's white and brown texture is complemented by the grainy texture of shredded milk cartons of the Reboard on the wall cladding and the modular waffle structured ceiling. The earth tone palette gives the cafe a warm and homey vibe which resonates with the wooden window frames and furniture.

© Panoramic studio

© Panoramic studio
翻新-与专门从事回收家具的设计工作室Athing的志同道合的人合作,对现有家具进行翻新。现有的餐厅椅子用旧衣服和画布进行了改造,以更新其外观,与咖啡馆的设计相得益彰。引入了由回收塑料盖制成的新型可移动长椅,以增强半室外区域的多功能性。
Refurnish – A collaboration with like-minded individuals from Athing, a design studio specializing in recycled furniture, was initiated to refurbish the existing furniture. The existing canteen chairs were remodeled with used clothes and canvases to renew their appearance to complement the design of the cafe. New movable benches made from recycled plastic caps were introduced to enhance the versatility of the semi-outdoor area.

© Panoramic studio
结论——总结而言,早期的Yuyen是对最初问题的直接回答:虽然还没有完全循环,但我们正在“早期”突破界限,探索循环策略并将其纳入实践。这一倡议为合作和整体方法如何推动可持续发展取得有意义的进展树立了榜样。
Conclusion – To conclude, Early Yuyen is a direct answer to the initial questions: though not yet fully circular, we are taking an "early" step in pushing boundaries to explore and incorporate circular strategies in practice. This initiative sets an example of how collaboration and a holistic approach can drive meaningful progress toward sustainable development.

© Panoramic studio