Urmila Kailash黑匣子,Kanoria艺术中心校园/桑加特工作室
Urmila Kailash Black Box, Kanoria Centre for Arts Campus / Studio Sangath
传承与创新并重:Urmila Kailash黑匣子项目最令人印象深刻的亮点在于其对既有建筑语境的尊重与创新。项目并非孤立地存在,而是巧妙地从Balkrishna Doshi的原始设计中汲取灵感,与Kanoria艺术中心的现有建筑形成和谐的对话。建筑师通过对周围结构的深入研究,将新建筑无缝融入校园整体,避免了突兀感。同时,黑匣子本身引入了一种新的建筑类型,为艺术中心增添了更丰富的可能性,满足了多元的艺术活动需求。这种既尊重历史文脉又勇于创新的设计理念,是项目取得成功的关键。
空间与景观的融合:该项目在空间设计和景观营造方面展现出卓越的专业性。建筑师充分利用周围的景观,创造了流畅的空间过渡,模糊了新旧建筑之间的界限。这种设计手法不仅提升了校园的整体美学,也增强了空间的使用体验。景观不仅仅是装饰,而是成为建筑的有机组成部分,促进了人与建筑、建筑与环境之间的互动。这种设计理念为艺术中心营造了一个充满活力和凝聚力的环境,激发了创造力,也为使用者提供了沉浸式的艺术体验,体现了建筑设计对场所精神的深刻理解。
功能与形态的统一:Urmila Kailash黑匣子项目在功能性和形态表现上达到了高度的统一。建筑师深入研究了艺术中心的需求,设计了多功能、灵活的黑匣子空间,以适应各种艺术实践和活动。建筑的形态设计与功能需求紧密结合,既满足了黑匣子特定的声学、照明等技术要求,也营造出独特的视觉效果。这种对功能和形态的精妙平衡,体现了建筑师对建筑语言的深刻理解和对艺术实践的尊重。黑匣子不仅仅是一个建筑,更是一个激发创造力、促进交流的场所,完美地诠释了建筑的价值所在。

© Ishita Sitwala | Creative Director : Kunnal Pratap Dass

© Ishita Sitwala | Creative Director : Kunnal Pratap Dass
建筑师提供的文字描述。自1984年成立以来,Kanoria艺术中心一直在不断发展,以满足艺术界不断变化的需求,在形式和功能上都在不断扩大。该中心由Urmila Kanoria创立,其原始设计由著名建筑师Balkrishna Doshi构思。多年来,随着中心需求的增长,增加了画廊空间和工作室区域等设施,提高了校园促进艺术表达的能力。
Text description provided by the architects. Since its establishment in 1984, the Kanoria Centre for Arts has consistently evolved to meet the changing needs of the artistic community, expanding both in form and function. Founded by Urmila Kanoria, the Centre's original design was conceived by renowned architect Balkrishna Doshi. Over the years, as the Centre's requirements grew, additional facilities such as gallery spaces and studio areas were incorporated, enhancing the campus's capacity to foster artistic expression.

© Ishita Sitwala | Creative Director : Kunnal Pratap Dass

© Ishita Sitwala | Creative Director : Kunnal Pratap Dass

© Ishita Sitwala | Creative Director : Kunnal Pratap Dass
2020年,Balkrishna Doshi委托Sangath工作室的创始人兼首席建筑师Khushnu Panthaki Hoof和Sönke Hoof负责监督Kanoria艺术中心的新开发项目。这一合作关系促成了校园最新扩建项目Urmila Kailash黑匣子于2024年完工。黑盒子是Kanoria艺术中心正在进行的转型中的一个重要里程碑。
In 2020, Balkrishna Doshi entrusted Khushnu Panthaki Hoof and Sönke Hoof, the founders and principal architects of Studio Sangath, with the responsibility of overseeing new developments at the Kanoria Centre for Arts. This partnership resulted in the completion of the latest addition to the campus, the Urmila Kailash Black Box, in 2024. The Black Box represents a significant milestone in the Kanoria Centre for Art's ongoing transformation.

© Ishita Sitwala | Creative Director : Kunnal Pratap Dass

© Ishita Sitwala | Creative Director : Kunnal Pratap Dass

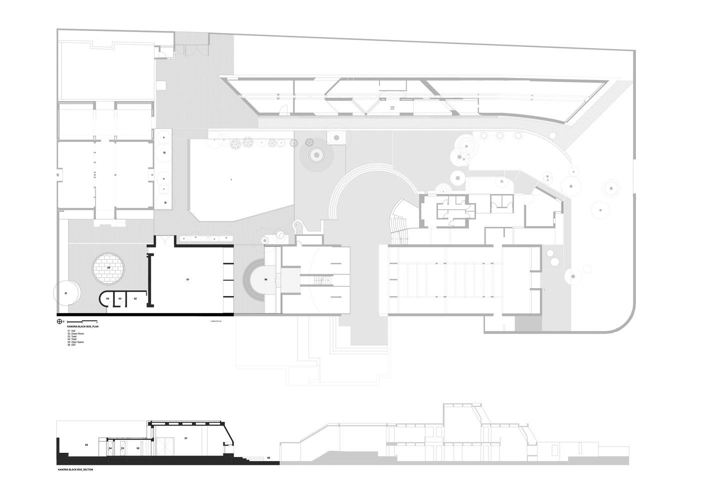
Floor Plan and Section

© Ishita Sitwala | Creative Director : Kunnal Pratap Dass
这座建筑的设计深深尊重了校园现有的建筑语言,从周围的结构中汲取灵感,旨在创造新旧之间的和谐联系。周围的景观设计也在这种整合中发挥了关键作用,在空间之间提供了流畅的过渡,模糊了原始建筑和最新建筑之间的界限。这种方法确保了校园保持凝聚力和统一性。
Designed with a profound respect for the existing architectural language of the campus, the building draws inspiration from the surrounding structures, aiming to create a harmonious connection between the old and the new. The surrounding landscape too was designed in a way that it plays a pivotal role in this integration, providing a fluid transition between spaces and blurring the boundaries between the original architecture and the latest additions. This approach ensures that the campus maintains a cohesive and unified character.

© Ishita Sitwala | Creative Director : Kunnal Pratap Dass

© Ishita Sitwala | Creative Director : Kunnal Pratap Dass

© Ishita Sitwala | Creative Director : Kunnal Pratap Dass
Urmila Kailash黑匣子本身引入了一种新的类型——一种满足艺术、表演、戏剧、讨论和庆祝活动的动态空间的特定功能需求的类型。黑匣子的多功能设计使其能够容纳广泛的艺术实践和活动,而其与更广泛的校园的建筑关系为创造性表达营造了一个充满活力和凝聚力的环境。
The Urmila Kailash Black Box itself introduces a new typology—one that responds to the specific functional needs of a dynamic space for art, performance, theatre, discussions, and celebrations. The versatile design of the Black Box allows it to accommodate a wide range of artistic practices and events, while its architectural relationship to the broader campus fosters a vibrant and cohesive environment for creative expression.

© Ishita Sitwala | Creative Director : Kunnal Pratap Dass