Lucida餐厅和酒吧/Shahira Fahmy建筑师事务所
Lucida Restaurant and Bar / Shahira Fahmy Architects
空间叙事与在地文化: 露台项目的核心在于创造一个聚集和交流的空间,回应了客户对社交场所的需求。设计师打破了原有包豪斯风格建筑的僵硬,植入了一个富有生命力的“心脏”,以有机形态和当地材料,比如棕榈叶和稻草,营造出温暖、亲密的氛围。这种对在地文化的尊重与运用,体现在对埃及传统手工艺的致敬,以及对当地材料的创造性使用。设计手法并不止于视觉呈现,而是关注于空间的内在体验,邀请人们在这里聚集、分享、交流,从而在快节奏的现代生活中寻找到一丝宁静与归属感,食物的分享成为了联系人与人的核心纽带。
材料的诗意表达与可持续性: 项目在材料选择上展现出对可持续性的深度思考。设计师大胆采用当地材料,如粉色的赤陶墙、棕榈吸管等,营造出质感丰富的空间体验。这些材料本身就带有独特的色彩和肌理,在光线的照射下产生丰富的视觉效果,并与周围环境和谐共生。设计师也展现了对材料的深刻理解,将它们转化为具有诗意的表达。同时,这种对当地材料的选用,也减少了对环境的负面影响,体现了可持续发展的理念。这种设计手法不仅提升了项目的独特性,也赋予了空间独特的生命力,实现形式、功能和结构之间的和谐。
从内而外的设计理念与精湛工艺: 该项目的设计手法展现了“从内而外”的设计理念。设计师并未简单地将建筑视为一个外在的容器,而是注重对内部空间的塑造。这种“心脏”的设计理念,打破了传统建筑的框架,创造出一种流动、有机的空间体验。设计团队与当地工匠的紧密合作,确保了设计的精髓得以实现。墙面的纹理、材料的组合,都体现了工匠的精心雕琢。这种对细节的关注,使得整个空间充满质感,也传达了对传统手工艺的尊重。这种设计理念和精湛工艺的结合,使Lucida餐厅成为一个独特的、令人难忘的场所,一个将过去、现在和未来完美融合的文化符号。

© Nour El Refai

© Nour El Refai
建筑师提供的文字描述该项目的性质保留给娱乐业,位于/(锚定在)开罗西郊一座长方形建筑的屋顶上,该建筑采用包豪斯建筑语言,是商业/商业区的一部分,该地区以快速城市化为特征。回应客户的简报,确保有一个聚会的地方,一个让人们聚集在一起的聚会场所:一个聚会、聚会和归属的地方。食物一直是一种关怀的表达,一个聚会的地方,坐在桌子旁一起吃饭,坐下来,分享和庆祝交流,从而形成新的关系,同时建立旧的关系。食物是这个项目的核心,是一个召集的邀请,一个坐下来的恳求,找到一个与现代开罗生活的狂热节奏不一致的团聚时刻。
Text description provided by the architects. The nature of this project is retained to the entertainment industry and located/(anchored in) on a rooftop of a rectangular building informed with a Bauhaus language of architecture, on the western outskirts of Cairo, part of a business/commercial district, an area characterized with swift urbanization. responding to the client's brief to ensure a place of gathering, a hangout, that held people together: a place of meeting, gathering, and belonging. Food has always been an expression of care, a place of assembly, to sit down and eat together around a table, to sit, share and celebrate exchanges that enable new relationships to form, while old ones to bond. Food is at the heart of this project, an invitation to convene, an entreaty to sit, and find a moment of togetherness at odds with the frenetic pace of modern Cairo life.

© Nour El Refai

© Nour El Refai
一旦法赫米踏上这个屋顶,她的方法就是保持它作为一个屋顶,保护它的内在体验,同时将它的视野扩展到外部、光线、明亮的阳光,阴影将是亮点之一。试图尊重其包围空间的矩形容器建筑,同时打破建筑的铁网格,在里面有一个新兴的心脏,一个有机的、人性化的、移动的、可塑的心脏/中心,这种方法更像是一种从内到外的建筑。它的位置更多的是关于体验的内在性,在它的语境中不会大声尖叫。法赫米在包豪斯铁格语言的容器中构建了她的概念,她的概念基于一个强有力的现有建筑之间的张力,该建筑遵循非常僵化的线条,内部有一个新兴的生物,更可能被描述为一张皱巴巴的纸。一种从内心产生的选择,把花园带到前台。这个空间的设计是为了让人亲身体验,而不是在照片中欣赏一个单一的线条,能够揭开每一层,这真的是一种分层和深入的体验。
Once Fahmy stepped foot on this rooftop, her approach was to keep it as a rooftop, to protect its interiority of the experience yet also to expand its views to the exterior, to the light, to the bright sunshine, shadows cast would be one of the highlights. trying to be respectful to its container rectangular building, that envelopes the space, while breaking the iron grid of the building with an emerging heart inside, a heart/center that is organic, human, moving, and malleable, an approach is more like an architecture that is emerging from inside to out. its place that is more about the interiority of the experience, and that doesn't scream loud in its context. Framed within a container of Bauhaus iron grid language Fahmy based her concept on the tension between a forceful existing architecture following very rigid lines with an emergent creature inside that is more likely to be described as a crumpled paper. a kind that emerges from within selecting to bring to the foreground a garden. The space is designed to be experienced in person rather than being a one-liner to be enjoyed in photos, to be able to uncover each layer, it is really a layered and in-depth experience.

© Nour El Refai

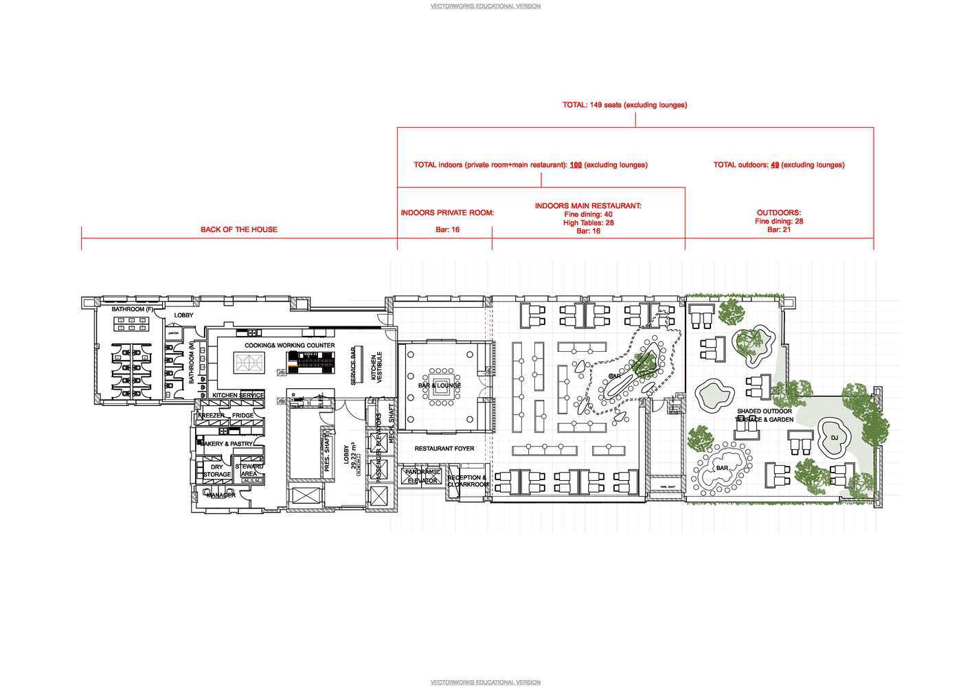
Plan

© Nour El Refai
法赫米的建筑实践和研究实验室是一个创意空间,产生设计、总体规划、室内设计和装置,旨在深入研究和探索城市景观中的空间张力和动态,调查不断变化的边界和重叠的地理之间的相互作用。为人类需求和稀缺资源之间的对话和对话创造一个平台。通常,她的方法是观察、观察和尝试理解,然后用旧的现有层投资新的层,挖掘并带到前台。
Fahmy's architectural practice and research laboratory operate as a creative space generating designs, masterplans, interiors, and installations, with the aim to delve into and explore the spatial tension and dynamics within an urban landscape, investigating the interplay of shifting boundaries and overlapping geographies. creating a platform for discourse and dialogue between human needs and scarce resources. Usually, her approach is to look, observe, and try to understand, then it is about investing in new layers with old existing layers, excavated and brought to the foreground.

© Nour El Refai
有机无定形结构几乎完全由Jereed ElNakhl、棕榈叶/稻草制成,编织在一个无障碍的存在中,永远不会清理空间,但环绕着树木和一个长长的波浪形弯曲的连续条,似乎已经从地上出现,在这里休息了一会儿。形成项目轨迹的这一特征从房间的中心转移,就像一个人的心脏没有完全放在中心一样。当它锚定空间时,它也形成了通往露台的门户,通过向上方的天空开放,在水平面和垂直面上将外部与内部连接起来。这就是一切发生的地方,围绕着这张连续的桌子,就像一个提供食物和饮料的酒吧和一个休息的地方,把我们联系在一起,用这种埃及椰枣草叶花边包裹着,把我们与过去、遗产、手工艺、地方联系起来,以促进一种保护感和宾至如归的感觉。这座建筑屋顶上的眼孔,自然光通过它过滤进来,外面的阳光破坏了穿孔的棕榈草花边(jereed ElNakhl)墙。在这个屋顶项目中,法赫米的建筑理念是,它不会忘记自己的基本责任,即提供庇护所、屋顶、围栏、有界性,甚至可能是温暖,甚至可能提供一点食物。
the organic amorphous structure is made almost entirely with Jereed ElNakhl, palm leaves/straws, weaved in an unobstructed presence that never clears the space, yet encircling the trees and a long undulating curvy continuous bar that seems like it has emerged from the ground to rest here for a moment. This feature which forms the loci of the project is shifted from the center of the room, like a human being's heart not quite placed in the center. and as it anchors the space, it also forms a gateway to the terrace, linking the outside to the inside, on the horizontal plane and as well the vertical, by its opening up to the sky above. This is where everything occurs, a togetherness around this continuous table like a bar with its offering of food and drinks and a place of respite, grounds us, connecting us, wrapped with this Egyptian date palm straw leave lace, connecting us to the past, heritage, crafts, locality, to facilitate a sense of protection and sense of being at home. the oculus in the roof of this structure, through which natural light filters inside, and the way the sun outside fractures the perforated palm straw lace (jereed ElNakhl) walls. In this rooftop project Fahmy's idea of an architecture that doesn't forget its foundational responsibility, to provide shelter, a roof, an enclosure, a boundedness, maybe even warmth, maybe even a togetherness with serving a bit of food.

© Nour El Refai
她的有机结构就像皱巴巴的纸,看起来像一个子宫,她在房间/屋顶的整个环境中提供了第三个空间,人们可以在这里聚会、寻找点心、交流、分享感受、想法和问候。邀请人们聚在一起,打破僵局,恢复活力,变得更加亲密,大概是娱乐。这是一个亲密的空间,周围有一盏顶灯,感觉就像一个雕刻的天窗,在她到达现场之前就存在于一个更大的整体中,踏入法赫米的周边,这个项目感觉像是打开了,揭示了内部空间,然后是几十个进一步的空间,地方而不是空间,以便更好地措辞,导航那些你解开层层谜团、中断的平面、不对称的、奇怪的未完成的物质,以及她坚定温和的结构,这些结构是它建造的前提。可持续性直接影响了项目建筑材料的选择,反映了法赫米对环保选择的深思熟虑,以及在形式、功能和结构之间建立和谐关系的努力。重新校准优先级、材料选择以及形式和目的的综合。
With her organic structure, like crumpled papers, which look like a womb, she has provided a third space within the whole context of the room/rooftop, within which people could gather, find refreshment, exchange, share feelings, ideas, and greetings. inviting people to gather, break the ice, rejuvenate, becoming more intimate and presumably entertained. it is rather an intimate space rounded with a top light that feels like a sculpted skylight within a larger whole that existed before her arrival on site, stepping into Fahmy's perimeter, the project feels like opening up, revealing inner space, then a score of further spaces, places rather than spaces for better wording, Navigating those you unravel layers of mysteries, interrupted planes, unsymmetrical, curiously unfinished materiality, with her determinedly gentle structures that own the premise on which it was built. Sustainability directly influenced the choice of materials for the project's construction, reflecting Fahmy's deliberate commitment to environmentally conscious choices and the crafting of a harmonious relationship between form and function and structures. recalibration of priorities, material choices, and synthesis of form and purpose.

Diagram
法赫米的方法论是“如果你找不到它,就创造它并生产它,她长期以来一直与工匠、艺术家、生产商、制造商、建筑商和工程师在协作过程中合作,以获得一种材料,或扩展和探索一种材料,将其折叠成其他形式、元素和结构。这种工作方法是一个去打磨的过程,从挖掘已经存在但经常埋在灰尘下的东西的意义上讲,这是一个重新解释和重新配置的过程。埃及和开罗拥有丰富的原材料资源,这些原材料以非常原始的形式存在,来自泥土、沙子、棕榈树和玻璃,具有自己的特性和身份,并且有一系列颜色,这些颜色通常是非常温暖,从尼罗河的黑色框架开始,尼罗河在法老时代曾被用来指代埃及的“凯米特”,到沙漠的颜色,从红色、粉红色、铜色、金色到白色的沙子,提供了一个非常丰富的日落色彩,配以柔和的淡椰枣绿色,覆盖了开罗广阔的郊区。
Fahmy's methodology is "if you can't find it, create it and produce it, she has long worked with craftsmen, artists, producers, manufacturers, builders, and engineers in the collaborative process, to arrive at a material, or expand and explore a material, to fold in other forms, elements, and structure. This working methodology is a process of ungrounding, in the sense of unearthing what is already there and yet so often buried under the dust, hence a re-interpreting and re-configuring. Egypt, and Cairo, have a wealth of unwavering resources of raw material, in a very raw form, from mud, sand, palms, and glass, with its own specificity and identity, and with an array of colors that is often very warm, starting from its black framing the Nile, once used to refer to Egypt named as 'Kemet' in Pharaoh's times, to desert colors, from red, pinkish, coppery, golden to white sands, offering a very generous palette of sunset colors, with soft pale date palms greens, that covers the vast outskirts of Cairo.

© Nour El Refai

© Nour El Refai
工程背景特别让她对可能性有了更深入的直觉,在制造的潜力上,而不仅仅是设计。粉红色的赤陶墙和表面类似于浇注的混凝土,给人一种未完成的外观或基础感,突出了空间的边界和周边,并将其框起来。墙壁上的脊状效果是泥土、天然色素、干草和当地泥土的混合物,由在现场工作的工匠从上到下手工梳理而成,其中的不完美也是制作它的工匠之手的表现。客户对优雅空间的体验,可以触摸、感受和思考纹理和颜色的多种微妙材料变化。棕榈吸管有天然的颜色,黄铜和铜,赤土粘土的颜色,雪花石膏埃及商店的金色,玻璃冷却效果,其光泽给人一种银色/香槟色,就像旧镜子一样。所有这些材料和颜色都是由一群非常有才华的工匠和工匠手工制作的。
The engineering background particularly gives her a deeper intuition of possibilities, in the potentiality of making and not only design. The pinkish terracotta walls and surfaces resemble poured concrete, giving an unfinished look or a foundational feel, highlighting the boundaries and the perimeter of the space and framing them. The ridged effect on the walls is a mixture of mud, natural color pigments, hay, and local earth hand-combed by artisans working on site from top to bottom, the imperfections in it are also an expression of the hands of the artisans that had crafted it. the clientele's experience of elegant space, a possibility to touch, feel, and contemplate the multiple subtle material variations of textures and colors. palm straws have a natural color, brass and copper, terracotta clay color, and alabaster Egyptian store golden color, glass cooling effect with its tint of patina to give a silvery/champagne color like old mirrors. all these materials and colors were produced and fabricated by the hands of very talented a big group of Artisanal and craftsmanship.

© Nour El Refai

© Nour El Refai

© Nour El Refai

© Nour El Refai
每一个项目都伴随着一个领域、一个背景、一个探究,然后是一个不断演变为创造性行为的学习过程,这转化为一种协作的运作模式,法赫米20多岁时还是开罗大学工程学院的一名年轻建筑师处理结构细节和可构建性的方法很重要,它关系到一个人的记忆,关系到研究、实验、试错和探索,关系到可构建性,关系到对每个特征及其实现方式的理解。这个项目设计在可持续性方面的关键因素和特征之一——一个经常被过度使用的术语,在任何地方都被包括在内,仅仅是为了符合绿色建筑的要求或外观——但在这个项目和法赫米的许多作品中,这一直是她工作的一个组成部分,通常是一种紧迫感或义务感,甚至是缺乏手段的感觉,以一种方式要求她足智多谋,无论这是在开罗生活的一个有机组成部分,这迫使你足智多用,融入项目构思或执行中的每一项努力的结构中。如果你在开罗出生、长大并生活,你知道如何足智多谋,你学会了如果想要什么,你需要创造和生产它,建筑师和艺术家,如果你在纸上画了一个想法,你想要它成为现实,你经常需要用手合作来实现,即使我出生在70年代的萨达特时代,你也看到了父母和祖父母如何运作整整一代人的学习,如果他们想实现它,他们自己去做,所以不知何故,它是超越几代人的。一个人与环境、地面、城市的关系,无论是物理上的还是概念上的,都源于他自己的生活经历。
With every project comes a territory, a context, an inquiry, and then a learning process continuously evolving into creative acts, which translates into a collaborative mode of operating, conceived while Fahmy was still a young architect at Cairo University, Faculty of Engineering in her 20s. The approach to detail and buildability of the structure is important, it is about one's memory, about the research, experimentation, trials and errors, and the exploration that has gone into it, about the buildability, the understanding of how each feature and how it is done. one of the key factors and features of this project design in sustainability_ a term often overused and included everywhere merely for compliance or appearance to tick the box of green architecture_ yet in this project and in many in Fahmy's work, has been an integral part of her work, often a sense of urgency or obligation or even of the scarcity of means, to oblige in a way to be resourceful whether this has been an integral part of living in Cairo, which forces you to be resourceful, woven into the very fabric of each endeavor in a project conception or execution. if you were born, raised, and living in Cairo, you know how to be resourceful, you learned if wanted something you needed to create it and produce it, architects, and artist, if you drew an idea on paper and you wanted it physical, you often have to work with your hands in collaborate work to achieve, even though I was born in the 70's in the Sadat era of infitah, you have seen how parents and grandparents operate a whole generation of learning to do it themself if they want to make it happen, so somehow it is transcendent through generations. One's relationship with the context, the ground, the city, both physical and conceptual, originates in one's own lived experience.

Diagram
Lucida餐厅、休息室和酒吧屋顶由Shahira Fahmy设计,是建筑师语言作品中充满渴望的对称性的实体形式,该场所提供从亲密晚餐到500位客人的表演等一系列活动,刻意而一贯地拒绝被简化为模糊的“款待”
Lucida Restaurant, lounge and bar rooftop, designed by Shahira Fahmy, is a physical form to the wistful symmetries of the architect's language oeuvre, the place offers a range from intimate dinners to performances with 500 guests, deliberately and consistently refusing to be reduced to a nebulous 'hospitality.'

© Nour El Refai