努奥套房/RodapéArquitetura
Nuu Auge Suite / Rodapé Arquitetura
项目理念的深度探索:该项目最引人入胜之处在于其对汽车旅馆空间本质的深刻研究和重新定义。设计团队没有简单地停留在表面的美学层面,而是深入挖掘了巴西汽车旅馆的文化内涵,以及人们在这些空间中的行为和需求。他们认识到性在汽车旅馆体验中的核心地位,并以此为出发点,尝试构建一个既能满足基本需求,又能激发愉悦感和创造力的空间。这种对用户体验的关注,以及对传统汽车旅馆元素的重新解读,是项目成功的关键。这种以研究为基础的设计方法值得肯定。
空间设计的独特性与创新:从图片中我们可以看到,这个项目在空间设计上展现出极高的独特性和创新性。设计师巧妙地运用了材料、光线和空间布局,营造出一种既私密又开放、既舒适又充满刺激的氛围。比如,对镜面、玻璃等元素的巧妙运用,不仅增强了空间的视觉效果,也拓展了身体的感知边界。此外,项目对无障碍设计的关注也令人印象深刻。它不仅仅是满足规范要求,而是从性行为的角度出发,思考如何让不同身体的人都能在这个空间中自由、舒适地体验。这种对多元化需求的包容性是设计理念的重要体现。
建筑与身体的互动与对话:项目最精髓的地方在于它试图打破建筑与身体之间的界限,使空间成为一种与身体互动、对话的媒介。设计师思考了汽车旅馆的材料元素如何作为“假肢”来增强身体的感受和表现力,并通过空间设计来挑战传统的性别规范。这使得建筑不仅仅是满足基本功能的容器,而是成为一种促进情感交流、激发创造力的场所。这种对建筑与人之间关系的深刻思考,以及对空间可能性的不断探索,使得这个项目远远超越了普通汽车旅馆的设计,上升到了对社会、文化和人性的探讨层面。

© Carolina Lacaz

© Carolina Lacaz
建筑师提供的文字描述努。Motel项目创建了一种设计方法,该方法启动了Rodapé建筑办公室,其结构基于这样一种理解,即没有研究就不可能实践建筑。在这个特定项目中,研究旨在确定巴西汽车旅馆空间的共同想象,以重新表示元素并提出新的元素,目的是将性作为在创造的空间(套房)中占用身体的主要行为。这种性行为应该是轻松、有趣、宽容的,并且仍然受到四面墙的保护,保持巴西汽车旅馆起源时普遍存在的匿名性。整个初步研究精确地考虑了从这个想象中保留的东西,从那里重新象征的东西,以及我们将重新创造的东西。
Text description provided by the architects. The Nuu.Motel project created a design methodology that initiated the Rodapé architecture office and is structured on the understanding that it is impossible to practice architecture without research. Research, in this specific project, aimed to identify common imaginaries of the motel space in Brazil to re-signify elements and propose new ones, with the goal of confronting sex as the main action of appropriating bodies in the created spaces - the suites. This sex should be light, fun, permissive, and still protected within four walls, preserving the anonymity that is so prevalent in the origins of Brazilian motels. The entire preliminary study took into account precisely what was preserved from this imaginary, what is re-signified from there, and what we would create anew.

© Carolina Lacaz

© Carolina Lacaz

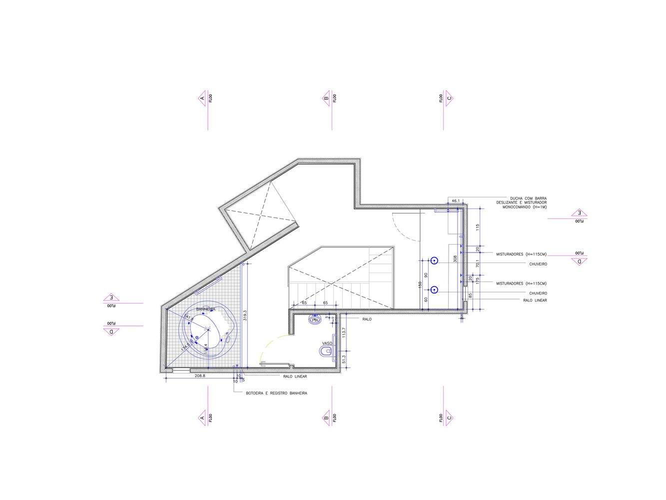
Planta - Sala de Banho

© Carolina Lacaz

© Carolina Lacaz
在这个特定的套件中,出现的挑战之一是可访问性的维度。除了当前技术标准所确立的建筑要求外,思考和设计一个无障碍汽车旅馆套房意味着从存在和体验性行为的多种方式面对身体与空间的关系。因此,一个以性行为为导向并寻求成为快乐场所的空间,如果只符合ABNT的参数,就无法进入。该空间需要作为一个实验平台,支持各种各样的性行为和表演,以不同的方式容纳和联系多个身体,以允许多种职业和拨款。
In this particular suite, one of the challenges that arose was the dimension of accessibility. Beyond the architectural requirements established by current technical standards, thinking and designing an accessible motel suite means facing the relationship of bodies with space from the many ways of existing and experiencing sexuality. Thus, a space that is oriented towards sexual practices and seeks to be a place of pleasure cannot be accessible if it only meets the parameters of ABNT. The space needs to serve as a platform for experimentation and support for the most varied sexual practices and performances, accommodating and associating in distinct ways with multiple bodies in order to allow plural occupations and appropriations.

© Carolina Lacaz

© Carolina Lacaz
汽车旅馆套房的材料元素——床、玻璃、镜子等——可以吗作为假肢发挥作用,即作为受试者的外部身体,但为了扩大身体的范围和可能性而与之相关?建筑能否挑战身体与世界、内部与外部之间的界限?哪些空间能够催化挑战性和性别规范的身体行为?
Can the material elements of a motel suite - bed, glass, mirror, etc. - function as prosthetics, that is, as external bodies to the subjects, but that associate with them in order to expand the extent and possibilities of a body? Can architecture challenge the boundaries between the body and the world, between inside and outside? Which spaces are capable of catalyzing bodily practices that challenge sexual and gender normativities?

© Carolina Lacaz