DIFF咖啡烘焙师/ASWA
DIFF Coffee Roasters / ASWA
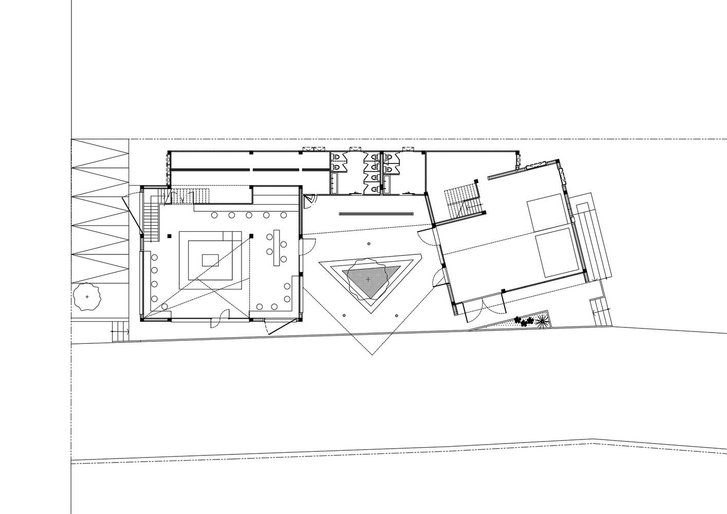
空间布局与几何美学:DIFF咖啡馆最令人印象深刻之处在于其巧妙的空间布局和对几何美学的精准把握。两个立方体结构的组合,通过三角形天桥连接,既是对传统咖啡馆设计的颠覆,又创造了丰富的视觉层次。灰色立方体的大面积三角形开口,巧妙地引入自然光线,形成变幻的光影效果,为室内空间注入了活力。黑色立方体则以其简洁的方形开口,与整体设计形成对比,强调了不同功能区域的独特性,这种几何语言的运用,赋予了建筑独特的个性与魅力。
材料运用与自然融合:该项目在材料的选择和运用上展现了对细节的极致追求。光滑的混凝土、温暖的木材和通透的玻璃,三种材料的组合,在色彩和质感上形成和谐统一,既体现了现代建筑的简洁,又带来了舒适的感官体验。更值得称道的是,设计巧妙地融入了自然元素,高耸的树木和天然树冠,不仅为室外空间提供了遮荫,更将建筑与周围环境融为一体,创造了一个人与自然和谐共生的休憩场所。这种对自然元素的尊重,提升了整个项目的品质和可持续性。
功能性与社区营造:DIFF咖啡馆的设计不仅注重美学价值,更强调其功能性和社区营造。宽敞的中庭和高耸的天花板,营造出开放、包容的氛围,鼓励人们互动和交流。精心设计的布局,将咖啡馆的不同功能区域巧妙地分隔开来,既保证了私密性,又促进了社交活动。项目的核心理念在于打造一个充满活力的社区场所,让人们在这里放松身心,享受咖啡的醇香,并建立起紧密的联系。这种以人为本的设计理念,是该项目的精髓所在,也是其取得成功的关键。

© Soopakorn Srisakul

© Soopakorn Srisakul

© Soopakorn Srisakul

Section

© Soopakorn Srisakul
建筑师提供的文字描述the Diff Coffee Roasters坐落在泰国北部地区,是一家充满活力的新当地机构,旨在培养社区意识。咖啡馆引人注目的建筑由两个立方体结构组成——一个较大的灰色立方体和一个较小的黑色立方体——通过一个视觉上迷人的三角形天桥优雅地连接在一起。这个引人注目的设计包括一棵雄伟的、高耸的树,树上有一个天然的树冠,邀请游客在阴凉的户外区域放松身心。
Text description provided by the architects. Nestled in the northern region of Thailand, The Diff Coffee Roasters is a vibrant new local establishment designed to foster a sense of community. The café's striking architecture consists of two cubic structures—one larger gray cube and a smaller black cube—elegantly connected by a visually captivating triangular flyover. This striking design embraces a majestic, towering tree with a natural canopy, inviting visitors to relax in the shaded outdoor area.

© Soopakorn Srisakul

© Soopakorn Srisakul

Plan - 1st floor

© Soopakorn Srisakul
这家咖啡馆占地约800平方米,其布局经过精心设计,旨在让顾客沉浸在舒适和创意的氛围中。较大的灰色立方体位于最前沿,具有一系列三角形开口和空隙,在整个空间中投射出复杂的光影图案,增强了其动态氛围。材料——光滑的混凝土、温暖的木材和膨胀的玻璃——经过精心挑选,以庆祝设计的简洁和纯粹。
Spanning approximately 800 square meters, the café's layout is thoughtfully designed to immerse patrons in an atmosphere of comfort and creativity. The larger gray cube, prominently positioned at the forefront, features an array of triangular openings and voids that cast intricate patterns of light and shadow throughout the space, enhancing its dynamic ambiance. The materials—smooth concrete, warm wood, and expansive glass—are meticulously chosen to celebrate the simplicity and purity of the design.

© Soopakorn Srisakul

© Soopakorn Srisakul

Plan - 2nd floor

© Soopakorn Srisakul
当客人走进房间时,他们会被欢迎进入一个宽敞的中庭,高高的天花板和三角形的天窗放大了开放的感觉。高耸的9米高与柔和的外观形成了令人敬畏的对比,将游客笼罩在一种令人惊讶和振奋的氛围中。与此同时,专用于酒吧的较小的黑色立方体与其方形开口和刻意的空隙形成了迷人的对比,营造出一种独特的氛围,使其与主咖啡馆区别开来。这些元素共同创造了一个和谐的空间,为所有进入的人带来联系、反思和享受。
As guests step inside, they are welcomed into a spacious atrium, where the high ceiling and triangular skylights amplify the feeling of openness. The soaring nine-meter height creates an awe-inspiring contrast to the subdued exterior, enveloping visitors in a surprising and uplifting atmosphere. Meanwhile, the smaller black cube, dedicated to the bar, presents a captivating contrast with its square openings and deliberate voids, offering a unique ambiance that sets it apart from the main café. Together, these elements create a harmonious space that invites connection, reflection, and enjoyment for all who enter.

© Soopakorn Srisakul