湖山水库环境教育中心/KDS建筑师
Hushan Reservoir Environmental Education Center / KDS architects
设计理念与文化传承:该项目最令人印象深刻的亮点在于其对当地文化的深刻尊重和巧妙融入。建筑师并没有简单地建造一个教育中心,而是通过设计将当地重要的地标——石神,与水库、生态保护区紧密结合,形成一个具有文化内涵的综合性环境教育公园。建筑的形态、空间布局和流线设计都巧妙地呼应了石神的文化意义,例如循环的参观路线模拟了传统的祈福仪式,梯形的建筑体量与大坝相呼应,象征着历史的变迁和社区的情感连接。这种设计不仅赋予了建筑独特的个性,也增强了当地居民的认同感,使得建筑成为连接过去、现在和未来的纽带。
可持续性与环境和谐:项目在可持续性方面的表现也堪称典范。建筑师深谙如何利用自然元素,通过遮阳、自然通风和可折叠门等被动式设计手段,最大限度地减少能源消耗,实现建筑与环境的和谐共生。屋顶绿化和风力涡轮机等设计细节更是突出了开发与保护之间的平衡。此外,对当地材料的运用,如区域石材、再生木材和金属元素,使得建筑能够与周围环境完美融合。这种低技、低成本的设计理念,不仅降低了项目的造价和维护成本,更展现了对当地环境的尊重,体现了建筑师对可持续发展深刻的理解和实践。
空间体验与情感连接:除了文化传承和可持续性,该项目在空间体验上也呈现出卓越的水准。无柱的内部空间设计创造了自由流动的空间感,与水库和溪流形成视觉上的呼应,增强了人与自然的联系。大窗框的设计将大坝、石神和保护区的景观引入室内,模糊了室内外的界限,让参观者在建筑中也能感受到周围环境的魅力。梯形建筑的形态、屋顶水滴形状的设计以及南向的阶梯等细节,都蕴含着丰富的情感,唤起了人们对历史、文化和自然的记忆。这种建筑设计不仅满足了功能需求,更关注人的情感体验,创造了一个充满诗意和人文关怀的环境教育中心。

© Manka Huang

© Manka Huang
建筑师提供的文字描述虎山水库环境教育中心位于台湾云林县斗六市,是水库建设期间保护和地方补偿工作的一部分。该中心最初是作为一个环境和生态教育大厅提出的,后来被添加以满足当地居民的期望。它与水库、生态保护区和附近的定居点一起,形成了一个促进自然生态、文化遗产和社区生活发展的综合性环境教育公园。
Text description provided by the architects. The Hushan Reservoir Environmental Education Center, located in Douliu City, Yunlin County, Taiwan, was established as part of conservation and local compensation efforts during the reservoir's construction. Originally proposed as an environmental and ecological education hall, the center was later added to accommodate local residents' expectations. Together with the reservoir, ecological conservation area, and nearby settlements, it forms a comprehensive environmental education park promoting natural ecology, cultural heritage, and community life development.

© Manka Huang

Ground Floor Plan

© Manka Huang
一个关键的文化元素是石神,这是一个因水库建设而搬迁的重要当地地标。传统上,居民在放牧时会绕着它绕三圈以获得保护。它与万山神和地神一起被移至大坝前的空地,形成了三神公园。教育中心位于公园和大坝之间,象征着保护和社区情感。
A key cultural element is the Stone God, a significant local landmark relocated due to the reservoir's construction. Traditionally, residents circled it three times for protection while herding cattle. Along with the Wanshan God and the Earth God, it was moved to an open space in front of the dam, forming the Three Gods Park. The education center, positioned between the park and the dam, symbolizes both conservation and community sentiment.

© Manka Huang

© Manka Huang

West Elevation

© Manka Huang
该中心的设计汲取了石头、水和泥土的自然元素,融合了历史、环境和情感主题:
The center's design draws from the natural elements of stone, water, and earth, integrating historical, environmental, and emotional themes:
1.历史的建筑表现:礼堂的位置和形式象征着石神的显现,反映了历史的变化。
1. Architectural Expression of History: The auditorium's placement and form symbolize the revealing of the Stone God, reflecting historical changes.
2.情感联系:它的梯形形状与大坝相呼应,将水库、石神和附近的定居点联系起来。
2. Emotional Connection: Its trapezoidal shape echoes the dam, linking the reservoir, the Stone God, and nearby settlements.
3.环境和谐:无柱内部允许自由的空间流动,与水库和附近的溪流产生共鸣。
3. Environmental Harmony: A column-free interior allows free spatial flow, resonating with the reservoir and nearby stream.

© Manka Huang

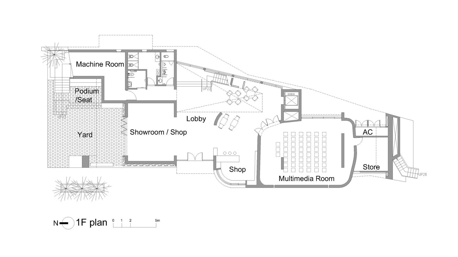
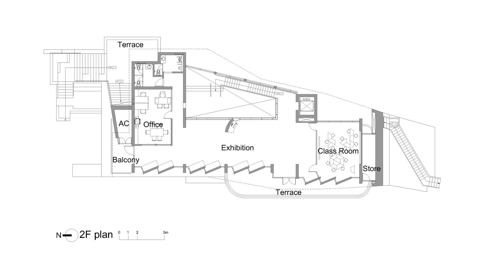
1F Floor Plan

2F Floor Plan

© Manka Huang
4.记忆唤起:循环路线模仿石神的仪式循环,强化历史记忆。
4. Memory Evocation: The circulation route mimics the ritual circling of the Stone God, reinforcing historical memory.
5.景观整合:大窗框景观,大坝、石神、保护区景观,加强场地连接。
5. Landscape Integration: Large windows frame views of the dam, Stone God, and conservation area, strengthening site connection.
6.可持续性:遮阳窗、自然通风和可折叠门在保持舒适的同时最大限度地减少了能耗。
6. Sustainability: Shaded windows, natural ventilation, and foldable doors minimize energy consumption while maintaining comfort.

© Manka Huang
7.土地改造探索:屋顶绿化和风力涡轮机突出了开发与保护之间的平衡。
7. Land Transformation Exploration: Rooftop greenery and wind turbines highlight the balance between development and conservation.
8. Symbolic Journey: South-facing stairs recall herders' mountain ascents, adding cultural depth.
9.以水为主题:屋顶的水滴形状和水池象征着水库在维持生命方面的作用。
9. Water as a Theme: The rooftop's water droplet shape and basin symbolize the reservoir's role in sustaining life.

© Manka Huang
10.当地材料和纹理:区域石材、再生木材和金属元素将建筑融入周围环境。
10. Local Materials and Textures: Regional stone, reclaimed wood, and metal elements blend the building into its surroundings.
11.低技术、低成本的方法:强调手工、可维护的建筑,中心与景观无缝融合。
11. Low-Tech, Low-Cost Approach: Emphasizing handmade, maintainable construction, the center merges with the landscape seamlessly.

© Manka Huang

Roof Plan

© Manka Huang
湖山水库环境教育中心不仅是一个建筑实体,更是人类发展与环境保护的和谐统一。它是生态教育和文化遗产的中心,培养了人们对自然和社区之间微妙平衡的认识。
The Hushan Reservoir Environmental Education Center is not just an architectural entity but a reconciliation between human development and environmental preservation. It serves as a hub for ecological education and cultural heritage, fostering awareness of the delicate balance between nature and community.

© Manka Huang