Pavilion Aurore/Sisto工作室
Pavilion Aurore / Sisto studios
创新的空间理念:极光展馆的设计突破了传统建筑的局限,通过多功能空间的融合,为使用者提供了全新的体验。它不仅是一个服务大楼,更是一个集工作、休闲、社交于一体的综合性场所。从商店、餐厅到共享办公区和礼堂,展馆的每一处都体现了对现代生活方式的深刻理解。这种创新的空间规划,为建筑赋予了生命力,使其成为拉德芳斯地区的一个亮点。
独特的建筑形态:展馆的形态设计极具特色,打破了传统直角建筑的常规。其有机的几何形状和流动的线条,仿佛在诉说着建筑的活力与动感。垂直的磨砂玻璃板条不仅为建筑提供了独特的外观,还在白天反射阳光,夜晚透出柔和的光芒,营造出一种梦幻般的氛围。这种设计不仅增强了建筑的视觉效果,还为使用者创造了与周围环境互动的机会。
可持续的材料选择:在材料的运用上,极光展馆展现了对生态和美学的双重追求。光滑的玻璃外墙与温暖、多孔的内部材料形成鲜明对比,既满足了功能需求,又赋予了建筑独特的质感。15米跨度的钢结构减少了垂直支撑,使立面更加通透。这种对材料的精心选择,不仅体现了建筑的可持续性,还为使用者带来了原始而朴素的美感,使其在现代建筑中脱颖而出。

© Nicolas Sisto

© Nicolas Sisto
建筑师提供的文字描述极光项目是一个建筑群,包括拉德芳斯的极光之旅的翻新和扩建,以及在塔前建造一座十层的服务大楼——展馆。Sisto Studios作为副建筑师,负责设计展馆和塔楼的一些公共空间。
Text description provided by the architects. The Aurore project is an architectural ensemble that includes the renovation and extension of the Tour Aurore at La Defense, along with the construction of a ten-story service building, the Pavilion, at the front of the tower. Sisto Studios, as an associate architect, is responsible for designing the Pavilion and some of the tower's common spaces.

© Nicolas Sisto

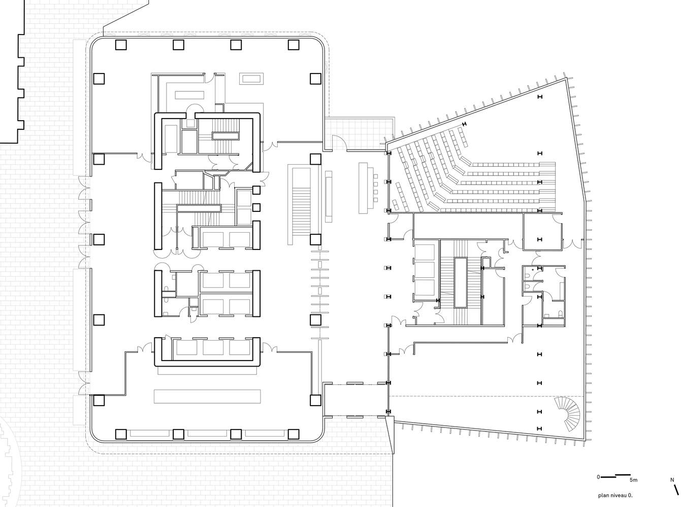
Ground Floor Plan

© Nicolas Sisto
展馆宣言-展馆挑战了国防区的主流建筑趋势
展馆周围有三座塔楼,高达100米和200米,掩盖了它的位置。只有它的南立面通往Place de l'Iris和历史悠久的拉德芳斯轴线。为了提供一个关于这个地区是如何居住和体验的新视角,展馆的设计遵循两个有机原则:-一个专为极光塔和周围建筑的用户设计的创新生活方式项目,展馆为工作和休闲提供了多功能和吸引人的空间。这些设施包括商店、餐馆、商务中心、礼堂、休息室、共享办公区和屋顶。由自由运动塑造的活建筑。受灯笼的形象和功能的启发,极光亭捕捉和漫射光线,创造了一个开放、动态的空间。它的设计包含流动性,鼓励在环境中的互动和运动。
Pavilion Manifesto - The Pavilion challenges the prevailing architectural trends in a Defense district.
The Pavilion is surrounded by three towers, reaching heights of 100 and 200 meters, which overshadow its location. Only its southern façade opens onto Place de l'Iris and the historic axis of La Defense. To offer a fresh perspective on how this district is inhabited and experienced, the Pavilion's design is guided by two organic principles: - An innovative lifestyle program dedicated to the users of the Aurore Tower and surrounding buildings, the Pavilion provides versatile and inviting spaces for work and leisure. These include shops, restaurants, a business center, an auditorium, lounges, coworking areas, and a rooftop. A living architecture shaped by free movement. Inspired by the image and function of a lantern, the Aurore Pavilion captures and diffuses light, creating an open, dynamic space. Its design embraces fluidity, encouraging interaction and movement within its environment.

© Nicolas Sisto

© Nicolas Sisto
《变形记》——亭子是一件珍贵的玻璃制品,白天反光,晚上透明。它被垂直的磨砂玻璃板条环绕,充当着为建筑和用户服务的微妙过滤器。这种有机皮肤全天捕捉不断变化的光线,放大或漫射其光芒。它在一个以办公楼为主的地区创造了一种罕见的建筑亲密感,提供了对周围社区的可控、谨慎的看法。板条的节奏充分展现了建筑几何形状创造角度的潜力。然而,展馆并不符合严格的直角。它的每个角落都有自己的意义:弓形、后退式、最长立面的凯撒式——通过建筑创造的三个城市楼层(楼板)得到了加强。这是真正意义上的活建筑,在形式和功能上都是有机的。公众可以在展馆内和周围自由活动,从圆形楼层到屋顶,从虹膜广场到Reflets广场,或者进入极光塔的接待区。一条内部街道被设计为Place des Reflets的延伸,将塔楼和展馆连接起来,增强了运动的流动性。这些融入项目的新路径与该地区的原始设计形成鲜明对比,该设计将圆形平面与步行前院围起来。
The Metamorphosis - The Pavilion is a precious glass object, reflective by day and transparent by night. It is encircled by vertical slats of frosted glass, acting as subtle filters that serve both the building and its users. This organic skin captures shifting light throughout the day, either amplifying or diffusing its glow. It creates a rare sense of architectural intimacy in a district dominated by office towers, offering controlled, discreet views of the surrounding neighborhood. The rhythm of the slats fully reveals its potential where the building's geometry creates angles. However, the Pavilion does not conform to strict right angles. Each of its corners has its own significance: bow, retreat, caesura of the longest façade - reinforced by the building's creation of three urban levels (slabs). This is living architecture in its truest sense, organic both in form and function. The public can move freely within and around the Pavilion, from the circular level to the rooftop, from Place de l'Iris to Place des Reflets, or into the Aurore Tower's reception area. An internal street, designed as an extension of Place des Reflets, links the tower and the Pavilion, enhancing the fluidity of movement. These new pathways, integrated into the project, contrast with the district's original design, which enclosed the circular level in relation to the pedestrian forecourt.

© Nicolas Sisto

South Section

© Nicolas Sisto
材料-展馆建筑中使用的材料是其身份和城市设计不可或缺的一部分。与光滑、防水的玻璃外墙相比,该建筑的核心由不透明、温暖和多孔的材料组成。跨度为15米的钢结构最大限度地减少了垂直支撑,使立面像精致的窗帘一样发挥作用。玻璃板条的严格重复,结合建筑的“非理性”几何形状和有机流动,赋予了它永恒的优雅。选择这些材料是因为它们的内在品质——原始、朴素和可持续。这反映了美学和生态视野,摆脱了商业室内典型的传统石膏和地毯饰面。
Materials - The materials used in the Pavilion's construction are an integral part of its identity and urban design. In contrast to its smooth, watertight glass exterior, the building's core is composed of opaque, warm, and porous materials. A steel structure with a 15-meter span minimizes vertical supports, freeing up the façade to function like a delicate curtain. The strict repetition of glass slats, combined with the building's 'irrational' geometry and organic flow, gives it a timeless elegance. The materials were chosen for their intrinsic qualities - raw, unadorned, and sustainable. This reflects both an aesthetic and ecological vision, breaking away from the conventional plaster and carpet finishes typical of commercial interiors.

© Nicolas Sisto