库比特街塔楼/Pandolfini建筑师事务所
Cubbit Street Tower / Pandolfini Architects
立面设计的创新与传承:库比特街塔楼最引人注目的亮点在于其立面设计。建筑师巧妙地将现代元素与当地历史文化符号相结合,创造出独树一帜的视觉语言。双层高的玻璃立面与灌木锤击混凝土门框的组合,形成强烈的对比,既简洁大气,又富有力量感。而上部铝翅片框架的设计,灵感来源于当地历史地标,如Slade Knitwear和Nylex时钟等,巧妙地将建筑与周边环境联系起来,形成独特的城市记忆。这种设计手法不仅赋予了建筑独特的个性,也体现了对当地文化的尊重和传承。
空间布局与材料运用的精妙:内部空间的设计是该项目的另一大亮点。建筑师通过对材料的巧妙运用,极大地提升了空间的品质感。宽敞的天花板高度、坚固的混凝土表面以及木饰面的应用,营造出舒适、现代且富有质感的办公环境。一楼后退的设计,创造了戏剧性的漂浮效果,增强了入口的视觉冲击力。整体空间设计注重采光和景观,使得室内空间充满活力。此外,项目还采用了太阳能和热回收系统,体现了对可持续发展理念的实践,也为建筑的长期使用提供了保障,展现了对未来办公模式的思考。
对城市文脉的回应与创新:库比特街塔楼不仅是一栋建筑,更是一次对城市文脉的回应与创新。项目位于墨尔本Cremorne的密集城市结构中,建筑师并没有简单地复制周边的建筑风格,而是通过对当地工业街景的解读,注入了大胆而富有创意的元素。建筑的外观和功能都体现了对当地蓬勃发展的创意活力以及用户日益可持续和积极的生活方式的响应。从建筑的选材、外观设计,到内部空间的功能布局,无不体现着对城市环境的尊重和对未来生活方式的思考,赋予了建筑独特的生命力,也为城市增添了新的活力。

© Rory Gardiner

© Rory Gardiner
建筑师提供的文字描述Cubitt Street Tower坐落在墨尔本Cremorne的密集城市结构中,重新诠释了熟悉的背景线索,为工业街景增添了大胆的元素。该项目包括一个高端时尚展厅、六层办公空间、一个屋顶露台和配套设施,反映了附近蓬勃发展的创意活力以及用户日益可持续和积极的生活方式。
Text description provided by the architects. Set in the dense urban fabric of Melbourne's Cremorne, Cubitt Street Tower reinterprets familiar contextual cues to deliver a bold addition to the industrial streetscape. Comprising a high- end fashion showroom, six levels of office space, a rooftop terrace and supporting amenities, the project reflects the flourishing creative energy of its vicinity and the increasingly sustainable and active lifestyle of its users.

© Rory Gardiner

© Rory Gardiner
双层高的玻璃立面由灌木锤击的混凝土大门框架构成,为地面提供了一种极简主义但威严的表达,中间点缀着手工制作的黄铜垂直叶片。上图,塔楼的玻璃立面覆盖着一个复杂的大教堂式铝翅片框架,这是一个标志性的主题,将建筑与郊区的历史标志联系起来,包括Slade Knitwear、Skipping Girl Vinegar和Nylex时钟。该框架为塔楼的中间层增添了生动的表达,为内部空间提供了隐私,并俏皮地勾勒出墨尔本中央商务区和附近地标的景色。
A double-height glazed facade framed by a bush-hammered concrete portal offers a minimalist yet commanding expression to the ground plane, punctuated by a vertical blade of hand-finished brass. Above, the tower's glazed facade is overlaid with an intricate framework of cathedral-like aluminium fins - an iconic motif that links the building to the historic signage of the suburb, including Slade Knitwear, Skipping Girl Vinegar and the Nylex clock. The framework lends a lively expression to the tower's middle levels, affords privacy to its interior spaces, and playfully frames views across Melbourne's CBD and nearby landmarks.

© Rory Gardiner

© Rory Gardiner

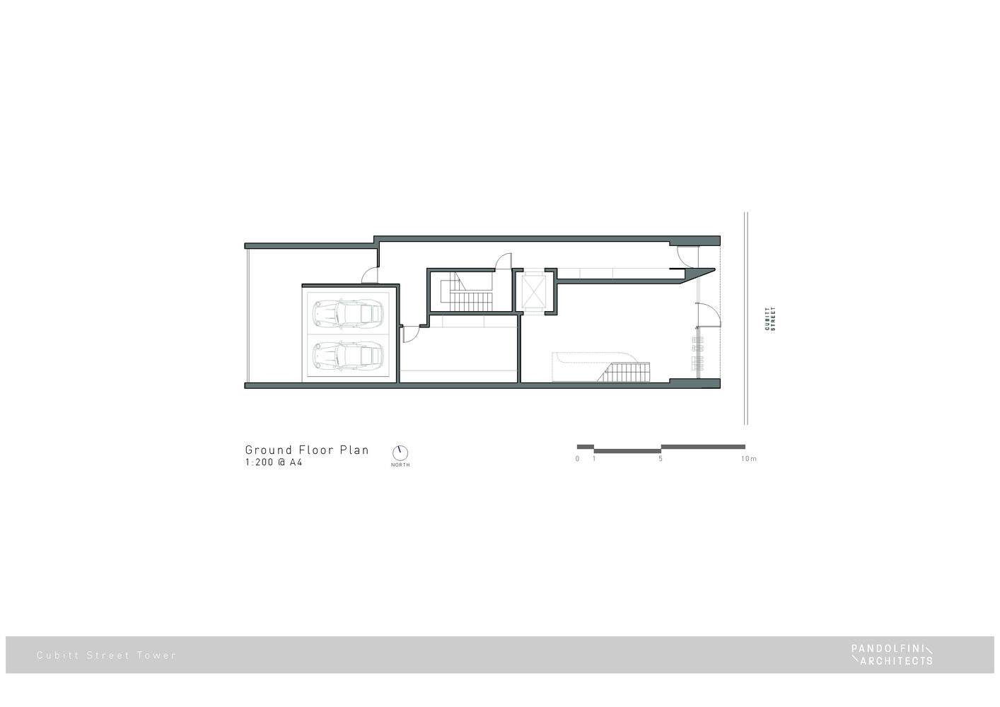
Ground Floor Plan

© Rory Gardiner
在内部,一楼从玻璃立面向后延伸,为入口门厅营造出戏剧性的漂浮效果和规模感。在上面的楼层,宽敞的天花板高度、坚固的混凝土表面和覆盖着木饰面的设施扩大了狭窄建筑的空间印象。这些持久的室内设计,充满了自然光和景观,提升了居住者的工作生活和繁荣,而一个全面的太阳能和热回收系统优化了建筑性能,使建筑经久耐用。
Internally, the first floor is set back from the glazed facade, establishing a dramatic floating effect and sense of scale to the entry foyer. In the levels above, generous ceiling heights, robust concrete surfaces and amenities shrouded in timber veneer expand the narrow building's impression of space. These enduring interiors, awash with natural light and views, elevate the working lives and prosperity of the occupants, while a comprehensive solar and heat recovery system optimises building performance, sustaining the building over time.

© Rory Gardiner