LAB商店/Architrip股份有限公司。
LAB Store / Architrip Inc.
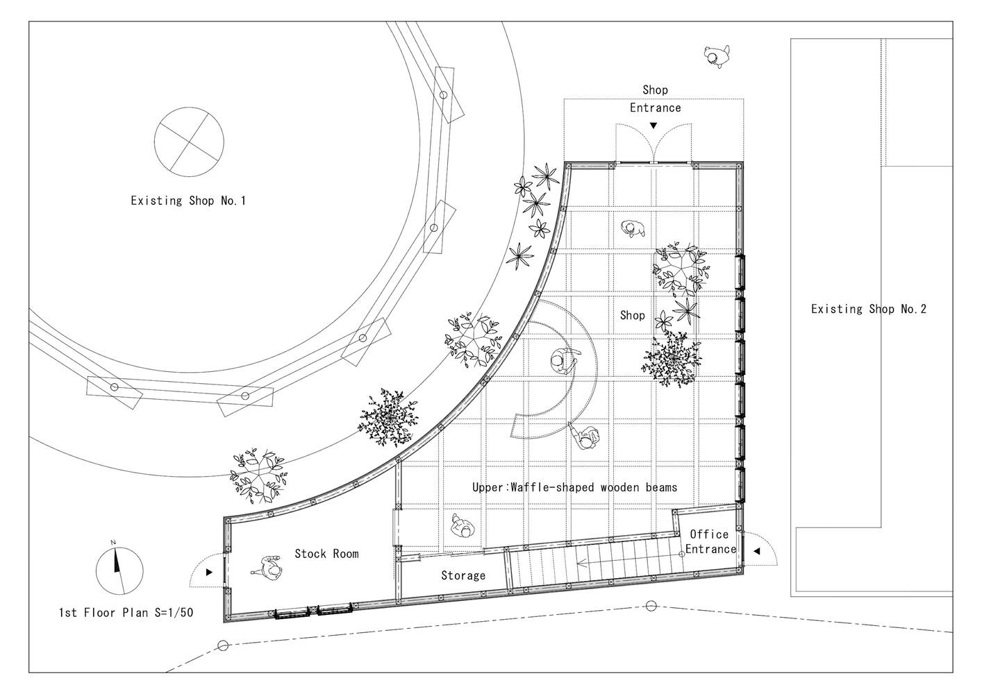
空间融合与延续:该项目最显著的亮点在于其对空间关系的巧妙处理。设计团队在两个风格迥异的现有建筑之间,创造了一个既独立又融合的新空间。通过审慎地分析既有建筑的共通之处——木质元素和半室外空间,设计师成功地将新建筑融入整体环境。第三家商店的入口悬挑设计,不仅实现了与现有商店的流线连接,更巧妙地利用了半室外空间,将其打造为连接不同商店的重要交通枢纽。这种设计策略体现了对现有条件的尊重和对空间利用的极致追求,使得整个建筑群形成一个和谐统一的整体。
材质运用与光线营造:项目的精髓体现在对材质的精细运用和光线效果的精心营造。内部空间的华夫饼形木梁结构,不仅具有结构美感,更赋予了空间独特的视觉张力。3.5米高的天花板设计,使得室内空间开阔明亮,与半室外空间形成视觉上的延续。外墙采用的300毫米宽垂直墙板和内墙的硅藻土涂料,则赋予了建筑丰富的质感和独特的肌理。弧形墙的设计,为空间引入了深度和柔软感,并与天窗引入的自然光线相互作用,营造出舒适、明亮、充满活力的室内氛围。这些细节处理,共同提升了建筑的品质和体验感。
整体性和个性:该项目在整体性和个性化之间找到了绝佳的平衡。尽管三栋建筑风格各异,但设计者通过运用共同的设计元素,如木材和半室外空间,将它们巧妙地联系在一起,营造出一种浑然天成的整体感。这种策略使得新建筑与周围环境融为一体,仿佛早已伫立于此。与此同时,每栋建筑又都保持着独特的个性,呈现出不同的外观和氛围。这种既统一又多元的设计手法,使得整个建筑群既有辨识度,又能在视觉上形成丰富的层次。最终,项目打造了一个充满活力,能够为城市带来积极影响的场所,体现了建筑师的设计理念和对城市空间的热爱。

© Yoshiki Yokoyama

© Yoshiki Yokoyama
建筑师提供的文字描述我们在福岛县福岛市中心的一家商业设施的旧址上设计了一家新店。客户的要求是在现有的1号和2号商店之间在现场建造第三家商店(89平方米)。现有的1号铺具有特殊的结构形式和有机的平面形状,而现有的2号铺是一座黑色墙板的简单建筑。主要问题是在这些对比鲜明的建筑之间的空间里应该创造什么样的新建筑。
Text description provided by the architects. We designed a new shop on the site of a commercial facility located in the center of Fukushima City, Fukushima Prefecture. The client's request was to build a third shop on the site (89 m2) between the existing shops No. 1 and No. 2. Existing shop No. 1 has a special structural form and organic plan shape while existing shop No. 2 is a simple building with black siding. The major issue was what kind of new architecture should be created in the space between these contrasting buildings.

© Yoshiki Yokoyama

Site Plan

© Yoshiki Yokoyama
我们决定最有效地利用建筑的有限面积,将一楼用作商店,二楼用作办公室和建筑,其形状是通过缩小现有商店的轮廓和边界而呈现的。虽然第一家和第二家商店乍一看似乎是不同类型的建筑,但我们发现了一个共同点,即它们采用木材作为设计元素,融入了一个半室外空间。
We decided to make the most effective use of the limited area of the building by using the first floor as a shop and the second floor as an office and building in a shape that appears by receding the outline and boundaries of the existing shop. Although the first and second shops appear to be different types of buildings at first glance, we found a commonality in that they incorporate a semi-exterior space using wood as a design element.

© Yoshiki Yokoyama
我们设计了第三家商店,将这一共同的空间元素融入其设计中。一楼商店的入口部分悬挂在二楼,与现有商店形成连续的流线。这个半室外空间是不同商店之间交通的重要连接点。
We designed the third shop to incorporate this common spatial element into its design. The entrance to the first-floor shop is partially overhung from the second floor to create a continuous flow line from the existing shop. This semi-exterior space serves as an important connection point for traffic between the different shops.

© Yoshiki Yokoyama
一旦进入商店,华夫饼形状的木梁就会暴露出来。天花板高3.5米,与现有店铺的半外部空间相连,营造出宽敞的环境。光线通过高边窗户流入,创造了一个明亮的空间,白天自然光充满了室内。
Once inside the shop, the waffle-shaped wooden beams are exposed. The ceiling is 3.5m high and is designed to be continuous with the half-exterior space of the existing shop, creating a spacious environment. Light streaming in through high-sided windows creates a bright space where natural light fills the interior during the day.

© Yoshiki Yokoyama

First Floor Plan

© Yoshiki Yokoyama
弧形墙的外部覆盖着300毫米宽的垂直墙板,内部涂有硅藻土。这面引人注目的弧形墙壁为空间带来了深度和柔软性,也为这个地方增添了多样性。在二楼的办公空间中,计划在俯瞰整个场地的位置设置一个私人阳台,以给人一种整个商店的感觉。
The exterior of the curved wall is covered with vertical 300 mm wide siding, and the interior is painted with diatomaceous earth. This striking curved wall brings depth and softness to the space and also serves as an accent that adds variety to the place. In the office space on the second floor, a private balcony was planned in a position overlooking the entire site to give a sense of the entire shop.

© Yoshiki Yokoyama
纵观整个建筑群,似乎有三兄弟并肩而立,每个人都有不同的性格。虽然它们有不同的外观和氛围,但我们有意设计了共同的设计元素,创造出一种自然景观,仿佛它们已经站在那里很长时间了。我们希望将来有很多人参观这座建筑,它将成为一个给城镇带来活力的地方。
Looking over the entire building complex, it seems as if there are three brothers standing side by side, each with a different character. Although they have different looks and atmospheres, we intentionally designed common design elements to create a natural landscape as if they had been standing there for a long time. We hope that many people will visit the building in the future and that it will become a place that brings liveliness to the town.

© Yoshiki Yokoyama