绿色和平组织比利时总部/群岛
Greenpeace Belgium HQ / archipelago
可持续性策略的典范:“绿色和平组织比利时总部”项目最突出的亮点在于其对可持续性设计原则的深刻理解与实践。 项目充分利用了现有建筑结构,通过翻新和改造,最大程度地减少了对新材料的需求,从而显著降低了建筑的隐含碳排放。设计师并未仅仅追求视觉上的新颖,而是深入分析了现有建筑的特性,包括结构、能源流和空间布局,并将其与绿色和平组织的工作和活动需求进行“匹配”,这种“充足性”策略体现了设计师在可持续建筑上的专业素养,以及对资源利用的最大化,避免了过度设计与浪费。
活动导向型设计的创新:项目将“活动导向型”设计理念发挥得淋漓尽致。设计师深入了解绿色和平组织的工作流程,包括会议、协作、创作等多种活动,从而为不同活动类型量身定制了空间。这种设计思路打破了传统办公室的单调和单一,创造了多功能的、灵活的、可适应不同需求的办公环境。通过共享空间和设施的巧妙安排,促进了员工之间的互动和社区建设,提升了办公空间的活力和凝聚力。同时,项目还考虑了声学等细节问题,确保不同活动之间的相互干扰最小化,这种以人为本的设计理念值得肯定。
“匹配”策略下的空间多样性:该项目最精髓之处在于“匹配”策略的应用,设计师将建筑结构、能源流、活动需求完美地融合在一起,创造出丰富的空间体验。通过对现有建筑的保留、翻新与改造,以及室内外空间的精心设计,营造出多样化的空间组合,既有公共的开放区域,也有私密的独立空间,满足了绿色和平组织在不同场景下的需求。这种策略不仅实现了建筑的可持续性,也使建筑本身具有了强大的生命力,能够适应组织的发展和变化。这种空间的多样性,也为使用者提供了更丰富和个性化的体验,反映了设计师对建筑与人之间关系的深刻理解。

© Stijn Bollaert

© Stijn Bollaert
建筑师提供的文字描述新的绿色和平组织比利时总部位于布鲁塞尔市中心的一个密集的建筑群中。现有的结构曾经属于一个古老的管风琴工作室,名为布鲁塞尔的阿尔格斯制造厂。为了揭示工厂建筑的品质,一个“配对”过程导致了新办公室规划的创新方法:对现有结构以及内部和周围的气候进行了分析,并与绿色和平团队的具体活动(从正式会议到攀岩)进行了匹配,从而形成了一个低技术项目和一个高质量的工作环境。
Text description provided by the architects. The new Greenpeace Belgium HQ is located in a dense building block in the city center of Brussels. The existing structures used to belong to an old organ atelier, called Manufacture d'Orgues de Bruxelles. To uncover the qualities of the factory building, a process of 'matchmaking' resulted in an innovative approach towards the programming of the new offices: the existing structures, as well as the interior and surrounding climates, were analyzed and matched with specific activities from the Greenpeace team (from formal meetings to wall climbing), resulting in a low-tech project and a high-quality work environment.

© Stijn Bollaert

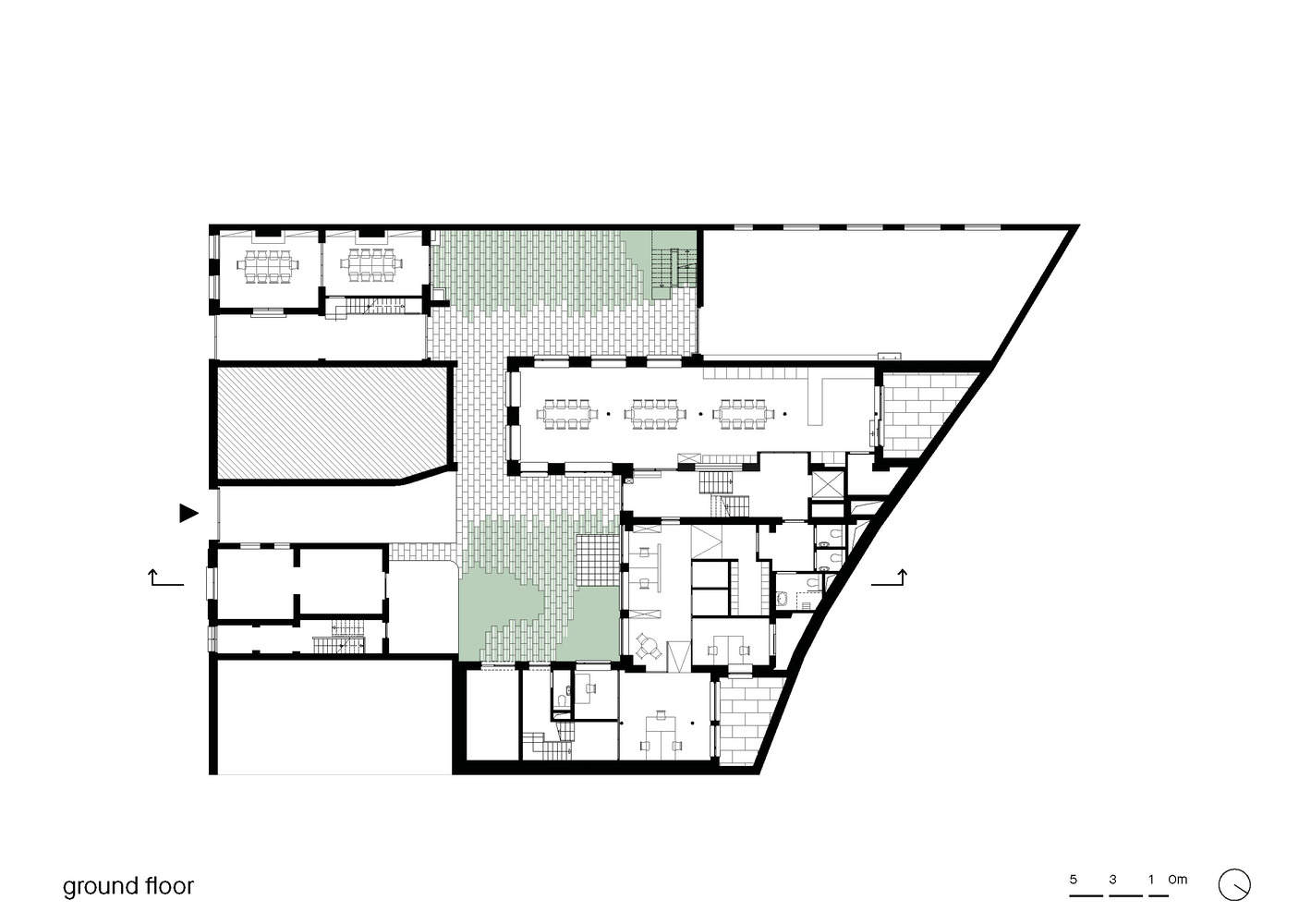
Ground Floor Plan

© Stijn Bollaert
充分性-我们对位于布鲁塞尔快速发展的“运河区”的Vergotedok遗址进行了仔细研究,发现了一种有趣的混合氛围。典型的布鲁塞尔排屋和后面隐藏的仓库。对面的水和水泥筒仓的开阔视野。遗产建筑和高度多样化的社区。为了保持这种氛围的混合,提出了“充足”的策略作为项目设计的指导原则。这意味着我们首先从结构和能源的角度考虑可用的东西,然后考虑为建筑中发生的特定活动使用“刚好足够”的策略。
Sufficiency - We made a careful study of the site at the Vergotedok, located in the rapidly evolving 'canal zone' of Brussels, and found an interesting mix of atmospheres. Typical Brussels row houses and a hidden warehouse at the back. Open views towards the water and cement silos on the opposite side. Heritage buildings and a hyper-diverse neighborhood. To maintain this mix of atmospheres, a strategy of 'sufficiency' was proposed as the guiding principle for the design of the project. This means that we look first at what is available, in terms of structure and energy, and then look at strategies to use 'just enough' for specific activities taking place in the building.

© Stijn Bollaert
基于活动-我们在前绿色和平组织办公室和奥斯坦德的彩虹勇士号船露营,开始了一个共同创造的过程。接下来,基于活动的方法使我们确定了绿色和平组织的几项工作活动:大型会议、小型会议、非正式会议、重点工作、打电话、吃饭、制作和攀爬。绿色和平组织和当地组织共享这些空间,旨在支持社会互动,培养社区意识。因此,除了根据绿色和平组织的需求量身定制该计划外,我们还通过分组活动、考虑共享设施以及重要的隔音屏障来研究共享空间的管理。通过这种方式,我们创建了一个工作环境,在这个环境中,多个活动可以同时发生,如果需要,可以相互干扰。
Activity-Based - We started a co-creation process by camping out at the former Greenpeace offices and the Rainbow Warrior ship in Ostend. Next, an activity-based approach led us to identify several work activities at Greenpeace: large meetings, small meetings, informal meetings, focus work, calling, eating, making, and climbing. The sharing of these spaces, by Greenpeace and local organizations, aims to support social interaction and foster a sense of community. In addition to tailoring the program to the needs of Greenpeace, we, therefore, looked at the management of the shared spaces by clustering activities and considering shared facilities as well as important acoustical barriers. In this way, we created a work environment where multiple activities can happen simultaneously and interfere if desired.

© Stijn Bollaert

Section

© Stijn Bollaert

© Stijn Bollaert
匹配-低环境影响应该在建筑上具有高影响。保护、翻新和改造的选择不仅对减少隐含碳至关重要,而且还挑战我们发挥增量拼凑的现象,以揭示空间的巨大多样性。根据我们将现有结构和能量流与特定活动相匹配的目标,我们为该项目的计划做出了一些明显的选择,比如后面的旧风琴工作室成为绿色和平活动家的工作室,或者把客房放在前面的排屋里。然而,在前后之间,我们设计了一系列精心设计的室内外空间、公共和私人区域,以及或多或少有条件的室内气候,为绿色和平组织的动态和不断变化的组织提供了多种空间选择。
Match-Making - Low impact environmentally should have a high impact architecturally. The choice to preserve, renovate, and transform is not only critical for the mitigation of embodied carbon, but it also challenges us to play out the phenomenon of incremental bricolage to uncover a great diversity of spaces. Following our aim to match existing structures and energy flows with specific activities, we made some evident choices for the program of the project, like the old organ atelier in the back that becomes the workshop for Greenpeace activists or placing the guest rooms in the row houses in front. However, in between front and back, we designed an elaborate sequence of indoor and outdoor spaces, public and private areas, and more or less conditioned interior climates, providing multiple spatial options for the dynamic and ever-changing organization of Greenpeace.

© Stijn Bollaert