Lundby学校/D办公室
Lundby School / D Office arkitekter
场地与传承的巧妙融合:D办公室设计的Lundby学校,其亮点在于对场地文脉的深刻理解和回应。设计团队没有选择完全的推倒重建,而是保留了部分旧校建筑,并在新建筑中融入红砖等传统材料,实现了新旧之间的对话。这种设计策略不仅是对历史的尊重,也是对社区记忆的延续。同时,大型玻璃幕墙的使用,则赋予了建筑现代感,并积极展示内部活动,与周边环境形成互动。这种融合,使学校既有历史的沉淀,又有现代的活力,体现了设计者对时代精神的敏锐把握。
功能性与人文关怀的完美结合:该项目的精髓在于其对使用者需求的深刻理解和周全考虑。学校不仅满足了教学的基本需求,还设有文化学校和体育馆,以及配套的体育和协会管理设施,充分考虑了课余活动的丰富性。内部设计更是体现了对学生的人文关怀,例如,选择板岩和木材等天然材料,结合深色色调的柔和配色方案,营造了平静和谐的氛围。这种设计理念,旨在创造一个安全温馨的学习环境,让学生在学校中找到归属感,促进他们的身心健康发展。体育馆的设计也考虑到了社区的使用需求,可容纳千人观众,并可灵活分隔,体现了建筑的开放性和共享性。
空间布局与细节设计的匠心独运:Lundby学校的空间布局展现了设计师的卓越才华。建筑师精心设计了一楼的活动区域,并通过大面积的玻璃窗,将室内活动展现给室外,营造出一种活跃、开放的氛围,促进了建筑周围的安全户外环境。室内细节设计同样令人印象深刻,从材料的选择到色彩的搭配,无不体现着设计的用心。特别是体育馆的设计,在满足大型活动需求的同时,又兼顾了灵活性和多功能性,体现了设计师对不同使用场景的深刻思考。总而言之,Lundby学校项目通过对材料、色彩、空间和光线的精心运用,为学生和社区创造了一个令人印象深刻的、充满活力和关怀的场所。

© Bert Leandersson

© Bert Leandersson
建筑师提供的文字描述我们有幸为哥德堡市设计了位于希辛根的新Lundby学校。该学校于2024年完工并准备投入使用,专为7-9年级的630名学生以及义务教育阶段的智障学生而设计。
Text description provided by the architects. We have had the honor and trust of designing the new Lundby School on Hisingen for the City of Gothenburg. The school was completed and ready for occupancy in 2024 and is designed for 630 students in grades 7-9, as well as students with intellectual disabilities in compulsory school.

© Bert Leandersson

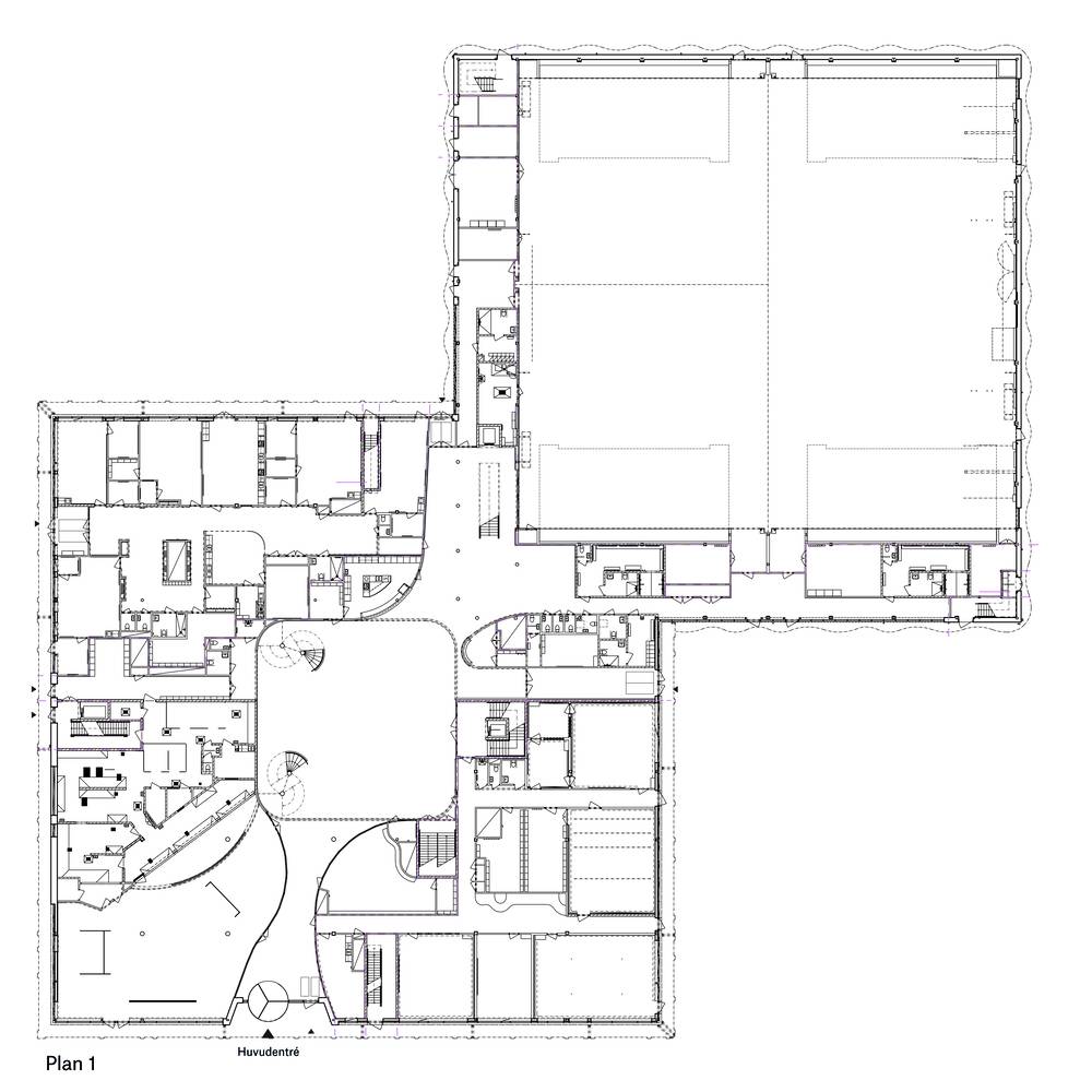
Ground Floor Plan

© Bert Leandersson
该建筑还设有一所文化学校和一个体育馆,以及体育和协会管理的相关设施。学校设计的一个重要起点是在上课期间和放学后创造一个安全温馨的地方和一个茁壮成长的环境。
The building also houses a cultural school and a sports hall with associated facilities for the sports and association administration. An important starting point for the design of the school has been to create a safe and welcoming place and an environment to thrive in, both during and after school hours.

© Bert Leandersson

1st Floor Plan

© Bert Leandersson
对于建筑的外观设计来说,与位置和旧学校(通过使用红砖和传统材料选择)联系起来非常重要,旧学校已被部分保留。同时,该建筑的立面设计反映了它是一所现代学校,一座满足当代社会需求的建筑。学校的立面以大型玻璃部分为特征,展示了周边地区的活动。
For the exterior design of the building, it was of great importance to connect to the location and the old school (through the use of red brick and traditional material choices.), which has been partially preserved. At the same time, the building's facade was designed to reflect the modern school that it is, a building that meets the demands of contemporary society. The school's facade is characterized by large glass sections that showcase the activities of the surrounding area.

© Bert Leandersson
因此,一楼的活动有助于照亮空间,促进建筑周围的安全户外环境。室内设计以板岩和木材等天然材料为特征,结合深色色调的柔和配色方案,营造出一个平静和谐的环境,让学生有宾至如归的感觉。体育馆包括一个活动大厅,可容纳1000名观众,天花板高度为10米。大厅可以分为两个带幕墙的全尺寸大厅,使学校和社区组织能够以最佳方式使用这些空间。
The activities on the ground floor thus help illuminate the space to promote safe outdoor environments around the building. The interior design is characterized by natural materials such as slate and wood, combined with a subdued color scheme in dark hues, to contribute to a calm and harmonious environment where students can feel at home. The sports hall consists of an event hall with retractable bleachers for 1,000 spectators and a ceiling height of 10 meters. The hall can be divided into two full-sized halls with a curtain wall, allowing the spaces to be used in the best possible way by both the school and the community organizations.

© Bert Leandersson