Cheer幼儿园/HIBINOSEKEI+有志无志
Cheer Kindergarten / HIBINOSEKKEI + Youji no Shiro
空间与活动的巧妙结合:这个幼儿园项目最引人注目的亮点在于其对空间和儿童活动的创造性融合。设计者巧妙地利用了中庭这一核心空间,将其打造为连接不同楼层、促进社交互动和激发挑战的场所。攀爬网结构的引入,不仅丰富了垂直空间的体验,更鼓励了儿童的运动和探索。走廊的改造也十分出色,通过大窗户和阅读区的设置,将原本单调的空间转化为充满活力和学习氛围的场所。这种对空间的精细化设计,体现了设计者对儿童行为模式的深刻理解,实现了空间利用的最大化和趣味性的最大化。
自然元素与可持续设计的和谐统一:项目的精髓在于对自然元素的巧妙运用以及对可持续理念的贯彻。室内设计大量采用天然材料,如受场地地质启发的土墙和弯曲的层压竹,营造出一种温馨而富有质感的环境,同时也激发了儿童对自然和当地环境的认知。此外,项目在原有建筑的基础上进行改造,最大限度地保留了外墙,减少了建筑垃圾,体现了可持续设计的理念。可操作的玻璃天窗和开放式设计,促进了空气流通,控制了光线和风,降低了对机械系统的依赖,体现了设计对环境友好的态度,实现了建筑与自然的和谐统一。
寓教于乐的设计理念与儿童发展:该项目的设计理念深深植根于儿童的发展需求。通过创造性的空间布局,例如将地下室与一楼花园连接,形成无死角的空间花园,为儿童提供了丰富的活动和体验机会。这种设计鼓励儿童的自主探索和身体活动,激发了他们的好奇心和兴趣。而中庭的核心地位,以及“鸟巢”概念的融入,更是赋予了建筑象征意义,为儿童创造了难忘的记忆。设计者充分考虑了儿童的年龄和发展阶段,将学习、游戏和自然元素巧妙结合,真正实现了寓教于乐的目的,促进了儿童的全面发展。这种以儿童为中心的设计理念是该项目的核心价值体现。

© Siming Wu

© Siming Wu
建筑师提供的文字描述这是一个位于中国深圳南山区的新建幼儿园的室内项目。该幼儿园位于一个以贸易和IT相关业务而闻名的地区,其设计理念是为了鼓励儿童自发的体育活动,反映了该地区的动态增长和发展。
Text description provided by the architects. This is an interior project for a newly established kindergarten located in Nanshan District, Shenzhen, China. The kindergarten is situated in a region known for trade and IT-related businesses, and the design concept was developed to encourage children's spontaneous physical activity, reflecting the area's dynamic growth and development.

© Siming Wu

© Siming Wu
现有建筑的中心是一个四层楼高的中庭,周围环绕着连接东西两侧三层楼的大型攀爬网结构。中庭连接着建筑内的各个空间。它不仅是一个垂直流通的地方,也是一个社交互动的地方,对孩子们来说也是一个挑战。面对中庭的走廊上放置了大窗户和阅读区,让自然光进入教室,同时将通常单调的走廊变成了玩耍和学习的空间。
At the center of the existing building is a four-story atrium, surrounded by large climbing net structures that connect the three levels on both the east and west sides. The atrium links various spaces within the building. Not only does it serve as vertical circulation, but also as a place for social interaction and a challenge for the children. Large windows and reading areas are placed in the hallways facing the atrium, allowing natural light to enter the classrooms while transforming the typically monotonous hallway into a space for play and learning.

© Siming Wu

© Siming Wu

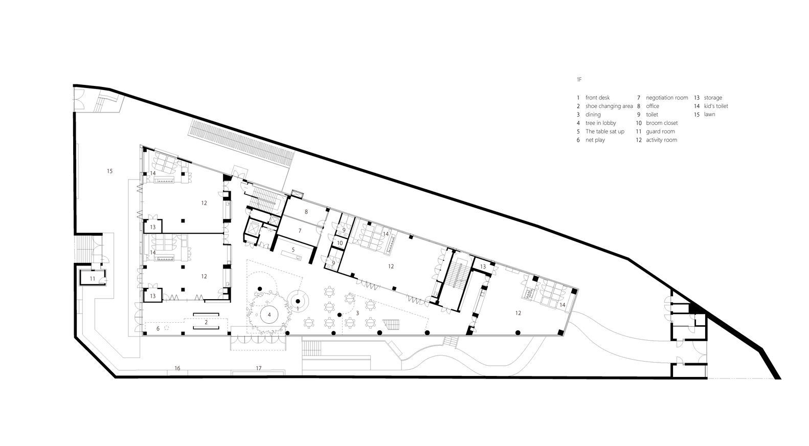
Plan - Ground Floor

© Siming Wu
此外,院子里还种了一棵大树,这样孩子们就可以观察它随着时间的推移而生长和变化,无论他们站在建筑的哪个位置,都能感受到大自然的流动。除了围绕代表养育生命的“鸟巢”概念设计的游戏和学习区外,它还作为幼儿园的象征,为孩子们留下了永恒的记忆。
Additionally, a large tree is planted in the courtyard so that children can observe its growth and transformation over time, allowing them to feel the flow of nature no matter where they stand in the building. In addition to the play and learning areas designed around the concept of a 'bird's nest,' representing nurturing life, it also serves as the symbol of the kindergarten, resulting in a space that imprints an everlasting memory on children.

© Siming Wu

© Siming Wu

Plan - 2nd Floor

© Siming Wu
室内设计侧重于使用天然材料,例如采用受场地地质层(老红砂岩)启发的土墙,弯曲层压竹子来代表鸟巢。这种方法旨在刺激视觉和触觉,同时促进对自然和当地环境的理解。
The interior design focuses on using natural materials, such as adopting earth walls inspired by the site's geological layers (old red sandstone) and bending laminated bamboo to represent a bird's nest. This approach aims to stimulate both visual and tactile senses while fostering an understanding of nature and the local environment.

© Siming Wu

Sections

© Siming Wu
为了减少建筑垃圾对环境的影响,现有建筑的大部分外墙保持不变,增加了一些大开口和可折叠门,将室内活动与室外连接起来。这些功能与可操作的玻璃天窗一起,在中庭周围产生气流,控制光线和风,而不严重依赖机械系统。
To reduce the environmental impact of construction waste, most of the existing building's exterior walls were left unchanged, with a few large openings and foldable doors added to connect the indoor activities to the outside. Together with operable glass skylights, these features create a flow of air around the atrium and control light and wind without relying heavily on mechanical systems.

© Siming Wu
空间有限是城市地区幼儿园通常面临的常见挑战。为了应对这一挑战,通过将地下室和一楼花园与楼梯和草覆盖的斜坡连接起来,创造了一个没有死角的空间花园,确保孩子们有足够的机会进行体育活动和各种日常体验。该设计根据儿童的发展阶段鼓励他们的好奇心和兴趣,自然地刺激他们的身心,促进他们在日常生活中的成长。
Limited space is a common challenge typically faced by kindergartens in an urban area. To cope with the challenge, a spatial garden with no dead ends was created by connecting the basement and ground floor gardens with stairs and grass-covered slopes, ensuring that children have plenty of opportunities for physical activity and a variety of daily experiences. The design encourages children's curiosity and interest according to their developmental stages, naturally stimulating their bodies and minds to promote growth in their everyday lives.
© Siming Wu