移民烹饪学校
Cooking School for Migrants
空间组织与功能布局的巧妙融合:该项目最引人注目的亮点在于其对空间组织的精妙设计。建筑师将一个废弃的工业建筑改造为烹饪学校,充分利用了原有建筑的结构优势。内部空间布局紧凑而高效,包括了独立的烹饪工作站、技术室、更衣室等,满足了教学和实践的需求。双层高的“集市”活动空间更是点睛之笔,它不仅提供了举办活动和交流的场所,还将室内空间与外部广场连接起来,形成内外互动,增强了建筑的开放性和活力。这种功能与空间的完美结合,体现了设计师对建筑使用者的深刻理解。
对原有工业建筑的尊重与创新:项目的另一个重要特征是它在翻新过程中,既保留了原有工业建筑的特色,又融入了现代设计元素。建筑师没有选择完全推翻原有结构,而是尊重其历史和文化价值,并对立面进行了精心设计。通过保留和改进原有立面,同时采用木材作为外墙和外部细木工的材料,与砖和混凝土的结合,为建筑赋予了温暖和实用性。这种新旧元素的巧妙融合,不仅提升了建筑的美学价值,也使其在周围环境中脱颖而出,实现了建筑的可持续发展,并赋予了建筑独特的个性和魅力。
社会责任与实用性的完美结合:除了建筑本身的设计,该项目还体现了强烈的社会责任感。作为一个为移民提供烹饪培训的学校,其设计必须考虑到不同文化背景的使用者的需求。项目在空间布局、材料选择和氛围营造上都体现了这种关怀,例如开放式的“集市”空间、灵活的教室设计、以及温暖舒适的材料选择。此外,建筑的实用性也得到了充分体现,流线设计、采光通风、以及无障碍设施都考虑周全。这种社会责任与实用性的完美结合,使该项目不仅仅是一个建筑作品,更是一个服务于社区、促进社会融合的场所,具有深刻的社会意义。
of Renovation Industrial Hall /
FREAKS

© David Foessel

© David Foessel

© David Foessel

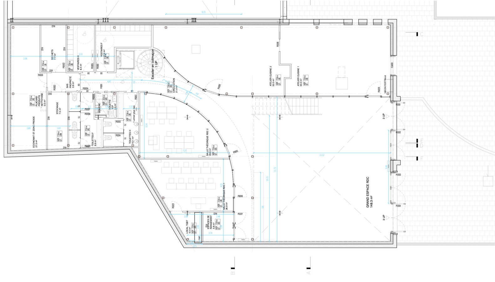
Ground Floor Plan

© David Foessel

© David Foessel
建筑师提供的文字描述该项目包括在法国蒙特勒伊的一座前当地工业建筑内为“Cuistots Migrateurs”协会建立一所烹饪学校,该建筑由带机库屋顶的金属结构组成。
Text description provided by the architects. The project consists of setting up a cooking school for the « Cuistots Migrateurs » association in a former local industrial building located in Montreuil, France, made up of a metal structure with hangar roofs.

© David Foessel
学校为普通移民提供烹饪培训,提供理论和实践课程。内部空间经过精心组织,可容纳配备独立工作站的厨房、技术室、更衣室和双层高的“集市”活动空间,将内部与外部广场连接起来。
The school offers cooking training for regular migrants, offering both theoretical and practical courses. The interior spaces are organized to accommodate kitchen rooms equipped with individual workstations, technical rooms, changing rooms, and a double-height "agora" event space, connecting the interior to the exterior square.

© David Foessel

Section

© David Foessel
楼上有教室、办公室和学生午餐区。两个楼梯和一个人员电梯允许流体在楼层之间循环。
Upstairs there are classrooms, offices and a lunch area for students. Two staircases and a personnel elevator allow fluid circulation between levels.

© David Foessel

© David Foessel
从美学上讲,翻修尊重了现有的工业建筑:立面的设计得到了保留和改进,在保留原有风格的同时融入了当代元素。立面和外部细木工制品由木材制成,与建筑的砖和混凝土相协调,创造出一个既温暖又实用的空间。
Aesthetically, the renovation respects the existing industrial architecture: the design of the facade is
preserved and improved to include contemporary elements while retaining the original style. The facade and exterior joinery are made of wood, to harmonize with the brick and concrete of the building, and create a space that is both warm and functional.
© David Foessel