卢米奥学校/阿米莉亚·塔维拉
Lumio School / Amelia Tavella
设计理念的深度融合:卢米奥学校项目最令人赞赏的,是其对环境的深刻理解和回应。设计师阿米莉亚·塔维拉将建筑视为与科西嘉岛狂野而浪漫的自然景观对话的媒介。她没有选择突兀地介入,而是顺应地势,追随土地的曲线,让建筑“滑入”其中。这种设计理念体现在对当地石材巴拉涅石花岗岩的运用,以及对梯田式农业结构的借鉴。这种融合不仅是视觉上的,更是精神上的,体现了对科西嘉岛历史和文化遗产的尊重,营造出一种谦逊且尊重自然的建筑姿态。这种设计手法赋予了学校独特的生命力,使其成为环境的有机组成部分。
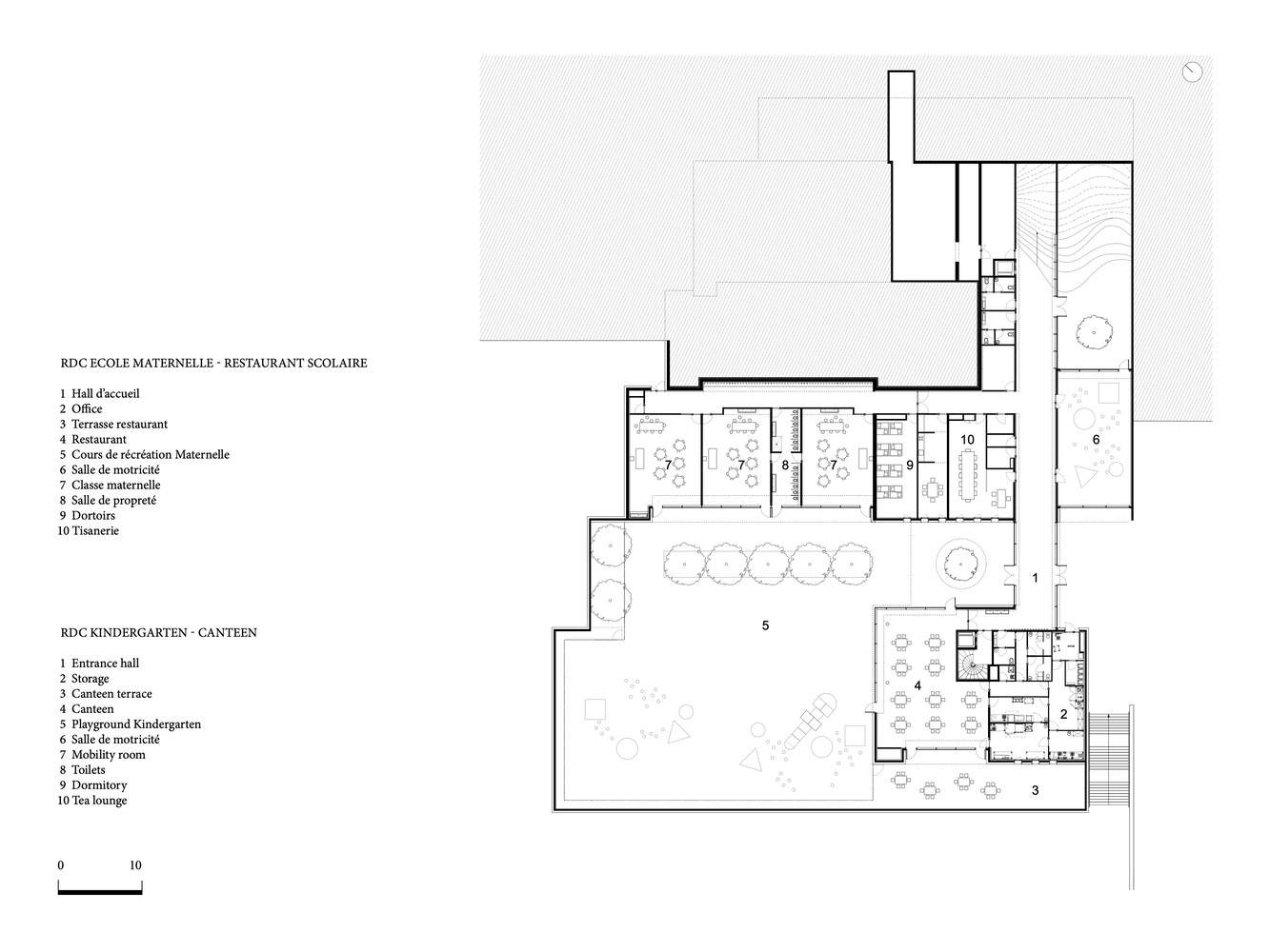
空间与功能的巧妙结合:该项目在空间布局上展现了极高的智慧。学校被设计成三个脉动的建筑体量,象征着知识的递进和上升。小学教室位于最高层,俯瞰村庄;幼儿园和文化中心则位于低层,与山谷相连。这种垂直的空间组织,巧妙地利用了地形,创造了丰富的空间层次,同时也赋予了建筑象征意义。更值得称道的是,建筑师将屋顶设计成操场,将空间利用发挥到极致,孩子们的活动与学习环境融为一体。内部街道和露天剧场般的楼梯,连接了不同的楼层,促进了交流,并为孩子们提供了自由探索的空间。这些设计细节体现了建筑师对儿童教育的深刻理解和对建筑功能的极致追求。
艺术与建筑的和谐共生:卢米奥学校的一大亮点在于艺术与建筑的完美结合。设计师邀请艺术家参与楼梯的设计,不仅提升了建筑的美学价值,更重要的是,将艺术融入到儿童的日常学习环境中。楼梯本身的设计也颇具匠心,它模仿了周围景观的轮廓,并与科西嘉岛的自然线条和谐统一。同时,楼梯的设计也蕴含着深刻的哲学意味,象征着知识与运动的结合。这种将艺术作为通用语言融入建筑的手法,不仅丰富了建筑的内涵,也提升了建筑的价值。它鼓励学生们通过美的熏陶,拓展视野,激发创造力,从而促进了他们的全面发展。这种设计理念体现了建筑师对于教育的深刻理解,真正实现了建筑与艺术的共生。

© Audric Verdier

© Audric Verdier
建筑师提供的文字描述自然与知识:阿米莉亚·塔维拉的新学校向地中海地平线开放-在屡获殊荣的斯特雷加学院完成学业后,阿米莉亚·塔维拉再次在她的家乡岛屿上创建了一所学校:坐落在卢米奥村脚下的Edmond Simeoni学校和文化空间。这场建筑竞赛呈现了一个复杂的方程式。Amelia Tavella的回应很简单:“LUMIO是在心脏的褶皱内构建,适应其节奏、力量和粗糙的边缘。我理解宏伟景观的复杂性。我的科西嘉岛是狂野而浪漫的。狂野,因为它要求我们做到最好;我们绝不能改变它,而是要回应它的欲望——对美和连续性的渴望。建筑姿态必须融入和整合;反之亦然。浪漫,因为一个人必须全身心地投入其中。科西嘉岛就像一场夏日婚礼。»
Text description provided by the architects. Nature and Knowledge: Amelia Tavella's New School Opens to the Mediterranean Horizon - After the completion of the award-winning École A Strega, Amelia Tavella has once again created a school on her native island: the Edmond Simeoni School and Cultural Space, nestled at the foot of the village of Lumio. This architectural competition presented a complex equation. Amelia Tavella's response is simple: « LUMIO is about building within the folds of a heart, adapting to its rhythms, strengths, and rough edges. I understand the complexity of the grand landscape. My Corsica is wild and romantic. Wild, because it demands the best of us; we must never change it but rather respond to its desires—desires for beauty and continuity. The architectural gesture must blend in, and integrate; the reverse is not an option. Romantic, because one must give oneself wholly to it, body and soul. Corsica is like a summer wedding. »

© Thibaut Dini

Ground Floor Plan

© Thibaut Dini
这所学校拥抱了卢米奥,成为其景观的一部分,将村庄及其周围环境融为一体,包括其地标:塔楼、海湾和俯瞰大海的卡尔维城堡——另一个领域。一个单一的痴迷指导了设计:跟随土地的曲线,滑入其中,放大它们,并在声音回应召唤时呼应它们。三栋建筑,三个脉动。学校和文化中心是统一的,因为知识将人们聚集在一起。为孩子们建造是为了向他们展示通往自由的道路。文化建设是为了增强这种自由:我们永远没有足够的空间去梦想。线条不会断裂,而是会倍增。受梯田式农业结构和餐馆的启发,学校与卢米奥的斜坡对齐。通过选择巴拉涅石花岗岩,它向祖先致敬,并带有卢米奥的印记,以其层次和身份影响着学生:知识有其阶段。学校的三层设计俯瞰大海,象征着一段上升之旅。最上面是小学教室,在村里的监视下;在基地,幼儿园和文化中心坐落在山谷中,随着山谷向大海倾泻而下。
This school has embraced Lumio, becoming part of its landscape, marrying the village and its surroundings, including its landmarks: the tower, the bay, and the citadel of Calvi overlooking the sea—the other realm. A single obsession guided the design: to follow the land's curves, slip into them, magnify them, and echo them as a voice answers the call. Three buildings, three pulsations. The school and cultural center are united, as knowledge brings people together. Building for children is about showing them the path to freedom. Building for culture is about enhancing that freedom: we will never have enough space to dream. The lines do not break but multiply. Inspired by the terraced farming structures, and restanques, the school aligns itself with Lumio's slopes. By choosing Balagne stone granite, it honors its ancestors and carries the imprint of Lumio, with its layers and identity, influencing the students: Knowledge has its stages. The school's three-tiered design, overlooking the sea, symbolizes a journey of ascent. At the top are the elementary classrooms, beneath the watchful eye of the village; at the base, the preschool and cultural center, cradled in the valley as it cascades toward the sea.

© Thibaut Dini
这片绿色的瀑布以其壮丽的景色保留了珍贵的自然梯田。一栋楼的屋顶变成了上面那栋楼的操场。通过这种方式,孩子们可以悬空玩耍,穿过周围各层的台阶,沉浸在成为他们学习体验一部分的侵入性中。没有逃脱是不可能的。目光自由漫游,视野不受限制。一条内部街道连接着不同的楼层,并延伸到外面,类似于露天圆形剧场的台阶。这个楼梯是与艺术家Pauline Guerrier合作设计的,它反映了周围景观的轮廓,遵循自然的线条而不背叛它们。这不是阿米莉亚·塔维拉第一次将艺术和建筑交织在一起。邀请艺术家参与儿童建筑的设计,可以提高他们的教育水平,因为美丽可以提升人们的思想,走向卓越。
This green cascade with its stunning views preserves the precious natural terraces. The roof of one building becomes the playground of the one above. In this way, children play suspended, running across the steps of the surrounding layers, immersed in the invasive nature that becomes part of their learning experience. No escape is impossible. The gaze roams freely, the view is unrestricted. An internal street connects the different levels and extends outside, resembling the steps of an open-air amphitheater. This staircase, designed in collaboration with artist Pauline Guerrier, mirrors the contours of the surrounding landscape, following nature's lines without betraying them. This is not the first time Amelia Tavella has intertwined art and architecture. Inviting an artist into the design of a building for children enhances their education, as beauty lifts minds toward excellence.

© Thibaut Dini

Section 2

North-West Elevation

© Thibaut Dini
艺术作为一种通用语言,遵循两种手势——艺术家的手势和建筑师的手势——这两种手势相辅相成,相互呼应。楼梯还唤起了一个古老哲学流派的台阶,在那里,知识与运动联系在一起,就像身体与心灵联系在一起一样,通过宽阔的白色石阶引导学习者达到智慧的高度。
Art, as a universal language, follows two gestures—that of the artist and that of the architect—two gestures that complement and respond to one another. The staircase also evokes an ancient philosophical school's steps, where knowledge is tied to movement, just as the body is linked to the mind, through the wide white stone steps that guide learners to the heights of wisdom.

© Thibaut Dini
Edmond Simeoni学校体现了Amelia Tavella的建筑哲学:“当我建造时,我不会撤销。没有背叛。我继续讨论包容性。大自然入侵了我的项目。它既不是障碍,也不是阻碍;这是我的客人,我为他庆祝。我适应了树木、光线和地形。没有人比科西嘉人的天性更伟大;在这里建造是一种谦卑的誓言。我的岛屿教会了我光、颜色和坡度,不断提醒我,没有伦理就没有创造,历史是当下的摇篮。每个项目都是一个挑战:在不移动或损坏任何东西的情况下,将建筑融入原始空间。这是一种延伸,而不是截肢。»这所学校反映了对生态的承诺,无疑将激励下一代有远见的人。
The Edmond Simeoni School embodies Amelia Tavella's architectural philosophy: « When I build, I do not undo. There is no betrayal. I proceed through inclusion. Nature invades my projects. It is neither an obstacle nor a hindrance; it is my guest, whom I celebrate. I adapt to the trees, the light, and the terrain. No one is greater than Corsican nature; building here is a vow of humility. My island has taught me light, color, and slope, reminding me constantly that there is no creation without ethics, and that history is the cradle of the present. Each project is a challenge: to inscribe the building into the original space without moving or damaging anything. It is an extension, not an amputation. » This school reflects a commitment to ecology and will undoubtedly inspire the next generation of visionaries.
© Audric Verdier