艺术教师中心园博楼/THAD
Yuanbo Building, Hub of Art Teachers / THAD
空间重塑与功能升级:该项目最引人注目的亮点在于其对现有建筑的巧妙改造。设计团队在有限的预算和时间框架内,充分利用了原有建筑的结构,通过“皮肤覆盖皮肤”的方法,赋予了建筑全新的外观。新增的屋顶走廊和轨道,将原本独立的立方体连接起来,形成了一条连续的路径,创造了丰富的空间体验。内部空间的重新规划,将大礼堂教室改造成多功能展厅,满足了未来设计学院多样化的教学需求。这种对空间的高度利用和功能升级,使得该项目在校园中焕发出新的活力,成为一个更具吸引力的中心。
可持续设计理念的实践:该项目将可持续设计理念融入到每一个细节之中,体现了建筑师对环境负责任的态度。在立面改造中,设计团队采用了高效的节能措施,如格栅、窗框等遮阳方式,减少了夏季的制冷能耗。在结构设计中,增加开口以增强通风,改善了室内微气候。更重要的是,该项目在能源、建筑、运营和教育四个方面采取了实际可行的策略来减少碳排放,并采用节水装置和绿化,将改造后的园博楼打造成了低碳设计和提高环保意识的典范。这些举措充分展现了建筑在可持续发展方面的潜力,为同类项目树立了榜样。
文化传承与教育创新:该项目不仅在建筑形式上进行了创新,更重要的是,它承载着深厚的文化内涵和教育理念。设计灵感来源于书法艺术,将流畅的线条和空间的流动性融入建筑语言中,创造了独特的“水墨龙”步道。同时,设计团队注重创造鼓励互动和交流的空间,将建筑打造成“行为催化剂”,支持未来设计学院的教育模式,从而呼应了“为更美好的未来而设计”的理念。通过对现有建筑的改造,该项目成功地塑造了全新的校园文化,为培养具备社会责任感的未来教师提供了理想的场所,体现了建筑对教育事业的积极推动作用。

© Wu Qingshan

© Zhan Changheng
建筑师提供的文字描述北京师范大学珠海分校是建设“具有中国特色的综合性、研究型、世界一流大学和一流师范教育”的重要组成部分,是与北京校区同级的南校区,按照学校“一校两校区”的发展战略和“高标准、新机制、国际化”的原则,作为一所大学进行规划、推进和呈现。自2019年以来,在校园转型和低碳发展的过程中,该大学对现有建筑进行了翻修。
Text description provided by the architects. Beijing Normal University at Zhuhai (BNU Zhuhai), is an important component of the construction of "a comprehensive, research-oriented, world-class university with Chinese characteristics and leading teacher education" and is a southern campus of the same level as the Beijing campus, both of which are planned, progressed and presented as one university, in accordance with the university's development strategy of "One University, Two Campuses" and the principle of "High Standard, New Mechanism and Internationalization". Since 2019, amid the campus transformation and low-carbon development, the university has undertaken renovations of its existing buildings.

© Zhan Changheng

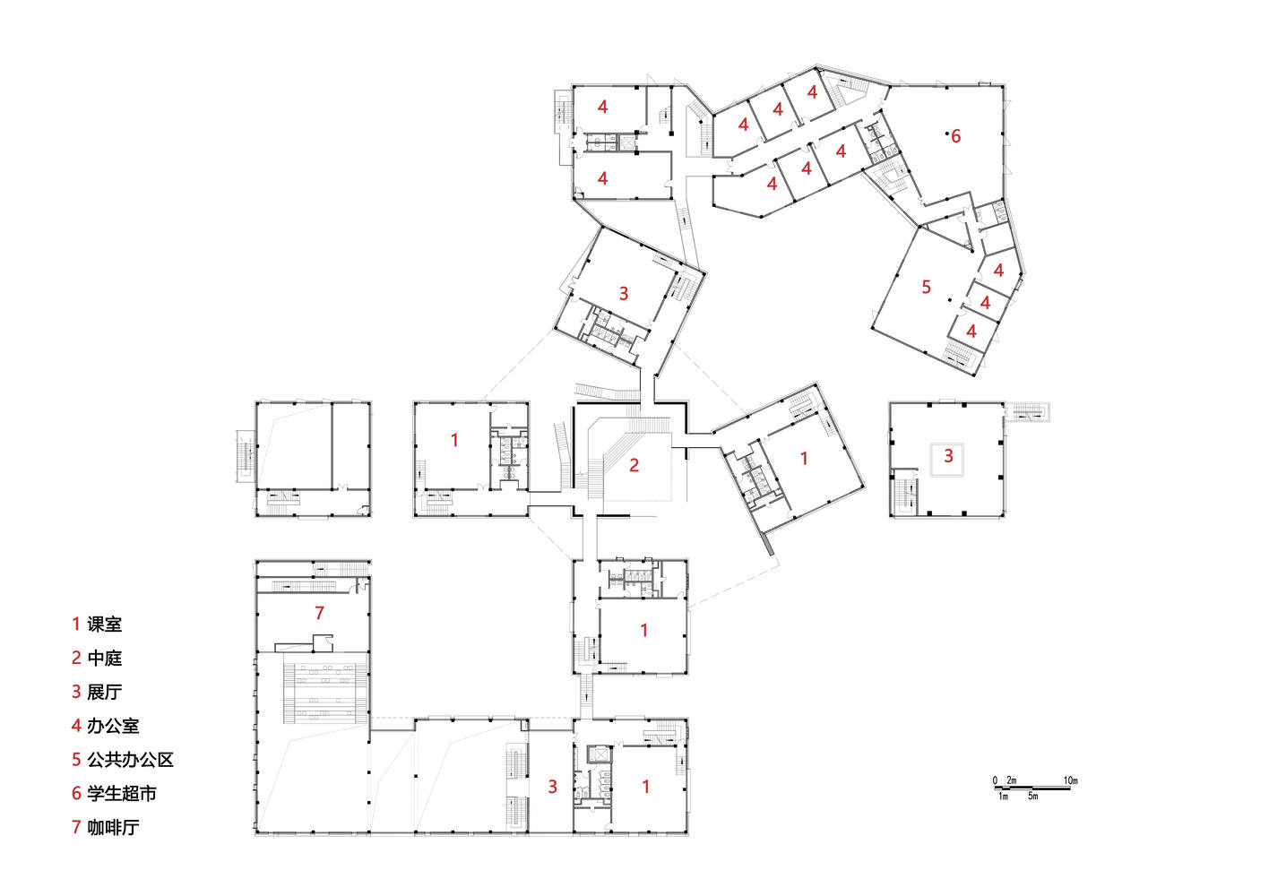
Plan
园博大厦的成功改造就是其中一个重点工程。园博楼是校园内现有的建筑。随着校园的发展,建筑的外观和内部功能不再满足当前的需求。翻新工程增加了一条屋顶走廊和轨道,创造了一条连接15个独立立方体的连续通道,将屋顶变成了一个与自然互动的空间。重新设计还创造了不同的互动区域,将建筑变成了一个“行为催化剂”,支持未来设计学院的教育模式,注重人、自然和互动之间的联系。
The successful renovation of the Yuanbo Building is one of these key projects. Yuanbo Building is an existing structure on the Campus. As the campus has developed, the building's external appearance and internal functions no longer meet the current needs. The renovation adds a rooftop corridor and track, creating a continuous pathway that connects 15 individual cubes and transforms the rooftop into a space for engaging with nature. The redesign also creates diverse interaction areas, turning the building into a "behavioral catalyst" that supports the educational model of the School of Future Design, focusing on the connection between people, nature, and interactions.
© Wu Qingshan
珠海校区依托毗邻香港、澳门的独特地理优势和创新优势,打造南方优秀教师特别是国家急需学科教师培养高地、增强香港、澳门凝聚力、服务““一带一路”倡议”人才培养基地、先进的教育创新中心、新兴跨学科领域孵化枢纽。校园被誉为“亚洲最美丽的山谷大学”,坐落在凤凰山北麓,距离大海仅6公里。园博楼在校园线性规划中占据着关键位置。它由15个独立的方形立方体组成,共有五层。自2004年左右竣工以来,园博大厦一直设有设计部门。
Taking advantage of its unique geographical advantage of proximity to Hong Kong and Macao and its innovation strengths, Zhuhai Campus aims to build a southern highland for the training of excellent teachers, especially teachers in disciplines urgently needed by the country, a base for training talents to strengthen the rallying power of Hong Kong and Macao and to serve the "Belt and Road Initiative", an advanced innovative center for education, and an incubation hub for emerging and interdisciplinary fields. The campus is renowned as the "Most Beautiful Valley University in Asia," situated on the northern foot-hills of Phoenix Mountain, just 6 kilometers from the sea. Yuanbo Building occupies a key location in the linear plan of the campus. It consists of 15 independent square cubes and has a total of five floors. Since its completion around 2004, the Yuanbo Building has housed design departments.
© Wu Qingshan
随着时间的推移,它的外观逐渐恶化,油漆剥落,钢楼梯生锈,户外空间被忽视。经过翻修,它已成为校园最具吸引力的部分,有受欢迎的户外区域和新的综合空间,如展览馆和庭院,为未来设计学院的日常活动提供支持。翻修设计侧重于两个关键问题:(1)如何在规划、预算和时间表的限制下最大限度地利用现有建筑,同时将其融入校园环境并增强其活力?(2) 在虚拟现实和数字媒体时代,如何创造鼓励面对面互动的空间,鼓励人们放下手机,相互交流?
Over time, its façade deteriorated, with peeling paint, rusted steel stairs, and neglected outdoor spaces. After renovation, it has become the most attractive part of the campus, with popular outdoor areas and newly integrated spaces like exhibition halls and courtyards supporting the daily activities of the School of Future Design. The renovation design focused on two key issues: (1) How to maximize the use of the existing building within the constraints of planning, budget, and timeline while integrating it into the campus environment and enhancing its vitality? (2) In the era of virtual reality and digital media, how to create spaces that encourage face-to-face interaction, encouraging people to put down their phones and engage with one another?
© Wu Qingshan
时间和预算限制下的立面翻新策略。1-采用“皮肤覆盖皮肤”的方法,在增强建筑外观的同时,尽量减少干扰。在不破坏原有立面和屋顶材料的情况下,增加了干挂砖墙系统和GRC覆层,为建筑赋予了新的红白“表皮”。中央白盒子的顶部部分装有U型玻璃,成为综合体的焦点和高点,将混乱的元博建筑群变成了一个有凝聚力的中心实体。外立面以红砖覆层和白色网格为特色,与校园周围的红砖建筑相呼应。2.强化和重复形式主题,丰富文化认同感——中间立方体之间有一个3F平台。平台下面是一个矩形结构作为主入口。通过扩建平台,创造了一个更大的入口,给人一种更好的整体感。平台上的新三角形天窗将阳光引入黑暗的入口空间。“行为催化剂”与新的教育模式相一致。用德国哲学家雅斯贝尔斯的话来说,教育就像一棵树摇动另一棵树,一朵云推另一朵云,一个灵魂呼唤另一个灵魂。哈佛大学校长Drew Faust认为,大学中个人之间的互动和思想交流是高等教育的基本要素。在数字时代,该项目旨在将设计教育与人类和自然重新联系起来,培养个人与环境之间的联系。我们认为,建筑的真正魅力不在于结构本身,而在于它创造的可能性。
Facade Renovation Strategy under Time and Budget Constraints. 1 - The "skin-over-skin" approach was used to create a minimal disturbance while enhancing the building's external appearance. Without damaging the original facade and roof materials, a dry-hanging brick wall system and GRC cladding were added to give the building a new red-and-white "skin." The top of the central white box was partially fitted with U-glass, becoming the focal point and high point of the complex, transforming the chaotic Yuanbo Building cluster into a cohesive, centered entity. The outer facades feature red brick cladding with white grid accents, echoing the surrounding red brick buildings on campus. 2. Strengthening and Repeating Form Motifs to Enrich Cultural Identity - There was a 3F platform connecting the middle cubes. Under the platform was a rectangular structure as the main entrance. By expanding the platform, a bigger entrance with a better sense of wholeness was created. The new triangle scuttles on the platform lead sunlight inside the dark entrance space. "Behavioral Catalyst" Aligned with the New Educational Model. In the words of German philosopher Jaspers, education is like one tree shaking another, one cloud pushing another, and one soul calling another. Harvard University President Drew Faust believes that the interactions and exchanges of ideas between individuals in a university are essential elements of higher education. Amid the digital era, this project seeks to reconnect design education with humanity and nature, fostering connections between individuals and the environment. We believe the true charm of a building lies not in the structure itself, but in the possibilities it creates.
© Wu Qingshan
Elevations
“立方体中的立方体”:中心盒的空间再生与生态转型。中央立方体最初是一个杂草丛生的开放空间。翻修后,增加了一个玻璃屋顶,将其改造成一个封闭的灰色空间。引入了楼梯系统,连接多个楼层,并在一楼设有大台阶,使楼梯既是一个流通空间,也是一个活动空间。现在,这个空间是各种活动的场所,如音乐会、时装秀和毕业展,为整个校园社区培养了无限的可能性。2.“庭院内的花园”:一个广场和一个圆圈,为整个校园创造跨学科空间——最初是被动的空隙,现在被重新设计成了一个正方形和一个圆形。方形庭院以红砖座椅环绕着一棵保存完好的凤凰树为特色,而圆形庭院则包括一个下沉式舞台,成为核心空间。现有的路径经过改造,创造了多个入口点,邀请学生和教师进入庭院,并将其改造成充满活力的校园中心。如今,广场和圆形庭院举办创意市场、文化表演和其他活动。3.“看见和被看见”:室外走廊和楼梯创造相遇空间——通过重新配置室外走廊和台阶,设计增强了连通性,创造了互动机会。光影的动态变化使这些空间成为学生聚集的场所,同时也是艺术创作的灵感来源。4.室内功能整合——为满足新教学模式的需求,对室内空间进行了整合和重新设计。一楼的两个大礼堂教室被合并成一个多功能展厅,并配有大台阶,为展览和活动创造了一个多用途的空间。
1. "Cube within a Cube": Space Regeneration and Ecological Transformation of the Central Box. The central cube was originally an open space overrun with weeds. After renovation, a glass roof was added, transforming it into an enclosed grey space. A stair system was introduced, connecting multiple levels and incorporating large steps on the ground floor, making the staircase both a circulation and activity space. Now, the space serves as a venue for various events, such as concerts, fashion shows, and graduation exhibitions, fostering endless possibilities for the entire campus community. 2." Gardens within Courtyards": A Square and a Circle, Creating Interdisciplinary Spaces for the Entire Campus - The two courtyards, initially passive voids, were redesigned into a square and a circle. The square courtyard features red brick seating around a preserved phoenix tree, while the circular courtyard includes a sunken stage, becoming the core space. The existing paths were reworked to create multiple entry points, inviting students and faculty into the courtyards, and transforming them into vibrant campus hubs. Today, the square and circular courtyards host creative markets, cultural performances, and other events. 3."Seeing and Being Seen": Outdoor Corridors and Stairs Creating Encounter Spaces - By reconfiguring the outdoor corridors and stairs, the design enhances connectivity and creates opportunities for interaction. The dynamic play of light and shadow makes these spaces popular for students to gather, while also serving as a source of inspiration for artistic creation. 4. Interior Function Integration - To meet the needs of the new teaching model, the interior spaces were integrated and redesigned. The two large auditorium classrooms on the ground floor were combined into a single, multifunctional exhibition hall, with large steps incorporated to create a versatile space for exhibitions and events.
© Wu Qingshan
通过连续路径统一建筑。1.书法之龙:山与湖之间的连续三维环路——园博楼以著名书法家、教育家、大学教授齐功的名字命名。这座旧建筑由15个独立的立方体组成。最初,立方体之间有室外走廊和楼梯,但它们并没有连接所有的立方体,留下了流动不稳定的破碎路径。在翻修中,受齐功书法的流动性和精神的启发,增加了新的走廊和轨道来连接破碎的路径,创造了一条连接屋顶和地面的无缝三维路径。“水墨龙”步道背靠群山,前临流水,与场地的自然氛围和谐融合,为体验自然提供了多种视角。屋顶走廊被穿孔的铝板包裹着,在晚上被照亮,就像一条流动的龙。现有的屋顶设备和竖井用格栅隐藏,区域用草坪或木制平台增强,创造了鼓励多样化活动的功能空间。2.融合新旧:创造一条艺术之路——园博大厦的高架主楼通过两条狭窄的石路进入有限。翻修拓宽了道路,将一条新的红砖路和现有的石路结合在一起,增加了平台和带照明的座位,创造了温馨的空间。这些路径现在与校园流通融为一体,成为艺术学生户外评论和展览的场所。符合碳中和目标的校园建筑改造策略-园博大厦是珠海北大绿色改造系列的重要组成部分。该项目在整个设计和运营阶段都遵循碳中和目标,同时考虑到建筑的现有条件、预算和时间表。它采用切实可行的策略在四个领域减少碳排放:能源、建筑、运营和教育,为可持续校园建筑树立了标杆。能源:高效空调和可操作窗户可在过渡季节自然通风,降低整体能耗。
Unifying the Building Through a Continuous Pathway. 1. Dragon of calligraphy: A continuous 3D loop between mountains and lakes - Yuanbo Building is named after Qi Gong, who was a famous calligrapher and educator, as well as a professor at the university. The old building consisted of 15 separate cubes. Originally, there were outdoor corridors and stairs between the cubes, but they didn't connect all the cubes, leaving broken paths with inconsistent flow. In the renovation, inspired by the fluidity and spirit of Qi Gong's calligraphy, new corridors and tracks were added to connect the broken paths, creating a seamless, three-dimensional pathway linking the roof and ground. Positioned with mountains to the back and water in front, the "Ink and Brush Dragon" pathway integrates harmoniously with the site's natural ambiance, offering various perspectives to experience nature. The rooftop corridors are wrapped in perforated aluminum panels, illuminated at night, resembling a flowing dragon. Existing rooftop equipment and shafts are concealed with grilles, and areas are enhanced with lawn or wooden platforms, creating functional spaces that encourage diverse activities. 2. Blending Old and New: Creating an Artistic Pathway - The Yuanbo Building's elevated main level had limited access via two narrow stone paths. The renovation widened the paths by combining a new red brick path and the existing stone path, adding platforms and seating with lighting to create welcoming spaces. These paths now integrate with the campus circulation and serve as a venue for art students' outdoor reviews and exhibitions. Renovation Strategies for Campus Buildings Aligned with Carbon Neutrality Goals - Yuanbo Building is a key part of the green renovation series at BNU Zhuhai. The project follows carbon neutrality goals throughout the design and operational phases, taking into account the building's existing condition, budget, and timeline. It employs practical strategies to reduce carbon emissions in four areas: energy, construction, operation, and education, setting a benchmark for sustainable campus buildings. Energy: High-efficiency air conditioning and operable windows allow natural ventilation during transitional seasons, reducing overall energy consumption.
© Wu Qingshan
Plan
构造:在中央立方体的底部增加了开口,以增强沿盛行风路径的通风,创造宜人的小气候。引入了一种新的天窗,以提供可用的室内空间并促进侧面通风,从而产生引风效果。立面采用了各种遮阳方法,如格栅和窗框,针对不同的建筑功能和方向进行了定制。这些改造减少了阳光直射,降低了夏季的制冷能耗。内院和周边地区保留了许多现有的树木,保留了它们的碳封存能力。这些策略具有成本效益,平衡了能源效率、功能和美学。操作:安装节水装置,绿化采用节水灌溉。室内和室外学习空间利用自然光和通风来减少能源使用。教育:经过翻修的元博大厦对所有人开放,是低碳设计和提高认识的典范。随着毕业生在全国范围内从事教学工作,他们传播了可持续发展的原则。
Construction: Openings were added at the base of the central cube to enhance ventilation along the prevailing wind path, creating a pleasant microclimate. A new skylight was introduced to provide usable indoor space and facilitate side ventilation, generating a wind-drawing effect. The façade incorporates various shading methods, such as grilles and window frames, customized for different building functions and orientations. These modifications reduce direct sunlight and lower cooling energy consumption in summer. The inner courtyard and surrounding areas retain many existing trees, preserving their carbon sequestration capacity. These strategies are cost-effective, balancing energy efficiency, functionality, and aesthetics. Operation: Water-efficient fixtures were installed, and landscaping uses water-saving irrigation. Indoor and outdoor study spaces leverage natural light and ventilation to reduce energy use. Education: The renovated Yuanbo Building is open to all, serving as a model for low-carbon design and raising awareness. As graduates move on to teaching roles nationwide, they spread the principles of sustainability.
© Wu Qingshan
Elevations
设计更美好的未来:塑造乡村美育-经过改造,元博楼成为北京师范大学未来设计学院的教学楼。未来设计学院立足于北京师范大学现有的优势,植根于艺术、技术和教育的交汇点。它与学校“十四五”发展建设的总体框架目标相一致。学校致力于推进设计学科的发展,重点是“为更美好的未来而设计”。学校在人文、艺术、设计和技术领域进行研究和广泛的跨学科合作。来自不同背景的学生来到这里接受教育,成为未来的教师。毕业后,他们回到家乡分享知识,激励他人。随着位于远博大厦内的未来艺术学院的兴起,毕业生具备了为农村教育发展做出贡献的技能和动力。通过提供一个支持和有利的环境,远博大厦向我们的毕业生灌输了通过教育提升农村社区的责任感和责任感。作为北京师范大学“未来设计种子基金”的一部分,“困难儿童艺术教育计划”项目侧重于教育资源稀缺的农村地区。该项目涉及专业人员指导农村儿童通过试点教育项目将他们的日常生活、文化传统和新的艺术观点结合起来。这旨在填补农村地区美育的空白,培养儿童的观察力、感知力和同理心。该倡议还与艺术家和教育工作者合作,探索弱势儿童的美育之路。园博楼项目受到了校园内外师生的热烈欢迎,为校园发展树立了标杆。它已经成为现有建筑翻新的典范,专注于教育建筑中无处不在的学习和碳中和目标。
Designing for a Better Future: Shaping Rural Aesthetic Education - After renovation, the Yuanbo Building serves as the teaching building for the School of Future Design at BNU. School of Future Design, based on the existing strengths of Beijing Normal University, is rooted in the intersection of art, technology, and education. It aligns with the overall framework goals of the university's "14th Five-Year Plan" development and construction. The School is dedicated to advancing the discipline of design with a focus on "design for a better future." The School engages in research and extensive interdisciplinary collaboration in the fields of humanities, art, design, and technology. Students from diverse backgrounds come here to receive education and become future teachers. After graduation, they return to their hometowns to share their knowledge and inspire others. With the rise of the School of Future Arts housed within The Yuanbo Building, the graduates are equipped with the skills and motivation to contribute to rural education development. By providing a supportive and conducive environment, Yuanbo Building instills in our graduates a sense of duty and responsibility toward uplifting rural communities through education. As part of BNU's "Future Design Seed Fund," the "Art Education Program for Children in Difficulty" project focuses on rural areas with scarce educational resources. The project involves professionals guiding rural children to combine their everyday lives, cultural traditions, and new art perspectives through pilot education programs. This aims to fill the gap in aesthetic education in rural areas, fostering children's observation, perception, and empathy. The initiative also collaborates with artists and educators to explore the path of aesthetic education for disadvantaged children. The Yuanbo Building project has been warmly embraced by students and faculty both inside and outside the campus, setting a benchmark for campus development. It has become a model for the renovation of existing buildings, focusing on ubiquitous learning and carbon-neutral goals in educational architecture.
© Wu Qingshan

