德布勒森大学药学院和制造中心
Faculty of Pharmacy University of Debrecen and Manufacturing Center
功能与形式的和谐统一:该项目最引人注目的亮点在于其功能性与形式美学的完美结合。建筑师巧妙地将公共开放的教育翼与封闭的制造单元这两个截然不同的功能体量融为一体,并通过设计语言的统一性来化解两者之间的冲突。这种设计理念并非简单的并置,而是模拟了实验室中化学反应的过程,上部的白色“泡沫状”结构与下部的棱角分明的建筑体量相互作用,形成视觉上的动态平衡,并在立面上创造出漂浮的开口,赋予建筑独特的视觉冲击力。这种设计手法不仅美观,也暗示了项目内部的学术氛围和创新精神。
创新教育理念的体现:除了建筑形式上的创新,该项目在教育理念上的体现也值得称赞。为了解决药学专业学生实践机会有限的问题,建筑师设计了模拟工厂和允许学生参与实际制造过程的环节。这种设计有效地将理论学习与实践操作结合起来,有助于学生更好地掌握专业知识和技能。此外,项目还为大学和健康产业集群的合作伙伴提供了研究和制造机会,这不仅促进了产学研的结合,也为学生提供了更广阔的职业发展前景。这种设计体现了对未来药学人才培养的深刻思考和积极探索。
对环境的尊重与呼应:该项目在选址和设计上都展现了对周围环境的尊重。项目选址靠近大学校园,并与周边已有的制造、办公和大学功能相呼应,体现了整体规划的协调性。建筑的设计风格也与周围的工业环境相协调,特别是制造单元的设计,借鉴了周围工业建筑的风格。同时,建筑师通过对比的手法,将大学翼设计成一个更复杂、更具细节的体量,突出了其特殊性。这种设计策略既融入了环境,又保持了自身的独特性,体现了建筑师对环境的深刻理解和对可持续发展的关注。
/ Pyxis Nautica

© Bálint Jaksa

© Bálint Jaksa
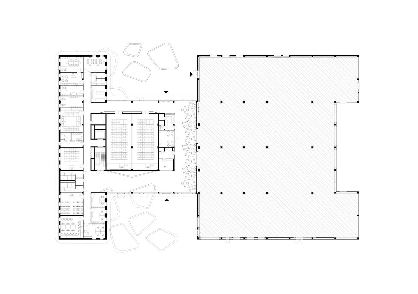
建筑师提供的文字描述功能-该建筑的教育翼是一个四层结构,有一个中央走廊和“T”形布局。一楼有两个演讲厅,每个演讲厅可容纳100人,一个中庭和行政办公室。上层设有研究和教学实验室、教室、图书馆和模拟工厂。该建筑设有药学院院长办公室和四个系:制药技术系、生物制药系、药理学系和药用植物与药物研究系。
Text description provided by the architects. Function - The building's educational wing is a four-story structure with a central corridor and a "T" layout. On the ground floor, there are two lecture halls with a capacity of 100 people each, an atrium, and administrative offices. The upper levels house research and teaching laboratories, classrooms, a library, and a simulation plant. The building hosts the Dean's Office of the Faculty of Pharmacy and four departments: the Department of Pharmaceutical Technology, the Department of Biopharmacy, the Department of Pharmacology, and the Department of Medicinal Plants and Drug Studies.

© Bálint Jaksa

Axonometry

© Bálint Jaksa
大楼的另一侧作为制药生产单元,根据GMP(良好生产规范)和IFS(国际特色标准)设计。新的研究中心不仅为大学自己的项目提供了研究和制造机会,也为与大学建立的健康产业集群相关的产业合作伙伴提供了机会。研发实验室为各种产品的实验室开发提供设施,特别关注可以注册的药物制剂。
The other wing of the building functions as a pharmaceutical manufacturing unit, designed according to GMP (Good Manufacturing Practices) and IFS (International Featured Standards). The new research center offers research and manufacturing opportunities not only for the university's own projects but also for industrial partners linked to the health industry cluster established by the university. The research and development laboratories provide facilities for the laboratory development of various products, with a particular focus on drug formulations that can be registered.

© Bálint Jaksa

Plan

© Bálint Jaksa
药学专业学生面临的一个典型挑战是,由于严格的法规,他们只能很难进入少数制药厂,这限制了他们获得实践知识的能力。为了解决这个问题,该大学为学生创造了几个机会,让他们在大学设施内观察和参与运营。已经建立了一个模拟工厂,学生可以在那里熟悉洁净室环境,他们还可以参加大学制造厂的工作。
A typical challenge faced by students of pharmaceutical sciences is that due to stringent regulations, they can only access pharmaceutical factories in small numbers and with difficulty, limiting their ability to gain practical knowledge. To address this, the university has created several opportunities for students to observe and participate in operations from within the university's facilities. A simulation plant has been set up, where students can familiarize themselves with cleanroom environments, and they can also take part in the work at the university's manufacturing plant.

© Bálint Jaksa

Section

© Bálint Jaksa
位置-绿地投资位于德布勒森的东北部,距离大学校园仅几分钟路程。近年来,在邻近的地块上开发了几个制造、办公和大学功能。周边工业环境主要由1-2层无烟煤色工业长方体建筑组成。该大学的创新园也就在几个街区之外。在遗址以北,仍有积极耕种的农田。
Location - The greenfield investment is located in the northeastern part of Debrecen, just a few minutes from the university's campus. In recent years, several manufacturing, office, and university functions have been developed on neighboring plots. The surrounding industrial environment consists mainly of 1-2 story anthracite-colored industrial cuboid buildings. The university's Innovation Park is also just a few blocks away. To the north of the site, there are still actively cultivated agricultural lands.

© Bálint Jaksa
概念-设计的独特之处在于,在一栋建筑内,两个具有不同特征的主要功能相互交叉:公共、开放的教育翼与封闭的、箱形的制造单元形成鲜明对比。为了解决这种对比,我们从实验室的研究活动中获得了灵感:溶解、泡腾和化学转化的视觉动态过程。在化学反应过程中,两个不同的建筑体相互作用。白色的泡沫状上部结构溶解了下部的棱角状物质,这种相互作用产生了更大的开口,这些开口似乎漂浮在白色的立面上。建筑的工业部分在建筑方面借鉴了周围无烟煤覆盖的工业大厅,而大学翼则作为一个更复杂、更详细的体量坐落在其上。
Concept - The unique aspect of the design lies in the intersection of two main functions with distinct characteristics within a single building: the public, open educational wing contrasts with the closed, box-like mass of the manufacturing unit. To resolve this contrast, inspiration was drawn from the research activities occurring in the laboratories: the dissolution, effervescence, and the visually dynamic process of chemical transformation. During a chemical reaction, the two distinct building masses interact. The white, foam-like upper structure dissolves the lower, angular mass, and this interaction creates larger openings, which appear to float on the white façade. The industrial part of the building draws from the surrounding anthracite-clad industrial halls in terms of architecture, while the university wing rests on top of it as a more sophisticated, detailed volume.