CEDFOB创新展馆和研究中心/STGM建筑
CEDFOB Innovation Pavillon and Research Center / STGM Architectes
创新的木结构应用:该项目在结构设计上展现了卓越的创新性,通过采用两种不同的木材系统来满足功能需求。大厅和口译室使用了胶合木的大块木结构,营造出双层高度的开阔空间感,而教室和办公空间则采用轻质木框架结构,这种灵活的结构应用不仅优化了空间利用,还体现了对木材性能的深刻理解和创新运用。这种设计不仅满足了功能性需求,还呼应了北方森林的主题,使建筑与自然环境相得益彰。
景观驱动的立面设计:建筑的立面设计深受森林元素的启发,通过垂直性、树木的节奏、固体与空隙的互动以及视觉开口等主题,营造出一种景观驱动的建筑语言。木条与反射铝覆层的结合,不仅反映了周围环境,还通过不同密度的木条设计呼应了树木的自然形态。这种设计不仅在视觉上与森林环境融为一体,还为建筑赋予了独特的光影效果和动态美感,使其成为社区的标志性建筑。
场地与建筑的和谐融合:展馆的设计充分考虑了场地与建筑的互动关系。悬挑结构的设计引导游客进入主入口,仿佛置身于森林漫步之中,这种设计手法不仅增强了建筑的动态感,还使其与场地环境和谐共生。建筑的北方森林主题通过立面和空间设计得以充分体现,吸引路人驻足,成为展示北方森林研究和创新的重要窗口。这种设计不仅提升了建筑的功能性,还增强了其作为社区地标的识别度。

© Alexandre Guérin

© Alexandre Guérin
建筑师提供的文字描述一个用木头设计的北方森林研究中心。CEDFOB的新北方森林研究与创新馆旨在有效满足其居住者的需求,横跨三层,具有简单而优化的体积。展馆的结构完全由木材制成,利用了两个根据项目功能量身定制的不同系统。大厅和口译室采用可见的大块木结构(胶合木),受益于双层天花板,而教室和办公空间则采用轻质木框架结构。
Text description provided by the architects. A Boreal Forest Research Center Designed in Wood. Designed to efficiently meet the needs of its occupants, the new Boreal Forest Research and Innovation Pavilion at CEDFOB spans three levels, featuring a simple and optimized volume. The structure of the Pavilion, entirely made of wood, utilizes two distinct systems tailored to the program's functions. A visible mass timber structure (glulam) is used for the hall and interpretation room, which benefit from double-height ceilings, while the classrooms and office spaces employ a lightweight wood frame structure.

© Alexandre Guérin

Site Plan

© Alexandre Guérin

© Alexandre Guérin
该项目是Baie Comeau社区和CÉGEP的建筑地标,也是北方森林研究和创新的展示。
This project stands out as an architectural landmark for the Baie-Comeau community and the CÉGEP, as well as a showcase for research and innovation on the boreal forest.

© Alexandre Guérin

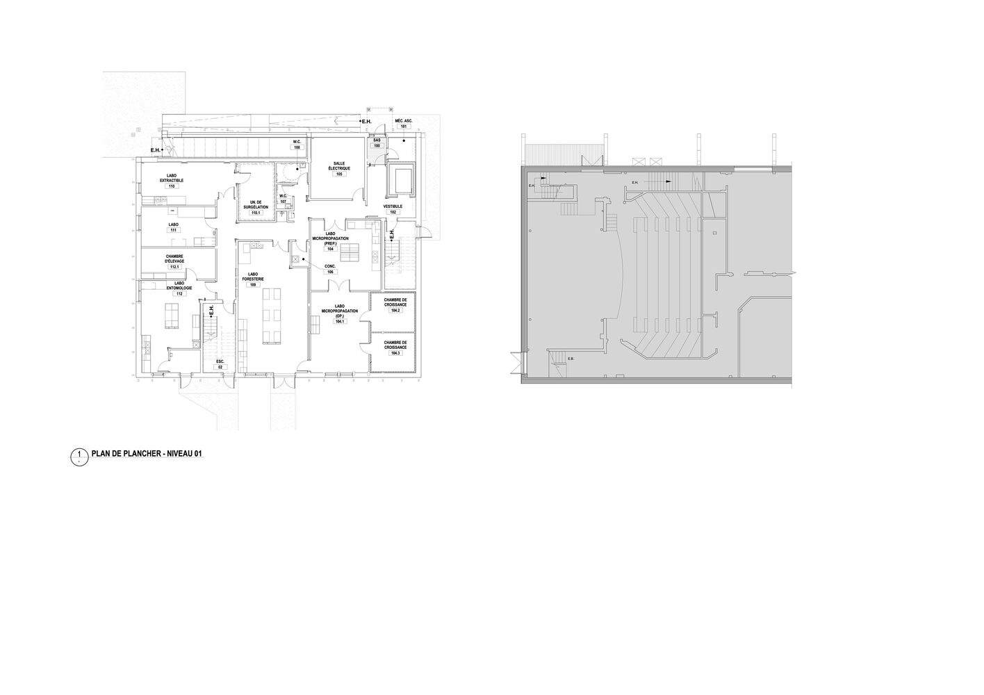
Ground Floor Plan

© Alexandre Guérin
为该建筑开发的建筑概念深受森林特色元素的启发,这些元素影响了立面的设计和调制以及材料的选择。通过垂直性和树木的节奏、固体和空隙的相互作用、穿过树冠的视觉开口以及森林唤起的阴影和感知等主题,探索了一种景观驱动的方法。这些原则在建筑中通过在反射铝覆层上叠加不同尺寸的木条来表达,铝覆层反映了周围的环境。木条由陈年前的东方白雪松制成,上层密度更大,视线更开阔,与树木的自然形态相呼应。
The architectural concept developed for the building is strongly inspired by the characteristic elements of the forest, which influenced the design and modulation of the façades and the choice of materials. A landscape-driven approach was explored through themes of verticality and the rhythm of trees, the interplay of solids and voids, visual openings through the canopy, and the shadows and perceptions evoked by the forest. These principles are expressed in the architecture through the layering of wooden slats of varying sizes over a reflective aluminum cladding that mirrors its surroundings. The wooden slats, made from pre-aged Eastern white cedar, are denser on the upper level and more open at eye level, echoing the natural morphology of trees.

© Alexandre Guérin
凭借其干净的线条,这种立面处理和悬挑结构为建筑注入了活力,悬挑结构将游客引导到主入口,让人想起在森林中散步。展馆与场地和谐地融为一体,以其北方森林的存在和令人回味的图像吸引路人的注意。
With its clean lines, the volume is energized by this façade treatment and a cantilevered structure that guides visitors to the main entrance, reminiscent of a walk in the forest. The Pavilion integrates harmoniously into the site and draws the attention of passersby with its presence and evocative imagery of the boreal forest.

© Alexandre Guérin