监狱仓库/Buro NØRD建筑师
Penitentiary Warehouse / Buro NØRD Architectuur
功能与灵活性的平衡:监狱仓库的设计充分考虑了功能分区与灵活性的结合。建筑分为探险区、商店和支持设施三个区域,通过大跨度桁架结构实现空间的自由划分,外墙和内墙非承重,便于未来改造。这种设计不仅满足了当前的使用需求,还为未来的功能调整提供了可能,体现了建筑的前瞻性和适应性。
人性化与安全性的融合:设计的核心是促进囚犯对墙外生活的适应性,通过打造宽敞、明亮且舒适的环境,将安全组件巧妙地融入设计中,实现了人性化与安全性的平衡。温暖且坚固的材料选择,既保证了空间的耐用性,又营造出舒适的氛围,为囚犯提供了积极的工作体验,有助于他们的重新社会化。
可持续性与可拆卸性:建筑采用了可持续材料,如CLT木材和热改性木材,体现了对环境的尊重。结构、立面和屋顶的可拆卸设计,使建筑在未来能够灵活迁移或重新利用,减少了资源浪费,进一步强调了循环性和可持续性理念在建筑中的应用。

© Stijn Poelstra | Maarten Meester

© Stijn Poelstra | Maarten Meester
建筑师提供的文字描述这家商店是监狱大楼里的劳动设施之一。这座建筑在监狱制度中占有特殊地位。这是一个社会环境,囚犯可以赚一些额外的钱并获得工作经验。重要的是考虑到他们服刑后的重新社会化。
Text description provided by the architects. The store is one of the labor facilities in the penitentiary complex. This building takes a special place within the penitentiary regime. It is a social environment where inmates can earn some extra money and gain work experience. Important considering their resocialization after serving their sentence.

© Stijn Poelstra | Maarten Meester

© Stijn Poelstra | Maarten Meester
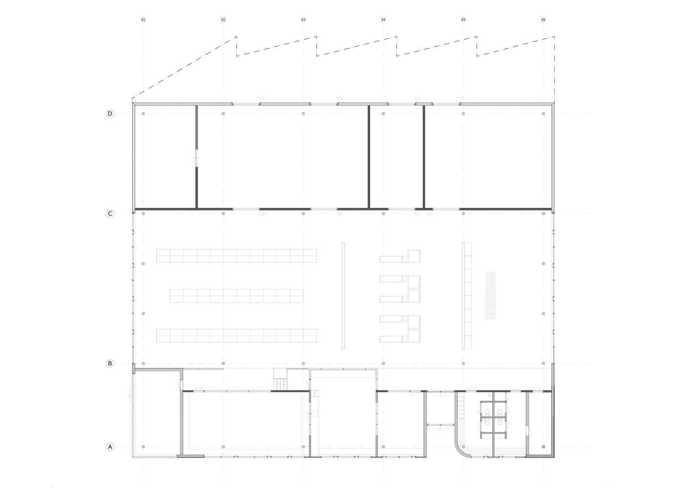
工作楼由三个区域组成;探险队、(杂货店)商店和支持/监督设施。为了使建筑的灵活性和适应能力尽可能大,建筑由大跨度的桁架组成,桁架内的空间可以自由划分。外墙和内墙不承重,可以很容易地进行修改。结构的稳定性是由柱之间两个方向的横撑产生的。在探险区一侧,桁架形成了一个有宽大悬垂的雨棚,在干燥和有遮蔽的环境中可以进行装卸。
The work building consists of three zones; expedition, (grocery) shop and supporting / supervision facilities. In order to make the flexibility and adaptivity capacity of the building as great as possible, the construction consists of trusses with a large span within which the space can be freely divided. Facades and interior walls are not load-bearing and can be modified quite easily. Stability of the construction is generated by cross-braces in two directions between the columns. On the side of the expedition areas, the trusses form a canopy with a generous overhang under which loading and unloading can take place in a dry and sheltered environment.

© Stijn Poelstra | Maarten Meester

© Stijn Poelstra | Maarten Meester
设计的重点是促进囚犯对墙外生活的看法。通过将商店变成一个宽敞、明亮、舒适的空间,所有安全组件(隐形)都尽可能仔细地融入设计中。使用温暖、坚固的材料创造了一个可以承受一两次撞击但外观舒适的工作环境。
Focus point in the design is to contribute to the inmates' perspective on life outside the walls. By turning the store into a spacious, light and comfortable space in which all security components are (invisible) integrated into the design as carefully as possible. The use of warm, robust materials has created a working environment that can withstand a knock or two, but with a comfortable appearance.

© Stijn Poelstra | Maarten Meester
可持续性和循环性已成为近年来正义住房政策的基本支柱。商店的建筑由CLT木材制成的柱子和桁架组成。立面由未经处理的热改性木材和聚碳酸酯覆层制成。基座由预制环氧混凝土构件制成。
Sustainability and circularity have become a fundamental pillar in the justice housing policy in recent years. The construction of the store consists of columns and trusses made of CLT wood. The facades are made of untreated thermally modified wood and polycarbonate cladding. The plinth is made of prefabricated epoxy concrete elements.

Floor Plan

© Stijn Poelstra | Maarten Meester
结构、立面和屋顶可以完全拆除,这样随着时间的推移,商店就可以搬到综合体的另一个地方(或外面)。
The structure, facade and roof can be completely dismantled, so that the store can be moved to another location in the complex (or outside) over time.

© Stijn Poelstra | Maarten Meester