Nothing Design Co.总部/靶场设计与建筑
Nothing Design Co. Headquarters / Range Design & Architecture
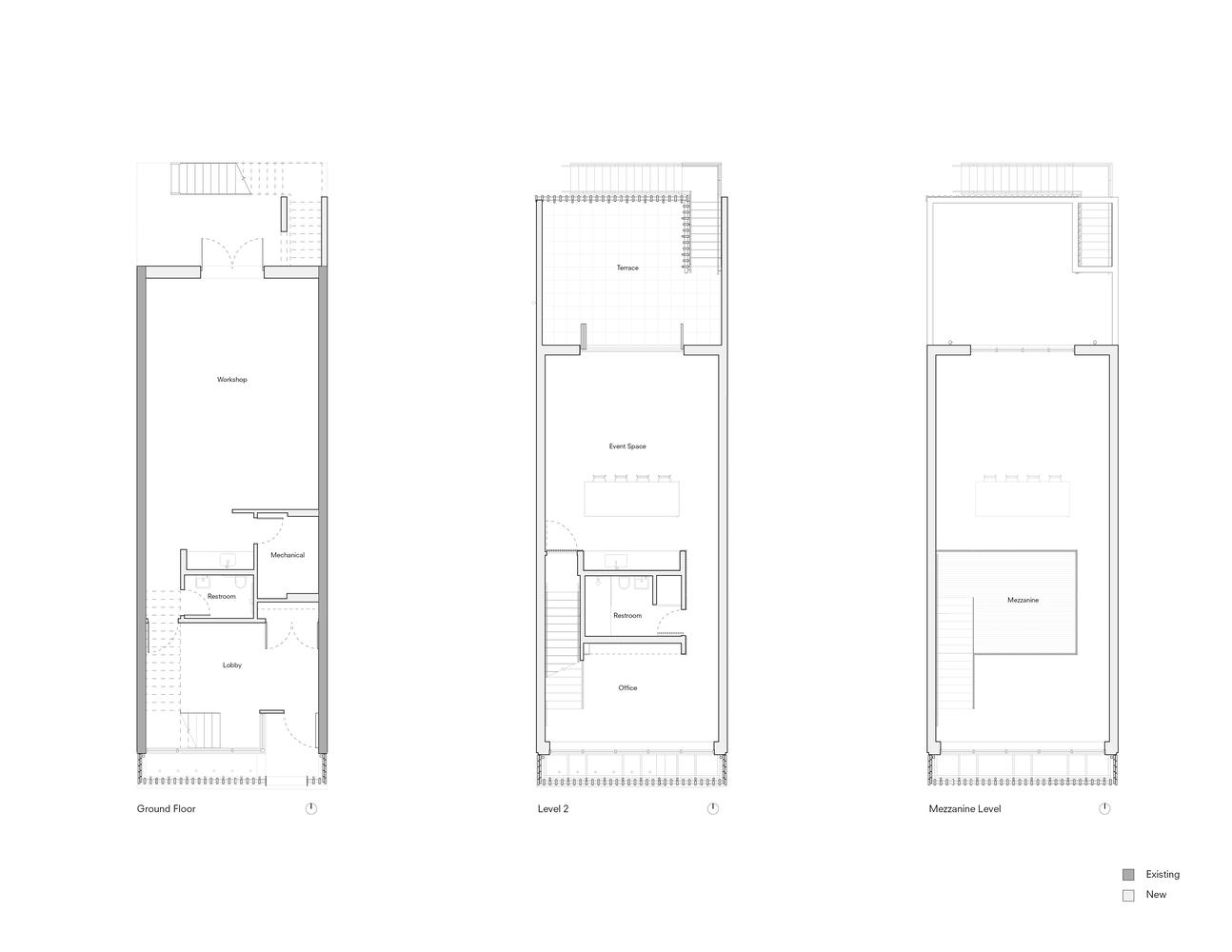
空间与功能的融合:该项目将现有建筑扩展为家具设计工作室和展厅,巧妙地统一了多种空间品质。通过解决朝南立面的采光和能源性能问题,设计不仅满足了功能需求,还与芝加哥的历史建筑风格相融合。这种对空间功能与美学的双重考量,展现了建筑与设计的深度结合,使项目在实用性与艺术性之间达到了平衡。
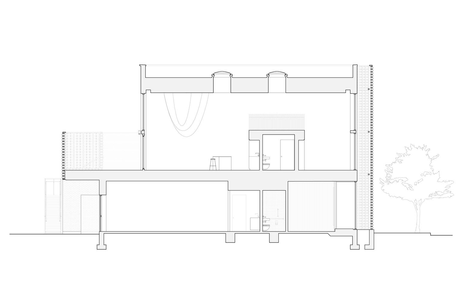
立面设计与环境互动:建筑的立面设计是其亮点之一。设计师借鉴芝加哥传统的砖结构风格,采用赤陶色铺路砖作为街道上的砖屏风,创造了一个与环境紧密相关的独特立面。这种设计不仅过滤了自然光,减少了直接朝南的制冷负荷,还在视觉上延伸了空间的感知边缘。同时,面向庭院的砖屏风和可折叠的双折玻璃门进一步模糊了室内外的界限,增强了建筑与周围环境的互动性。
材料运用与身份塑造:砖在该项目中扮演了关键角色,无论是再生砖还是新砖,都为建筑提供了结构支持、背景呼应、光线过滤以及独特的身份标识。设计师充分利用了砖的模块化和质量的可变性,将建筑锚定在芝加哥这座“砖砌城市”的文化背景中。这种对材料的深度挖掘和创新运用,不仅赋予了项目鲜明的地域特色,也提升了其整体的艺术价值。

© James John Jetel

© James John Jetel
建筑师提供的文字描述将现有结构扩展为家具设计工作室和展厅,旨在统一和表达各种空间品质——制作和安置家具,解决朝南立面的采光和能源性能问题,并建立在芝加哥普通砖结构和面砖正面的历史模式之上。
Text description provided by the architects. This expansion of an existing structure into a furniture design studio and showroom aims to unify and express a variety of spatial qualities—to make and house furniture, address daylighting and energy performance considerations for a south-facing facade, and build upon Chicago's historical pattern of common brick structures with face-brick fronts.

© James John Jetel

Plans

© James John Jetel
为了扩大体积,普通砖承重墙垂直延伸,由于靠近建筑红线,这些墙上不允许有开口。因此,光线仅限于建筑物面向街道和庭院的边缘。借鉴芝加哥面砖正面和普通砖侧面的历史模式,赤陶色铺路砖被用作街道上的砖屏风。这创造了一个独特的、与环境相关的立面,过滤了自然光,从而减少了直接朝南的制冷负荷。在建筑面向庭院的一侧,用普通砖制成的砖屏风改造了二楼的露台,延伸了空间的感知边缘。一扇双折玻璃门可以折叠起来,将可用区域延伸到露台。
To expand the volume, common brick-bearing walls were extended vertically and due to the proximity of the property line no openings were allowed in these walls. As a result, access to light was limited to the street and yard facing edges of the building. Taking cues from Chicago's historical pattern of face-brick fronts and common brick sides, terra-cotta colored paver bricks were employed as a brick screen on the street. This creates a distinct and contextual facade that filters natural light thereby reducing the cooling load from the direct southern exposure. At the yard-facing side of the building the brick screen, executed in common brick, transforms a second-floor patio extending the perceived edge of the space. A bi-folding, glazed door folds away to extend the usable area into the patio.

© James John Jetel

Section

© James John Jetel
砖,无论是再生的还是新的,对美学考虑都至关重要。芝加哥是一座砖砌的城市;被材料的模块和质量的无限可变性所包围。结构最终锚定在这个背景下——材料用于提供结构、响应背景、过滤光线,并为项目创造独特的身份。
Brick, both reclaimed and new, were critical to aesthetic considerations. Chicago is a city of brick; tapestried by the infinite variability of the material's module and mass. The structure is ultimately anchored within this context—the material is used to provide structure, respond to the context, filter light, and create a distinct identity for the project.

© James John Jetel