泵房商业和住宅楼/5468796建筑
Pumphouse Commercial and Residential Building / 5468796 Architecture
遗产与创新的巧妙融合:该项目最令人印象深刻的方面在于其对历史遗产的尊重和创新设计的完美结合。设计团队将废弃的泵站视为“发现的对象”,巧妙地将其融入了商业和住宅功能中。通过保留原有的起重机结构,悬挂“浮动地板”的设计,创造出独特的空间体验,既保留了建筑的历史韵味,又满足了现代商业需求。此外,住宅区的规划也充分考虑了与原有建筑的互动,通过偏移、通道等设计手法,形成了新旧交融的视觉效果,实现了历史与现代的和谐统一。
解决场地与预算挑战的策略:项目在场地和预算方面面临诸多挑战,但设计团队通过创造性的解决方案成功克服了这些困难,并实现了项目可行性。例如,利用狭长的场地建造住宅楼,不仅解决了用地限制,还通过分区修正案,恢复了原有的工业街景。在建筑材料的选择和施工方法上,也体现了经济高效的原则,例如采用钢钉和加劲杆构建墙体,简化了施工流程,降低了成本。这些策略展现了建筑师在有限条件下追求卓越设计的决心和能力,为类似项目的开发提供了宝贵的经验。
住宅设计的颠覆性创新:住宅设计是该项目的另一大亮点,它颠覆了传统公寓的模式,创造了全新的居住体验。通过将露天走廊引入设计,打破了封闭的内部空间,增强了住户之间的互动。创新的“跳停”配置,以及南北立面开放式楼梯的设计,不仅提高了空间利用率和能源效率,还为住户提供了独特的视野和体验。这些设计理念反映了对住户需求的深刻理解,并大胆地尝试了新的居住模式,为城市多户住宅的设计提供了有益的启示,展现了建筑师对未来居住方式的探索和思考。

© James Brittain

© James Brittain
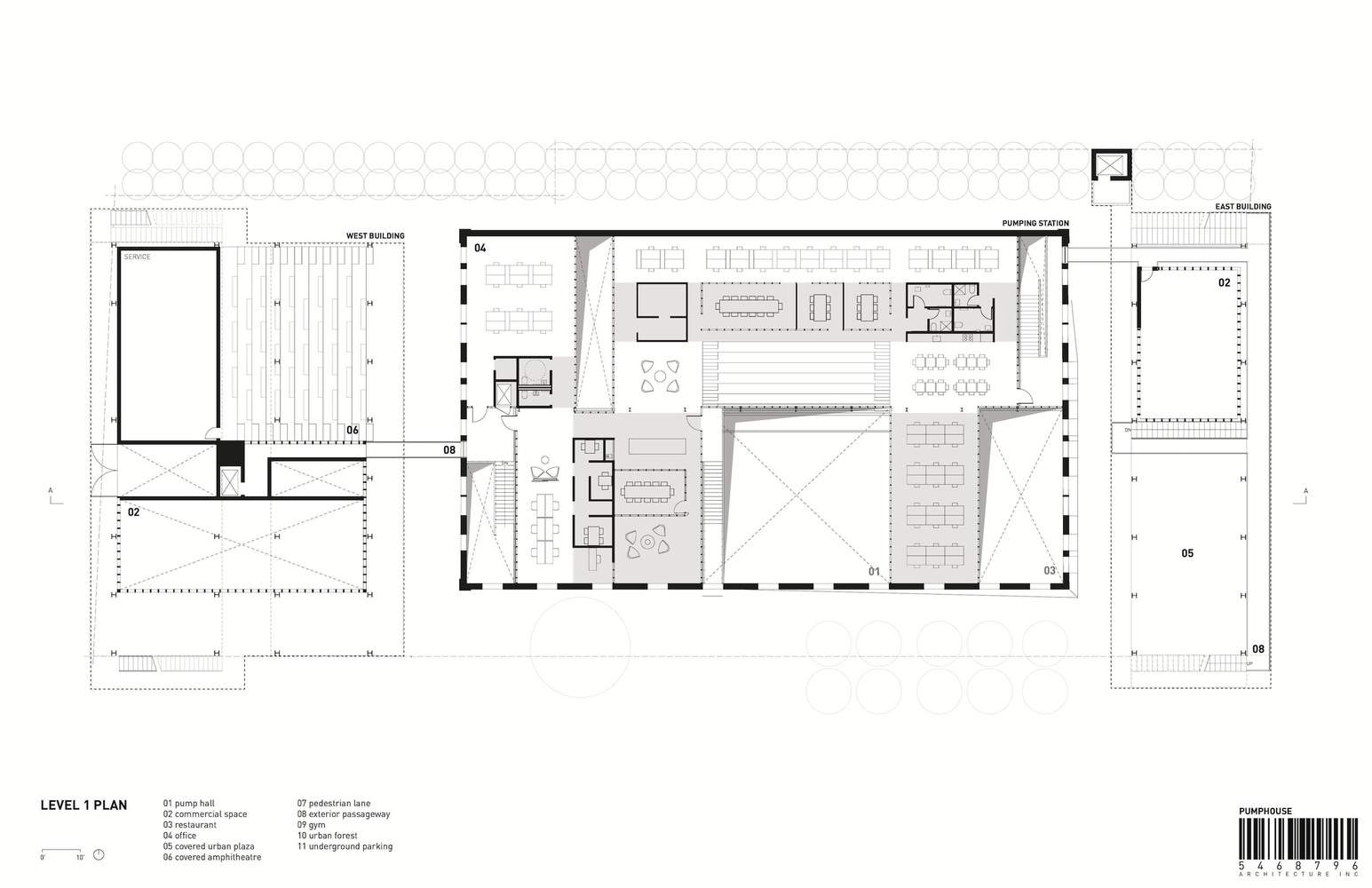
Pumphouse是一个在前铁路用地上进行的混合用途重建项目,展示了遗产、场地和预算挑战如何激发创新,激发了关于可实现的住房设计和城市建设的新想法。詹姆斯大道泵站最初建于1906年,旨在改善该市的供水系统,于1986年关闭,并计划拆除。在温尼伯交换区国家历史遗址内17次尝试恢复该建筑失败后,5468796建筑公司说服了一位现有客户作为业主与该市联系,接受了一份主动提出的概念设计方案和财务形式,从而成功地保护了该建筑并赋予了它新的生命。该项目将现有的泵站视为一个“发现的对象”,将办公室和餐厅整合在一起,同时在遗产建筑的两侧有两个住宅区,推动了多户住宅的潜力。
A mixed-use redevelopment on former railway lands, Pumphouse demonstrates how heritage, site, and budget challenges can inspire innovation, sparking new ideas about attainable housing design and city-building. Originally constructed in 1906 to improve the city's water supply system, the James Avenue Pumping Station closed in 1986 and was slated for demolition. After 17 failed attempts to revive the building within Winnipeg's Exchange District National Historic Site, 5468796 Architecture convinced an existing client to connect with the City-as-owner to take on an unsolicited conceptual design proposal and financial pro-forma, leading to the building's successful preservation – and new life. The project approaches the existing Pumping Station as a "found object", integrating an office and restaurant within while flanking the heritage building with two residential blocks that push the potentials of multi-family housing.

© James Brittain
两项具体的干预措施使该项目可行:在第一阶段,利用原始龙门起重机结构的能力,在泵房机械上方悬挂一个“浮动地板”,使砖砌建筑完全重新用作办公室和餐厅。其次,获得了一项分区修正案,在遗产建筑和街道之间的40英尺长的土地上建造一栋五层住宅楼,主张恢复与前铁路线相邻的原始工业街景。除了泵站另一端的第二栋更宽的公寓楼外,住宅开发项目使该项目在财务上可行,同时也在一个正在经历重大转型的地区表达了独特的历史叙事。与之前的尝试相反,该解决方案显示了处于已找到状态的泵送设备。新型灵活的办公室地板悬挂在上方,通过落地玻璃提供最佳视野,采用现成材料高效经济地建造。新的天窗穿透屋顶,将自然光深深地引入广阔的空间。所有入口在到达任何新建组件之前都会遇到设备,让“发现的对象”形成用户体验。
Two specific interventions made the project viable: in the first phase, the capacity of the original gantry crane structure was leveraged to suspend a 'floating floor' above the pump hall machinery, enabling the brick building to be fully repurposed as an office and a restaurant. Second, a zoning amendment was obtained to build a five-story residential building on a 40-foot sliver of land between the heritage building and the street, arguing for a reinstatement of the original industrial streetscape that abutted the former railway line. Along with a second, wider apartment building on the opposite end of the Pumping Station, the residential developments made the project financially feasible while also expressing a distinct historical narrative within a district undergoing major transformation. In contrast to previous attempts, the solution displays the pumping equipment in its found state. The new flexible office floor plate hovers above, providing optimal views enhanced by floor-to-ceiling glazing, constructed efficiently and economically with off-the-shelf materials. New skylights pierce the roof, drawing natural light deep into the expansive space. All entrances encounter the equipment before reaching any newly built components, letting the "found object" form the user experience.

© James Brittain

© James Brittain
商业空间以该地直截了当的工业品质为基础。墙壁由钢钉和加劲杆限定,将所需的玻璃厚度减半,无需熟练的安装人员,这反过来又加快了施工速度,使其更实惠,并将建筑物的碳含量减少了一半。两栋住宅楼的语言也建立在该地块的工业特征之上。它们都位于立柱上,立柱延伸了龙门起重机结构的网格,并为历史建筑创造了视线。这些建筑由双面霰弹枪公寓组成,采用有100年历史的钉子层压木材(NLT)技术作为地板和天花板结构,开创了整个交易区普遍存在的仓库建设的先例。
The commercial spaces are grounded in the straightforward industrial quality of the place. The walls are defined by steel studs and stiffening bars that cut the required glazing thickness in half and eliminate the need for skilled installers, which in turn sped up the construction, made it more affordable, and reduced the building's embodied carbon by half. The language of the two residential buildings also builds on the industrial character of the site. They are each elevated on columns that extend the grid of the gantry crane structure and create sightlines to the historic building. The buildings are composed of dual-aspect shotgun apartments and use 100-year-old Nail Laminated Timber (NLT) technology as the floor and ceiling structure, taking precedent from warehouse construction prevalent throughout the Exchange District.

© James Brittain

Model

Model

© James Brittain
每栋住宅楼都与现有建筑相偏移,创建了新的步行道,这些步行道尊重了原始的泵站围护结构,参考了人体尺度,并扩大了底层商业临街。体量规划突出了新旧之间的联系。无障碍通道位于历史建筑立面和新住宅入口之间的通道上,在压缩和扩建的瞬间,有两个室外露天剧场、公共广场和桥梁,使居民在住宅楼和遗产建筑之间流通。这些通道的交织性质延伸了定义该地区的蜿蜒街道,并将各种形式的公共空间整合在一起,作为该项目规划方案的重要组成部分。
Each of the residential buildings is offset from the existing building, creating new pedestrian lanes that respect the original Pumping Station envelope, reference a human scale, and expand the ground floor commercial frontages. The massing plan highlights connections between the old and the new. Barrier-free access points are nestled along pathways between the historical facade and new residential entrances, and within, moments of compression and expansion feature two outdoor amphitheaters, public plazas, and bridges that circulate residents between the residential blocks and the heritage building. The weaving nature of these passageways extends the winding streets that define the area and integrates diverse forms of public space as an essential component of the project's planning scheme.

© James Brittain
这些住宅从根本上重新思考了开发商的多户住宅效率目标,彻底改变了温尼伯典型的公寓楼。露天出口将不起眼的内部走廊改造成充满活力的外部通道。走道在新旧建筑内和周围交织,成为套房的延伸,为邻里互动创造了公共空间。南北立面由露天楼梯间界定,提供了一系列意想不到的体验,可以无障碍地欣赏城市、邻近河流和公园的景色。这两座建筑都采用了“跳停”配置,每两层楼的套房都在单元内,通过基本上将走廊占地面积减半,以及从两个方向提供通风和自然光,显著提高了效率和体现能源。
The residences fundamentally rethink developer multi-family housing efficiency targets, turning the typical Winnipeg apartment building inside-out. Open-air egress transforms nondescript interior corridors into vibrant exterior passageways. The walkways weave within and around the new and existing buildings and become an extension of the suites, creating communal space for neighbourly interaction. The north and south elevations are defined by open-air stairwells, providing a sequence of unexpected experiences with unobstructed vistas to the city, adjacent river, and park. Both buildings employ a "skip-stop" configuration, where access to suites on every second floor is provided within the unit itself, significantly increasing efficiency and embodied energy by essentially halving the corridor footprint, as well as enabling through-suites with ventilation and natural light from two directions.

© James Brittain

Model

Floor Plan

© James Brittain
这个多方面的混合用途开发项目是该地块上第一个获得整个社区、邻近公寓楼和温尼伯市历史建筑委员会支持的提案。通过简单、创造性的问题解决,原始的泵站得以恢复生机,为设计决策提供了动力,并对草原恶劣环境和经济气候下卓越设计的潜力进行了当代理解,从而形成了一个典型的复兴项目,这两个项目都深深植根于该地区的历史,同时50年来首次将其重新定位为城市中充满活力和社会活跃的地区。
This multi-faceted, mixed-use development is the first proposal on the site that has gained the support of the community at large, the neighbouring condominium complexes, and the historic buildings committee at the City of Winnipeg. The original Pumping Station is brought back to life with simple, creative problem-solving, fueling design decisions and enacting a contemporary understanding of the potentials of design excellence in harsh environmental and economic climates of the Prairies – resulting in an exemplary revitalization project both deeply rooted in the site's history, at the same time reorienting it, for the first time in 50 years, towards a vibrant and socially active parcel of the city.
© James Brittain