林德曼啤酒厂/A2D建筑师
Lindemans Brewery / A2D architects
设计亮点:该项目在设计上巧妙地融合了传统与现代。酿造大厅的立面设计是其最大的亮点,它汲取了啤酒酿造中不锈钢筒仓的圆形元素,将其转化为垂直的凹形砖元素,既具有现代感,又极富创意。这种设计语言打破了传统工厂建筑的刻板印象,为建筑赋予了独特的个性和吸引力。同时,选择红/棕色砖作为立面材料,是对19世纪啤酒厂的致敬,并与周围的工业环境相呼应,体现了对历史文脉的尊重。立面与精致的混凝土基座的结合,以及材料的选择,都体现了建筑师对细节的关注和对整体美学的把握。
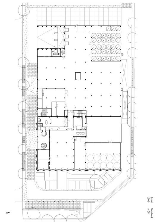
空间组织:该项目在空间组织方面也展现了出色的设计能力。生产大厅和公共办公楼这两个主要结构的功能划分清晰,各司其职。公共办公楼不仅包含酿造和活动大厅,还设有厨房、储物区、商店、办公室和会议室等配套设施,满足了多种功能需求,并设计了宽敞的露台用于社交活动,为员工和访客提供了舒适的交流空间。此外,对未来扩建的预留,体现了设计的长远考虑。内部的圆柱形设计语言贯穿于电梯井、螺旋楼梯和大厅中,统一了视觉元素,增强了空间的整体感,并与外部的筒仓意向相呼应。
材料与工艺:项目的材料选择和建造工艺也是其精髓所在。采用预制混凝土夹芯板建造生产大厅,体现了高效和经济的原则。而酿造大厅则采用了更精细的材料和工艺,红/棕色砖立面与混凝土基座的结合,既保证了建筑的结构稳定性,又增强了其视觉表现力。此外,对不锈钢储罐的运用,不仅体现了建筑的工业属性,也提升了整体的视觉品质。铝或钢制成的栏杆、以及立面与混凝土基座的结合,都体现了建筑师对材料特性的深入理解,以及对工艺细节的精益求精。这些细节共同塑造了建筑的品质感和持久性。

© Alex Verhalle and Jelle Van Seghbroeck

© Alex Verhalle and Jelle Van Seghbroeck
建筑师提供的文字描述该项目是Brouwerij Lindemans新卫星啤酒厂的第一阶段,包括相关的道路、景观和污水处理工程。该地点位于Ruisbroek工业区Sint-Pieters Leeuw市的东北部。该设计由两个主要结构组成:一个生产大厅和一个公共办公楼。办公楼设有一个大型酿造和活动大厅,辅以厨房、储物区、商店、办公室和会议室等配套设施,以及一个为社交活动设计的宽敞、部分覆盖的露台。在未来的一个阶段,计划扩建工厂后面的存储和生产大厅。
Text description provided by the architects. This project is the first phase of a new satellite brewery for Brouwerij Lindemans, including the associated road, landscaping, and sewerage works. The site is in the northeast of the Sint-Pieters-Leeuw municipality, in the industrial district of Ruisbroek. The design consists of two primary structures: a production hall and a publicly accessible office building. The office building features a large brewing and event hall, complemented by supporting facilities such as kitchens, storage areas, shops, offices and conference rooms, as well as a spacious, partially covered terrace designed for social events. In a future phase there are plans to expand the storage and production hall at the back of the site.

© Alex Verhalle and Jelle Van Seghbroeck
这两卷将有不同的饰面。酿造大厅是啤酒厂的“面孔”,并通过独特的建筑设计表达了这一点。立面的几何形状灵感来自用于储存和生产啤酒的不锈钢筒仓的圆形形状。立面将由一系列垂直的凹形砖元素组成,这些砖元素有大开口,可以作为窗户或露台。俏皮的立面建在精致的混凝土基座上,将其与场地结合在一起。为了向19世纪的啤酒厂致敬,并参考该地区其他现有的工厂建筑,立面选择了细致的红/棕色砖。这种具有传统特色的砖块与酿造大厅的当代几何形状形成了微妙的对比。使建筑在其环境中具有动态而敏感的存在感。
The two volumes will have distinct finishes. The brewing hall serves as the 'face' of the brewery and expresses this through a unique architectural design. The geometry of the façade is inspired by the rounded shapes of the stainless-steel silos used for the storage and production of beer. The façade will consist of a series of vertical, concave brick elements with large openings that serve as either windows or terraces. The playful façade rests on a refined concrete plinth that binds it to the site. As a nod to 19th-century breweries and in reference to other existing factory buildings in the area, a nuanced red/brown brick was chosen for the façades. This brick with its traditional character, creates a nuanced contrast with the contemporary geometric form of the brewing hall. Lending the building a dynamic yet sensitive presence in its environment.

© Alex Verhalle and Jelle Van Seghbroeck

Ground Floor Plan

© Alex Verhalle and Jelle Van Seghbroeck
生产大厅采用预制混凝土夹芯板建造。这座建筑的中性特征使其成为酿造大厅的次要建筑。酿造大厅的材料选择也受到限制,外墙只使用砖,底座、盖子和窗台使用建筑混凝土。栏杆将由涂漆铝或钢制成。
The production hall was built using prefabricated concrete sandwich panels. The neutral character of this building allows it to remain secondary to the brewing hall. The material palette for the brewing hall is also restrained, using only brick for the façade and architectural concrete for the base, caps, and sills. The railings will be made of lacquered aluminum or steel.

© Alex Verhalle and Jelle Van Seghbroeck
设计的第三个组成部分是围绕筒仓和储罐区的墙壁,通过材料使用和建筑形式与酿造大厅的语言无缝融合。这面墙延续了凹形分段立面的节奏,采用了同样细腻的红/棕色砖,并建在混凝土基座上。这堵矮墙后面最显眼的坦克也被作为立面的一部分。它们采用优质不锈钢制成,以增强视觉冲击力,并表达建筑的工业功能。在建筑内部,圆柱形的设计语言贯穿于电梯井、巨大的螺旋楼梯和大型入口大厅的体积中。
A third component of the design is the wall surrounding the silo and tank area, which through material use and architectural form is integrated seamlessly into the language of the brewing hall. This wall continues the rhythm of the concave segmented façade with the same nuanced red/brown brick and resting on a concrete base. The most visible tanks behind this low wall are also embraced as part of the façade. They are finished in high-quality stainless steel to enhance their visual impact and express the building's industrial function. Inside the building, the design language of cylindrical forms is carried through in the volume of the elevator shaft, the monumental spiral staircase, and the large entrance lobby.

© Alex Verhalle and Jelle Van Seghbroeck