Fyrornet高层建筑/Wingårdhs
Fyrtornet High-Rise Building / Wingårdhs
可持续性与创新木结构:Fyrtornet项目最显著的亮点在于其对可持续性和创新木结构的大胆应用。作为斯堪的纳维亚半岛最高的木结构建筑,它不仅是对传统建筑材料的挑战,更是对环境友好型建筑实践的积极探索。项目采用了木框架结构,并在外立面上采用了红雪松木瓦和双层玻璃幕墙相结合的设计,这不仅在视觉上创造了独特的对比,更在保温隔热和材料选择上体现了对可持续性的考量。此外,建筑还集成了太阳能电池板和地热能系统,进一步提升了其能源效率和环境友好性,展现出对未来建筑发展方向的深刻思考。
城市肌理的融合与公共空间的营造:Fyrtornet项目巧妙地融入了马尔默的城市肌理,并注重创造充满活力的公共空间。它不仅是地标性的建筑,也是一个重要的社区聚集地。建筑的公共门厅与商业空间、图书馆无缝衔接,鼓励了不同人群的互动交流,丰富了城市生活。凹进的入口和悬挑的屋顶设计,营造出遮蔽的城市空间,为人们提供了一个舒适的聚集场所。这种对公共空间的重视,使得Fyrtornet超越了单纯的建筑功能,成为城市文化的一部分,增强了城市的凝聚力和活力,是对城市环境的积极回应和贡献。
设计语言的创新与细节的精雕细琢:Fyrtornet项目在设计语言上展现了极高的创新性和对细节的精雕细琢。法鲁红色的木塔外观使其成为天际线上的醒目地标,同时与周围环境形成了和谐的对话。建筑师对材料的选择和组合、立面的处理以及室内空间的布局都体现了对美学和功能的完美平衡。三层高的玻璃封闭露台不仅引入了自然光和空气,还为办公空间提供了独特的视野。共享的屋顶花园更是提供了观赏厄勒海峡美景的绝佳场所。这些精心设计的细节,使得Fyrtornet项目在建筑设计领域树立了新的标杆,展现出对建筑艺术的深刻理解和对未来建筑发展方向的精准把握。

© Wingårdhs

© Wingårdhs
建筑师提供的文字描述广场的最后一块。这是迎接来自欧洲大陆的游客的第一个地标,一座法鲁红色的木塔骄傲地伸向天空,是斯堪的纳维亚半岛同类建筑中最高的。
Text description provided by the architects. Fyrtornet is Malmö's new timber high-rise – a striking addition to the skyline and the final piece completing Hyllie Square. It's the first landmark to greet travelers as they arrive from the continent, a falu-red timber tower reaching proudly skyward, the tallest of its kind in Scandinavia.

© Wingårdhs

Plans

© Wingårdhs
一楼设有公共门厅和马尔默人民的客厅。在二楼,一个地区图书馆一直开放到晚上,阅览室朝向广场,提供休息和反思的空间。上图中,办公楼层展开,温暖的木材内饰和三层高的玻璃封闭露台引入了自然光和空气。在顶部,一个共享的屋顶花园可以欣赏到厄勒海峡的广阔景色。
The ground floor welcomes a public foyer and a living room for the people of Malmö. On the second floor, a district library remains open into the evening, with reading rooms oriented towards the square, offering spaces to pause and reflect. Above, office floors unfold with warm timber interiors and triple-height, glass-enclosed terraces that bring in natural light and air. At the top, a shared rooftop garden opens to expansive views of the Öresund Strait.

© Wingårdhs
可持续性塑造了Fyrorternet的方方面面。该建筑的设计减少了从结构木框架到雪松木瓦立面的碳足迹。它是斯堪的纳维亚半岛最高的办公楼,完全由木材建造。玻璃幕墙上的集成太阳能电池板和地热能系统进一步提高了效率和资源意识设计。
Sustainability shapes every facet of Fyrtornet. The building's design reduces its carbon footprint from the structural timber frame to the cedar shingle façade. It stands as Scandinavia's tallest office building, constructed entirely of timber. Integrated solar panels on the glass façades and a geothermal energy system further enhance efficiency and resource-conscious design.

© Wingårdhs

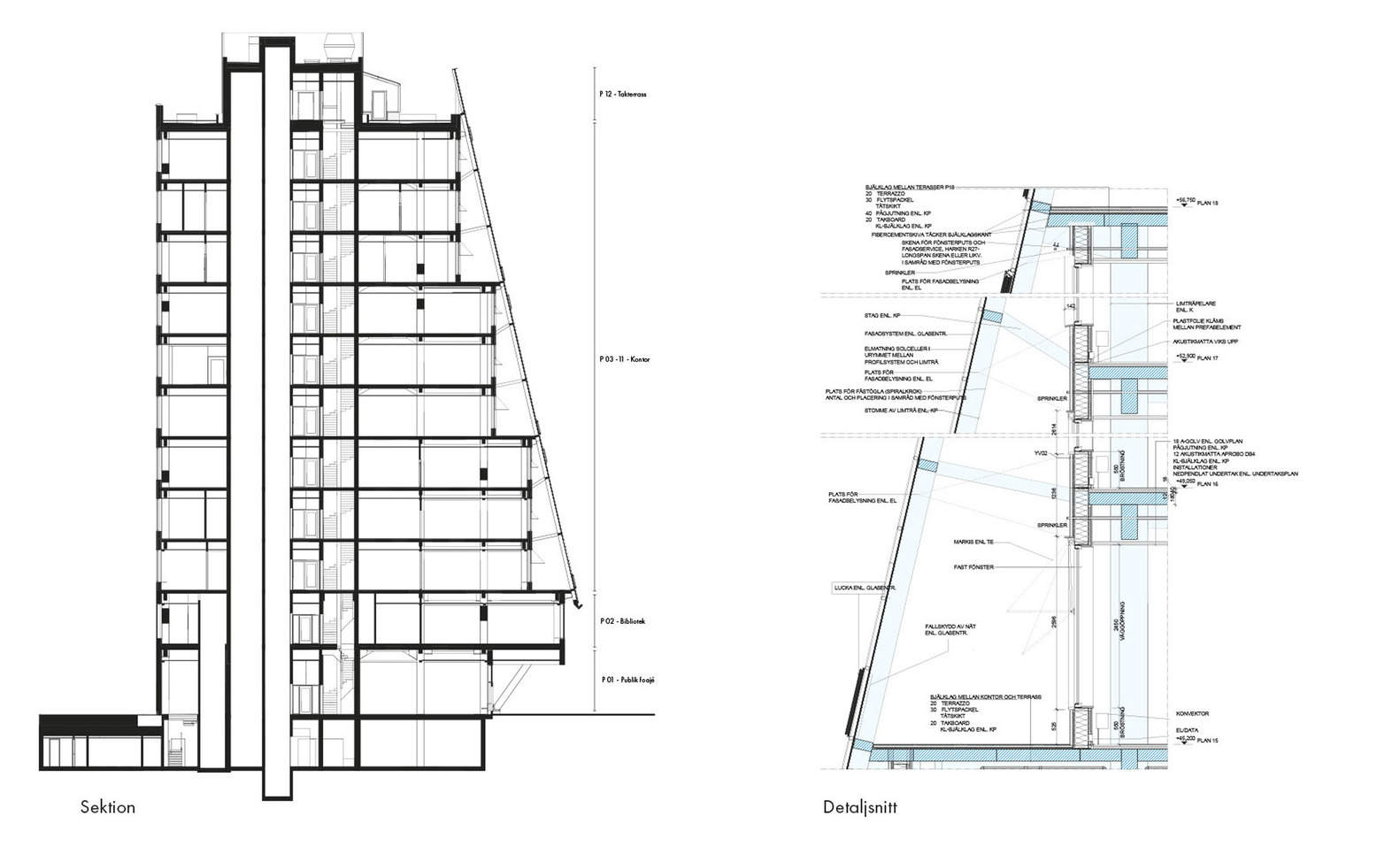
Section and Detail

© Wingårdhs

© Wingårdhs
Fyrorternet不仅仅是一个建筑,它还是共享区大使馆的一个聚会场所和关键要素。公共门厅与商业空间和地区图书馆无缝融合,鼓励不同群体之间的相遇,丰富城市生活。凹进的入口和悬挑的屋顶创造了一个有遮蔽的城市空间,吸引人们聚集。两个立面采用红雪松木瓦装饰,而另外两个则采用双层玻璃幕墙,反映出远处的城市。
More than a structure, Fyrtornet is a meeting place and a key element in the Embassy of Sharing district. The public foyer seamlessly blends with commercial spaces and a district library, encouraging encounters between different groups and enriching urban life. A recessed entrance and overhanging roof create a sheltered urban space, inviting people to gather. Two façades are dressed in red cedar shingles, while the other two feature double-glazed curtain walls that reflect the city beyond.

© Wingårdhs
Fyrorternet将周到的整体设计与创新的木结构以及对社会和生态可持续性的承诺相结合。这是一种建筑宣言,既尊重马尔默的城市背景,又渴望塑造其未来。我们希望这座城市天际线的精心设计将增强马尔默的建筑环境,并激励那些遇到它的人。
Fyrtornet combines thoughtful, holistic design with innovative timber construction and a commitment to social and ecological sustainability. It is an architectural statement that both respects Malmö's urban context and aspires to shape its future. A crafted addition to the city's skyline that we hope will enhance Malmö's built environment and inspire those who encounter it.

© Wingårdhs