郑东进工作室/杨建筑工作室
Studio Jeongdongjin / Architecture Studio YEIN
自然与建筑的和谐共生:该项目巧妙地将建筑融入自然之中,选址于郑东进村郊外的田野上,与周边的自然景观无缝衔接。建筑布局充分利用场地的自然特征,如北端的郑东溪水库和南面的开阔田野,通过透明通道连接南北空间,使建筑与自然环境形成和谐的整体,创造出一种宁静而富有生机的氛围,让使用者在工作的同时,能够充分感受四季变换的自然之美。
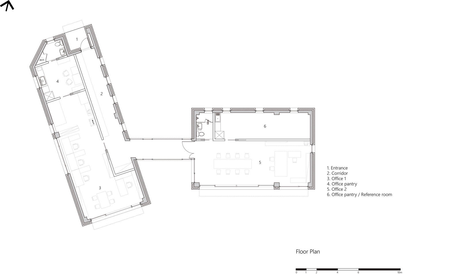
功能与空间的巧妙布局:办公室的功能分区明确且合理,入口处的长走廊兼具展览与通道功能,巧妙地引导访客进入不同区域。北侧的员工工作区设有模型制作和设施的多功能区,满足日常工作需求;南侧的建筑师私人办公室则配备了卫生间和材料存储区,为建筑师提供独立且私密的工作空间。这种设计不仅满足了功能需求,还通过视觉上的连接,增强了空间的连贯性和流动性,提升了整体的使用体验。
建筑语言与地域文化的融合:在建筑风格上,项目采用了暴露的混凝土山墙屋顶和回收砖的立面,赋予建筑一种永恒而质朴的感觉。这种设计不仅体现了对材料的巧妙运用,还与郑东进的历史和文化相呼应,展现出一种对场地的归属感。建筑的两个不同体量与自然轴线对齐,进一步强化了与当地环境的协调性,使建筑成为地域文化的一部分,同时也为当地社区带来了一种新的活力和认同感。

© Yoon, Joonhwan

© Yoon, Joonhwan
Jeongdongjin–韩国的东部边缘–YEIN建筑工作室的新办公室位于韩国东海沿岸的沿海村庄Jeongdongjin。郑东进这个名字源于它的位置“一个位于汉阳光化门以东的村庄,曾经是一艘河滨渡轮的所在地”。这个宁静的海滨社区主要由农村农业和渔业村庄组成,拥有小型沿海港口和内陆延伸的田地。办公室的选址位于村庄的郊区,在一片四季变幻的田野上。
Jeongdongjin – The Eastern Edge of Korea – The new office of Architecture Studio YEIN is located in Jeongdongjin, a coastal village along Korea's East Sea. The name Jeongdongjin originates from its position "a village located directly east of Gwanghwamun in Hanyang, once home to a riverside ferry." This tranquil seaside community, primarily composed of rural farming and fishing villages, features small coastal harbors and fields stretching inland. The site for the office lies on the outskirts of the village, in a field where the ever-changing seasons are vividly experienced.

© Yoon, Joonhwan

Site Plan

© Yoon, Joonhwan
在郑东溪和田野之间–办公室位于郑东进村和相邻的田野之间,面向郑东进小学的正门。东北部是郑东溪水库,芦苇在春天摇曳,而在南部,开阔的田野全年沐浴在温暖的阳光下,风景优美。细长的场地随着向河流倾斜而变窄,允许建筑位于北端的布局,形成一个开放的南庭院。从功能上讲,办公室需要两个主要空间:一个供员工使用的设计工作区和一个供建筑师使用的私人办公室。这些空间是分开的,但通过一条透明的通道在视觉上相连,这条通道连接了北部和南部地区,从而与自然建立了无缝的关系。
Between Jeongdong Stream and the Fields – The office is situated between Jeongdongjin village and the adjacent fields, facing the main gate of Jeongdongjin Elementary School. To the northeast lies the Jeongdong Stream reservoir, where reeds sway in the spring, while to the south, open fields bask in warm sunlight and scenic beauty year-round. The elongated site narrows as it slopes toward the river, allowing for a layout where the building is positioned at the northern end, creating an open southern courtyard. Functionally, the office required two main spaces: a design workspace for staff and a private office for the architect. These spaces are separated but visually connected through a transparent passage, which bridges the northern and southern areas, thereby creating a seamless relationship with nature.

© Yoon, Joonhwan

Floor Plan

© Yoon, Joonhwan
连接两个空间-该建筑的布局旨在满足其功能需求。入口位于北侧,道路通往现场。进入后,游客会被引导穿过一条长长的走廊,这条走廊既是展览空间,也是通往其他区域的通道。在北面,员工工作区包括一个用于模型制作和设施的多功能区。再往前走,走廊通向位于南面的建筑师私人办公室,其中包括卫生间和一个用于存放大量材料的存储区。这种设计有效地连接了空间,使从一个区域到下一个区域的流动顺畅。
Connecting Two Spaces – The building's layout is designed to accommodate its functional needs. The entrance is located to the north, where the road leads to the site. Upon entering, visitors are guided through a long corridor, which serves as both an exhibition space and a pathway to the other areas. To the north, the staff workspace includes a multipurpose area for model-making and amenities. Further along, the corridor leads to the architect's private office located to the south, which includes restrooms and a storage area for an extensive archive of materials. This design effectively connects the spaces, allowing for a smooth flow from one area to the next.

© Yoon, Joonhwan
从建筑上讲,办公室的特点是暴露的混凝土山墙屋顶和回收砖的立面,给建筑一种永恒的感觉。虽然是新建的,但它唤起了一种对场地的归属感,与景观无缝融合,而不会压倒周围的环境。这两个不同的体量旨在与自然轴线对齐,与当地环境相协调,这是一个关键的设计意图。
Architecturally, the office features exposed concrete gabled roofs and a facade of reclaimed brick, giving the building a sense of timelessness. While newly constructed, it evokes a feeling of belonging to the site, blending seamlessly into the landscape without overwhelming its surroundings. The two distinct masses are designed to align with the natural axis, harmonizing with the local environment, a key design intention.

© Yoon, Joonhwan
建筑植根于郑东进的故事-郑东进是渔业和农业共存的地方,保留了韩国历史的痕迹,包括工业化和朝鲜战争。尽管该村因《沙漏》(Molaesigye,모47000; fightou)剧而成为日出目的地,但该村仍面临旅游业衰退和缺乏新景点等挑战。
Architecture Rooted in Jeongdongjin's Story – Jeongdongjin, where fishing and farming coexist, preserves traces of Korea's history, including industrialization and the Korean War. Despite its fame as a sunrise destination, popularized by the Sandglass (Molaesigye, 모래시계) drama, the village faces challenges such as declining tourism and a lack of new attractions.

© Yoon, Joonhwan
将办公室迁至郑东进反映了这样一种信念,即在现代网络的推动下,建筑设计可以在任何地方蓬勃发展。随着KTX铁路服务将首尔直接连接到郑东进站,到江陵市中心的距离不再构成障碍。此举代表着在解决农村衰落和城市萎缩问题的同时,致力于专注于设计的承诺。这也是一个建筑故事,旨在将这个村庄与世界联系起来,并确保郑东进作为“日出之村”的美丽继续受到启发。
Relocating the office to Jeongdongjin reflects the belief that architectural design, facilitated by modern networks, can thrive anywhere. With KTX rail services connecting Seoul directly to Jeongdongjin Station, the distance to Gangneung's city center no longer poses a barrier. This move represents a commitment to focusing on design while addressing issues of rural decline and urban shrinkage. It is also a story of architecture, aimed at connecting this village to the world and ensuring that Jeongdongjin's beauty as 'the village of sunrise' continues to inspire.