Kiryu的虚空/根岸健池工作室
Voids of Kiryu / Negishi Kenchiku Studio
创新的立面设计:该项目在立面处理上展现了独特的创新。将路边铝制窗框的玻璃替换为金属网,不仅创造了轻盈透明的视觉效果,还巧妙地在窗框与外墙间设置小花园,为街景增添活力。这种设计既保留了建筑的原有结构,又通过细节的改变提升了整体的美观度和吸引力,体现了建筑师对城市空间细节的关注和巧妙利用。
灵活的室内空间:内部翻修充分考虑了租户的个性化需求。空置店铺1-2的内部被简化至最低限度,立柱墙基础暴露,为租户提供了极大的灵活性。室内设计交由租户决定,极大地激发了他们入住的意愿。中央支柱将房间巧妙分隔,银色墙壁和光滑地板涂料的使用,不仅增强了自然光的反射,还营造出宽敞明亮的开放空间,打破了传统低矮天花板给人的压抑感,展现了空间设计的人性化和实用性。
巧妙的空间对比与融合:对于狭长的空置商店3,建筑师巧妙地利用南北两侧的对比,创造出模糊的空间界限。北侧的众多开口与南侧的隔墙形成鲜明对比,而中央的混凝土砌块墙进一步强化了这种对比。通过提升室内的抽象层次,动态的户外风景与静态的室内空间相互渗透,柔软的墙壁设计则为使用者提供了温馨的包围感,这种对比与融合的设计手法,不仅丰富了空间的层次感,也提升了建筑的艺术感染力。

© Shinsuke Hayakawa

© Shinsuke Hayakawa
建筑师提供的文字描述该项目是对一栋六层公寓楼的部分翻修,该公寓楼距离一个地区城市的城区不远。我们进行了翻修,旨在改善人们对一楼空置空间的印象,并恢复人们对它的认识,由于它的年龄,它已经很久没有被租用了。
Text description provided by the architects. This project is a partial renovation of a six-story apartment building located a short distance from the urban area of a regional city. We carried out renovations aimed at improving the impression and restoring recognition of a vacant space on the ground floor, which had not been rented for a long time due to its age.

© Shinsuke Hayakawa

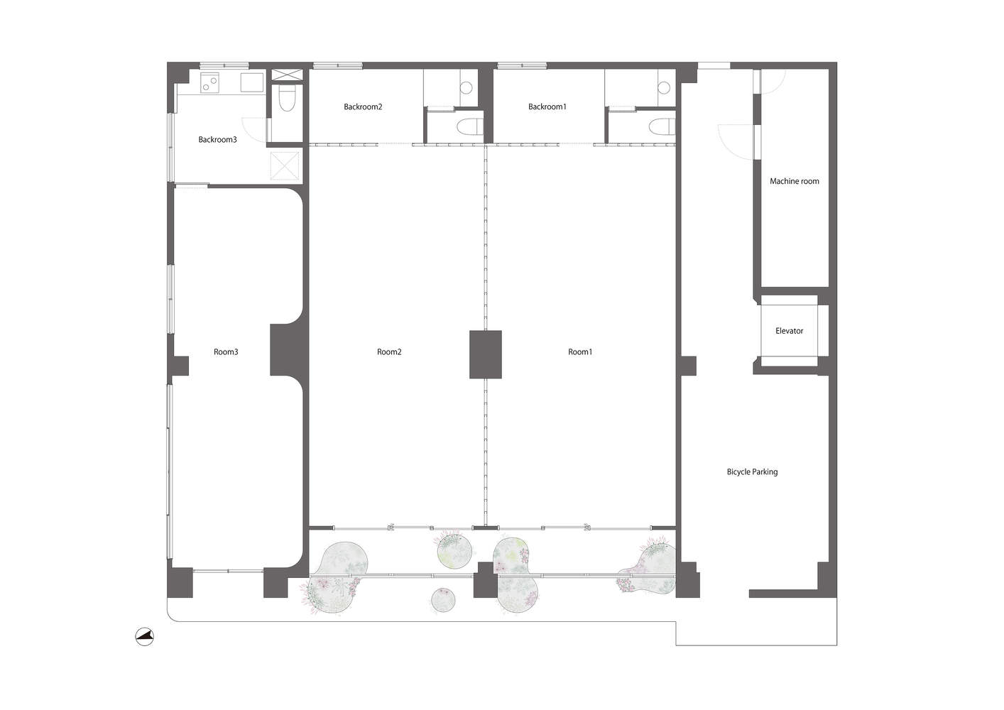
Plan

© Shinsuke Hayakawa
外部:路边现有的铝制窗框已将玻璃替换为金属网,以创造一个轻盈透明的立面,并在现有窗框和外墙之间设置了一个小花园。通过为建筑制定设计规范,租户可以防止混乱的外部设计,他们可以维护和管理植物,为街景做出贡献。
Exterior: The existing aluminum sashes on the roadside have had their glass replaced with expanded metal to create a light and transparent facade, and a small garden has been set back between the existing sashes and the exterior wall. By establishing a design code for a building, tenants can prevent chaotic exterior designs, and they can maintain and manage plants, contributing to the streetscape.

© Shinsuke Hayakawa

Diagram

© Shinsuke Hayakawa

© Shinsuke Hayakawa
内部:空置店铺1-2的内部已翻修至最低限度。为了适应租户的灵活性,立柱墙基础是暴露的。与外部相比,室内设计由租户决定,这增加了他们搬进来的动力。房间也被一根中央支柱分为两部分,每部分后面都有一个厕所。银色的墙壁和光滑的地板涂料为大空间提供了自然光,创造了一个不会给人低天花板印象的开放空间。
Interior: The interior of vacant store 1-2 has been renovated to the bare minimum. To accommodate the flexibility of renters, the stud wall foundation is left exposed. In contrast to the exterior, the interior design is left up to the tenant, which increases their motivation to move in. The room is also divided into two by a central pillar, with a toilet at the back of each. The silver walls and glossy floor paint deliver natural light to the large space, creating an open space that does not give the impression of low ceilings.

© Shinsuke Hayakawa

Elevation
空置的商店3从东到西狭长。虽然北侧有许多开口,但南侧被隔墙隔开,一堵巨大的混凝土砌块墙从房间的中心伸出。我们的目标是积极地重新诠释南北之间的对比,创造一个夹在具体性(动态的外部)和抽象性(静态的内部)之间的模糊空间。通过增加房间的抽象层次,强调了通过开口可见的动态户外风景,而柔软的墙壁则温柔地包围着使用者。
Vacant store 3 is long and narrow from east to west. While there are numerous openings on the north side, the south side is closed off by a partition wall, with a large concrete block wall protruding from the center of the room. We aimed to positively reinterpret the contrast between the north and south and create an ambiguous space sandwiched between concreteness (a dynamic exterior) and abstractness (a static interior). By increasing the level of abstraction in the room, the dynamic outdoor scenery visible through the opening is emphasized, while the soft walls gently envelop the users.