MJK幼儿园/HIBINOSEKEI+优吉没有Shiro+儿童设计实验室
MJK Kindergarten / HIBINOSEKKEI + Youji no Shiro + Kids Design Labo
环境融合与自然互动:该项目位于北九州市Moji,拥有得天独厚的自然环境,北面是浩瀚的大海,南面是壮丽的山脉。设计师巧妙地利用了场地的自然高差,将外部自然景观引入室内,模糊了室内外的界限。这种设计不仅保留了场地原有的自然特征,还为孩子们创造了一个充满自然元素的学习和玩耍空间。孩子们可以在自然环境中自由探索,感受四季的变化,培养对自然的热爱和尊重。
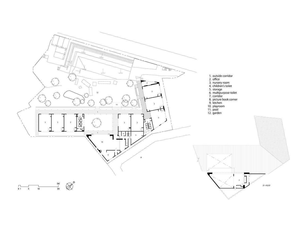
空间布局与功能优化:幼儿园的所有教室均布置在一楼,并呈L形布局,面向操场。这种布局使得孩子们在享受自然的同时,也能够方便地进行各种活动。外部走廊的设计类似于日本房屋的阳台,将日常活动带到半户外,让孩子们在自然环境中成长。用餐区则通过可完全打开的窗户,让孩子们在用餐时也能感受到自然的气息。这种空间布局不仅满足了功能需求,还为孩子们提供了一个充满活力和自由的学习环境。
教育理念与可持续发展:该项目强调儿童的自主性和与自然的联系,提供了一个允许自由活动的环境。这种设计理念与现代幼儿教育的理念相契合,注重培养孩子们的独立思考和行动能力。同时,通过保护现有的树木和强调环境的可持续发展,该项目也向孩子们传达了珍惜自然、保护环境的重要性。这种教育理念不仅有助于孩子们的全面发展,也为未来的可持续发展奠定了基础。

Courtesy of KIDS DESIGN LABO

Courtesy of KIDS DESIGN LABO
建筑师提供的文字描述这是位于北九州市Moji的一所可容纳240名儿童的老年幼儿园的翻修项目。该遗址位于一个住宅区,北面是浩瀚的大海,南面是壮丽的山脉,自然风光宜人。特别是,受附近“Midori山谷”的影响,幼儿园的操场高差超过3米。现有的场地被孩子们视为一个有吸引力的游乐区,拥有天然的游乐场设备和丰富的树木,是一个共生和学习的空间。在仔细尊重这种环境的同时,该设计通过将外部自然带入室内,模糊了内外之间的界限。
Text description provided by the architects. This is a renovation project for an aging kindergarten with a capacity of 240 children located in Moji, Kitakyushu City. The site is situated in a residential area surrounded by the vast sea to the north and magnificent mountains to the south, it is blessed with nature. Particularly, influenced by the nearby "Midori Valley," the kindergarten's playground features a more than 3-meter difference in elevation. The existing site has been cherished by children as an attractive play area with natural playground equipment and abundant trees, serving as a space for symbiosis and learning. While carefully respecting this environment, the design blurs the boundaries between the inside and outside by bringing the external nature into the interior.

Courtesy of KIDS DESIGN LABO

Elevations

Courtesy of KIDS DESIGN LABO
所有的教室都布置在一楼,面向操场,呈L形布局,让孩子们在享受与大自然互动的同时度过时光。连接操场和教室的外部走廊类似于日本房屋的阳台,将日常活动带到半户外,使孩子们能够不断体验自然和天气的变化。他们可以感觉到雨从屋顶上落下,并感知到风带来的季节性转变。通过这些日常经历,孩子们的情感得到了提升,他们培养了独立思考和行动的能力。
All the classrooms are arranged on the ground floor, facing the playground in an L-shaped configuration, allowing children to spend their time while cherishing interaction with nature. The external corridor that connects the playground and classrooms resembles the veranda of a Japanese house, bringing the daily flow of movement semi-outdoors, enabling the children to constantly experience the changes in nature and weather. They can feel the rain falling from the roof and perceive the seasonal transitions brought by the wind. Through such daily experiences, children's sensibilities are refined, and they develop the ability to think and act on their own.

Courtesy of KIDS DESIGN LABO

Plan

Courtesy of KIDS DESIGN LABO
建筑内设有一个庭院,旨在保护自幼儿园成立以来一直守护着它的现有树木。庭院旁边有一个用餐区,其特色是可完全打开的窗户,让孩子们在感受季节和现有树木变化的同时享受美食。通过重视现有树木的保护,孩子们培养了对环境的理解和尊重,培养了珍惜自然以实现可持续未来的意识。
A courtyard is provided in the building, aiming to protect the existing trees that have been watching over the kindergarten since its establishment. Next to the courtyard, a dining area is located, featuring fully openable windows that allow children to enjoy meals while sensing the seasons and the changes in existing trees. By valuing the preservation of the existing trees, children cultivate an understanding of and respect for the environment, fostering an awareness of cherishing nature for a sustainable future.

Courtesy of KIDS DESIGN LABO

Sections
Courtesy of KIDS DESIGN LABO
近年来,幼儿设施有一种倾向,即优先考虑过度的安全和舒适。然而,这所幼儿园强调儿童的自主性,并提供了一个允许自由活动的环境,始终培养与自然的联系。通过这种方法,这座建筑在培养儿童的情感和促进自我导向的幼儿教育方面发挥了作用。
In recent years, there has been a tendency in early childhood facilities to prioritize excessive safety and comfort. However, this kindergarten emphasizes children's autonomy and provides an environment that allows for free movement, always fostering a connection with nature. Through this approach, this building plays a role in nurturing children's sensibilities and promoting self-directed early childhood education.