JAX公共领域/BRICKLAB
JAX Public Realm / BRICKLAB
历史与现代的融合: JAX公共领域的设计巧妙地将历史与现代元素相结合,创造出一个充满活力的创意空间。项目位于沙特历史重镇Ad Diriyah,通过重新构想一个衰退的工业区,将其转变为创意人士的聚集地。这种转变不仅保留了该地区丰富的历史底蕴,同时也为现代创意产业的发展提供了新的平台。通过与Diriyah双年展基金会等机构的合作,JAX成功地将艺术、设计与商业融合在一起,形成了一个多元化的文化生态系统。
空间布局与生态设计: JAX公共领域的空间布局充分考虑了生态与功能的结合。项目在街道网格内规划了一百个仓库和多个不同的广场,采用修复和适应性再利用的原则进行设计。受瓦迪·哈尼法自然景观的启发,建筑语言和景观设计采用了工业材料和本土植物,既体现了工业区的历史特色,又为炎热干燥的气候提供了生态上的缓解。这些设计不仅增强了空间的实用性,还提升了其美学价值,使其成为社区中最活跃的公共空间之一。
创新与活力的激发: JAX公共领域的建筑干预采用了一种微妙的类型学方法,通过一系列创新的设计手法,为创意社区的不同参与者提供了充满活力的空间。例如,部分仓库被垂直旋转以创造通道,或通过挖空外墙与街道连接,这些设计不仅增加了空间的趣味性,也为社区的互动和交流创造了条件。此外,通过引入咖啡馆、临时市场等设施,JAX成功地激发了社区的活力,使其成为利雅得最具吸引力的新兴社区之一,为创意产业的发展提供了良好的环境。

© Laurian Ghinitoiu

© Laurian Ghinitoiu
建筑师提供的文字描述2015年,由艾哈迈德·马特领导的一群有远见的艺术家动员起来,反对他们那个时代文化习俗的限制性潮流。他们在利雅得周围寻找可能的地区,为创意人士聚集一个空间,并在沙特国家历史所在地Ad Diriyah发现了一个衰退的工业区。曾经是一个粗犷而繁华的轻工业区,“JAX创意区”被重新构想为创意人士的聚会场所,也是对该镇丰富多样的历史的庆祝。
Text description provided by the architects. In 2015, a group of visionary artists, led by Ahmed Mater, mobilized against the limiting currents of the cultural practices of their time. They scouted for possible areas around Riyadh to assemble a space for creatives and discovered a declining industrial district in the historic seat of the Saudi State, Ad Diriyah. Once a gritty and bustling light-industrial area, the 'JAX Creative District' was reimagined as a meeting place for creatives and a celebration of the town's rich and varied history.

Urban Diagram
凭借其位于阿拉伯中部肥沃山谷瓦迪哈尼法河岸的战略位置,JAX迅速成为该国创意产业的中心。主办Diriyah双年展基金会、SAMOCA和Noor Riyadh,同时为艺术家、设计师和制造商提供补贴空间。继该地区的首个项目Diriyah双年展基金会取得成功后,Bricklab与JAX建立了牢固的关系。2021年,他们受委托为福斯特建筑事务所制定公共领域指导方针;在2022年晚些时候,他们赢得了一场设计一系列仓库和公共广场的竞赛。
With its strategic location along the banks of Wadi Hanifa, Central Arabia's fertile valley, JAX has quickly become the nation's hub for the creative industries. Hosting the Diriyah Biennale Foundation, SAMOCA, and Noor Riyadh, while simultaneously offering subsidized spaces for artists, designers, and makers. Following the success of the Diriyah Biennale Foundation, the district's inaugural project, Bricklab established a strong relationship with JAX. In 2021, they were commissioned to develop the public realm guidelines for the Foster & Partners masterplan, and later in 2022, they won a competition to design a series of warehouses and public plazas.

Diagram

Diagram
该地区在街道网格内有一百个仓库和一组不同的广场,围绕修复和适应性再利用的原则进行规划。受瓦迪·哈尼法自然景观的影响,工业场地的指导方针通过材料、调色板和景观来传达。该地区的建筑语言基于工业材料、谨慎的铺装和对创意生产功能要求的敏感性的微妙结合。在城市规模上,从整个场地严格实用的结构组合中雕刻出一组步行通道和公共广场,以建立公共活动的节点。这些新的广场、人行道和十字路口是由景观建筑师studiolikani开发的不规则几何形状的景观口袋所定义的。
With a hundred warehouses and a set of different plazas within the street grid, the district was planned around principles of rehabilitation and adaptive reuse. Influenced by Wadi Hanifa's natural landscape informed the guidelines of the industrial site through materiality, color palette, and landscaping. The architectural language set for the district was based on a subtle combination of industrial materials, mindful paving, and a sensitivity to the functional requirements of creative production. At an urban scale, a set of pedestrian thoroughfares and public plazas were carved out from the strictly utilitarian assembly of structures throughout the site to establish nodes of public activity. These new plazas, sidewalks, and intersections are defined by landscaped pockets of irregular geometries developed by landscape architects studiolibani.

© Laurian Ghinitoiu
为了建立生态连续性,同时显著缓解炎热干燥的气候,他们从瓦迪哈尼法(Wadi Hanifa)沿线的地点策划了一系列本土植物。这些城市干预措施鼓励了该社区一些最具活力的公共空间的发展,举办了季节性的艺术干预活动、咖啡馆和临时市场。
To establish an ecological continuity, while providing a salient relief from the hot and dry climate, they curated a palette of native flora from sites along Wadi Hanifa. These urban interventions encouraged the development of some of the neighborhood's most vibrant public spaces, hosting seasonal artistic interventions, cafes, and temporary markets.

© Laurian Ghinitoiu

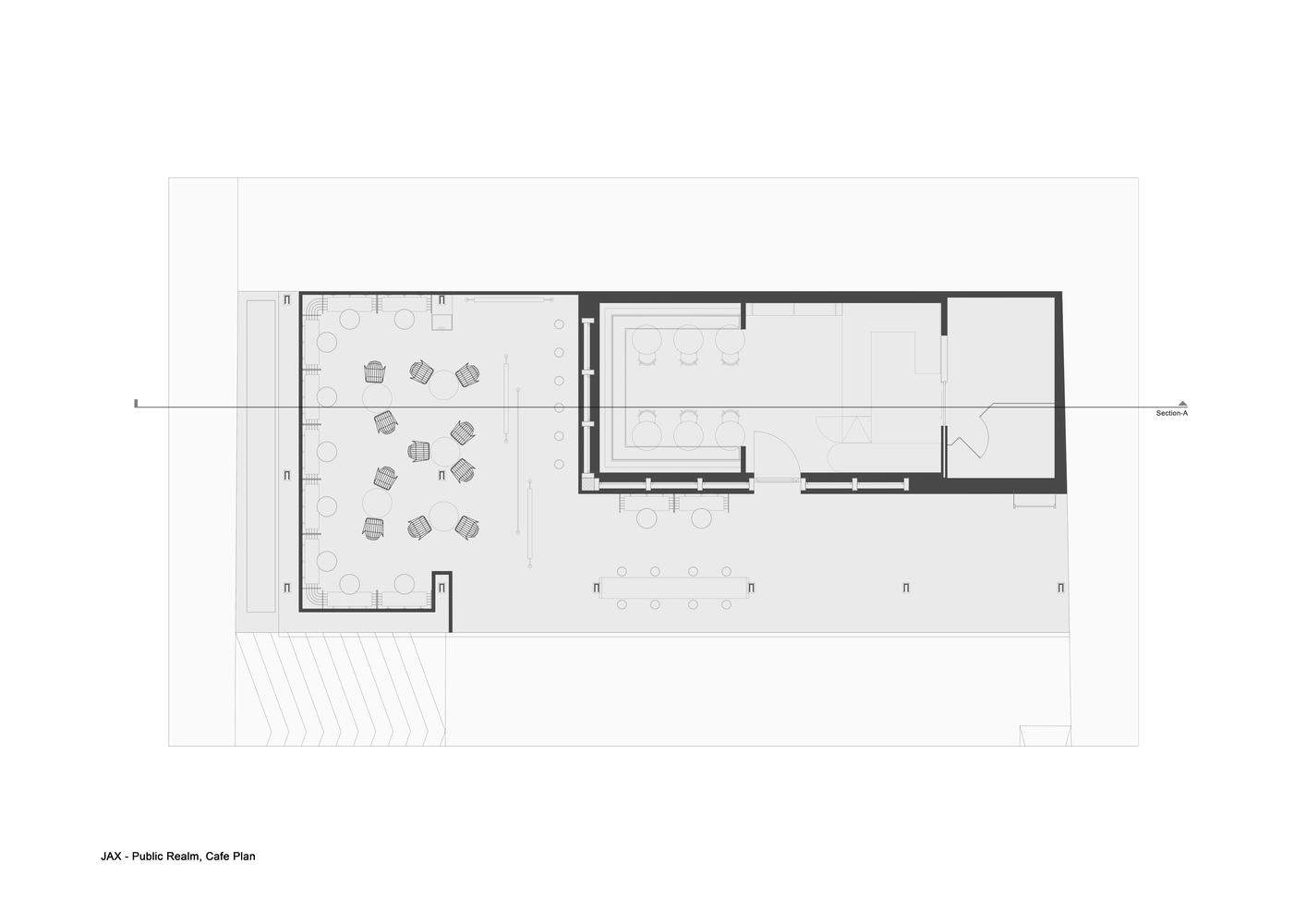
Cafe Floor Plan

Warehouse Floor Plan

© Laurian Ghinitoiu
针对典型仓库开发了一套正式操作,以满足程序要求、城市环境和开发指南。这些行动产生了一套新的类型,在该地区建立了微妙的存在。一些仓库垂直于街道旋转,在城市结构中创造了通道。其他人则将部分外墙挖空,将建筑与街道分段连接。此外,一套新的、按比例缩小的棚屋被插入城市结构中,作为F&;B让街道充满活力的商店和小店。
A set of formal operations on the typical warehouse was developed to address programmatic requirements, urban context, and development guidelines. These operations yielded a set of new typologies that established a subtle presence in the district. Some warehouses were rotated perpendicular to the street to create thoroughfares within the urban fabric. Others had portions of their facades hollowed out to connect the structures to the street sectionally. Additionally, a set of new, scaled-down sheds were inserted into the urban fabric to serve as F&B outlets and small shops that animate the street.

© Laurian Ghinitoiu
建筑干预的类型学方法的微妙之处产生了一个柔和的环境,为来自创意社区的不同参与者留下了随着时间的推移使该地区充满活力的空间。自成立以来,JAX创意区已成为利雅得新兴的社区之一,将曾经支离破碎的创意网络聚集在一起,形成了一个繁荣的社区空间。
The subtlety of the typological approach to the architectural interventions yielded a subdued environment that leaves room for different participants from the creative community to animate the district over time. Since its inception, JAX Creative District has become one of Riyadh's burgeoning neighborhoods, bringing together a once-fragmented creative network into a thriving community space.