中国美发沙龙/Hitotomori建筑师+arinco建筑师
The hinc Hair Salon / Hitotomori Architects + arinco architects
历史与现代的融合:该项目巧妙地将昭和时代的复古建筑与现代美发沙龙的功能需求相结合。建筑师保留了原有的三角形平面图、高高的天花板以及钢筋混凝土柱和带拱腋的梁,这些元素随着时间的推移呈现出独特的美感。通过最小的干预,设计师不仅保护了建筑的历史韵味,还为现代的美发沙龙创造了一个充满历史感的空间背景。这种对原有结构的尊重与再利用,不仅体现了对历史的敬畏,也为现代设计注入了新的活力.
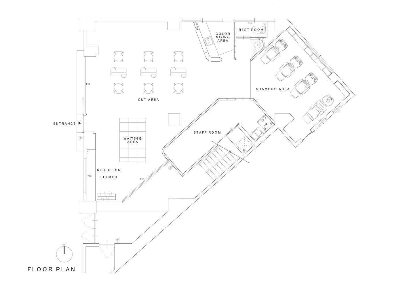
空间布局的巧妙划分:在平面图的中心,设计师通过划分和定位一个彩色展台和一个圆形墙壁的员工室,引入了新的体量。这种布局不仅合理地分配了空间功能,还为顾客和员工提供了更加舒适的工作环境。明亮的区域与自然光的结合,营造出一个温馨的切割和等待空间,而隐蔽、昏暗、宁静的淋浴间区域则为顾客提供了一个放松身心的私密空间。每个区域的固定装置,如顶部有铜板的胶合板、简单粘附在箱板上的镜子等,都与空间功能相得益彰,展现出设计师对细节的精心考量.
照明与材质的精心搭配:照明布局在该项目中起到了画龙点睛的作用。设计师使用了三种不同色温的线性管LED照明,分别为现有结构的4000K、切割空间的3500K以及洗发间和等候区的2700K。这些灯光不仅满足了不同区域的功能需求,还通过不同的色温和高度,进一步增强了空间的特色,营造出丰富的层次感和氛围感。此外,铜棒、混凝土蜂窝等材质的运用,以及可见但美观的电线设计,都体现了设计师对真实与内在美的追求,使整个空间呈现出一种质朴而富有内涵的美感.

© Hiroki Kawata

© Hiroki Kawata
建筑师提供的文字描述该项目是大阪野田站附近昭和时代复古建筑一楼翻新的美发沙龙的室内设计。现有的三角形平面图、高高的天花板、钢筋混凝土柱和带拱腋的梁随着时间的推移而美丽地老化了。有些人可能会称之为退化,而另一些人可能会将其描述为时间培养的美丽。我们与客户分享了这种内在的美,并在最小的干预下规划了空间,以尽可能多地保护这种美丽的结构。
Text description provided by the architects. This project is the interior design of a hair salon renovated from the first floor of a Showa-era retro building near Noda Station in Osaka.The existing triangular floor plan, high ceilings, reinforced concrete columns, and beams with haunches had aged beautifully over time. Some might call it deterioration, while others may describe it as beauty cultivated by time. We shared this intrinsic beauty with the client and planned the space with minimal intervention to preserve this beautiful structure as much as possible.

© Hiroki Kawata

Plan

© Hiroki Kawata
在平面图的中心,我们通过划分和定位一个彩色展台和一个圆形墙壁的员工室来引入新的体量。剩余的空间被轻轻地划分为一个明亮的区域,有自然光的切割和等待空间,以及一个隐蔽、昏暗、宁静的淋浴间区域。每个区域都有固定装置,如顶部有铜板的胶合板、简单粘附在箱板上的镜子、弯曲的铜管吊杆和根据功能分散在各处的胶合板制成的扬声器。
At the center of the floor plan, we introduced new volumes by dividing and positioning a color booth and a staff room with rounded walls. The remaining space was gently divided into a bright area with natural light for the cutting and waiting space and a recessed, dim, and tranquil area for the shower booth. Each area features fixtures such as plywood topped with copper sheets, mirrors simply adhered to boxed boards, bent copper pipe hanger rods, and speakers made of plywood scattered throughout according to their function.

© Hiroki Kawata

© Hiroki Kawata
此外,照明布局进一步增强了空间的特色。我们使用了三种不同色温的线性管LED照明:现有结构为4000K,切割空间为3500K,洗发间和等候区为2700K。这些灯安装在不同的高度,以匹配每个区域的独特特征。
Additionally, the lighting layout further enhances the space's characteristics.We used linear tubed LED lighting with three different color temperatures: 4000K for the existing structure, 3500K for the cutting space, and 2700K for the shampoo booth and waiting area. The lights are installed at varying heights to match the unique characteristics of each area.

© Hiroki Kawata

© Hiroki Kawata
现有建筑的一些角落有铁角保护,而其他未受保护的角落则出现了磨损,随着时间的推移,这增加了建筑的魅力。现有的结构告诉我们,美超越了表面的设计。
The existing building was protected by iron angles at some corners, while other unprotected corners showed wear, adding to the building's charm over time. The existing structure teaches us that beauty lies beyond superficial design.

© Hiroki Kawata

© Hiroki Kawata
遵循这一理念,我们设计了铜棒等特征来保护楼梯突缘,故意暴露的混凝土蜂窝,并安装了可见但美观的电线。其结果是一个基本的空间,不是装饰性的,而是真实而内在的。乍一看,它可能看起来像是一家专注于浅层设计的美发沙龙,但它与沙龙真正与客户互动并从内部提升他们的美丽和丰富性的愿望产生了共鸣。
Following this philosophy, we designed features such as copper rods to protect the stair nosing, intentionally exposed concrete honeycombs, and installed visible yet aesthetically pleasing electrical wiring.The result is an essential space that is not decorative but both authentic and intrinsic.At first glance, it may seem like a hair salon focused on shallow design, but it resonates with the salon's desire to genuinely engage with customers and enhance their beauty and richness from within.