Be顾问总部/建筑部
Be Advisor Headquarters / depaolidefranceschibaldan architetti
设计理念与自然环境的和谐融合:BeAdvisor总部的设计巧妙地将工作环境理念与威尼托乡村景观的自然特色相结合。通过将运营、共享和体育中心的空间融为一体,创造了一个室内外空间无缝连接的工作环境。这种设计不仅强调了幸福、健康、社交和生态的重要性,而且将人的需求置于设计的中心,体现了以人为本的设计理念。
建筑与地形的创新结合:该建筑通过识别并利用场地的自然凸度和地形变化,巧妙地将建筑与自然环境相融合。中央草地的设计不仅响应了水力功能,还简化了建筑立面,而路堤则作为隔音和视觉屏障,减少了周围车辆通行的干扰。这种设计手法不仅展现了对自然环境的深刻理解,也体现了对建筑与环境和谐共存的探索。
技术与可持续性的前瞻性应用:BeAdvisor总部在技术应用上展现了前瞻性,特别是在资源的可持续利用方面。从光伏系统到回收雨水用于灌溉,这些技术选择不仅体现了对环境保护的承诺,也提升了建筑的生态性能。此外,室内空间与自然环境的密切关系,通过大窗户和屋顶悬垂的设计,优化了自然光的利用和室内的舒适度,进一步强调了建筑的可持续性。

© Simon Menges

© Simon Menges
建筑师提供的文字描述BeAdvisor总部源于一位有远见的企业家与威尼托乡村景观的相遇,用一组简单的数字来描述:耕地的几何表面;笔直的大道、树篱和藤蔓;堤岸、运河和水库的凹凸不平。在这里,一家金融咨询公司的老板决定将他的办公室搬到历史悠久的市中心,位于住宅区和开阔乡村之间约10000平方米的边界上。
Text description provided by the architects. BeAdvisor headquarters arises from the encounter between a visionary entrepreneur and the rural landscape of Veneto, described by an abacus of simple figures: the geometric surfaces of cultivated fields; the straight lines of avenues, hedges, and vine rows; the bumps and hollows of embankments, canals, and reservoirs. Here, on a site of approximately 10,000 square meters on the border between a residential neighborhood and the open countryside, is where the owner of a financial consultancy firm decides to move his offices, previously located in the historic city center.

© Simon Menges
他以一种新的工作环境理念为指导,该理念融合了运营、共享和以体育为中心的空间,将室内和室外融为一体。幸福、健康、社交和生态是这种方法的基石,这种方法将人置于中心。一个暴露的混凝土体量在单层上具有明显的水平性,融入天际线,与开放空间以及附近出现的非正式和娱乐空间建立了多种关系。
He is led by a new work environment idea, which blends operational, shared, and sports-centered spaces, integrating the indoors and outdoors. Well-being, health, sociability, and ecology are the cornerstones of this approach, which places the person at the center. An exposed concrete volume stands with marked horizontality on a single floor, integrating into the skyline and establishing multiple relationships with the open spaces and with the informal and recreational spaces that arise in the immediate vicinity.

© Simon Menges

© Simon Menges
识别路堤和洼地的轻微变化会改变场地的自然凸度。虽然中央草地响应了水力功能并简化了立面,但路堤起到了隔音和视觉屏障的作用,可以防止现场周围的车辆通行。自然地形构造本身被用作项目的材料,并被修改以配置新的技术解决方案,定义不可预见的透视图,并确定空间层次结构。
Slight variations that identify embankments and depressions modify the natural convexity of the site. While the central grassy area responds to a hydraulic function and streamlines the facade, embankments act as acoustic and visual shields against vehicular traffic around the site. The natural orographic conformation itself is used as material for the project and is modified to configure new technical solutions, define unforeseen perspective views, and identify spatial hierarchies.

© Simon Menges

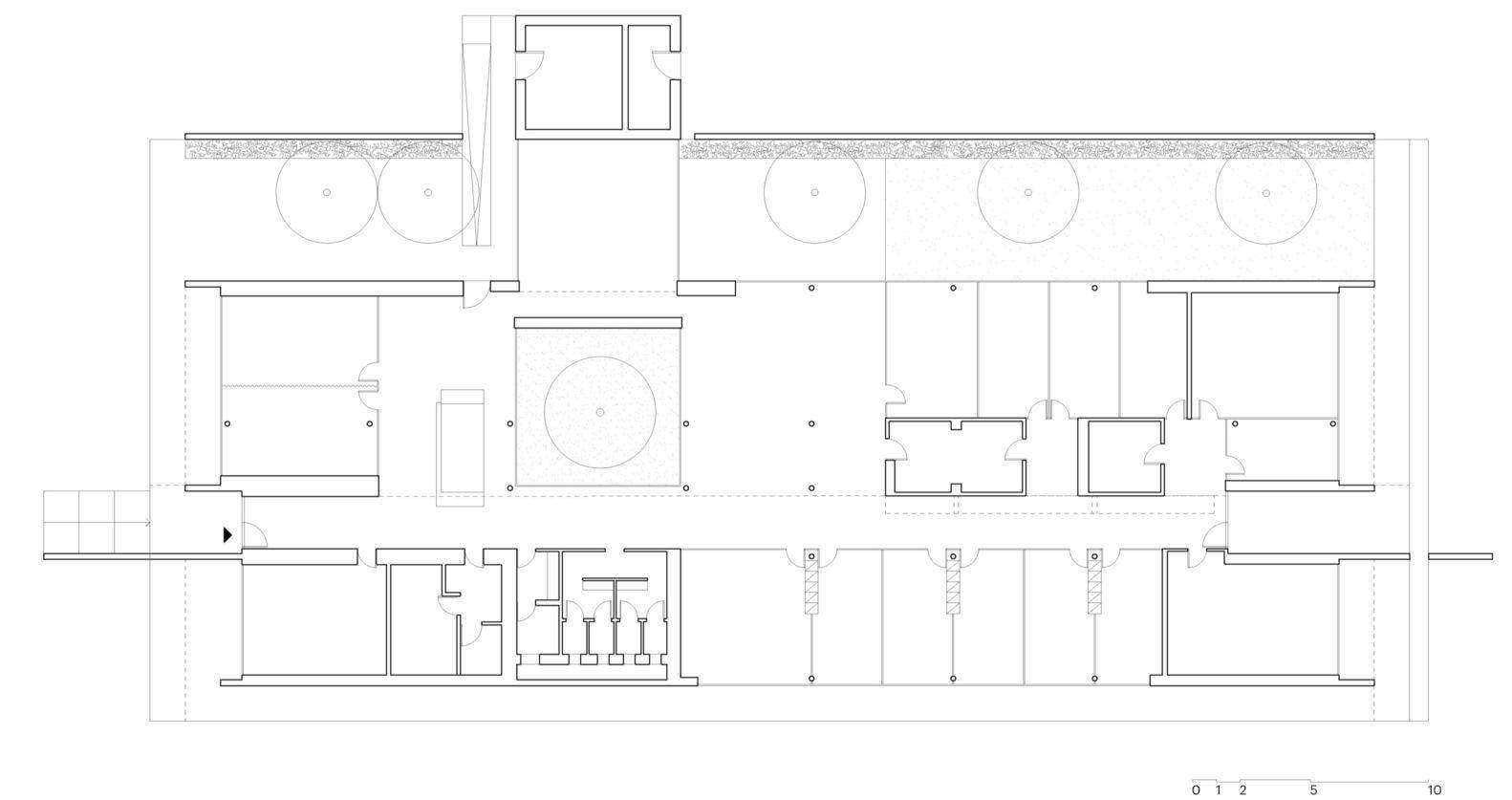
Ground floor plan
建筑象征性地占据了景观的情节,以其基本语言,它看起来像一个悬挂在草地上的物体,与花园保持平衡。地形构件的波纹和混凝土体积的刚度之间的张力集中在建筑物体与乡村相接时产生的阴影中。
Architecture figuratively takes up the plot of the landscape and with its essential language, it appears as an object suspended on the grassy expanse, in balance with the garden. The tension between the rippling of the orographic components and the rigidity of the concrete volume is concentrated in the shadow that the architectural object produces by interfacing with the countryside.

© Simon Menges
平面构图源自平行但交错的外露混凝土隔墙,重新诠释了耕地的纹理。它们的模块化让人想起以前占据项目现场的藤蔓排的间距。通过中央配送路线的高度差异,这种将空间连接成平行条带的方式在立面上也清晰可辨。
The planimetric composition arises from parallel yet staggered exposed concrete partitions, reinterpreting the texture of the cultivated fields. Their modularity recalls the pitch of the vine rows that previously occupied the project site. This articulation of the space into parallel strips is also clearly legible in the facades, through the difference in height concerning the central distribution route.

© Simon Menges

© Simon Menges
工作空间沿着这条轴线发展,其顶部是入口,由一个超大的钢门和一堵悬挂的混凝土墙加强。与第一条轴线正交的第二条轴线将建筑的公共正面与运营区域隔开:接待室和会议室位于第一部分,办公室和开放空间位于第二部分。过滤带在布局中以技术卷向北向外延伸为标志,包括卫生间和杂物间、带厨房的休闲区和露台。
The workspaces develop along this axis, at the head of which is the entrance, enhanced by an out-of-scale steel portal and a suspended concrete wall. A second axis, orthogonal to the first, separates the public front of the building from the operational area: the reception and meeting rooms are located in the first part, offices, and open space in the second. The filter band, marked in the layout by the extroversion of the technical volume towards the north, houses the restrooms and utility rooms, a relaxation area with a kitchen, and a patio.

© Simon Menges
地板用光滑的水泥砾岩处理,露出骨料。配电路径的远景通过一条灌木锤纹人行道得到了增强,人行道的一端是指被屋顶挡住的光线。入口柜台和外部地板也重新采用了混凝土,与木制板条天花板、无烟煤灰色漆面的boiserie和钢窗对话。从光伏系统到回收雨水用于灌溉,技术选择都是面向资源的可持续利用。
The floors are treated with a smoothed cement conglomerate with exposed aggregates. The long perspective of the distribution path is enhanced by a bush-hammered walkway which at one end refers to the light that is cut off by the roof. The concrete was also reintroduced in the entrance counter and the external flooring, dialogues with the wooden slatted ceiling, the anthracite grey lacquered boiserie, and steel windows. The technological choices, from the photovoltaic system to the recovery of rainwater for irrigation, are oriented toward sustainable use of resources.

© Simon Menges
室内空间与自然环境建立了非常密切的关系。东西向的混凝土隔墙与大窗户交替出现,这增加了花园的视野,并欢迎自然光,根据室内空间的需要进行调节。屋顶的悬垂和外部窗帘可以防止南面的直射光线。
The interior spaces establish a very close relationship with the natural environment. The concrete partitions, oriented east-west, alternate with large windows, which multiply the views of the garden and welcome natural light, modulating it according to the needs of the interior spaces. The overhang of the roof and the external curtains protect against direct light on the southern front.

© Simon Menges
位于公共区域和操作空间之间的中央露台代表了工作场所的视觉支点,将自然光和植被带回了建筑的中心。另外两个庭院位于北侧,在建筑和停车场之间创造了开放空间。这些是矿物空间,其中Phormium带和一系列桦树脱颖而出。通往带大窗户的庭院的办公室受益于来自北方的漫射光,而具有双面视野的休息室向外延伸,成为理想的延续。
The central patio, located between the public area and the operational space, represents the visual fulcrum of the workplaces, bringing natural light and vegetation back into the very heart of the building. Two other courtyards are located at the northern front, creating open space between the building and the parking lots. These are mineral spaces in which the band of Phormium and a series of birch trees stand out. The offices that open onto the courtyards with large windows benefit from a diffused light from the north, while the relaxation room with its double aspect view extends outwards and becomes an ideal continuation.

© Simon Menges
因此,工作场所具有高度的灵活性、生态性和技术创新性,与非正式的开放空间、绿地、垫球场、共享单车和赛车服务相结合。这种污染促进了创造力和协同作用,同时与自然环境的直接接触增加了幸福感,被认为是视觉、听觉、发光和温湿度的舒适感。自然和人文元素和谐结合,根据一种有机的美感意图,形成了一个工作和个人服务的校园。
The workplaces, hence conceived with a high degree of flexibility, ecology, and technological innovation, mix with informal open spaces, green areas, padel courts, bike sharing, and racing services. This contamination fosters creativity and synergy while direct contact with the natural environment increases well-being, conceived as visual, acoustic, luminous, and thermo-hygrometric comfort. Natural and anthropic elements combine harmoniously, generating a campus for work and personal services according to an organic intention of beauty.
© Simon Menges