4Viertel住宅和商业开发/Lussi+Partner AG
4Viertel Residential and Commercial Development / Lussi + Partner AG
工业魅力与现代融合:4Viertel住宅和商业开发项目位于Emmenbrücke的Seetalplatz,巧妙地将该地区的工业魅力与现代城市品质相结合。通过广场和小巷的设计,项目不仅保留了历史特色,还融入了现代元素,为新社区创造了一个独特的门户。这种设计手法体现了对传统与现代的深刻理解和尊重,为居民和访客提供了一个既熟悉又新颖的环境。
建筑体量与材料的和谐:项目中的新建筑延续了“Viscosistadt”的城市和工业特色,通过不同大小的建筑体量和谐地融为一体,营造出独特的氛围。混凝土壁柱立面的设计是项目的亮点之一,它将各种建筑统一成一个连贯的整体。此外,材料调色板的精心选择,如砖、石灰石、石膏、混凝土和陶瓷等矿物元素,辅以金属,增强了建筑的主要石头般外观,体现了对细节的极致追求。
功能布局与空间利用:4Viertel项目在功能布局和空间利用上展现了卓越的设计思维。南部建筑的高耸塔楼和拱廊下的中心主入口,以及北部建筑与现有电影院建筑群形成的类似小巷的分隔,都体现了对空间的精心规划。商业空间位于一楼,而上层则为住宅空间,这种垂直分区既满足了功能需求,又保持了建筑的美观和实用性。此外,桥梁和共享的绿色屋顶露台的设计,不仅连接了不同的建筑部分,也为居民提供了额外的社交和休闲空间。

© Adrià Goula

© Adrià Goula
建筑师提供的文字描述4Viertel区位于Emmenbrücke的Seetalplatz,扩大了Viscos地区,并为新社区创造了一个独特的门户。它保留了该地区的工业魅力,同时通过建筑之间的广场和小巷融合了现代城市品质。除了现有的电影院大楼外,还增加了三座新建筑,为住房、商店、办公室、餐馆和休闲设施提供了总共45000平方米的净建筑面积。
Text description provided by the architects. The 4Viertel district, located at Seetalplatz in Emmenbrücke, expands the Viscos area and creates a distinctive gateway to the new neighborhood. It preserves the industrial charm of the area while integrating modern urban qualities through plazas and alleys between the buildings. In addition to the existing cinema building, three new constructions have been added, providing a total of 45,000 square meters of net floor space for housing, shops, offices, restaurants, and leisure facilities.

© Adrià Goula

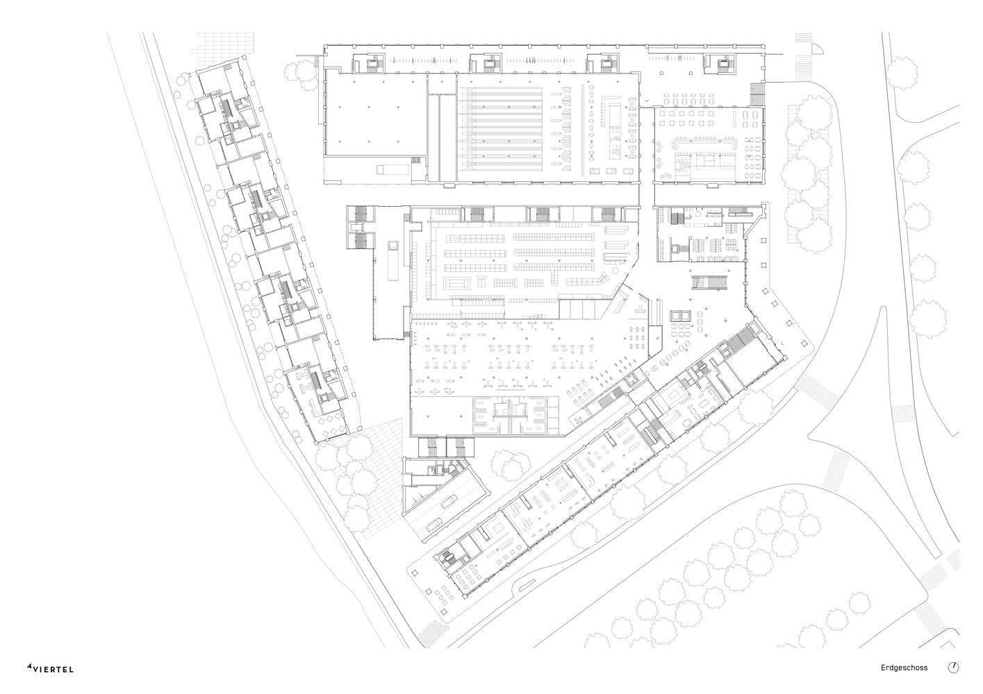
Ground Floor Plan

© Adrià Goula
4Viertel的发展结构与已建立的“Viscossistadt”相连,这是一个由其工业历史塑造的地区,赋予了Emmenbrücke强烈的城市身份。新建筑延续了城市和工业的特征,标志着该地区的南部边界。不同大小的建筑体量和谐地融为一体,营造出一种氛围。一个关键的设计特征是合理设计的混凝土壁柱立面,将各种建筑统一成一个连贯的整体。楼梯井、屋顶线和檐篷进一步阐明了建筑体量。材料调色板包括砖、石灰石、石膏、混凝土和陶瓷等矿物元素,辅以金属。柔和的色调,主要是灰色调,增强了主要的石头般外观。
The development structure of 4Viertel connects with the established "Viscosistadt," an area shaped by its industrial past that lends Emmenbrücke a strong urban identity. The new buildings continue the urban and industrial character, marking the southern boundary of the district. The atmosphere is defined by harmoniously integrated architectural volumes of varying sizes. A key design feature is the rationally designed facades with concrete pilasters, which unify the various buildings into a coherent ensemble. Stairwells, rooflines, and canopies further articulate the building mass. The material palette includes mineral elements such as brick, limestone, plaster, concrete, and ceramics, complemented by metal. The predominant stone-like appearance is enhanced by a subdued color palette, mostly in shades of gray.

© Adrià Goula

Cross Section

© Adrià Goula
这座南部建筑及其高耸的塔楼标志着西塔广场“Viscosistadt”的入口。拱廊之下是中心的主入口,是电影院综合体。在Gerliswilstrasse和Seetalplatz的交叉口创建了一个欢迎广场。高耸的入口大厅通过一个宏伟的楼梯通往中心的门厅。上层的公寓通过暴露的混凝土墙和玻璃砖元素保留了工业特色。Seetalplatz的商业空间位于一楼。垂直支柱的构造结构定义了承重立面,而混凝土框架内的砖砌体增加了精细的细节,并参考了该地区的工业历史。北部建筑与现有的电影院建筑群形成了类似小巷的分隔。一座桥将这座建筑与中心的门厅连接起来。公共区域和楼梯间可通过有盖通道进入。上层灵活的服务空间由绿色中庭照亮。在这些之上,有各种布局的阁楼式公寓。桥梁和共享的绿色屋顶露台连接着不同的部分。带有壁柱、混凝土过梁和檐口元素的砖砌立面将这座建筑与邻居联系在一起。
The southern building, with its high-rise tower, marks the entrance to "Viscosistadt" at Seetalplatz. Beneath an arcade lies the main entrance to the center, which houses the cinema complex. A welcoming plaza is created at the intersection of Gerliswilstrasse and Seetalplatz. The lofty entrance hall leads via a grand staircase to the foyer of the center. The upper floors house apartments that retain the industrial character through exposed concrete walls and glass block elements. Commercial spaces at Seetalplatz are located on the ground floor. A tectonic structure of vertical pillars defines the load-bearing facade, while brick masonry within the concrete frames adds fine detailing and references the area's industrial past. The northern building creates an alley-like separation from the existing cinema complex. A bridge connects this building with the foyer of the center. Public areas and stairwells are accessible from a covered passage. Flexible service spaces on the upper floors are illuminated by green atriums. Above these, loft-style apartments with varied layouts are located. Bridges and a shared green rooftop terrace connect the different sections. The brick facade with pilasters and concrete lintel and cornice elements ties this building to its neighbors.

© Adrià Goula

© Adrià Goula
西面,沿着Emme河,有一座六层楼高的纵向建筑,延续了“Viscossistadt”的河滨。高高的一楼有一家餐厅和一室公寓,而拱廊则形成了一个有遮蔽的通道区域。宽敞的双面公寓位于较高楼层。该建筑坚固的外部延伸到内部,矿物材料的选择确保了耐用性。4Viertel区的新建筑灵感来自现有工业“Viscossistadt”建筑的规模、质地和比例。三座建筑中的每一座都独特地诠释了不同灰色色调的矿物材料调色板、垂直强调和合理网格化的立面。这赋予了该地区一个有凝聚力的视觉形象,将各种结构结合成一个和谐的整体。
To the west, along the Emme River, stands a six-story longitudinal building that continues the riverfront of "Viscosistadt." The tall ground floor houses a restaurant and studio apartments, while an arcade creates a sheltered access area. Spacious, dual-aspect apartments occupy the upper floors. The building's robust exterior extends to the interior, with mineral material choices ensuring durability. The new buildings in the 4Viertel district take inspiration from the scale, texture, and proportions of the existing, industrial "Viscosistadt" buildings. The mineral material palette in differentiated shades of gray, the vertical emphasis, and the rationally gridded facades are uniquely interpreted in each of the three buildings. This gives the district a cohesive visual identity, tying the various structures into a harmonious ensemble.