柏林斯帕卡斯办公园区/Tchoban Voss建筑事务所
Berliner Sparkasse Office Campus / Tchoban Voss Architekten
创新办公理念:柏林斯帕卡斯办公园区以其开创性的办公理念而著称,提供了灵活的空间配置,以适应不同租户的需求。通过玻璃桥连接的五层建筑,不仅提供了独立的建筑部分,还能根据需要组合使用,展现了现代办公空间设计的前瞻性。
绿色与开放性:项目中的屋顶露台和绿色内庭院设计,为员工提供了多功能的露天娱乐、交流和工作区。凉廊的分布和多样化的立面网格,增强了建筑的开放性,同时创造了更多的户外工作和休闲机会,体现了对自然与工作环境融合的深刻理解。
可持续设计与无障碍设施:建筑的立面设计和材料选择传达了轻盈感,同时确保了能源效率和室内气候的舒适性。项目获得DGNB金奖,体现了其在可持续性方面的卓越成就。此外,无障碍设计确保了所有区域的可达性,彰显了对包容性工作环境的承诺。

© HG Esch

© HG Esch
建筑师提供的文字描述项目Square 1是一个开创性的办公园区,正在柏林Johannisthal建造,距离德国最大的科技园区和媒体中心Adlershof不远。TCHOBAN VOSS Architekten GmbH批准了该项目B部分的校园开发。这座由两部分组成的建筑群有五层,由玻璃桥连接,被柏林Sparklasse用作其总部,位于上市的Schoeneweide火车站(Bahnbetriebswerk(Bw))附近。
Text description provided by the architects. The project Square 1, a pioneering office campus, is being built in Berlin-Johannisthal, not far from Germany's largest technology park and media centre Adlershof. TCHOBAN VOSS Architekten GmbH gave the go-ahead for the campus development with component B of the project. The two-part building complex with five full storeys, connected by glass bridges, is used by Berliner Sparklasse as its headquarters and is located in the immediate vicinity of the listed Schoeneweide railway depot (Bahnbetriebswerk (Bw)).

© HG Esch

Elevation South West
B1

© HG Esch
概念
Square 1 B基于最灵活的空间概念。根据要求,独立的建筑部分也可以组合起来供单个租户使用。东北部的B1号楼和西南部的B2号楼由二楼和三楼的两层玻璃桥连接。这两座建筑的三楼都有宽敞的屋顶露台,每座面积265平方米,绿化茂密。它们是多功能的露天娱乐、交流和工作区。这两座Carré建筑还环绕着引人注目的绿色内庭院,里面有大量的休息区。20个凉廊定期分布在一到四层的上层,除了各种各样的立面网格外,还创造了额外的开放性和更多的户外工作和休闲机会。
Concept
Square 1 B is based on a maximally flexible space concept. Depending on requirements, the independent building sections can also be combined for use by a single tenant. Building B1 in the north-east and B2 in the south-west are connected by glazed, two-storey bridges on the second and third floors. Both buildings have spacious roof terraces on the third floor, each measuring 265 sqm and with intensive greenery. They serve as versatile open-air recreation, communication and work areas. The two Carré buildings also enclose striking, green inner courtyards with a large number of seating areas. 20 loggias are regularly distributed across the upper floors one to four and, in addition to a varied façade grid, create additional openness and further outdoor working and lounging opportunities.

© HG Esch

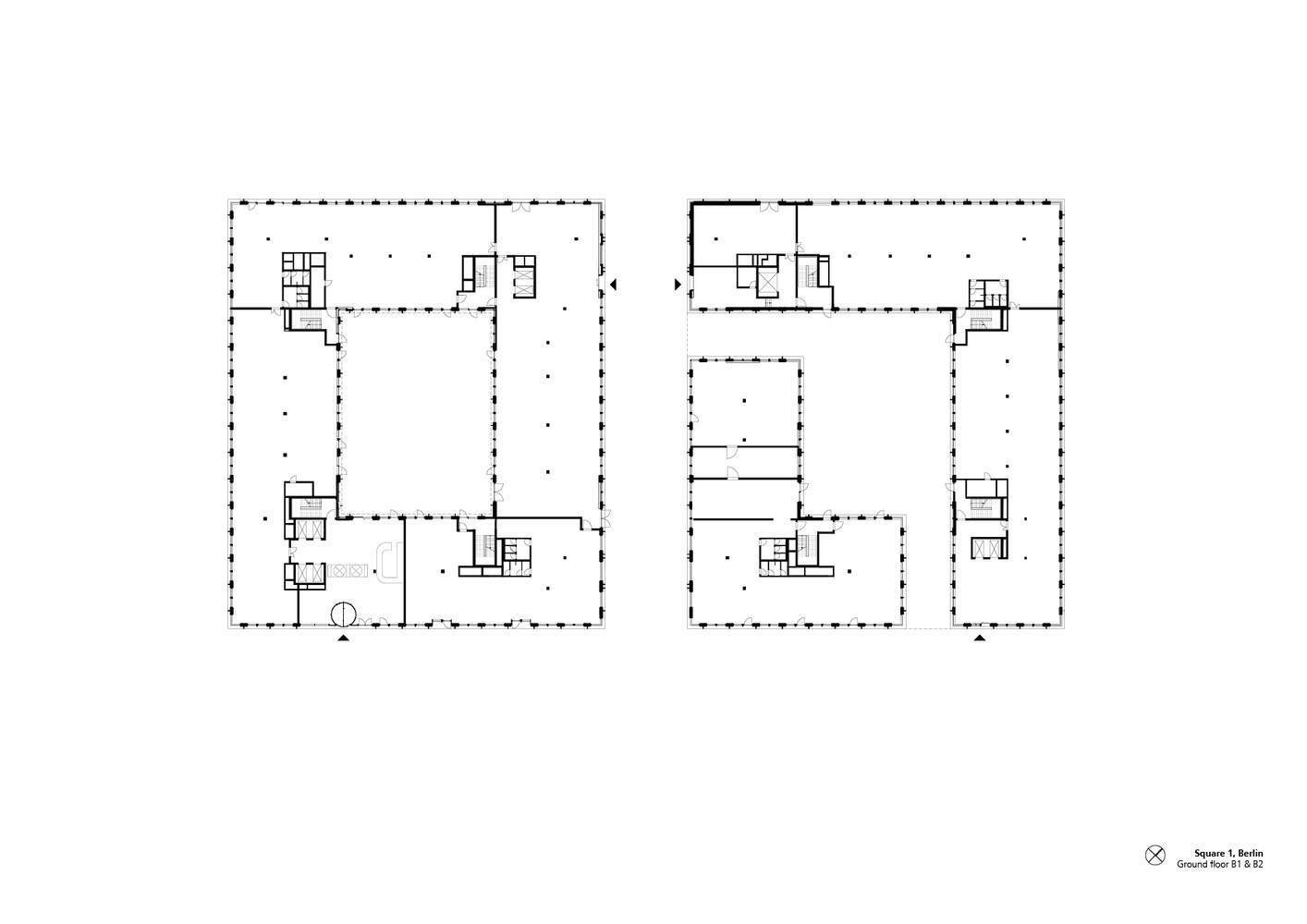
Plan - Ground floor B1 & B2

© HG Esch
立面由白色定制铝元素组成。一楼安装了一层高的竖框和横梁立面。立面网格从一楼到三楼交替出现。光学水平和垂直轮廓使立面结构清晰。四楼的六部分全景大窗户和窗户、露台和凉廊上的玻璃栏杆使建筑群显得开放而现代,并优化了进入后面房间的自然光。立面的配色方案,带有玻璃栏杆和玻璃角的窗户元素,以及朝向顶部越来越宽的凉廊和柱子序列,传达了一种刻意营造的轻盈感。B2的一楼有两条通往内院的通道,其中一条有两层。B1层宽敞的两层入口区域既吸引人又享有盛誉。它通往会议室和培训室以及内部餐厅。建筑群的所有区域都设计为无障碍。
The façade consists of white, custom-made aluminium elements. A storey-high mullion and transom façade was installed on the ground floor. The façade grid alternates from the first to the third floor. Optical horizontal and vertical contours give the façades a clear structure. Large, six-part panoramic windows on the fourth floor and glass balustrades on windows, terraces and loggias let the building complex appear open and modern and optimise the natural light entering the rooms behind. The colour scheme of the façade, its window elements with glass balustrades and glass corners as well as its loggias and the sequence of columns, which becomes ever wider towards the top, convey a deliberately light impression. On the ground floor of B2 there are two passageways to the inner courtyard, one of which has two storeys. The spacious two-storey entrance area in B1 is both inviting and prestigious. It leads to conference and training rooms as well as to an internal canteen. All areas of the building complex were designed to be barrier-free.

© HG Esch
户外设施
校园的户外区域为工作和娱乐创造了各种机会。广阔的绿地是建筑之间的连接元素,确保了自然与建筑之间的和谐。内部庭院经过景观美化,可以以多种方式使用。
Outdoor facilities
The outdoor areas of the campus create a variety of opportunities for work and recreation. The extensive green spaces act as a connecting element between the buildings and ensure harmony between nature and architecture. The inner courtyards are landscaped and can be used in a variety of ways.

© HG Esch

Longitudinal section B1 & B2

© HG Esch
可持续性
这些建筑配备了区域供暖系统,并配备了混凝土核心活化装置以及供暖和制冷帆,以尽可能提高能源消耗效率,营造宜人的室内气候。建筑材料、技术设备和能源概念的选择符合最高的生态和经济标准。该项目获得了德国可持续建筑委员会(DGNB)的金奖。
Sustainability
The buildings are supplied with district heating and are equipped with concrete core activation as well as heating and cooling sails to keep energy consumption as efficient as possible and to create a pleasant indoor climate. The choice of building materials, the technical equipment and the energy concept fulfil the highest ecological and economic standards. The project was awarded gold certification by the German Sustainable Building Council (DGNB).
© HG Esch