吴哥市场/UAD建筑师事务所
Angkor Market / UAD Architects
历史与现代的和谐融合:吴哥市场巧妙地将传统与现代元素相结合,其红砖建筑在尊重周围文化遗产的同时,创造了一个新的城市聚集点。这种设计不仅激活了城市结构中的空白,还保持了与现有社区的和谐,体现了对历史的尊重和对现代生活需求的满足。
实用性与美学的双重考量:该项目在设计上注重实用性,使用混凝土、金属和传统建筑材料,如当地的红砖和手工制作的高棉瓷砖。这种选择不仅体现了对当地文化的尊重,也展现了建筑的纯粹风格。同时,裸露的砖立面和波浪形状的设计增强了建筑的稳定性,创造了一种永恒、质朴和自然的外观。
环境与体验的精心设计:吴哥市场的设计考虑了环境和顾客体验。通过颜色、光线、高度的巧妙融合,创造了易于导航的循环和感觉。多彩的水磨石地板和设计特色不仅为客户提供了独特的购物体验,还通过温暖和凉爽材料的混合使用以及战略照明,营造出激发创造力的氛围。

© Oudompheaktra Ang

© Oudompheaktra Ang
建筑师提供的文字描述吴哥市场位于西哈努克大道,连接通往联合国教科文组织世界遗产吴哥窟的北部路线和暹粒市中心,是一座两层红砖建筑,周围环绕着一个世纪的文化遗产吴哥莱佛士大酒店、吴哥国家博物馆和阿曼萨拉度假村。我们的目标是激活城市结构中的空白,创造一个新的聚集点,同时保持现有社区的和谐。市场包括杂货店、药店、文具和家用电器,这些都有助于让人们的购物体验变得愉快。
Text description provided by the architects. Situated on Preah Sihanouk Ave, linking the northern route that leads to Angkor Wat, a UNESCO World Heritage Site, and downtown of Siem Reap, Angkor Market is a two-story red brick building, surrounded by a century's worth of cultural heritage Raffles Grand Hotel d'Angkor, Angkor National Museum and Amansara Resort. We aim to activate a gap in the urban fabric and create a new gathering spot while maintaining the harmony of the existing neighborhood. The market comprises grocery stores, pharmacies, stationery, and household appliances that contribute to making people's shopping experiences pleasurable.

© Oudompheaktra Ang

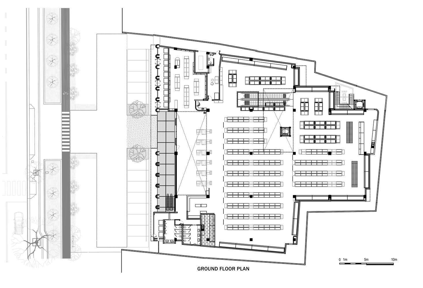
Plan - Ground Floor

© Oudompheaktra Ang

© Oudompheaktra Ang
该市场渴望支持该地区具有历史意义的库伦山的当地农民,并将其空间用于展示和销售当地采购的水果和蔬菜。考虑到实用性的设计,该项目具有纯粹的建筑风格。它的主要组成部分包括混凝土、金属和传统建筑材料,包括当地的红砖和手工制作的高棉瓷砖,所有这些都是出于实用性而选择的。
The market is eager to support local farmers from Kulen Mountain, where the area has historical significance, and dedicates its space to exhibiting and selling fruits and vegetables that are sourced locally. Design with utility in mind, the project has a pure architectural style. Its primary components include concrete, metal, and traditional building materials, including locally red bricks and handcrafted Khmer tiles, all of which were chosen for their practicality.

© Oudompheaktra Ang

© Oudompheaktra Ang
裸露的砖立面创造了一种永恒、质朴和自然的外观,以增强周围的建筑特色。从结构的角度来看,砖墙的稳定性完全取决于它们的波浪形状和砖的粘结。棕榈树位于街道水平,与砖立面形成视觉联系。在地面,一个大的入口空间,当你进去时,天花板会更高,被柔和的自然光透过格子和热带花园所创造的精致图案阴影所覆盖。
The exposed brick façade creates a timeless, earthy, and natural appearance to enhance the surrounding architectural character. From a structural point of view, the stability of brick walls is solely dependent on their wavy shape and brick bonding. Palm trees are positioned at street level, creating a visual link with the brick façade. At ground level, A large entrance space, with higher ceilings as you move in, is covered in delicately patterned shadows created by the gentle natural light that filters through the latticework and tropical garden.

Sketch

© Oudompheaktra Ang
建筑师将颜色、光线、高度和其他因素融合在一起,为航行创造循环和感觉。多彩的水磨石地板和设计特色为客户创造了独特的体验,让他们轻松找到所需的产品。使用温暖和凉爽的材料混合来吸引注意力和战略照明,营造出一种激发创造力的氛围。
The architects blend color, light, height, and other factors to generate circulation and sensations for navigating. Colorful terrazzo floors and design features create a unique experience for customers to easily locate the products they need. Using a mix of warm and cool materials to draw attention and strategic lighting creates an ambiance that sparks creativity.
© Oudompheaktra Ang