Flat Point Seongsu商店。
Flat Point Seongsu Store / stof.
设计理念与历史融合:Flat Point Seongsu商店以其极简主义的设计方法,巧妙地将品牌的独特性融入城苏洞的工业历史中。通过粗糙的立面处理和室外楼梯的设计,捕捉了城苏洞工业历史的精髓,同时为顾客提供了一个慢节奏、反思性的空间体验。
时间对比与空间序列:设计工作室stof通过对比饰面和视角转换,建立了从邻里到空间、从空间到产品的序列,将Flat Point的价值观和情感分层到城苏洞。立面上白色瓷砖与明亮STO纹理的明显区别,以及内部的干净与外部的粗糙形成对比,突出了品牌的现代身份。
结构特征与情感变化:圆形楼梯不仅创造了一种结构特征,吸引了外界的目光,而且在内部作为垂直连接,增强了用户对不同楼层的体验。二楼的“梦想之家”概念空间通过深色木制天花板与一楼形成对比,改变了顾客的情绪和与产品互动的方式,为品牌增添了深度。

© Donggyu Kim

© Donggyu Kim
建筑师提供的文字描述Flat Point是一个生活设计品牌,以其极简主义的设计方法为客户的空间增添了一丝独特性,该品牌已将其展厅从三星洞搬迁并扩建到位于城苏洞的两层空间。新的城苏洞展厅稍微远离繁华的主街,营造出一种更慢、更具反思性的氛围。这座L形建筑占地约660平方米,连接着两座前工厂,其立面采用粗糙的表面处理,室外楼梯通往屋顶,捕捉到了城苏洞工业历史的精髓。
Text description provided by the architects. Flat Point, a living design brand that adds a touch of uniqueness to customers' spaces with its minimalist design approach, has relocated and expanded its showroom from Samseong-dong to a two-story space in Seongsu-dong. The new Seongsu-dong showroom set slightly back from the bustling main street, allows for a slower, more reflective atmosphere. Spanning around 660 square meters, the L-shaped building connects two former factories, featuring rough finishes on its facade and an outdoor staircase leading to the rooftop, capturing the essence of Seongsu-dong's industrial past.

© Donggyu Kim

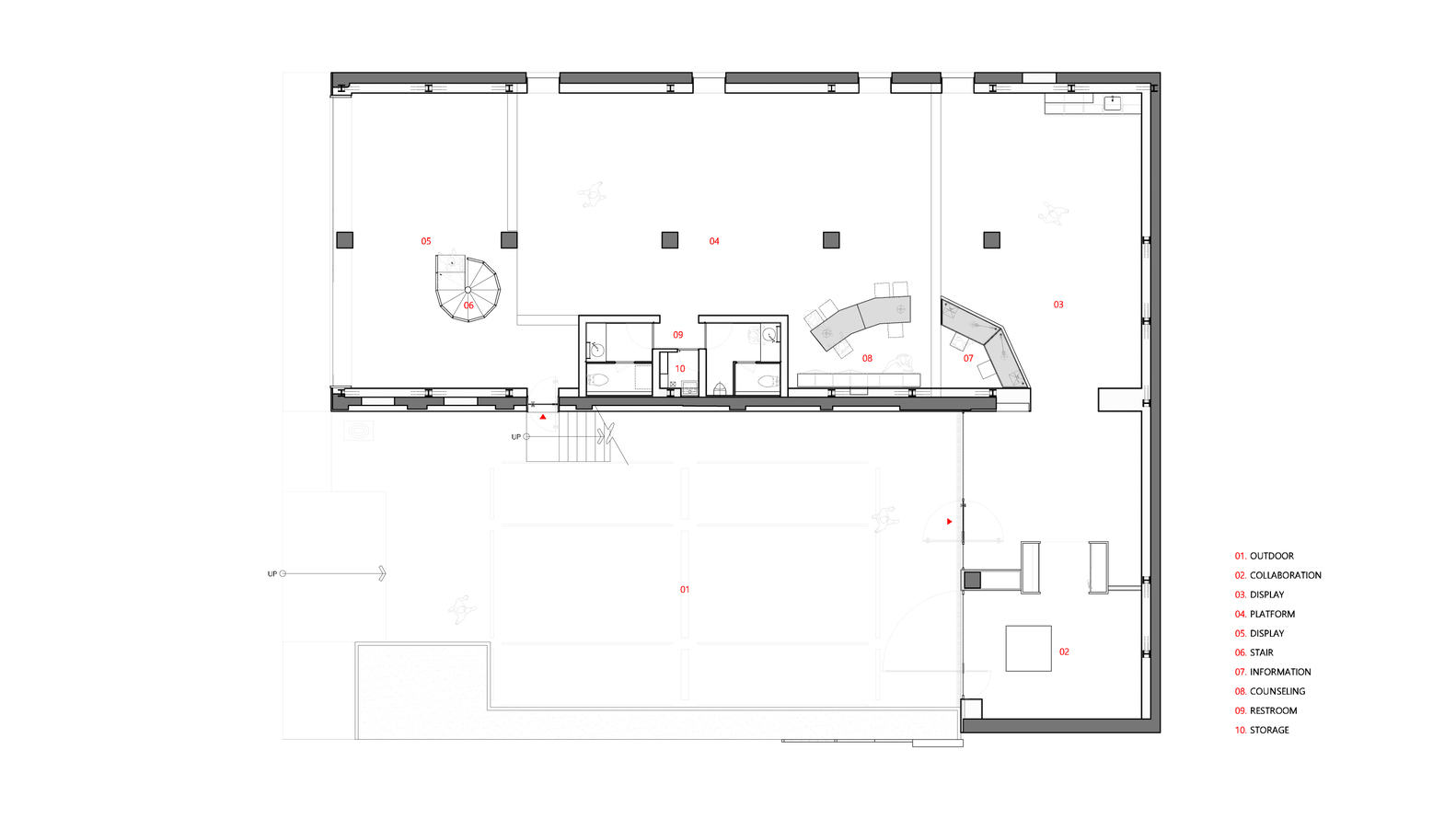
Plan - 1st floor

© Donggyu Kim
设计工作室stof试图通过将品牌的独特色彩叠加到成苏独特的当地特色上,来形象化迷人的风景。通过时间的对比、视角的转换和本质的层次,设计建立了一个从邻里到空间、从空间到产品的序列,将Flat Point的价值观和情感分层到城苏洞。stof将“时间对比”形象化,这种对比是通过对比饰面将成苏洞的原始风格与品牌的现代身份融为一体而产生的。立面以现有的白色瓷砖和明亮的STO纹理之间的明显区别为特色,干净的内部与粗糙的外部形成对比,提供了一个突出品牌的背景。这个设计捕捉到了成素过去和现在之间的时间对比。
Design Studio stof sought to visualize the intriguing scenery created by layering the brand's unique colors onto Seongsu's distinct local character. Through contrasts in time, shifts in perspective, and layers of essence, the design establishes a sequence from neighborhood to space, from space to product, layering the values and emotions of Flat Point onto Seongsu-dong. stof visualized the 'contrast of time' that arises from blending the rawness of Seongsu-dong with the modern identity of the brand through contrasting finishes. The facade features a striking division between the existing white tiles and a bright STO texture, with the clean interior contrasting the rough exterior, providing a backdrop that accentuates the brand. This design captures the temporal contrast between Seongsu's past and present.

© Donggyu Kim
通过玻璃立面可见的圆形楼梯创造了一种结构特征,吸引了外界的目光。在内部,它充当了一楼和二楼之间的垂直连接,通过具有不同高度过渡的显示平台增强了用户对不同楼层的体验。二楼的概念空间“梦想之家”引入了与一楼形成对比的深色木制天花板,改变了人们的情绪,改变了顾客感知和与产品互动的方式。
A circular staircase, visible through the glass facade, creates a structural identity that draws the eye from the outside. Inside, it serves as a vertical connection between the first and second floors, enhancing the user's experience with various levels through the display platform with different height transitions. The second-floor concept space, "Dream House," introduces a dark wooden ceiling contrasting the first floor, shifting the mood and altering the way customers perceive and interact with the products.

© Donggyu Kim

© Donggyu Kim
该品牌的简约风格反映在一个用统一材料装饰的单一表面上,连接墙壁、地板和楼梯的扶手,横跨室内外空间。此外,具有对比纹理的金属和木材薄层创造了一种功能美学,在空间内的基本元素的共享设计语言中为品牌的身份增添了深度。Flat Point及其用户将在这个充满设计遗产和生活方式的新空间中不断寻找灵感和沉思。
The brand's minimalistic character is reflected in a single surface finished with uniform materials, connecting walls, floors, and the staircase's handrails across interior and exterior spaces. Additionally, thin layers of metal and wood with contrasting textures create a functional aesthetic, adding depth to the brand's identity in shared design language for essential elements within the space. Flat Point and its users will endlessly find inspiration and contemplation in this new space, rich in design heritage and lifestyle.
© Donggyu Kim