Northpointe银行运营中心/Gafari Associates,LLC
Northpointe Bank Operations Center / Ghafari Associates, LLC
空间规划与功能整合:Northpointe 银行运营中心项目,前期深入探究业务驱动因素,绘制详尽路线图,为功能布局奠定基础。室内外空间设计巧妙融合,兼顾多元工作风格、高科技会议及社交需求,实现空间利用最大化与功能多元化的平衡,打造出适应企业发展的灵动办公场所。
自然采光与特色元素运用:设计中充分利用大量自然光,翻新内部巨大天窗成为亮点。此天窗不仅连接建筑过去与未来,更是关键设计元素,让室内空间与密歇根州自然环境相呼应,营造出舒适且独具特色的工作氛围,同时彰显对可持续性与地域文化的尊重与融合。
合作模式与项目价值提升:总承包商 Visser Brothers 早期介入是项目成功关键之一。凭借其对原建筑的深入了解,助力实现创意改造。该项目将被忽视建筑转变为活力创新的运营中心,提升银行使命与形象,为西密歇根州职场空间树立标杆,展现出建筑改造对企业及区域发展的重要推动作用。

© James John Jetel

© James John Jetel
建筑师提供的文字描述Northpointe Bank住宅贷款产品的持续增长推动了对新空间的需求。Northpointe聘请Ghafari将前Cascade Commons改造成一个创新的国家运营中心,为其住宅贷款和服务集团提供服务。
Text description provided by the architects. Northpointe Bank's continued growth in its residential lending offerings drove the demand for a new space. Northpointe engaged Ghafari to transform the former Cascade Commons, aging, nearly vacant 91,000 SF building into an innovative national operations hub for their residential lending and servicing groups.

© James John Jetel
在动笔之前,我们制定了一个路线图,以更深入地了解Northpointe的关键业务驱动因素,这将直接影响工作场所的功能。该路线图提供了对Northpointe房地产、人员和技术的全面了解。从那里开始,我们设计了一种身临其境的室内外体验,平衡了不同的工作风格和高科技会议空间,以及能够满足不断发展的公司需求的引人入胜的社交空间。
Prior to putting pen to paper, we developed a roadmap to deeper understand Northpointe's key business drivers, which would directly affect the functionality of the workplace. This roadmap offered a holistic understanding of Northpointe's real estate, people, and technology. From there, we designed an immersive interior and exterior experience, balancing diverse workstyles and high-tech meeting space, with engaging social spaces that anticipate the needs of a growing company.

© James John Jetel

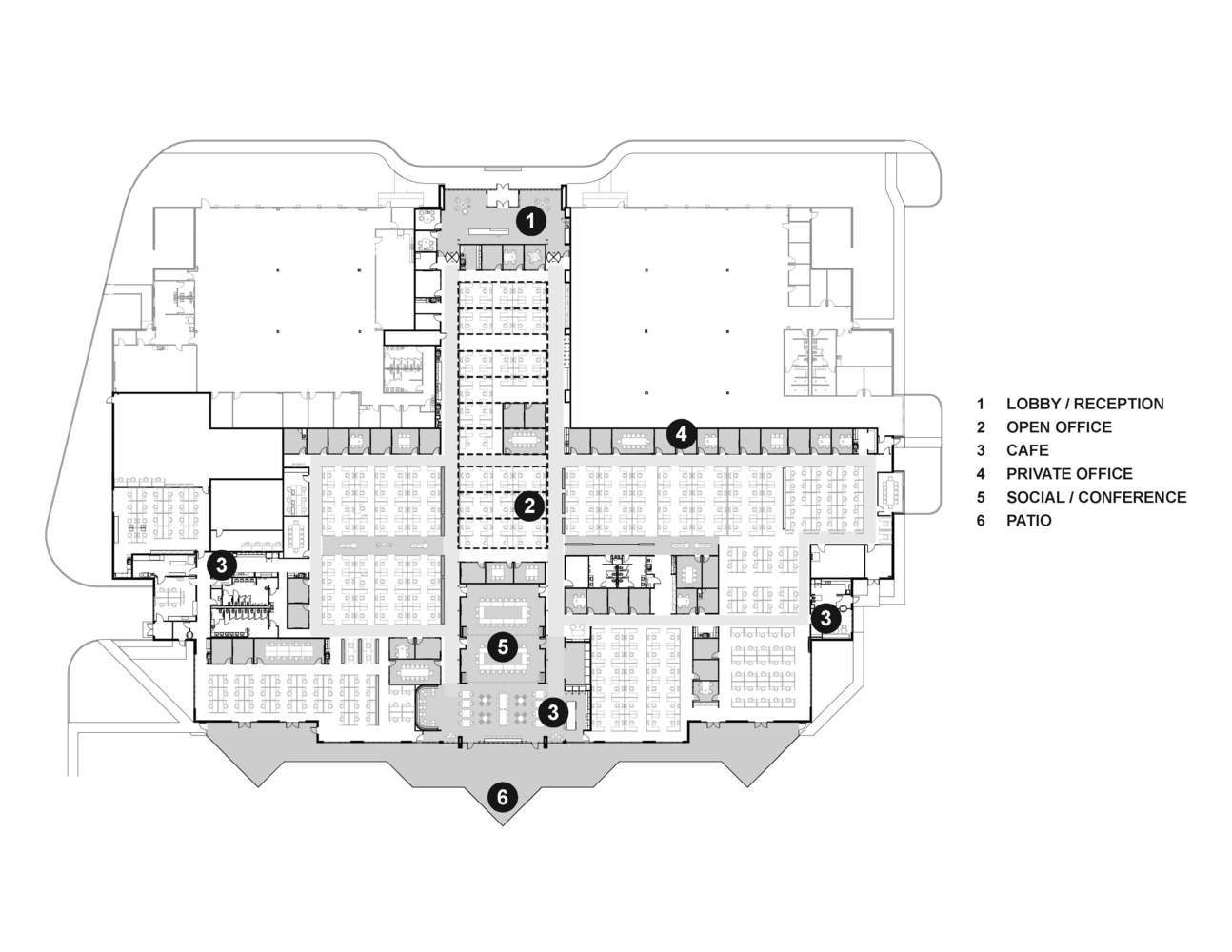
Floor Plan

© James John Jetel
大量的自然光和模仿密歇根州自然的设计选择在设计的成功中发挥了关键作用。Ghafari利用了一个巨大的内部天窗的翻新,该天窗跨越了建筑的整个深度,这是一个关键特征,是建筑过去的主要元素,现在是Northpointe未来的新驱动力和象征。
Vast amounts of natural light and design choices that mimic Michigan nature played a key role in the design's success. Ghafari drew upon the renovation of a massive interior skylight that spans the entire depth of the building – a key feature that is a major element of the building's past, now a renewed driver and symbol of Northpointe's future.

© James John Jetel

© James John Jetel
除了早期的战略思考外,该项目的一个关键成功案例是总承包商Visser Brothers股份有限公司的早期引入。Visser还是最初Cascade Commons设施的承包商,为原始设计和施工方法提供了丰富的历史和理解。
In addition to early strategic thinking, a key success story of the project was the early introduction of the General Contractor, Visser Brothers Inc. Visser was also the contractor for the original Cascade Commons facility, offering a wealth of history and understanding of the original design and construction methods.

© James John Jetel
Northpointe运营中心是一个被忽视的建筑的灵活和创造性的改造。作为一个充满活力和前瞻性思维的工作场所,该设施提升了Northpointe的使命,即“通过为他们所服务的人和社区带来价值和创新,同时通过协作、高绩效和多元化的公司文化提供真正的价值,成为美国最好的银行。”现在已经完成,它拥有以人为本的品质,同时提高了标准,为西密歇根州的真实工作场所产品开辟了道路。
The Northpointe Operations Center is a flexible and creative transformation of a neglected building. As a dynamic and forward-thinking workplace, this facility elevates Northpointe's mission "to be the best bank in America by bringing value and innovation to the people and communities they serve while delivering real value through a collaborative, high-performance and diverse company culture." Now complete, it boasts human-focused qualities while simultaneously raising the bar and forging a path for authentic workplace offerings in West Michigan.
© James John Jetel